
| 賃料 | 予想金額:127,000〜147,000円程度 | 管理費 | 予想金額:8,000〜12,000円程度 |
| 礼金/敷金 | 非公開(アーカイブ) | 平米数 | 25.37㎡ |
| 初期費用概算(参考) | 目安:536,000〜636,000 円 | みなし賃料(月額・参考) | 146,354〜166,354 円 |
| 備考 | 本ページは過去募集のアーカイブです。表示の金額は周辺相場・過去募集を踏まえた参考レンジであり、実際の契約金額・条件ではありません。 | ||
※上記みなし賃料(月額)は仲介手数料割引・無料&キャッシュバックを加味した高級賃貸バイブル限定の金額です。一般的なみなし賃料とは異なります。
【建物ページ】パークホームズ千代田淡路町の詳細・最新空室はこちら▶▶選ばれる理由
仲介手数料無料・キャンペーン情報(毎月15名様限定)
〇仲介手数料割引キャンペーン
パークホームズ千代田淡路町 218の口コミ・レビュー
パークホームズ千代田淡路町 218。ここはまるで都会のオアシス、洗練された空間があなたを待ち受けています。神田須田町の静かな通りに佇むこの高級賃貸物件は、北東の方向に向けた窓からは、朝の光が優しく差し込み、心を潤すような穏やかな始まりを約束します。専有面積25.37㎡、そして1Kというシンプルでありながら機能的な間取りは、あなたの心の隙間に心地よい安らぎをもたらします。洋室は7.4帖という広さを誇…パークホームズ千代田淡路町 218。ここはまるで都会のオアシス、洗練された空間があなたを待ち受けています。神田須田町の静かな通りに佇むこの高級賃貸物件は、北東の方向に向けた窓からは、朝の光が優しく差し込み、心を潤すような穏やかな始まりを約束します。専有面積25.37㎡、そして1Kというシンプルでありながら機能的な間取りは、あなたの心の隙間に心地よい安らぎをもたらします。洋室は7.4帖という広さを誇り、まるで特別な空間に身を投じているような感覚を与えてくれることでしょう。
想像してみてください。あなたがこの美しい空間に足を踏み入れると、柔らかな光が落ち着いた色合いの壁やフローリングに映り込み、心地よい静寂に包まれる瞬間。TVモニターホンで訪れる人を確認し、オートロックの安心感に包まれつつ、宅配ボックスからは大切な荷物が届いていることを知らせてくれます。この場所はただの住まいではなく、日々の生活が映画のワンシーンのように輝く舞台なのです。
あなたは朝目覚め、カーテンを開けると、街の息吹を感じることでしょう。新鮮な空気が窓から流れ込み、コーヒーの香りがそっと漂います。優雅なダイニングでひとときを過ごし、友人を招いての小さなお祝いの準備が始まります。ここでの生活は、自分自身を再発見し、心の豊かさを感じる旅です。
また、エレベーターでの移動は、まるで毎日異なる景色を見せてくれる特別な旅の始まり。地元の文化や歴史が息づくこの場所で、あなたはただの住人ではなく、アートのような人生を描くアーティストです。周囲には文化的なスポットや歴史的な名所も点在し、散策するたびに新たな発見が待っています。神田の街並みは、かつての賑わいを思い起こさせ、あなたにインスピレーションを与えてくれることでしょう。
そして、日々の生活が豊かさと共に歩んでいく中で、管理人さんの笑顔や隣人たちとの挨拶が、心温まるコミュニティの一部となるのです。パークホームズ千代田淡路町 218での生活は、五感を刺激し、あなたの心に響く感動を与えてくれる特別な場所です。ここでの暮らしが、あなたの人生に彩りを加え、毎日を特別なものにしてくれることでしょう。この場所は、ただ住むための空間ではなく、心のふるさとを育む場なのです。どうぞ、あなた自身の物語をこの素敵な舞台で綴ってみませんか。
想像してみてください。あなたがこの美しい空間に足を踏み入れると、柔らかな光が落ち着いた色合いの壁やフローリングに映り込み、心地よい静寂に包まれる瞬間。TVモニターホンで訪れる人を確認し、オートロックの安心感に包まれつつ、宅配ボックスからは大切な荷物が届いていることを知らせてくれます。この場所はただの住まいではなく、日々の生活が映画のワンシーンのように輝く舞台なのです。
あなたは朝目覚め、カーテンを開けると、街の息吹を感じることでしょう。新鮮な空気が窓から流れ込み、コーヒーの香りがそっと漂います。優雅なダイニングでひとときを過ごし、友人を招いての小さなお祝いの準備が始まります。ここでの生活は、自分自身を再発見し、心の豊かさを感じる旅です。
また、エレベーターでの移動は、まるで毎日異なる景色を見せてくれる特別な旅の始まり。地元の文化や歴史が息づくこの場所で、あなたはただの住人ではなく、アートのような人生を描くアーティストです。周囲には文化的なスポットや歴史的な名所も点在し、散策するたびに新たな発見が待っています。神田の街並みは、かつての賑わいを思い起こさせ、あなたにインスピレーションを与えてくれることでしょう。
そして、日々の生活が豊かさと共に歩んでいく中で、管理人さんの笑顔や隣人たちとの挨拶が、心温まるコミュニティの一部となるのです。パークホームズ千代田淡路町 218での生活は、五感を刺激し、あなたの心に響く感動を与えてくれる特別な場所です。ここでの暮らしが、あなたの人生に彩りを加え、毎日を特別なものにしてくれることでしょう。この場所は、ただ住むための空間ではなく、心のふるさとを育む場なのです。どうぞ、あなた自身の物語をこの素敵な舞台で綴ってみませんか。
バイブルスコア
バイブルスコア: 23.9
平均的なスコアです。
※バイブルスコア詳細はこちら
バイブルスコアとは独自のAI機械学習技術を利用した物件評価システムで、物件のおすすめ度を示します。最高得点は100点で、スコアが高いほど、よりおすすめの物件と評価されています。
写真
契約条件
| 賃料 | 予想金額:127,000〜147,000円程度 | 管理費 | 予想金額:8,000〜12,000円程度 |
| 礼金 | 非公開(アーカイブ) | 敷金 | 非公開(アーカイブ) |
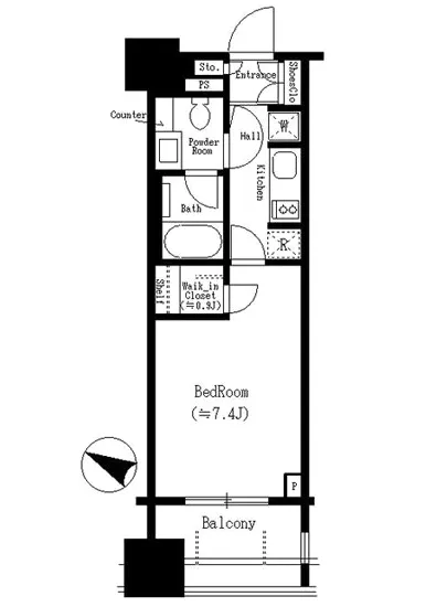
| フリーレント | なし | 平米数 | 25.37㎡ |
| 間取り | 1K | 大型収納 | WIC |
| 契約期間 |
| 方角 | 北東 |
| 更新料 | 契約形態 | 普通賃貸借契約 | |
| 取引態様 | 媒介 | 内見状況 | 入居中 |
| 入居時期 | 入居中 | SOHO・事務所 | |
| ペット | ペット可 | 間取り内訳 | 洋:7.4 |
| キャンペーン情報・備考 | 本情報は賃料改定交渉の資料作成、収益物件の利回り試算、周辺エリアや最寄り駅の坪単価分析、次回募集開始時期の予測などにご活用いただけます。 | ||
※「どの不動産に頼めばいいのか分からない」「信頼できる営業マンの話を聞きたい」「一番親切な会社と契約したい」とお悩みの方におすすめなのが「高級賃貸バイブル」です。
高級賃貸バイブルは業界10年以上の熟練スタッフ群がお客様ファーストで対応します。
下記ボタンから、まずは無料でご相談下さい。
※内覧をご希望の際には、どうぞ物件のエントランス前にてお待ち合わせくださいませ。ご内覧後は、同じ場所でお別れとさせていただきます。お客様のご都合に合わせたスムーズなご案内を心がけておりますので、ご質問等がございましたら何なりとお申し付けください。 物件概要
| 物件名 |
| 築年月 |
|
|---|---|---|---|
| 所在地 | |||
| 交通 | |||
| 総戸数 |
| 総階数 |
|
| 構造 |
| ||
地図
物件までの道のりは、「拡大地図を表示」をクリックしてナビ機能をご利用ください。
部屋設備













建物設備

TVモニターホン

エレベーター

オートロック

宅配ボックス

敷地内ゴミ置場

管理人

駐輪場
パークホームズ千代田淡路町の現在募集中のお部屋
- パークホームズ千代田淡路町 4階 25.37㎡ - 間取り: 1K+WIC - 賃料: 15万円





















