
| 賃料 | 予想金額:130,000〜150,000円程度 | 管理費 | 予想金額:3,000〜7,000円程度 |
| 礼金/敷金 | 非公開(アーカイブ) | 平米数 | 25.37㎡ |
| 初期費用概算(参考) | 目安:679,000〜779,000 円 | みなし賃料(月額・参考) | 147,271〜167,271 円 |
| 備考 | 本ページは過去募集のアーカイブです。表示の金額は周辺相場・過去募集を踏まえた参考レンジであり、実際の契約金額・条件ではありません。 | ||
※上記みなし賃料(月額)は仲介手数料割引・無料&キャッシュバックを加味した高級賃貸バイブル限定の金額です。一般的なみなし賃料とは異なります。
【建物ページ】パークホームズ千代田淡路町の詳細・最新空室はこちら▶▶選ばれる理由
仲介手数料無料・キャンペーン情報(毎月15名様限定)
〇仲介手数料割引キャンペーン
パークホームズ千代田淡路町 702の口コミ・レビュー
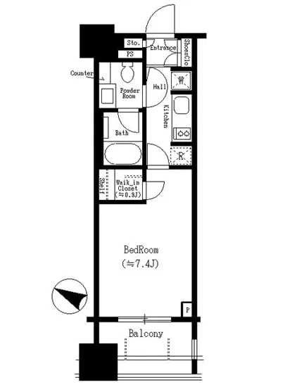
パークホームズ千代田淡路町 702、これはただの住まいではなく、あなたの夢の舞台が広がる場所です。702という数字が織り交ぜる生活は、特別なストーリーを紡ぐことができる贅沢な空間。南西を向いた窓から差し込む陽光は、毎朝あなたを穏やかに起こし、日中は心地よい光のシャワーが部屋を温かく包み込みます。この25.37㎡の広さがあなたのアトリエとなり、様々なインスピレーションが舞い降りることでしょう。
こ…パークホームズ千代田淡路町 702、これはただの住まいではなく、あなたの夢の舞台が広がる場所です。702という数字が織り交ぜる生活は、特別なストーリーを紡ぐことができる贅沢な空間。南西を向いた窓から差し込む陽光は、毎朝あなたを穏やかに起こし、日中は心地よい光のシャワーが部屋を温かく包み込みます。この25.37㎡の広さがあなたのアトリエとなり、様々なインスピレーションが舞い降りることでしょう。
この物件に一歩足を踏み入れた瞬間、まるで心の中に眠っていた美しい絵画が目覚めるかのようです。7.4帖の洋室は、あなたの個性を映し出すキャンバスとして機能し、アートやインテリアで自らのスタイルを表現することができます。たった一つのテーブルに花を飾り、小さなソファに腰かけて、ページをめくるその瞬間、静かな贅沢を感じることでしょう。
このパークホームズ千代田淡路町 702では、五感が活性化します。夕暮れ時、窓を開けると優雅に漂う街の香りは、あなたの鼓動を穏やかに整えてくれるでしょう。時折聞こえてくる街のざわめきは、まるで祝祭の音楽のように心を躍らせ、豊かな感情を呼び起こします。そんな中で自分自身を見つめ直す時間が、ひときわ貴重に感じられるはずです。
また、このパークホームズ千代田淡路町 702は、単に住居としての機能を超え、生活の質を向上させる設備も整っています。エレベーターでさっと上がり、オートロックが守る安全な環境で、毎日を心穏やかに過ごせるのです。宅配ボックスに届く愛しの小包を開ける瞬間、普段の生活が少しだけ特別になります。管理人の存在は、まるで優しい家族の一員のように、安心感をもたらしてくれます。
そして、パークホームズ千代田淡路町 702の立地は、歴史と文化が融合する東京の心臓部にあります。周辺には古くからの神社や文化施設が点在し、歴史の息吹を感じながら散策することができます。その歴史的な背景の中で、あなた自身の物語を築いていくことができるのです。
この特別な場所での生活は、まるで映画のワンシーンのように情景が浮かびます。朝、淹れたてのコーヒーを片手に、柔らかな光に包まれてリラックス。昼は、近くのカフェで友人と笑い合い、夜は心を豊かにする本に没頭する。毎日が新たな発見と感動の連続であり、あなた自身がその主人公となるのです。
パークホームズ千代田淡路町 702は、単なる住まいではなく、人生の舞台であり、心が安らぐ秘訣が詰まった特別な場所。ここでの生活が、あなたにとっての新たな旅の始まりとなることを心より願っています。あなたの生活が、この素晴らしい空間で輝くことをお約束いたします。この場所で、心豊かな日々をぜひ実現してください。
こ…パークホームズ千代田淡路町 702、これはただの住まいではなく、あなたの夢の舞台が広がる場所です。702という数字が織り交ぜる生活は、特別なストーリーを紡ぐことができる贅沢な空間。南西を向いた窓から差し込む陽光は、毎朝あなたを穏やかに起こし、日中は心地よい光のシャワーが部屋を温かく包み込みます。この25.37㎡の広さがあなたのアトリエとなり、様々なインスピレーションが舞い降りることでしょう。
この物件に一歩足を踏み入れた瞬間、まるで心の中に眠っていた美しい絵画が目覚めるかのようです。7.4帖の洋室は、あなたの個性を映し出すキャンバスとして機能し、アートやインテリアで自らのスタイルを表現することができます。たった一つのテーブルに花を飾り、小さなソファに腰かけて、ページをめくるその瞬間、静かな贅沢を感じることでしょう。
このパークホームズ千代田淡路町 702では、五感が活性化します。夕暮れ時、窓を開けると優雅に漂う街の香りは、あなたの鼓動を穏やかに整えてくれるでしょう。時折聞こえてくる街のざわめきは、まるで祝祭の音楽のように心を躍らせ、豊かな感情を呼び起こします。そんな中で自分自身を見つめ直す時間が、ひときわ貴重に感じられるはずです。
また、このパークホームズ千代田淡路町 702は、単に住居としての機能を超え、生活の質を向上させる設備も整っています。エレベーターでさっと上がり、オートロックが守る安全な環境で、毎日を心穏やかに過ごせるのです。宅配ボックスに届く愛しの小包を開ける瞬間、普段の生活が少しだけ特別になります。管理人の存在は、まるで優しい家族の一員のように、安心感をもたらしてくれます。
そして、パークホームズ千代田淡路町 702の立地は、歴史と文化が融合する東京の心臓部にあります。周辺には古くからの神社や文化施設が点在し、歴史の息吹を感じながら散策することができます。その歴史的な背景の中で、あなた自身の物語を築いていくことができるのです。
この特別な場所での生活は、まるで映画のワンシーンのように情景が浮かびます。朝、淹れたてのコーヒーを片手に、柔らかな光に包まれてリラックス。昼は、近くのカフェで友人と笑い合い、夜は心を豊かにする本に没頭する。毎日が新たな発見と感動の連続であり、あなた自身がその主人公となるのです。
パークホームズ千代田淡路町 702は、単なる住まいではなく、人生の舞台であり、心が安らぐ秘訣が詰まった特別な場所。ここでの生活が、あなたにとっての新たな旅の始まりとなることを心より願っています。あなたの生活が、この素晴らしい空間で輝くことをお約束いたします。この場所で、心豊かな日々をぜひ実現してください。
バイブルスコア
バイブルスコア: 21.4
平均的なスコアです。
※バイブルスコア詳細はこちら
バイブルスコアとは独自のAI機械学習技術を利用した物件評価システムで、物件のおすすめ度を示します。最高得点は100点で、スコアが高いほど、よりおすすめの物件と評価されています。
写真
契約条件
| 賃料 | 予想金額:130,000〜150,000円程度 | 管理費 | 予想金額:3,000〜7,000円程度 |
| 礼金 | 非公開(アーカイブ) | 敷金 | 非公開(アーカイブ) |
| フリーレント | なし | 平米数 | 25.37㎡ |
| 間取り | 1K | 大型収納 | WIC |
| 契約期間 |
| 方角 | 南西 |
| 更新料 | 契約形態 | 普通賃貸借契約 | |
| 取引態様 | 媒介 | 内見状況 | 入居中 |
| 入居時期 | 入居中 | SOHO・事務所 | |
| ペット | 間取り内訳 | 洋:7.4 | |
| キャンペーン情報・備考 | 本情報は賃料改定交渉の資料作成、収益物件の利回り試算、周辺エリアや最寄り駅の坪単価分析、次回募集開始時期の予測などにご活用いただけます。 | ||
※「どの不動産に頼めばいいのか分からない」「信頼できる営業マンの話を聞きたい」「一番親切な会社と契約したい」とお悩みの方におすすめなのが「高級賃貸バイブル」です。
高級賃貸バイブルは業界10年以上の熟練スタッフ群がお客様ファーストで対応します。
下記ボタンから、まずは無料でご相談下さい。
※内覧をご希望の際には、どうぞ物件のエントランス前にてお待ち合わせくださいませ。ご内覧後は、同じ場所でお別れとさせていただきます。お客様のご都合に合わせたスムーズなご案内を心がけておりますので、ご質問等がございましたら何なりとお申し付けください。 物件概要
| 物件名 |
| 築年月 |
|
|---|---|---|---|
| 所在地 | |||
| 交通 | |||
| 総戸数 |
| 総階数 |
|
| 構造 |
| ||
地図
物件までの道のりは、「拡大地図を表示」をクリックしてナビ機能をご利用ください。
部屋設備














建物設備

TVモニターホン

エレベーター

オートロック

宅配ボックス

敷地内ゴミ置場

管理人

駐輪場
パークホームズ千代田淡路町の現在募集中のお部屋
- パークホームズ千代田淡路町 4階 25.37㎡ - 間取り: 1K+WIC - 賃料: 15万円





















