
| 賃料 | 予想金額:84,000〜104,000円程度 | 管理費 | 予想金額:8,000〜12,000円程度 |
| 礼金/敷金 | 非公開(アーカイブ) | 平米数 | 26.88㎡ |
| 初期費用概算(参考) | 目安:215,820〜315,820 円 | みなし賃料(月額・参考) | 97,580〜117,580 円 |
| 備考 | 本ページは過去募集のアーカイブです。表示の金額は周辺相場・過去募集を踏まえた参考レンジであり、実際の契約金額・条件ではありません。 | ||
※上記みなし賃料(月額)は仲介手数料割引・無料&キャッシュバックを加味した高級賃貸バイブル限定の金額です。一般的なみなし賃料とは異なります。
【建物ページ】協和高輪マンションの詳細・最新空室はこちら▶▶選ばれる理由
仲介手数料無料・キャンペーン情報(毎月15名様限定)
〇引っ越しお祝い金114680円プレゼント(キャッシュバック)
〇仲介手数料無料キャンペーン
協和高輪マンション 1002の口コミ・レビュー
協和高輪マンション 1002は、あなたのライフスタイルを一変させる特別な場所です。ここはただの住まいではなく、芸術的な空間、心の拠り所です。上品な風情をまとったこの高級賃貸物件は、東京都港区高輪の中心に位置し、朝の光が優しく差し込む東向きの窓からは、都会の喧騒を忘れさせてくれる静寂が広がります。
このマンションが、まるで心を持った存在のようにあなたに語りかけます。「ここでの生活は、まるで映画のワ…協和高輪マンション 1002は、あなたのライフスタイルを一変させる特別な場所です。ここはただの住まいではなく、芸術的な空間、心の拠り所です。上品な風情をまとったこの高級賃貸物件は、東京都港区高輪の中心に位置し、朝の光が優しく差し込む東向きの窓からは、都会の喧騒を忘れさせてくれる静寂が広がります。
このマンションが、まるで心を持った存在のようにあなたに語りかけます。「ここでの生活は、まるで映画のワンシーンのよう。私の中で新しい物語を紡いでみませんか?」と、柔らかな光に包まれた洋室8.7帖が、心地よくあなたを迎え入れてくれます。ここでの朝は、目覚めの瞬間に感じる微かな香ばしいコーヒーの香りとともに始まります。一口目のほろ苦さが、あなたの心に柔らかな活力を注ぎ込み、日常の隙間に広がる静かな幸福感をもたらします。
協和高輪マンション 1002の24時間管理の安心感は、家にいる時だけでなく、外出時にもあなたを包み込みます。エレベーターに乗り込み、わずか1分ほどの距離で都営地下鉄浅草線の泉岳寺駅へと足を運ぶことができる利便性。この位置は、まるであなたの人生を次のステージへと導く劇場の扉のようです。
夜になれば、窓越しに見える夜景は、まるで宝石を散りばめたような美しさを放ち、ひと時の安らぎを与えてくれます。オートロックのセキュリティが、あなたのプライベートな時間を守り、宅配ボックスは仕事から帰った後の小さな喜びをもたらします。大切な荷物が、あなたを待っているその瞬間、心が躍ることでしょう。
敷地内のゴミ置場は、日常生活の一部として自然に存在感を放ちます。また、駐輪場があることで、近くのカフェや美術館へも自転車で気軽に足を運ぶことができ、新しい出会いや発見が待っています。高輪という歴史ある街並みは、あなたの生活に豊かな文化を奏でてくれることでしょう。
協和高輪マンション 1002は、ただの居住空間ではなく、あなたの人生の舞台です。ここで過ごす時間は、柔らかな朝の光に包まれ、視覚、聴覚、嗅覚、触覚、そして味覚を刺激し、心が豊かに満たされることでしょう。あなたがこの場所で生きることになると、毎日が新たな冒険の始まりです。私と共に、素敵な未来を創り上げていきませんか?ここには、そんな夢が詰まっています。
このマンションが、まるで心を持った存在のようにあなたに語りかけます。「ここでの生活は、まるで映画のワ…協和高輪マンション 1002は、あなたのライフスタイルを一変させる特別な場所です。ここはただの住まいではなく、芸術的な空間、心の拠り所です。上品な風情をまとったこの高級賃貸物件は、東京都港区高輪の中心に位置し、朝の光が優しく差し込む東向きの窓からは、都会の喧騒を忘れさせてくれる静寂が広がります。
このマンションが、まるで心を持った存在のようにあなたに語りかけます。「ここでの生活は、まるで映画のワンシーンのよう。私の中で新しい物語を紡いでみませんか?」と、柔らかな光に包まれた洋室8.7帖が、心地よくあなたを迎え入れてくれます。ここでの朝は、目覚めの瞬間に感じる微かな香ばしいコーヒーの香りとともに始まります。一口目のほろ苦さが、あなたの心に柔らかな活力を注ぎ込み、日常の隙間に広がる静かな幸福感をもたらします。
協和高輪マンション 1002の24時間管理の安心感は、家にいる時だけでなく、外出時にもあなたを包み込みます。エレベーターに乗り込み、わずか1分ほどの距離で都営地下鉄浅草線の泉岳寺駅へと足を運ぶことができる利便性。この位置は、まるであなたの人生を次のステージへと導く劇場の扉のようです。
夜になれば、窓越しに見える夜景は、まるで宝石を散りばめたような美しさを放ち、ひと時の安らぎを与えてくれます。オートロックのセキュリティが、あなたのプライベートな時間を守り、宅配ボックスは仕事から帰った後の小さな喜びをもたらします。大切な荷物が、あなたを待っているその瞬間、心が躍ることでしょう。
敷地内のゴミ置場は、日常生活の一部として自然に存在感を放ちます。また、駐輪場があることで、近くのカフェや美術館へも自転車で気軽に足を運ぶことができ、新しい出会いや発見が待っています。高輪という歴史ある街並みは、あなたの生活に豊かな文化を奏でてくれることでしょう。
協和高輪マンション 1002は、ただの居住空間ではなく、あなたの人生の舞台です。ここで過ごす時間は、柔らかな朝の光に包まれ、視覚、聴覚、嗅覚、触覚、そして味覚を刺激し、心が豊かに満たされることでしょう。あなたがこの場所で生きることになると、毎日が新たな冒険の始まりです。私と共に、素敵な未来を創り上げていきませんか?ここには、そんな夢が詰まっています。
バイブルスコア
バイブルスコア: 29.3
平均的なスコアです。
※バイブルスコア詳細はこちら
バイブルスコアとは独自のAI機械学習技術を利用した物件評価システムで、物件のおすすめ度を示します。最高得点は100点で、スコアが高いほど、よりおすすめの物件と評価されています。
写真
契約条件
| 賃料 | 予想金額:84,000〜104,000円程度 | 管理費 | 予想金額:8,000〜12,000円程度 |
| 礼金 | 非公開(アーカイブ) | 敷金 | 非公開(アーカイブ) |
| フリーレント | なし | 平米数 | 26.88㎡ |
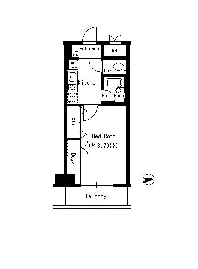
| 間取り | 1K | 大型収納 | |
| 契約期間 |
| 方角 | 東 |
| 更新料 | 契約形態 | 普通賃貸借契約 | |
| 取引態様 | 媒介 | 内見状況 | 入居中 |
| 入居時期 | 入居中 | SOHO・事務所 | |
| ペット | 間取り内訳 | 洋:8.7 | |
| キャンペーン情報・備考 | 本情報は賃料改定交渉の資料作成、収益物件の利回り試算、周辺エリアや最寄り駅の坪単価分析、次回募集開始時期の予測などにご活用いただけます。 | ||
※「どの不動産に頼めばいいのか分からない」「信頼できる営業マンの話を聞きたい」「一番親切な会社と契約したい」とお悩みの方におすすめなのが「高級賃貸バイブル」です。
高級賃貸バイブルは業界10年以上の熟練スタッフ群がお客様ファーストで対応します。
下記ボタンから、まずは無料でご相談下さい。
※内覧をご希望の際には、どうぞ物件のエントランス前にてお待ち合わせくださいませ。ご内覧後は、同じ場所でお別れとさせていただきます。お客様のご都合に合わせたスムーズなご案内を心がけておりますので、ご質問等がございましたら何なりとお申し付けください。 物件概要
| 物件名 |
| 築年月 |
|
|---|---|---|---|
| 所在地 | |||
| 交通 | |||
| 総戸数 |
| 総階数 |
|
| 構造 |
| ||
地図
物件までの道のりは、「拡大地図を表示」をクリックしてナビ機能をご利用ください。
部屋設備













建物設備

24時間管理

エレベーター

オートロック

宅配ボックス

敷地内ゴミ置場

駐輪場
協和高輪マンションの現在募集中のお部屋
- No rooms found for this property.






























