
| 賃料 | 予想金額:278,000〜298,000円程度 | 管理費 | 予想金額:8,000〜12,000円程度 |
| 礼金/敷金 | 非公開(アーカイブ) | 平米数 | 83.5㎡ |
| 初期費用概算(参考) | 目安:1,640,500〜1,740,500 円 | みなし賃料(月額・参考) | 317,219〜337,219 円 |
| 備考 | 本ページは過去募集のアーカイブです。表示の金額は周辺相場・過去募集を踏まえた参考レンジであり、実際の契約金額・条件ではありません。 | ||
※上記みなし賃料(月額)は仲介手数料割引・無料&キャッシュバックを加味した高級賃貸バイブル限定の金額です。一般的なみなし賃料とは異なります。
【建物ページ】西麻布BLESSの詳細・最新空室はこちら▶▶選ばれる理由
仲介手数料無料・キャンペーン情報(毎月15名様限定)
〇仲介手数料割引キャンペーン
西麻布BLESS 112の口コミ・レビュー
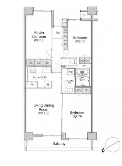
西麻布BLESS 112は、ただの高級賃貸物件ではなく、あなたの人生を彩る特別な舞台です。東京都港区西麻布3-12-12に静かに佇むこの住まいは、北西の方角に面し、光と風が心地よく通り抜ける場所に位置しています。83.5㎡の広さを誇り、3LDKの間取りは、まるで美術館の廊下のようにそれぞれの空間を優雅に分け、住む人に個々の物語を語りかけます。
想像してみてください。朝日が優しく差し込む洋室8.7…西麻布BLESS 112は、ただの高級賃貸物件ではなく、あなたの人生を彩る特別な舞台です。東京都港区西麻布3-12-12に静かに佇むこの住まいは、北西の方角に面し、光と風が心地よく通り抜ける場所に位置しています。83.5㎡の広さを誇り、3LDKの間取りは、まるで美術館の廊下のようにそれぞれの空間を優雅に分け、住む人に個々の物語を語りかけます。
想像してみてください。朝日が優しく差し込む洋室8.7帖で、目をこすりながら、今日の予定を考える。そこには、開放感あふれる窓から見える西麻布の街並みと、スカイツリーの姿がちょっとだけ目に入ります。コーヒーの香りが漂い始めるキッチン2.8帖で、あなたの一日が始まります。その香りは、朝の静けさを包み込み、味覚を刺激し、あなたを元気にしてくれることでしょう。
リビングダイニング11.9帖では、家族や友人との集いが待っています。ふかふかのソファに身を沈め、目の前のストーリーが、訪れる人々によって織り成されていく。窓の外からは、街の喧騒を少し遠くに感じながら、あなたの世界はここにしかない特別な時を刻み続けます。若々しいエネルギーを持つこの街は、アートやファッション、文化が息づく場所。西麻布の洗練された雰囲気が、あなたのライフスタイルにさらなる深みを与えます。
この住まいの魅力は、建物を構成するすべての要素にも及びます。エレベーターでの移動さえも、まるで特別なアトラクションの一環のように感じられ、オートロックによる安心感は、まるで全ての秘密を守ってくれる忠実な番犬のようです。宅配ボックスがあれば、忙しいあなただけの特別な時間を無駄にすることもなく、ここでの生活を豊かにしてくれます。
西麻布BLESS 112は、住む人の感覚を刺激し、心に響くストーリーを紡ぎ出す場なのです。夜が訪れると、深い静寂の中でささやくような街の音が、あなたの心を落ち着けてくれます。さらには、周囲に点在するアートギャラリーやお洒落なカフェが、あなたの感性を豊かにし、日々の生活に新たなインスピレーションをもたらしてくれます。
この特別な空間、西麻布BLESS 112での生活が、あなたにとっての新たな物語の始まりとなることを、心から願っています。芸術と文化が息づくこの地で、一緒にその物語を紡いでいく感動を、ぜひとも味わっていただきたいと願うばかりです。あなたの新しい生活が、ここから始まります。
想像してみてください。朝日が優しく差し込む洋室8.7…西麻布BLESS 112は、ただの高級賃貸物件ではなく、あなたの人生を彩る特別な舞台です。東京都港区西麻布3-12-12に静かに佇むこの住まいは、北西の方角に面し、光と風が心地よく通り抜ける場所に位置しています。83.5㎡の広さを誇り、3LDKの間取りは、まるで美術館の廊下のようにそれぞれの空間を優雅に分け、住む人に個々の物語を語りかけます。
想像してみてください。朝日が優しく差し込む洋室8.7帖で、目をこすりながら、今日の予定を考える。そこには、開放感あふれる窓から見える西麻布の街並みと、スカイツリーの姿がちょっとだけ目に入ります。コーヒーの香りが漂い始めるキッチン2.8帖で、あなたの一日が始まります。その香りは、朝の静けさを包み込み、味覚を刺激し、あなたを元気にしてくれることでしょう。
リビングダイニング11.9帖では、家族や友人との集いが待っています。ふかふかのソファに身を沈め、目の前のストーリーが、訪れる人々によって織り成されていく。窓の外からは、街の喧騒を少し遠くに感じながら、あなたの世界はここにしかない特別な時を刻み続けます。若々しいエネルギーを持つこの街は、アートやファッション、文化が息づく場所。西麻布の洗練された雰囲気が、あなたのライフスタイルにさらなる深みを与えます。
この住まいの魅力は、建物を構成するすべての要素にも及びます。エレベーターでの移動さえも、まるで特別なアトラクションの一環のように感じられ、オートロックによる安心感は、まるで全ての秘密を守ってくれる忠実な番犬のようです。宅配ボックスがあれば、忙しいあなただけの特別な時間を無駄にすることもなく、ここでの生活を豊かにしてくれます。
西麻布BLESS 112は、住む人の感覚を刺激し、心に響くストーリーを紡ぎ出す場なのです。夜が訪れると、深い静寂の中でささやくような街の音が、あなたの心を落ち着けてくれます。さらには、周囲に点在するアートギャラリーやお洒落なカフェが、あなたの感性を豊かにし、日々の生活に新たなインスピレーションをもたらしてくれます。
この特別な空間、西麻布BLESS 112での生活が、あなたにとっての新たな物語の始まりとなることを、心から願っています。芸術と文化が息づくこの地で、一緒にその物語を紡いでいく感動を、ぜひとも味わっていただきたいと願うばかりです。あなたの新しい生活が、ここから始まります。
バイブルスコア
バイブルスコア: 42.6
条件のいい物件です、引っ越しが2か月以内の場合は仮申し込みを検討すべき物件です。
※バイブルスコア詳細はこちら
バイブルスコアとは独自のAI機械学習技術を利用した物件評価システムで、物件のおすすめ度を示します。最高得点は100点で、スコアが高いほど、よりおすすめの物件と評価されています。
写真
契約条件
| 賃料 | 予想金額:278,000〜298,000円程度 | 管理費 | 予想金額:8,000〜12,000円程度 |
| 礼金 | 非公開(アーカイブ) | 敷金 | 非公開(アーカイブ) |
| フリーレント | なし | 平米数 | 83.5㎡ |
| 間取り | 3LDK | 大型収納 | |
| 契約期間 |
| 方角 | 北西 |
| 更新料 | 契約形態 | 普通賃貸借契約 | |
| 取引態様 | 媒介 | 内見状況 | 入居中 |
| 入居時期 | 入居中 | SOHO・事務所 | |
| ペット | ペット可 | 間取り内訳 | 洋:8.7 洋:8.3 洋:6.1 LD:11.9 K:2.8 |
| キャンペーン情報・備考 | 本情報は賃料改定交渉の資料作成、収益物件の利回り試算、周辺エリアや最寄り駅の坪単価分析、次回募集開始時期の予測などにご活用いただけます。 | ||
※「どの不動産に頼めばいいのか分からない」「信頼できる営業マンの話を聞きたい」「一番親切な会社と契約したい」とお悩みの方におすすめなのが「高級賃貸バイブル」です。
高級賃貸バイブルは業界10年以上の熟練スタッフ群がお客様ファーストで対応します。
下記ボタンから、まずは無料でご相談下さい。
※内覧をご希望の際には、どうぞ物件のエントランス前にてお待ち合わせくださいませ。ご内覧後は、同じ場所でお別れとさせていただきます。お客様のご都合に合わせたスムーズなご案内を心がけておりますので、ご質問等がございましたら何なりとお申し付けください。 物件概要
| 物件名 |
| 築年月 |
|
|---|---|---|---|
| 所在地 | |||
| 交通 | |||
| 総戸数 |
| 総階数 |
|
| 構造 |
| ||
地図
物件までの道のりは、「拡大地図を表示」をクリックしてナビ機能をご利用ください。
部屋設備
















建物設備

TVモニターホン

エレベーター

オートロック

宅配ボックス

敷地内ゴミ置場

駐車場平置き

駐輪場
西麻布BLESSの現在募集中のお部屋
- No rooms found for this property.





















