
| 賃料 | 予想金額:317,000〜337,000円程度 | 管理費 | 予想金額:8,000〜12,000円程度 |
| 礼金/敷金 | 非公開(アーカイブ) | 平米数 | 83.1㎡ |
| 初期費用概算(参考) | 目安:1,855,000〜1,955,000 円 | みなし賃料(月額・参考) | 359,875〜379,875 円 |
| 備考 | 本ページは過去募集のアーカイブです。表示の金額は周辺相場・過去募集を踏まえた参考レンジであり、実際の契約金額・条件ではありません。 | ||
※上記みなし賃料(月額)は仲介手数料割引・無料&キャッシュバックを加味した高級賃貸バイブル限定の金額です。一般的なみなし賃料とは異なります。
【建物ページ】西麻布BLESSの詳細・最新空室はこちら▶▶選ばれる理由
仲介手数料無料・キャンペーン情報(毎月15名様限定)
〇仲介手数料割引キャンペーン
西麻布BLESS 703の口コミ・レビュー
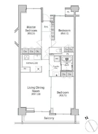
西麻布BLESS 703。ここはただの住まいではありません。まるで洗練されたアート作品のように、あなたの生活空間へと色彩を与える存在です。東京都港区西麻布の静謐な地に佇むこの物件は、南向きの陽光をたっぷりと浴びる優雅な隠れ家。専有面積83.1㎡の心地よい広がりの中に、3つの洋室(洋:8.7帖、洋:8.2帖、洋:6.1帖)と開放的なLDK(11.8帖)が配されています。心地よい空気が流れるこの場所は…西麻布BLESS 703。ここはただの住まいではありません。まるで洗練されたアート作品のように、あなたの生活空間へと色彩を与える存在です。東京都港区西麻布の静謐な地に佇むこの物件は、南向きの陽光をたっぷりと浴びる優雅な隠れ家。専有面積83.1㎡の心地よい広がりの中に、3つの洋室(洋:8.7帖、洋:8.2帖、洋:6.1帖)と開放的なLDK(11.8帖)が配されています。心地よい空気が流れるこの場所は、まるで映画のワンシーンを切り取ったように、日常を特別なものに変えていくでしょう。
朝日が窓から差し込み、コーヒーの香りが漂う中、あなたは新しい一日の始まりを迎えます。リビングの広々とした空間で、朝食を楽しみながら、サウンドトラックのように流れる街の喧噪を耳にします。エレガントなデザインが施されたこの住まいは、あなたを包み込む安らぎに満ちています。TVモニターホンやオートロックなど、現代の利便性も兼ね備えつつ、デザイナーズならではの美しさが随所に輝いています。ここでは、毎日が特別な一日として、あなたを迎え入れるのです。
日々の生活の中で、友人たちが集うパーティーの場面を想像してみてください。LDKでの温かいおしゃべりや笑い声が響き、お料理の香ばしい香りが漂う中、ゲストたちがあなたのセンスに感嘆の声を上げるでしょう。宅配ボックスや駐輪場、敷地内ゴミ置場といった設備は、まるであなたの生活をサポートする忠実な友のように寄り添い、ストレスのない安心感をもたらします。
この場所は、特別な歴史と文化に囲まれています。西麻布の街並みは、街に息づくアートや洗練されたカフェ、ギャラリーに満ち、あなたの感性を刺激してくれることでしょう。このエリアの奥深い魅力が、日々の生活に豊かさを加え、心の滋養となります。古き良き日本の風情とモダンな生活様式が融合したこの地で、豊かな時間を過ごすことができるのです。
入居後、窓の外に広がる景色を眺めながら、何気ない瞬間にも美を見出すことができるでしょう。南からの風が心地よく流れ込み、耳をすませば、街の鼓動が聞こえてきます。大切な人と共に過ごす至福の時間、気持ちの良い休日、そして美しい思い出が、この場所で育まれるのです。
西麻布BLESS 703は、ただの住所ではなく、あなたの新しい物語が始まる場。大切な人生の舞台として、ふさわしい選択となることでしょう。築き上げる生活、その全てがここから始まるのです。あなたの心がこの地に根付く様を、静かに見守るこの物件は、まるで愛情深い友人のように、あなたを迎え入れる準備を整えています。どうぞ、この魅惑的な空間に足を踏み入れ、あなた自身の物語を紡いでいってください。
朝日が窓から差し込み、コーヒーの香りが漂う中、あなたは新しい一日の始まりを迎えます。リビングの広々とした空間で、朝食を楽しみながら、サウンドトラックのように流れる街の喧噪を耳にします。エレガントなデザインが施されたこの住まいは、あなたを包み込む安らぎに満ちています。TVモニターホンやオートロックなど、現代の利便性も兼ね備えつつ、デザイナーズならではの美しさが随所に輝いています。ここでは、毎日が特別な一日として、あなたを迎え入れるのです。
日々の生活の中で、友人たちが集うパーティーの場面を想像してみてください。LDKでの温かいおしゃべりや笑い声が響き、お料理の香ばしい香りが漂う中、ゲストたちがあなたのセンスに感嘆の声を上げるでしょう。宅配ボックスや駐輪場、敷地内ゴミ置場といった設備は、まるであなたの生活をサポートする忠実な友のように寄り添い、ストレスのない安心感をもたらします。
この場所は、特別な歴史と文化に囲まれています。西麻布の街並みは、街に息づくアートや洗練されたカフェ、ギャラリーに満ち、あなたの感性を刺激してくれることでしょう。このエリアの奥深い魅力が、日々の生活に豊かさを加え、心の滋養となります。古き良き日本の風情とモダンな生活様式が融合したこの地で、豊かな時間を過ごすことができるのです。
入居後、窓の外に広がる景色を眺めながら、何気ない瞬間にも美を見出すことができるでしょう。南からの風が心地よく流れ込み、耳をすませば、街の鼓動が聞こえてきます。大切な人と共に過ごす至福の時間、気持ちの良い休日、そして美しい思い出が、この場所で育まれるのです。
西麻布BLESS 703は、ただの住所ではなく、あなたの新しい物語が始まる場。大切な人生の舞台として、ふさわしい選択となることでしょう。築き上げる生活、その全てがここから始まるのです。あなたの心がこの地に根付く様を、静かに見守るこの物件は、まるで愛情深い友人のように、あなたを迎え入れる準備を整えています。どうぞ、この魅惑的な空間に足を踏み入れ、あなた自身の物語を紡いでいってください。
バイブルスコア
バイブルスコア: 21.4
平均的なスコアです。
※バイブルスコア詳細はこちら
バイブルスコアとは独自のAI機械学習技術を利用した物件評価システムで、物件のおすすめ度を示します。最高得点は100点で、スコアが高いほど、よりおすすめの物件と評価されています。
写真
契約条件
| 賃料 | 予想金額:317,000〜337,000円程度 | 管理費 | 予想金額:8,000〜12,000円程度 |
| 礼金 | 非公開(アーカイブ) | 敷金 | 非公開(アーカイブ) |
| フリーレント | なし | 平米数 | 83.1㎡ |
| 間取り | 3LDK | 大型収納 | |
| 契約期間 |
| 方角 | 南 |
| 更新料 | 契約形態 | 普通賃貸借契約 | |
| 取引態様 | 媒介 | 内見状況 | 入居中 |
| 入居時期 | 入居中 | SOHO・事務所 | |
| ペット | ペット可 | 間取り内訳 | 洋:8.7 洋:8.2 洋:6.1 LDK:11.8 |
| キャンペーン情報・備考 | 本情報は賃料改定交渉の資料作成、収益物件の利回り試算、周辺エリアや最寄り駅の坪単価分析、次回募集開始時期の予測などにご活用いただけます。 | ||
※「どの不動産に頼めばいいのか分からない」「信頼できる営業マンの話を聞きたい」「一番親切な会社と契約したい」とお悩みの方におすすめなのが「高級賃貸バイブル」です。
高級賃貸バイブルは業界10年以上の熟練スタッフ群がお客様ファーストで対応します。
下記ボタンから、まずは無料でご相談下さい。
※内覧をご希望の際には、どうぞ物件のエントランス前にてお待ち合わせくださいませ。ご内覧後は、同じ場所でお別れとさせていただきます。お客様のご都合に合わせたスムーズなご案内を心がけておりますので、ご質問等がございましたら何なりとお申し付けください。 物件概要
| 物件名 |
| 築年月 |
|
|---|---|---|---|
| 所在地 | |||
| 交通 | |||
| 総戸数 |
| 総階数 |
|
| 構造 |
| ||
地図
物件までの道のりは、「拡大地図を表示」をクリックしてナビ機能をご利用ください。
部屋設備
















建物設備

TVモニターホン

エレベーター

オートロック

宅配ボックス

敷地内ゴミ置場

駐車場平置き

駐輪場
西麻布BLESSの現在募集中のお部屋
- No rooms found for this property.





















