
| 賃料 | 予想金額:325,000〜345,000円程度 | 管理費 | 予想金額:8,000〜12,000円程度 |
| 礼金/敷金 | 非公開(アーカイブ) | 平米数 | 83.1㎡ |
| 初期費用概算(参考) | 目安:1,899,000〜1,999,000 円 | みなし賃料(月額・参考) | 368,625〜388,625 円 |
| 備考 | 本ページは過去募集のアーカイブです。表示の金額は周辺相場・過去募集を踏まえた参考レンジであり、実際の契約金額・条件ではありません。 | ||
※上記みなし賃料(月額)は仲介手数料割引・無料&キャッシュバックを加味した高級賃貸バイブル限定の金額です。一般的なみなし賃料とは異なります。
【建物ページ】西麻布BLESSの詳細・最新空室はこちら▶▶選ばれる理由
仲介手数料無料・キャンペーン情報(毎月15名様限定)
〇仲介手数料割引キャンペーン
西麻布BLESS 902の口コミ・レビュー
西麻布BLESS 902。東京の洗練された文化とスタイルが見事に融合したこの物件は、まるで一流のアート作品のように、住む人々に優雅な生活をもたらします。高層ビル群の中に佇むこの家は、特別な存在感を放ち、あなたを新たな物語の主人公にするための舞台を用意しています。
902号室のドアを開ければ、そこには南向きの光が優しく注ぎ込み、心地よい温もりが広がります。83.1㎡の空間は、まるで空を舞う雲のよう…西麻布BLESS 902。東京の洗練された文化とスタイルが見事に融合したこの物件は、まるで一流のアート作品のように、住む人々に優雅な生活をもたらします。高層ビル群の中に佇むこの家は、特別な存在感を放ち、あなたを新たな物語の主人公にするための舞台を用意しています。
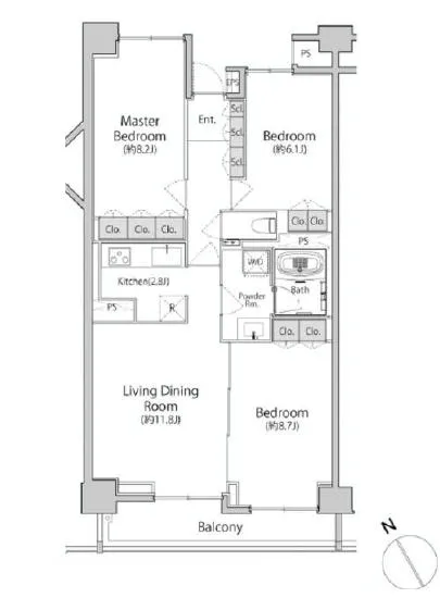
902号室のドアを開ければ、そこには南向きの光が優しく注ぎ込み、心地よい温もりが広がります。83.1㎡の空間は、まるで空を舞う雲のように自由自在なレイアウトを提供し、LDK11.8帖の広さは、まるで親しい友人たちとの笑い声が響くカフェのような温かな集いの場を作り出します。居心地の良い洋室は、8.7帖、8.2帖、6.1帖と多様な空間を提供し、それぞれが異なるシーンを演出します。朝の光を浴びながら目覚めた朝食の香ばしい香り、夕暮れ時のワインの甘い香り、夜空の星を眺めながらの心地よい静けさを、五感で体感していただけます。
この空間は、あなたの創造力を刺激し、思い描く理想のライフスタイルを実現するためのキャンバスとなります。オートロックで厳重に守られた安全な環境に、エレベーターで軽やかにアクセスできるとは、まるで特別な招待状を持っているような特権です。また、宅配ボックスの存在は、忙しい日常の中での小さな楽しみをも提供してくれます。デザイナーズの魅力を兼ね備えたこの住まいは、まさにあなたの日常を贅沢に彩るアクセサリーです。
さらに、西麻布BLESS 902はその周辺環境も特筆すべきものがあります。東京メトロ日比谷線の広尾駅までの徒歩5分という立地は、都市の喧騒から一歩離れた静寂のオアシスを提供します。近隣には、アートギャラリーや高級レストラン、洗練されたブティックが軒を連ね、まるで美術館のような日常を楽しむことができます。歴史ある街並みを散策しながら、心に残る一瞬を切り取ることができるのは、この特別な場所ならではの贅沢です。
西麻布BLESS 902は、単なる住まいではなく、まるで映画のワンシーンの中で生きているかのような感覚を与えてくれる特別な空間です。あなたにしか作り出せない物語が、ここから始まります。心躍る瞬間を共に分かち合うために、この美しい場所にあなたの足を踏み入れてみてください。新しい生活の幕開けが、待っています。
902号室のドアを開ければ、そこには南向きの光が優しく注ぎ込み、心地よい温もりが広がります。83.1㎡の空間は、まるで空を舞う雲のよう…西麻布BLESS 902。東京の洗練された文化とスタイルが見事に融合したこの物件は、まるで一流のアート作品のように、住む人々に優雅な生活をもたらします。高層ビル群の中に佇むこの家は、特別な存在感を放ち、あなたを新たな物語の主人公にするための舞台を用意しています。
902号室のドアを開ければ、そこには南向きの光が優しく注ぎ込み、心地よい温もりが広がります。83.1㎡の空間は、まるで空を舞う雲のように自由自在なレイアウトを提供し、LDK11.8帖の広さは、まるで親しい友人たちとの笑い声が響くカフェのような温かな集いの場を作り出します。居心地の良い洋室は、8.7帖、8.2帖、6.1帖と多様な空間を提供し、それぞれが異なるシーンを演出します。朝の光を浴びながら目覚めた朝食の香ばしい香り、夕暮れ時のワインの甘い香り、夜空の星を眺めながらの心地よい静けさを、五感で体感していただけます。
この空間は、あなたの創造力を刺激し、思い描く理想のライフスタイルを実現するためのキャンバスとなります。オートロックで厳重に守られた安全な環境に、エレベーターで軽やかにアクセスできるとは、まるで特別な招待状を持っているような特権です。また、宅配ボックスの存在は、忙しい日常の中での小さな楽しみをも提供してくれます。デザイナーズの魅力を兼ね備えたこの住まいは、まさにあなたの日常を贅沢に彩るアクセサリーです。
さらに、西麻布BLESS 902はその周辺環境も特筆すべきものがあります。東京メトロ日比谷線の広尾駅までの徒歩5分という立地は、都市の喧騒から一歩離れた静寂のオアシスを提供します。近隣には、アートギャラリーや高級レストラン、洗練されたブティックが軒を連ね、まるで美術館のような日常を楽しむことができます。歴史ある街並みを散策しながら、心に残る一瞬を切り取ることができるのは、この特別な場所ならではの贅沢です。
西麻布BLESS 902は、単なる住まいではなく、まるで映画のワンシーンの中で生きているかのような感覚を与えてくれる特別な空間です。あなたにしか作り出せない物語が、ここから始まります。心躍る瞬間を共に分かち合うために、この美しい場所にあなたの足を踏み入れてみてください。新しい生活の幕開けが、待っています。
バイブルスコア
バイブルスコア: 18.8
高級な物件でない場合は割高な物件です。。
※バイブルスコア詳細はこちら
バイブルスコアとは独自のAI機械学習技術を利用した物件評価システムで、物件のおすすめ度を示します。最高得点は100点で、スコアが高いほど、よりおすすめの物件と評価されています。
写真
契約条件
| 賃料 | 予想金額:325,000〜345,000円程度 | 管理費 | 予想金額:8,000〜12,000円程度 |
| 礼金 | 非公開(アーカイブ) | 敷金 | 非公開(アーカイブ) |
| フリーレント | なし | 平米数 | 83.1㎡ |
| 間取り | 3LDK | 大型収納 | |
| 契約期間 |
| 方角 | 南 |
| 更新料 | 契約形態 | 普通賃貸借契約 | |
| 取引態様 | 媒介 | 内見状況 | 入居中 |
| 入居時期 | 入居中 | SOHO・事務所 | |
| ペット | ペット可 | 間取り内訳 | 洋:8.7 洋:8.2 洋:6.1 LDK:11.8 |
| キャンペーン情報・備考 | 本情報は賃料改定交渉の資料作成、収益物件の利回り試算、周辺エリアや最寄り駅の坪単価分析、次回募集開始時期の予測などにご活用いただけます。 | ||
※「どの不動産に頼めばいいのか分からない」「信頼できる営業マンの話を聞きたい」「一番親切な会社と契約したい」とお悩みの方におすすめなのが「高級賃貸バイブル」です。
高級賃貸バイブルは業界10年以上の熟練スタッフ群がお客様ファーストで対応します。
下記ボタンから、まずは無料でご相談下さい。
※内覧をご希望の際には、どうぞ物件のエントランス前にてお待ち合わせくださいませ。ご内覧後は、同じ場所でお別れとさせていただきます。お客様のご都合に合わせたスムーズなご案内を心がけておりますので、ご質問等がございましたら何なりとお申し付けください。 物件概要
| 物件名 |
| 築年月 |
|
|---|---|---|---|
| 所在地 | |||
| 交通 | |||
| 総戸数 |
| 総階数 |
|
| 構造 |
| ||
地図
物件までの道のりは、「拡大地図を表示」をクリックしてナビ機能をご利用ください。
部屋設備
















建物設備

TVモニターホン

エレベーター

オートロック

宅配ボックス

敷地内ゴミ置場

駐車場平置き

駐輪場
西麻布BLESSの現在募集中のお部屋
- No rooms found for this property.





















