
| 賃料 | 予想金額:140,000〜160,000円程度 | 管理費 | 予想金額:18,000〜22,000円程度 |
| 礼金/敷金 | 非公開(アーカイブ) | 平米数 | 30.38㎡ |
| 初期費用概算(参考) | 目安:629,500〜729,500 円 | みなし賃料(月額・参考) | 171,031〜191,031 円 |
| 備考 | 本ページは過去募集のアーカイブです。表示の金額は周辺相場・過去募集を踏まえた参考レンジであり、実際の契約金額・条件ではありません。 | ||
※上記みなし賃料(月額)は仲介手数料割引・無料&キャッシュバックを加味した高級賃貸バイブル限定の金額です。一般的なみなし賃料とは異なります。
【建物ページ】ズーム碑文谷の詳細・最新空室はこちら▶▶選ばれる理由
仲介手数料無料・キャンペーン情報(毎月15名様限定)
〇仲介手数料割引キャンペーン
ズーム碑文谷 102の口コミ・レビュー
ズーム碑文谷 102。この物件は、ただの住まいではなく、あなたの人生を豊かに彩る舞台となることでしょう。東京都目黒区の静謐な環境に佇むこの物件は、まるで大切な宝物を抱えるような、優雅で落ち着いた佇まいを持っています。北西に面した窓からは、穏やかな日差しが差し込み、毎朝を特別な瞬間に変えてくれるでしょう。ここでは、単なる居住空間を超えた、心のオアシスがあなたを待っています。
専有面積は30.38㎡…ズーム碑文谷 102。この物件は、ただの住まいではなく、あなたの人生を豊かに彩る舞台となることでしょう。東京都目黒区の静謐な環境に佇むこの物件は、まるで大切な宝物を抱えるような、優雅で落ち着いた佇まいを持っています。北西に面した窓からは、穏やかな日差しが差し込み、毎朝を特別な瞬間に変えてくれるでしょう。ここでは、単なる居住空間を超えた、心のオアシスがあなたを待っています。
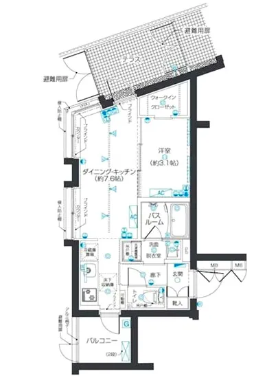
専有面積は30.38㎡、1DKの間取りには、生活の温もりが詰め込まれています。洋室3.1帖は、まるで穏やかな風が吹き抜ける広がりを感じさせ、心地よい寝息を運ぶ空間です。DK7.6帖は、まるで食卓が心を通わせる場となるようにデザインされ、風味豊かな料理の香りが漂い、人々の語らいを促します。家族や友人と共に過ごすひとときは、まるで映画の一場面のようです。温かい食事と共に、笑いが絶えないひとときをお楽しみください。
ズーム碑文谷 102では、生活の利便性も大切にされています。TVモニターホンでの安全なコミュニケーションは、まるで親しい友人を迎え入れるような心地よさをもたらし、エレベーターはまさにあなたの移動をスムーズにサポートする存在です。オートロックによって、安心感が生まれ、宅配ボックスは、いつでも大切な荷物を受け取ることができる利便性を提供しています。
そして、周囲の環境もまた、この物件の魅力の一部です。都立大学駅から徒歩10分という立地は、都心へのアクセスを叶えつつ、静かな住環境を享受することができます。周辺には緑豊かな公園や文化施設が点在し、散歩や芸術鑑賞の時間が心を潤します。歴史と芸術が息づく街、目黒区の一角で、あなたの心の充足感を満たしてくれるでしょう。
ズーム碑文谷 102は、あなたの心の声を聞き、あなたの生活を豊かにするためにデザインされています。季節の移ろいを感じながら、静寂と活気の両方を兼ね備えたこの場所で、あなたの新しい物語を始めてみませんか?四季折々の光や香り、音に包まれながら、あなた自身の感覚を研ぎ澄ませ、心豊かな毎日を過ごすことができるのです。ズーム碑文谷 102は、あなたを待っています。さあ、あなたの新しい人生が始まる場所へ、足を踏み入れてみてください。
専有面積は30.38㎡…ズーム碑文谷 102。この物件は、ただの住まいではなく、あなたの人生を豊かに彩る舞台となることでしょう。東京都目黒区の静謐な環境に佇むこの物件は、まるで大切な宝物を抱えるような、優雅で落ち着いた佇まいを持っています。北西に面した窓からは、穏やかな日差しが差し込み、毎朝を特別な瞬間に変えてくれるでしょう。ここでは、単なる居住空間を超えた、心のオアシスがあなたを待っています。
専有面積は30.38㎡、1DKの間取りには、生活の温もりが詰め込まれています。洋室3.1帖は、まるで穏やかな風が吹き抜ける広がりを感じさせ、心地よい寝息を運ぶ空間です。DK7.6帖は、まるで食卓が心を通わせる場となるようにデザインされ、風味豊かな料理の香りが漂い、人々の語らいを促します。家族や友人と共に過ごすひとときは、まるで映画の一場面のようです。温かい食事と共に、笑いが絶えないひとときをお楽しみください。
ズーム碑文谷 102では、生活の利便性も大切にされています。TVモニターホンでの安全なコミュニケーションは、まるで親しい友人を迎え入れるような心地よさをもたらし、エレベーターはまさにあなたの移動をスムーズにサポートする存在です。オートロックによって、安心感が生まれ、宅配ボックスは、いつでも大切な荷物を受け取ることができる利便性を提供しています。
そして、周囲の環境もまた、この物件の魅力の一部です。都立大学駅から徒歩10分という立地は、都心へのアクセスを叶えつつ、静かな住環境を享受することができます。周辺には緑豊かな公園や文化施設が点在し、散歩や芸術鑑賞の時間が心を潤します。歴史と芸術が息づく街、目黒区の一角で、あなたの心の充足感を満たしてくれるでしょう。
ズーム碑文谷 102は、あなたの心の声を聞き、あなたの生活を豊かにするためにデザインされています。季節の移ろいを感じながら、静寂と活気の両方を兼ね備えたこの場所で、あなたの新しい物語を始めてみませんか?四季折々の光や香り、音に包まれながら、あなた自身の感覚を研ぎ澄ませ、心豊かな毎日を過ごすことができるのです。ズーム碑文谷 102は、あなたを待っています。さあ、あなたの新しい人生が始まる場所へ、足を踏み入れてみてください。
バイブルスコア
バイブルスコア: 32.1
平均的なスコアです。
※バイブルスコア詳細はこちら
バイブルスコアとは独自のAI機械学習技術を利用した物件評価システムで、物件のおすすめ度を示します。最高得点は100点で、スコアが高いほど、よりおすすめの物件と評価されています。
写真
現在写真が登録されていません契約条件
| 賃料 | 予想金額:140,000〜160,000円程度 | 管理費 | 予想金額:18,000〜22,000円程度 |
| 礼金 | 非公開(アーカイブ) | 敷金 | 非公開(アーカイブ) |
| フリーレント | なし | 平米数 | 30.38㎡ |
| 間取り | 1DK | 大型収納 | WIC |
| 契約期間 | 2年 | 方角 | 北西 |
| 更新料 | 1ヶ月 | 契約形態 | 普通賃貸借契約 |
| 取引態様 | 媒介 | 内見状況 | 入居中 |
| 入居時期 | 入居中 | SOHO・事務所 | 不可 |
| ペット | ペット可 | 間取り内訳 | 洋:3.1 DK:7.6 |
| キャンペーン情報・備考 | 本情報は賃料改定交渉の資料作成、収益物件の利回り試算、周辺エリアや最寄り駅の坪単価分析、次回募集開始時期の予測などにご活用いただけます。 | ||
※「どの不動産に頼めばいいのか分からない」「信頼できる営業マンの話を聞きたい」「一番親切な会社と契約したい」とお悩みの方におすすめなのが「高級賃貸バイブル」です。
高級賃貸バイブルは業界10年以上の熟練スタッフ群がお客様ファーストで対応します。
下記ボタンから、まずは無料でご相談下さい。
※内覧をご希望の際には、どうぞ物件のエントランス前にてお待ち合わせくださいませ。ご内覧後は、同じ場所でお別れとさせていただきます。お客様のご都合に合わせたスムーズなご案内を心がけておりますので、ご質問等がございましたら何なりとお申し付けください。 物件概要
| 物件名 |
| 築年月 |
|
|---|---|---|---|
| 所在地 | |||
| 交通 | |||
| 総戸数 |
| 総階数 |
|
| 構造 |
| ||
地図
物件までの道のりは、「拡大地図を表示」をクリックしてナビ機能をご利用ください。
部屋設備














建物設備

TVモニターホン

エレベーター

オートロック

バイク置場

宅配ボックス

敷地内ゴミ置場

管理人

駐輪場
ズーム碑文谷の現在募集中のお部屋
- No rooms found for this property.
