
| 賃料 | 予想金額:140,000〜160,000円程度 | 管理費 | 予想金額:18,000〜22,000円程度 |
| 礼金/敷金 | 非公開(アーカイブ) | 平米数 | 30.38㎡ |
| 初期費用概算(参考) | 目安:511,500〜611,500 円 | みなし賃料(月額・参考) | 168,573〜188,573 円 |
| 備考 | 本ページは過去募集のアーカイブです。表示の金額は周辺相場・過去募集を踏まえた参考レンジであり、実際の契約金額・条件ではありません。 | ||
※上記みなし賃料(月額)は仲介手数料割引・無料&キャッシュバックを加味した高級賃貸バイブル限定の金額です。一般的なみなし賃料とは異なります。
【建物ページ】ズーム碑文谷の詳細・最新空室はこちら▶▶選ばれる理由
仲介手数料無料・キャンペーン情報(毎月15名様限定)
〇引っ越しお祝い金30000円プレゼント(キャッシュバック)
〇仲介手数料無料キャンペーン
ZOOM碑文谷 1階 30.38㎡の口コミ・レビュー
都立大学駅からの道程は、ゆったりとした散策が楽しめる静かな通り。北西の方角に位置する私の住まいは、穏やかな陽射しと心地よい風が入…ZOOM碑文谷 1階 30.38㎡。この名前を耳にした瞬間、あなたの心には新たな冒険への扉が開かれることでしょう。私、ZOOM碑文谷は、ただの賃貸物件ではありません。私の内部で繰り広げられる生活は、まるで映画の名シーンのように、あなたの日常に色彩を与えてくれるのです。
都立大学駅からの道程は、ゆったりとした散策が楽しめる静かな通り。北西の方角に位置する私の住まいは、穏やかな陽射しと心地よい風が入り込むことで、毎晩の安らぎを提供いたします。30.38㎡の空間は、あなたの想像力に翼を与え、自由自在なライフスタイルを描くことを許すキャンバスなのです。
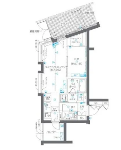
私の間取りは、DK7.6帖と洋室3.1帖からなっています。キッチンからは、香ばしい香りの立ち上る料理を楽しむことができ、心温まるディナーの準備が整うことを待ち遠しく思うことでしょう。食材が音を立てて鍋の中で踊る様子が目に浮かび、家族や友人とともに囲んだテーブルには笑い声が響き渡ります。その瞬間、時が止まったかのように感じることでしょう。壁を挟んだ洋室では、深い眠りに入る準備をしながら、夢の中の物語が静かに紡がれていくのです。
私の設備は、あなたの暮らしを豊かにするために整えられています。TVモニターホンが訪れる人々を優しく迎え入れ、エレベーターはゆったりとした時間を優雅に運びます。また、オートロックの扉があなたのプライバシーを守りつつ、バイクや自転車の置場も完備。宅配ボックスが不在時の心配を軽減し、敷地内ゴミ置場や駐輪場も整っているのです。
私の存在は、東京の喧騒から少しだけ離れた場所にある、穏やかなオアシスのようです。この目黒区碑文谷の地には、歴史や文化が息づいており、散歩がてらに立ち寄るおしゃれなカフェやアートギャラリーが点在しています。四季折々の景色を楽しむための散策コースも豊富で、心が弾むような出会いが待っています。
ZOOM碑文谷は、ただの住処ではなく、あなたの日常を演出する舞台なのです。住むたびに新たな物語が紡がれ、心に残る思い出がひとつずつ増えていくことでしょう。さあ、私と共に新たな生活の幕を開けましょう。あなたのご訪問を心よりお待ちしております。
バイブルスコア
バイブルスコア: 56.3
条件のいい物件です、引っ越しが2か月以内の場合は仮申し込みを検討すべき物件です。
このお部屋は、現在ご入居中のため空室情報はございません。ただし、将来的に募集が開始される際、バイブルスコアにおいて非常に高い評価が期待されます。特にご興味をお持ちの方は、今のうちにブックマークやお気に入りに登録していただくと、募集開始のお知らせをすぐに受け取ることができます。是非ともご検討くださいませ。
※バイブルスコア詳細はこちら
バイブルスコアとは独自のAI機械学習技術を利用した物件評価システムで、物件のおすすめ度を示します。最高得点は100点で、スコアが高いほど、よりおすすめの物件と評価されています。
写真
現在写真が登録されていません契約条件
| 賃料 | 予想金額:140,000〜160,000円程度 | 管理費 | 予想金額:18,000〜22,000円程度 |
| 礼金 | 非公開(アーカイブ) | 敷金 | 非公開(アーカイブ) |
| フリーレント | なし | 平米数 | 30.38㎡ |
| 間取り | 1DK+WIC | 大型収納 | WIC |
| 契約期間 | 2年 | 方角 | 北西 |
| 更新料 | 1ヶ月 | 契約形態 | 普通賃貸借契約 |
| 取引態様 | 媒介 | 内見状況 | 入居中 |
| 入居時期 | 入居中 | SOHO・事務所 | 不可 |
| ペット | 可 | 間取り内訳 | DK7.6帖 洋室3.1帖 |
| キャンペーン情報・備考 | 本情報は賃料改定交渉の資料作成、収益物件の利回り試算、周辺エリアや最寄り駅の坪単価分析、次回募集開始時期の予測などにご活用いただけます。 | ||
※「どの不動産に頼めばいいのか分からない」「信頼できる営業マンの話を聞きたい」「一番親切な会社と契約したい」とお悩みの方におすすめなのが「高級賃貸バイブル」です。
高級賃貸バイブルは業界10年以上の熟練スタッフ群がお客様ファーストで対応します。
下記ボタンから、まずは無料でご相談下さい。
※内覧をご希望の際には、どうぞ物件のエントランス前にてお待ち合わせくださいませ。ご内覧後は、同じ場所でお別れとさせていただきます。お客様のご都合に合わせたスムーズなご案内を心がけておりますので、ご質問等がございましたら何なりとお申し付けください。 物件概要
| 物件名 |
| 築年月 |
|
|---|---|---|---|
| 所在地 | |||
| 交通 | |||
| 総戸数 |
| 総階数 |
|
| 構造 |
| ||
地図
物件までの道のりは、「拡大地図を表示」をクリックしてナビ機能をご利用ください。
部屋設備












建物設備

TVモニターホン

エレベーター

オートロック

バイク置場

宅配ボックス

敷地内ゴミ置場

管理人

駐輪場
ズーム碑文谷の現在募集中のお部屋
- No rooms found for this property.
