
| 賃料 | 予想金額:222,000〜242,000円程度 | 管理費 | 予想金額:8,000〜12,000円程度 |
| 礼金/敷金 | 非公開(アーカイブ) | 平米数 | 44.18㎡ |
| 初期費用概算(参考) | 目安:885,000〜985,000 円 | みなし賃料(月額・参考) | 246,646〜266,646 円 |
| 備考 | 本ページは過去募集のアーカイブです。表示の金額は周辺相場・過去募集を踏まえた参考レンジであり、実際の契約金額・条件ではありません。 | ||
※上記みなし賃料(月額)は仲介手数料割引・無料&キャッシュバックを加味した高級賃貸バイブル限定の金額です。一般的なみなし賃料とは異なります。
【建物ページ】ズーム中目黒の詳細・最新空室はこちら▶▶選ばれる理由
仲介手数料無料・キャンペーン情報(毎月15名様限定)
〇仲介手数料割引キャンペーン
ズーム中目黒 402の口コミ・レビュー
ズーム中目黒 402。ここは、まるで都会の隠れ家のように、あなたを優雅な生活へと誘う場所です。この美しいマンションは、423㎡の広さを誇る1LDKの間取りで、特に心惹かれるのはその温かく迎えてくれる南西向きの窓から差し込む陽光です。日々の生活の中で、光が変わる瞬間をじっくりと楽しむことができ、まるで春の庭にいるかのようです。
ズーム中目黒 402は、あなたに語りかけます。「私の568帖のLDKで…ズーム中目黒 402。ここは、まるで都会の隠れ家のように、あなたを優雅な生活へと誘う場所です。この美しいマンションは、423㎡の広さを誇る1LDKの間取りで、特に心惹かれるのはその温かく迎えてくれる南西向きの窓から差し込む陽光です。日々の生活の中で、光が変わる瞬間をじっくりと楽しむことができ、まるで春の庭にいるかのようです。
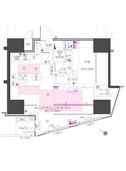
ズーム中目黒 402は、あなたに語りかけます。「私の568帖のLDKでは、友人との楽しい食事の時間はもちろん、心を癒す独りの読書の時間も、すべてが特別なものになるでしょう。」リビングルームは、12.4帖の広さを持ち、贅沢な布地のソファとお気に入りの書籍で飾られることでしょう。そして、目の前には美しい景色を見渡す窓があり、季節ごとに変わる東京の風景を楽しむことができます。
続いて、4.8帖の洋室は、まるで静かな隠れ家のように心地よいスペースです。夜が深まるにつれ、柔らかな灯りに包まれ、心の安らぎを与えてくれるでしょう。そこから漂うほんのりとしたラベンダーの香りが、あなたの眠りを穏やかに導きます。優雅にデザインされた空間の中で、目を閉じて耳を澄ませば、時折聞こえてくる都心の賑わいが、逆に心地よいBGMとして響くことでしょう。
ズーム中目黒 402は、ただの住まいではありません。ここは、目黒区という歴史的地域に位置し、文化的な香りを漂わせる特別な場所です。周囲には美術館やギャラリー、落ち着いたカフェが点在し、アートやデザインに触れる機会が豊富にあります。あなたの生活に彩りを与えるこれらの場所は、まるで美しい絵画のように、日常の中での新たな発見を約束します。
毎日、ズーム中目黒 402を出て行くたびに、あなたは自分のアートを見つける旅に出ることになります。文化豊かな街を歩けば、洗練されたカフェの香りや、人々の笑い声、そしてあらゆる美の形に触れることができます。賑わいを感じながらも、マンションに帰る度に、まるで優しい母の腕に抱かれるかのような安心感をもたらしてくれることでしょう。
さらに、ズーム中目黒 402は、充実した設備も誇っています。TVモニターホン、オートロック、宅配ボックスなど、現代の生活に欠かせない機能が揃い、心からの安心をもたらします。これらの要素が、あなたの日常を美しく、より豊かにするための大切なサポート役となります。
ズーム中目黒 402での生活は、まるで一篇の詩のように、あなたの心に響く瞬間を生み出してくれることでしょう。さあ、この特別な空間に身を委ね、新たな物語を紡いでみてはいかがでしょうか。あなたの新しい生活の舞台が、ここに待っています。
ズーム中目黒 402は、あなたに語りかけます。「私の568帖のLDKで…ズーム中目黒 402。ここは、まるで都会の隠れ家のように、あなたを優雅な生活へと誘う場所です。この美しいマンションは、423㎡の広さを誇る1LDKの間取りで、特に心惹かれるのはその温かく迎えてくれる南西向きの窓から差し込む陽光です。日々の生活の中で、光が変わる瞬間をじっくりと楽しむことができ、まるで春の庭にいるかのようです。
ズーム中目黒 402は、あなたに語りかけます。「私の568帖のLDKでは、友人との楽しい食事の時間はもちろん、心を癒す独りの読書の時間も、すべてが特別なものになるでしょう。」リビングルームは、12.4帖の広さを持ち、贅沢な布地のソファとお気に入りの書籍で飾られることでしょう。そして、目の前には美しい景色を見渡す窓があり、季節ごとに変わる東京の風景を楽しむことができます。
続いて、4.8帖の洋室は、まるで静かな隠れ家のように心地よいスペースです。夜が深まるにつれ、柔らかな灯りに包まれ、心の安らぎを与えてくれるでしょう。そこから漂うほんのりとしたラベンダーの香りが、あなたの眠りを穏やかに導きます。優雅にデザインされた空間の中で、目を閉じて耳を澄ませば、時折聞こえてくる都心の賑わいが、逆に心地よいBGMとして響くことでしょう。
ズーム中目黒 402は、ただの住まいではありません。ここは、目黒区という歴史的地域に位置し、文化的な香りを漂わせる特別な場所です。周囲には美術館やギャラリー、落ち着いたカフェが点在し、アートやデザインに触れる機会が豊富にあります。あなたの生活に彩りを与えるこれらの場所は、まるで美しい絵画のように、日常の中での新たな発見を約束します。
毎日、ズーム中目黒 402を出て行くたびに、あなたは自分のアートを見つける旅に出ることになります。文化豊かな街を歩けば、洗練されたカフェの香りや、人々の笑い声、そしてあらゆる美の形に触れることができます。賑わいを感じながらも、マンションに帰る度に、まるで優しい母の腕に抱かれるかのような安心感をもたらしてくれることでしょう。
さらに、ズーム中目黒 402は、充実した設備も誇っています。TVモニターホン、オートロック、宅配ボックスなど、現代の生活に欠かせない機能が揃い、心からの安心をもたらします。これらの要素が、あなたの日常を美しく、より豊かにするための大切なサポート役となります。
ズーム中目黒 402での生活は、まるで一篇の詩のように、あなたの心に響く瞬間を生み出してくれることでしょう。さあ、この特別な空間に身を委ね、新たな物語を紡いでみてはいかがでしょうか。あなたの新しい生活の舞台が、ここに待っています。
バイブルスコア
バイブルスコア: 32.4
平均的なスコアです。
※バイブルスコア詳細はこちら
バイブルスコアとは独自のAI機械学習技術を利用した物件評価システムで、物件のおすすめ度を示します。最高得点は100点で、スコアが高いほど、よりおすすめの物件と評価されています。
写真
現在写真が登録されていません契約条件
| 賃料 | 予想金額:222,000〜242,000円程度 | 管理費 | 予想金額:8,000〜12,000円程度 |
| 礼金 | 非公開(アーカイブ) | 敷金 | 非公開(アーカイブ) |
| フリーレント | なし | 平米数 | 44.18㎡ |
| 間取り | 1LDK | 大型収納 | WIC |
| 契約期間 | 2年 | 方角 | 南西 |
| 更新料 | 1ヶ月 | 契約形態 | 普通賃貸借契約 |
| 取引態様 | 媒介 | 内見状況 | 入居中 |
| 入居時期 | 入居中 | SOHO・事務所 | 不可 |
| ペット | ペット可 | 間取り内訳 | 洋:4.8 LDK:12.4 |
| キャンペーン情報・備考 | 本情報は賃料改定交渉の資料作成、収益物件の利回り試算、周辺エリアや最寄り駅の坪単価分析、次回募集開始時期の予測などにご活用いただけます。 | ||
※「どの不動産に頼めばいいのか分からない」「信頼できる営業マンの話を聞きたい」「一番親切な会社と契約したい」とお悩みの方におすすめなのが「高級賃貸バイブル」です。
高級賃貸バイブルは業界10年以上の熟練スタッフ群がお客様ファーストで対応します。
下記ボタンから、まずは無料でご相談下さい。
※内覧をご希望の際には、どうぞ物件のエントランス前にてお待ち合わせくださいませ。ご内覧後は、同じ場所でお別れとさせていただきます。お客様のご都合に合わせたスムーズなご案内を心がけておりますので、ご質問等がございましたら何なりとお申し付けください。 物件概要
| 物件名 |
| 築年月 |
|
|---|---|---|---|
| 所在地 | |||
| 交通 | |||
| 総戸数 |
| 総階数 |
|
| 構造 |
| ||
地図
物件までの道のりは、「拡大地図を表示」をクリックしてナビ機能をご利用ください。
部屋設備

















建物設備

TVモニターホン

エレベーター

オートロック

バイク置場

宅配ボックス

敷地内ゴミ置場

管理人

駐車場平置き

駐車場機械式

駐輪場
ズーム中目黒の現在募集中のお部屋
- ZOOM中目黒 7階 33.98㎡ - 間取り: 1LDK - 賃料: 17.2万円
