
| 賃料 | 予想金額:86,000〜106,000円程度 | 管理費 | 予想金額:10,000〜14,000円程度 |
| 礼金/敷金 | 非公開(アーカイブ) | 平米数 | 27.91㎡ |
| 初期費用概算(参考) | 目安:330,500〜430,500 円 | みなし賃料(月額・参考) | 103,927〜123,927 円 |
| 備考 | 本ページは過去募集のアーカイブです。表示の金額は周辺相場・過去募集を踏まえた参考レンジであり、実際の契約金額・条件ではありません。 | ||
※上記みなし賃料(月額)は仲介手数料割引・無料&キャッシュバックを加味した高級賃貸バイブル限定の金額です。一般的なみなし賃料とは異なります。
【建物ページ】フェニックス芝公園の詳細・最新空室はこちら▶▶選ばれる理由
仲介手数料無料・キャンペーン情報(毎月15名様限定)
〇引っ越しお祝い金10000円プレゼント(キャッシュバック)
〇仲介手数料無料キャンペーン
フェニックス芝公園 603の口コミ・レビュー
フェニックス芝公園 603、その名に秘められた物語は、あなたを魅了すること間違いなしの高級賃貸物件です。東京都港区芝3-6-16に位置し、南向きの窓からは日差しが優しく差し込み、あなたの心を温かく包み込むことでしょう。まるで朝の光が、静かに目を覚ます都市の息吹を感じさせるように、あなたの生活に新しいリズムをもたらしてくれます。
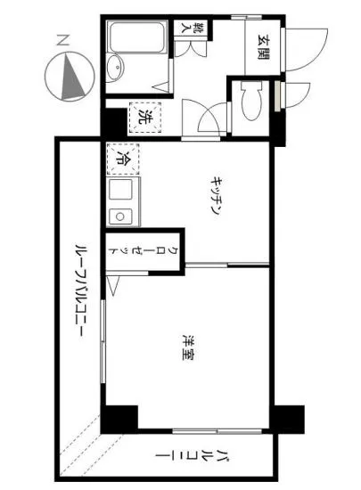
この魅力的な1DKは、専有面積27.91㎡の中に、あなたの夢が息づく…フェニックス芝公園 603、その名に秘められた物語は、あなたを魅了すること間違いなしの高級賃貸物件です。東京都港区芝3-6-16に位置し、南向きの窓からは日差しが優しく差し込み、あなたの心を温かく包み込むことでしょう。まるで朝の光が、静かに目を覚ます都市の息吹を感じさせるように、あなたの生活に新しいリズムをもたらしてくれます。
この魅力的な1DKは、専有面積27.91㎡の中に、あなたの夢が息づく空間を凝縮しています。洋室6.0帖とダイニングキッチン5.0帖は、まるで心を通わせる二人のように絶妙に調和し、生活の豊かさを育んでくれるでしょう。あなたがダイニングキッチンで香ばしいコーヒーの香りに包まれながら朝食を楽しむシーンは、まるで映画のワンシーンのようです。穏やかな風がカーテンを揺らし、外の緑がささやきかける一瞬、一日の始まりが心に響くことでしょう。
フェニックス芝公園 603は、24時間管理体制やオートロック、宅配ボックスなど、現代生活に必要不可欠な設備が整っています。まるで親友があなたを守ってくれているかのように、安心感に包まれることでしょう。エレベーターに乗って6階へ向かう瞬間、都会の喧騒から一歩離れた静かな隠れ家へと誘ってくれます。
この物件の魅力は、周辺環境にも溢れています。都営地下鉄三田線芝公園駅まで徒歩わずか2分という立地は、まるであなたの大切な時間を無駄にしないための贈り物のようです。芝公園は、歴史と緑が交錯する場所で、四季折々の美しい風景に心が躍ります。散歩道をゆったりと歩きながら、心地よい風の音や鳥のさえずりが、心に潤いをもたらしてくれるでしょう。
この空間での生活は、まるでアートのように美しく、一日一日が新たな発見に満ちています。お友達を招いての食事会や、自分自身を見つめる静かな時間、どちらもあなたの生活に彩りを与えます。フェニックス芝公園 603は、ただの住まいではなく、あなた自身を表現するキャンバスなのです。
生活の質を高めるための、すべての要素がこの物件には詰まっています。夜が訪れる頃、街灯が灯り出し、静寂の中で星空が顔を覗かせる瞬間、フェニックス芝公園 603はあなたに語りかけます。"さあ、あなたの物語を描き始めましょう"と。あなたがここで紡ぐ日々は、間違いなく特別なものになるでしょう。この場所での生活は、あなたの心を豊かにし、いつまでも思い出に残ることでしょう。さあ、あなたもこの物件の一部となり、この物語を共に描いてみませんか。
この魅力的な1DKは、専有面積27.91㎡の中に、あなたの夢が息づく…フェニックス芝公園 603、その名に秘められた物語は、あなたを魅了すること間違いなしの高級賃貸物件です。東京都港区芝3-6-16に位置し、南向きの窓からは日差しが優しく差し込み、あなたの心を温かく包み込むことでしょう。まるで朝の光が、静かに目を覚ます都市の息吹を感じさせるように、あなたの生活に新しいリズムをもたらしてくれます。
この魅力的な1DKは、専有面積27.91㎡の中に、あなたの夢が息づく空間を凝縮しています。洋室6.0帖とダイニングキッチン5.0帖は、まるで心を通わせる二人のように絶妙に調和し、生活の豊かさを育んでくれるでしょう。あなたがダイニングキッチンで香ばしいコーヒーの香りに包まれながら朝食を楽しむシーンは、まるで映画のワンシーンのようです。穏やかな風がカーテンを揺らし、外の緑がささやきかける一瞬、一日の始まりが心に響くことでしょう。
フェニックス芝公園 603は、24時間管理体制やオートロック、宅配ボックスなど、現代生活に必要不可欠な設備が整っています。まるで親友があなたを守ってくれているかのように、安心感に包まれることでしょう。エレベーターに乗って6階へ向かう瞬間、都会の喧騒から一歩離れた静かな隠れ家へと誘ってくれます。
この物件の魅力は、周辺環境にも溢れています。都営地下鉄三田線芝公園駅まで徒歩わずか2分という立地は、まるであなたの大切な時間を無駄にしないための贈り物のようです。芝公園は、歴史と緑が交錯する場所で、四季折々の美しい風景に心が躍ります。散歩道をゆったりと歩きながら、心地よい風の音や鳥のさえずりが、心に潤いをもたらしてくれるでしょう。
この空間での生活は、まるでアートのように美しく、一日一日が新たな発見に満ちています。お友達を招いての食事会や、自分自身を見つめる静かな時間、どちらもあなたの生活に彩りを与えます。フェニックス芝公園 603は、ただの住まいではなく、あなた自身を表現するキャンバスなのです。
生活の質を高めるための、すべての要素がこの物件には詰まっています。夜が訪れる頃、街灯が灯り出し、静寂の中で星空が顔を覗かせる瞬間、フェニックス芝公園 603はあなたに語りかけます。"さあ、あなたの物語を描き始めましょう"と。あなたがここで紡ぐ日々は、間違いなく特別なものになるでしょう。この場所での生活は、あなたの心を豊かにし、いつまでも思い出に残ることでしょう。さあ、あなたもこの物件の一部となり、この物語を共に描いてみませんか。
バイブルスコア
バイブルスコア: 41.1
条件のいい物件です、引っ越しが2か月以内の場合は仮申し込みを検討すべき物件です。
※バイブルスコア詳細はこちら
バイブルスコアとは独自のAI機械学習技術を利用した物件評価システムで、物件のおすすめ度を示します。最高得点は100点で、スコアが高いほど、よりおすすめの物件と評価されています。
写真
契約条件
| 賃料 | 予想金額:86,000〜106,000円程度 | 管理費 | 予想金額:10,000〜14,000円程度 |
| 礼金 | 非公開(アーカイブ) | 敷金 | 非公開(アーカイブ) |
| フリーレント | なし | 平米数 | 27.91㎡ |
| 間取り | 1DK | 大型収納 | |
| 契約期間 | 方角 | 南 | |
| 更新料 | 契約形態 | ||
| 取引態様 | 媒介 | 内見状況 | 入居中 |
| 入居時期 | 入居中 | SOHO・事務所 | |
| ペット | 間取り内訳 | 洋:6.0 DK:5.0 | |
| キャンペーン情報・備考 | 本情報は賃料改定交渉の資料作成、収益物件の利回り試算、周辺エリアや最寄り駅の坪単価分析、次回募集開始時期の予測などにご活用いただけます。 | ||
※「どの不動産に頼めばいいのか分からない」「信頼できる営業マンの話を聞きたい」「一番親切な会社と契約したい」とお悩みの方におすすめなのが「高級賃貸バイブル」です。
高級賃貸バイブルは業界10年以上の熟練スタッフ群がお客様ファーストで対応します。
下記ボタンから、まずは無料でご相談下さい。
※内覧をご希望の際には、どうぞ物件のエントランス前にてお待ち合わせくださいませ。ご内覧後は、同じ場所でお別れとさせていただきます。お客様のご都合に合わせたスムーズなご案内を心がけておりますので、ご質問等がございましたら何なりとお申し付けください。 物件概要
| 物件名 |
| 築年月 |
|
|---|---|---|---|
| 所在地 | |||
| 交通 | |||
| 総戸数 | 総階数 |
| |
| 構造 |
| ||
地図
物件までの道のりは、「拡大地図を表示」をクリックしてナビ機能をご利用ください。
部屋設備










建物設備

24時間管理

TVモニターホン

エレベーター

オートロック

宅配ボックス

敷地内ゴミ置場

駐輪場
フェニックス芝公園の現在募集中のお部屋
- No rooms found for this property.








