
| 賃料 | 予想金額:74,000〜94,000円程度 | 管理費 | 予想金額:4,000〜8,000円程度 |
| 礼金/敷金 | 非公開(アーカイブ) | 平米数 | 23.58㎡ |
| 初期費用概算(参考) | 目安:277,000〜377,000 円 | みなし賃料(月額・参考) | 85,063〜105,063 円 |
| 備考 | 本ページは過去募集のアーカイブです。表示の金額は周辺相場・過去募集を踏まえた参考レンジであり、実際の契約金額・条件ではありません。 | ||
※上記みなし賃料(月額)は仲介手数料割引・無料&キャッシュバックを加味した高級賃貸バイブル限定の金額です。一般的なみなし賃料とは異なります。
【建物ページ】フェニックス芝公園の詳細・最新空室はこちら▶▶選ばれる理由
仲介手数料無料・キャンペーン情報(毎月15名様限定)
〇仲介手数料割引キャンペーン
フェニックス芝公園 401の口コミ・レビュー
フェニックス芝公園 401。あなたとこの物件が遭遇する運命を感じさせる、特別な出会い。その扉を開ける瞬間、まるで映画のワンシーンに飛び込むかのような感覚が広がります。南向きの301号室は、陽の光を惜しみなく受け入れ、朝の柔らかな光が部屋を包み込むと、空気は金色に輝き、温かな雰囲気が漂います。落ち着いた色調の壁に映る光は、あなたの心を静め、安らぎへと導いてくれることでしょう。
この特別な空間は、全…フェニックス芝公園 401。あなたとこの物件が遭遇する運命を感じさせる、特別な出会い。その扉を開ける瞬間、まるで映画のワンシーンに飛び込むかのような感覚が広がります。南向きの301号室は、陽の光を惜しみなく受け入れ、朝の柔らかな光が部屋を包み込むと、空気は金色に輝き、温かな雰囲気が漂います。落ち着いた色調の壁に映る光は、あなたの心を静め、安らぎへと導いてくれることでしょう。
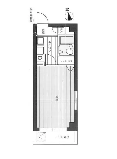
この特別な空間は、全体で23.58㎡の広さを持ち、洋室8.5帖というゆったりとした造りは、まるで大地があなたを優しく受け止めているかのよう。日常の喧騒から解放され、ここではただ自分と向き合う贅沢な時間を過ごすことができます。仕事の合間に、ふと目を向ける窓の外には、緑豊かな芝公園が広がり、その新鮮な空気はまるで自然からの贈り物です。心地良い風に揺れる木々の葉音は、あなたの心をさらに軽やかにし、静寂の中にも心地よさを感じられます。
フェニックス芝公園 401は、ただの賃貸物件ではありません。これは、あなたの生活の舞台となる場所です。エレガントなインテリアの中で、TVモニターホンやオートロックなどの最先端の設備が、あなたを守ってくれる頼もしい友人となります。宅配ボックスの存在は、忙しい日常においても、あなたの時間を大切にするためのサポーターでしょう。エレベーターでアクセスする低層のフロアは、静けさと落ち着きを感じさせ、心温まる安全な空間を提供します。
近隣の芝公園は、東京都内の緑のオアシス。そこで感じる自然の香りは、あなたの日常を特別なものに変えてくれるでしょう。散歩するたびに、歴史の息吹を感じることができ、文化と芸術が息づくこの場所は、まるで時間旅行をしているかのようです。周囲には芝、増上寺やおしゃれなカフェも点在し、歩いているだけで心豊かになる時間を提供してくれます。
フェニックス芝公園 401での生活は、ただの居住空間ではなく、あなたの人生の新たな章のスタート。ここでは、毎日が映画のワンシーンのように、ドラマチックで色とりどりの時間が繰り広げられることでしょう。どうか、この素晴らしい空間であなた自身を発見し、一歩一歩大切に刻んでいってください。フェニックス芝公園 401が、あなたの人生の舞台となり、素晴らしい物語を紡いでいくことでしょう。
この特別な空間は、全…フェニックス芝公園 401。あなたとこの物件が遭遇する運命を感じさせる、特別な出会い。その扉を開ける瞬間、まるで映画のワンシーンに飛び込むかのような感覚が広がります。南向きの301号室は、陽の光を惜しみなく受け入れ、朝の柔らかな光が部屋を包み込むと、空気は金色に輝き、温かな雰囲気が漂います。落ち着いた色調の壁に映る光は、あなたの心を静め、安らぎへと導いてくれることでしょう。
この特別な空間は、全体で23.58㎡の広さを持ち、洋室8.5帖というゆったりとした造りは、まるで大地があなたを優しく受け止めているかのよう。日常の喧騒から解放され、ここではただ自分と向き合う贅沢な時間を過ごすことができます。仕事の合間に、ふと目を向ける窓の外には、緑豊かな芝公園が広がり、その新鮮な空気はまるで自然からの贈り物です。心地良い風に揺れる木々の葉音は、あなたの心をさらに軽やかにし、静寂の中にも心地よさを感じられます。
フェニックス芝公園 401は、ただの賃貸物件ではありません。これは、あなたの生活の舞台となる場所です。エレガントなインテリアの中で、TVモニターホンやオートロックなどの最先端の設備が、あなたを守ってくれる頼もしい友人となります。宅配ボックスの存在は、忙しい日常においても、あなたの時間を大切にするためのサポーターでしょう。エレベーターでアクセスする低層のフロアは、静けさと落ち着きを感じさせ、心温まる安全な空間を提供します。
近隣の芝公園は、東京都内の緑のオアシス。そこで感じる自然の香りは、あなたの日常を特別なものに変えてくれるでしょう。散歩するたびに、歴史の息吹を感じることができ、文化と芸術が息づくこの場所は、まるで時間旅行をしているかのようです。周囲には芝、増上寺やおしゃれなカフェも点在し、歩いているだけで心豊かになる時間を提供してくれます。
フェニックス芝公園 401での生活は、ただの居住空間ではなく、あなたの人生の新たな章のスタート。ここでは、毎日が映画のワンシーンのように、ドラマチックで色とりどりの時間が繰り広げられることでしょう。どうか、この素晴らしい空間であなた自身を発見し、一歩一歩大切に刻んでいってください。フェニックス芝公園 401が、あなたの人生の舞台となり、素晴らしい物語を紡いでいくことでしょう。
バイブルスコア
バイブルスコア: 51.6
条件のいい物件です、引っ越しが2か月以内の場合は仮申し込みを検討すべき物件です。
このお部屋は、現在ご入居中のため空室情報はございません。ただし、将来的に募集が開始される際、バイブルスコアにおいて非常に高い評価が期待されます。特にご興味をお持ちの方は、今のうちにブックマークやお気に入りに登録していただくと、募集開始のお知らせをすぐに受け取ることができます。是非ともご検討くださいませ。
※バイブルスコア詳細はこちら
バイブルスコアとは独自のAI機械学習技術を利用した物件評価システムで、物件のおすすめ度を示します。最高得点は100点で、スコアが高いほど、よりおすすめの物件と評価されています。
写真
契約条件
| 賃料 | 予想金額:74,000〜94,000円程度 | 管理費 | 予想金額:4,000〜8,000円程度 |
| 礼金 | 非公開(アーカイブ) | 敷金 | 非公開(アーカイブ) |
| フリーレント | なし | 平米数 | 23.58㎡ |
| 間取り | 1K | 大型収納 | なし |
| 契約期間 | 未定 | 方角 | 南 |
| 更新料 | 未定 | 契約形態 | |
| 取引態様 | 媒介 | 内見状況 | 入居中 |
| 入居時期 | 入居中 | SOHO・事務所 | 不可 |
| ペット | 不可 | 間取り内訳 | 洋室8.5 |
| キャンペーン情報・備考 | 本情報は賃料改定交渉の資料作成、収益物件の利回り試算、周辺エリアや最寄り駅の坪単価分析、次回募集開始時期の予測などにご活用いただけます。 | ||
※「どの不動産に頼めばいいのか分からない」「信頼できる営業マンの話を聞きたい」「一番親切な会社と契約したい」とお悩みの方におすすめなのが「高級賃貸バイブル」です。
高級賃貸バイブルは業界10年以上の熟練スタッフ群がお客様ファーストで対応します。
下記ボタンから、まずは無料でご相談下さい。
※内覧をご希望の際には、どうぞ物件のエントランス前にてお待ち合わせくださいませ。ご内覧後は、同じ場所でお別れとさせていただきます。お客様のご都合に合わせたスムーズなご案内を心がけておりますので、ご質問等がございましたら何なりとお申し付けください。 物件概要
| 物件名 |
| 築年月 |
|
|---|---|---|---|
| 所在地 | |||
| 交通 | |||
| 総戸数 | 総階数 |
| |
| 構造 |
| ||
地図
物件までの道のりは、「拡大地図を表示」をクリックしてナビ機能をご利用ください。
部屋設備










建物設備

24時間管理

TVモニターホン

エレベーター

オートロック

宅配ボックス

敷地内ゴミ置場

駐輪場
フェニックス芝公園の現在募集中のお部屋
- No rooms found for this property.








