
| 賃料 | 予想金額:72,000〜92,000円程度 | 管理費 | 予想金額:6,000〜10,000円程度 |
| 礼金/敷金 | 非公開(アーカイブ) | 平米数 | 23.58㎡ |
| 初期費用概算(参考) | 目安:103,460〜203,460 円 | みなし賃料(月額・参考) | 81,489〜101,489 円 |
| 備考 | 本ページは過去募集のアーカイブです。表示の金額は周辺相場・過去募集を踏まえた参考レンジであり、実際の契約金額・条件ではありません。 | ||
※上記みなし賃料(月額)は仲介手数料割引・無料&キャッシュバックを加味した高級賃貸バイブル限定の金額です。一般的なみなし賃料とは異なります。
【建物ページ】フェニックス芝公園の詳細・最新空室はこちら▶▶選ばれる理由
仲介手数料無料・キャンペーン情報(毎月15名様限定)
〇引っ越しお祝い金18040円プレゼント(キャッシュバック)
〇仲介手数料無料キャンペーン
フェニックス芝公園 301の口コミ・レビュー
フェニックス芝公園 301。この名前を耳にした瞬間、心の中に温かい陽射しが差し込み、洗練された生活の予感が漂います。この物件は、まるで一流のシェフが手掛けた料理のように、ひとつひとつの要素が絶妙に組み合わさった空間です。南向きの窓から差し込む光が、あなたの大切なひとときを美しく彩り、特別な日常を演出します。
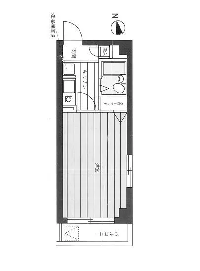
入ると、23.58㎡の広さが感じられるこの1Kは、まるで贅沢なルームスウィートのような趣…フェニックス芝公園 301。この名前を耳にした瞬間、心の中に温かい陽射しが差し込み、洗練された生活の予感が漂います。この物件は、まるで一流のシェフが手掛けた料理のように、ひとつひとつの要素が絶妙に組み合わさった空間です。南向きの窓から差し込む光が、あなたの大切なひとときを美しく彩り、特別な日常を演出します。
入ると、23.58㎡の広さが感じられるこの1Kは、まるで贅沢なルームスウィートのような趣を持っています。洋室8.5帖のスペースは、あなたの創造力を呼び覚ますキャンバスとなり、思い描く暮らしのスタイルを実現するための舞台を提供します。例えば、大きな窓際にお気に入りのソファを配置し、朝のコーヒーを片手に日差しを浴びる贅沢なひとときを楽しむことができるのです。ここでの毎日はまるで映画のワンシーンのように、穏やかで心地よいサウンドトラックが流れています。
フェニックス芝公園 301は、ただの住まいではなく、あなたの気持ちを優雅に包み込む懐かしさと新しさが共存する場所です。敷地内のゴミ置場や駐輪場などの生活に必要な利便性を備えつつ、24時間の管理体制が安心感を提供します。まるであなたの大切な友人がいつも見守ってくれているかのように、心強い存在です。
エレベーターに乗り、オートロックを通過する際、まるで特別な世界に足を踏み入れるかのような感覚が広がります。外に出れば、徒歩2分の距離に広がる芝公園の緑が目に映り、心が洗われる瞬間が訪れます。歴史あるこの地は、都会の喧騒から解き放たれた静謐をもたらし、近隣には文化と芸術が息づく場所が点在しています。芸術家たちの作品が街に溶け込み、あなたの五感を刺激する感動に満ちた人生の舞台となることでしょう。
フェニックス芝公園 301は、あなたの人生の物語の新たな一章を迎えるための場所です。この空間で感じる風、香り、そして光は、きっとあなたの心に深く刻まれることでしょう。ぜひ、ここでの新しい生活を思い描き、その夢を実現してみてはいかがでしょうか。あなたの物語は、ここから始まります。
入ると、23.58㎡の広さが感じられるこの1Kは、まるで贅沢なルームスウィートのような趣…フェニックス芝公園 301。この名前を耳にした瞬間、心の中に温かい陽射しが差し込み、洗練された生活の予感が漂います。この物件は、まるで一流のシェフが手掛けた料理のように、ひとつひとつの要素が絶妙に組み合わさった空間です。南向きの窓から差し込む光が、あなたの大切なひとときを美しく彩り、特別な日常を演出します。
入ると、23.58㎡の広さが感じられるこの1Kは、まるで贅沢なルームスウィートのような趣を持っています。洋室8.5帖のスペースは、あなたの創造力を呼び覚ますキャンバスとなり、思い描く暮らしのスタイルを実現するための舞台を提供します。例えば、大きな窓際にお気に入りのソファを配置し、朝のコーヒーを片手に日差しを浴びる贅沢なひとときを楽しむことができるのです。ここでの毎日はまるで映画のワンシーンのように、穏やかで心地よいサウンドトラックが流れています。
フェニックス芝公園 301は、ただの住まいではなく、あなたの気持ちを優雅に包み込む懐かしさと新しさが共存する場所です。敷地内のゴミ置場や駐輪場などの生活に必要な利便性を備えつつ、24時間の管理体制が安心感を提供します。まるであなたの大切な友人がいつも見守ってくれているかのように、心強い存在です。
エレベーターに乗り、オートロックを通過する際、まるで特別な世界に足を踏み入れるかのような感覚が広がります。外に出れば、徒歩2分の距離に広がる芝公園の緑が目に映り、心が洗われる瞬間が訪れます。歴史あるこの地は、都会の喧騒から解き放たれた静謐をもたらし、近隣には文化と芸術が息づく場所が点在しています。芸術家たちの作品が街に溶け込み、あなたの五感を刺激する感動に満ちた人生の舞台となることでしょう。
フェニックス芝公園 301は、あなたの人生の物語の新たな一章を迎えるための場所です。この空間で感じる風、香り、そして光は、きっとあなたの心に深く刻まれることでしょう。ぜひ、ここでの新しい生活を思い描き、その夢を実現してみてはいかがでしょうか。あなたの物語は、ここから始まります。
バイブルスコア
バイブルスコア: 40.6
条件のいい物件です、引っ越しが2か月以内の場合は仮申し込みを検討すべき物件です。
※バイブルスコア詳細はこちら
バイブルスコアとは独自のAI機械学習技術を利用した物件評価システムで、物件のおすすめ度を示します。最高得点は100点で、スコアが高いほど、よりおすすめの物件と評価されています。
写真
契約条件
| 賃料 | 予想金額:72,000〜92,000円程度 | 管理費 | 予想金額:6,000〜10,000円程度 |
| 礼金 | 非公開(アーカイブ) | 敷金 | 非公開(アーカイブ) |
| フリーレント | なし | 平米数 | 23.58㎡ |
| 間取り | 1K | 大型収納 | |
| 契約期間 |
| 方角 | 南 |
| 更新料 | 契約形態 | 普通賃貸借契約 | |
| 取引態様 | 媒介 | 内見状況 | 入居中 |
| 入居時期 | 入居中 | SOHO・事務所 | |
| ペット | 間取り内訳 | 洋室8.5 | |
| キャンペーン情報・備考 | 本情報は賃料改定交渉の資料作成、収益物件の利回り試算、周辺エリアや最寄り駅の坪単価分析、次回募集開始時期の予測などにご活用いただけます。 | ||
※「どの不動産に頼めばいいのか分からない」「信頼できる営業マンの話を聞きたい」「一番親切な会社と契約したい」とお悩みの方におすすめなのが「高級賃貸バイブル」です。
高級賃貸バイブルは業界10年以上の熟練スタッフ群がお客様ファーストで対応します。
下記ボタンから、まずは無料でご相談下さい。
※内覧をご希望の際には、どうぞ物件のエントランス前にてお待ち合わせくださいませ。ご内覧後は、同じ場所でお別れとさせていただきます。お客様のご都合に合わせたスムーズなご案内を心がけておりますので、ご質問等がございましたら何なりとお申し付けください。 物件概要
| 物件名 |
| 築年月 |
|
|---|---|---|---|
| 所在地 | |||
| 交通 | |||
| 総戸数 | 総階数 |
| |
| 構造 |
| ||
地図
物件までの道のりは、「拡大地図を表示」をクリックしてナビ機能をご利用ください。
部屋設備










建物設備

24時間管理

TVモニターホン

エレベーター

オートロック

宅配ボックス

敷地内ゴミ置場

駐輪場
フェニックス芝公園の現在募集中のお部屋
- No rooms found for this property.








