
| 賃料 | 予想金額:325,000〜345,000円程度 | 管理費 | 予想金額:28,000〜32,000円程度 |
| 礼金/敷金 | 非公開(アーカイブ) | 平米数 | 81.85㎡ |
| 初期費用概算(参考) | 目安:1,259,000〜1,359,000 円 | みなし賃料(月額・参考) | 375,292〜395,292 円 |
| 備考 | 本ページは過去募集のアーカイブです。表示の金額は周辺相場・過去募集を踏まえた参考レンジであり、実際の契約金額・条件ではありません。 | ||
※上記みなし賃料(月額)は仲介手数料割引・無料&キャッシュバックを加味した高級賃貸バイブル限定の金額です。一般的なみなし賃料とは異なります。
【建物ページ】フェニックス西参道タワーの詳細・最新空室はこちら▶▶選ばれる理由
仲介手数料無料・キャンペーン情報(毎月15名様限定)
〇仲介手数料割引キャンペーン
フェニックス西参道タワー 1704の口コミ・レビュー
フェニックス西参道タワー 1704。この物件は、ただの住まいではなく、人生の舞台装置であり、毎日の暮らしをまるで映画のワンシーンのように彩ってくれる場所です。南東の方角から入ってくる柔らかな陽射しが、あなたの心を安らげ、まるで新しい一日の扉を開くかのように、毎朝あなたを迎えてくれます。
81.85㎡という広さは、あなたの想像を超え、まるで広大な空間を駆け巡る風のように、自由自在に使えるプレースペ…フェニックス西参道タワー 1704。この物件は、ただの住まいではなく、人生の舞台装置であり、毎日の暮らしをまるで映画のワンシーンのように彩ってくれる場所です。南東の方角から入ってくる柔らかな陽射しが、あなたの心を安らげ、まるで新しい一日の扉を開くかのように、毎朝あなたを迎えてくれます。
81.85㎡という広さは、あなたの想像を超え、まるで広大な空間を駆け巡る風のように、自由自在に使えるプレースペースです。LDKは20帖、そこには家族の笑い声や友人との賑やかな会話が響き渡ることでしょう。高い天井からは、優雅に流れる空気があなたを包み込み、家の中で時間がゆっくりと流れていく感覚をもたらします。8.6帖の主寝室は、夢の世界へ誘うための特別な空間。静かな夜は、あなたを柔らかく包み込む羽毛布団のように、温かな安らぎを与えてくれることでしょう。そして、5.8帖のサブルームは、その名の通り、あなたの隠れ家的な存在。趣味に没頭する時間や、大切な書斎として、様々な顔を持っているのです。
フェニックス西参道タワー 1704では、24時間の管理体制が整っているため、安心して生活を楽しむことができます。オートロックやTVモニターホンが設けられ、あなたの大切なプライバシーを守ってくれる存在でもあります。日々の暮らしをサポートするフロントサービスや宅配ボックスは、まるであなたのために配置された心遣いのようです。さらに、フィットネスやラウンジ、バイク置場も用意されており、生活に豊かさを加える素材が揃っています。
周辺は、歴史と文化が息づく恵まれた環境。静かな代々木の街並みは、まるで美術館のように、ゆっくりとした時間が流れています。都庁前駅からのアクセスも良好で、都会の喧騒にも簡単に触れられる距離感。渋谷のエネルギーや原宿の活気も、必要なときに踏み込むことができるのです。
思い描いていませんか?優雅なバルコニーでコーヒーを楽しみながら、朝焼けの美しさを味わうシーンを。日々のストレスから解放され、心ゆくまでリフレッシュできる空間で、家族や友人と共に過ごす贅沢なひとときを。フェニックス西参道タワー 1704での新しい生活は、ただの居住空間ではなく、あなたの人生そのものを豊かにする舞台となるでしょう。この美しい物件で、あなたの物語を紡いでいく準備を始めてみませんか?あなたの新しい生活の扉が、ここに待っています。
81.85㎡という広さは、あなたの想像を超え、まるで広大な空間を駆け巡る風のように、自由自在に使えるプレースペ…フェニックス西参道タワー 1704。この物件は、ただの住まいではなく、人生の舞台装置であり、毎日の暮らしをまるで映画のワンシーンのように彩ってくれる場所です。南東の方角から入ってくる柔らかな陽射しが、あなたの心を安らげ、まるで新しい一日の扉を開くかのように、毎朝あなたを迎えてくれます。
81.85㎡という広さは、あなたの想像を超え、まるで広大な空間を駆け巡る風のように、自由自在に使えるプレースペースです。LDKは20帖、そこには家族の笑い声や友人との賑やかな会話が響き渡ることでしょう。高い天井からは、優雅に流れる空気があなたを包み込み、家の中で時間がゆっくりと流れていく感覚をもたらします。8.6帖の主寝室は、夢の世界へ誘うための特別な空間。静かな夜は、あなたを柔らかく包み込む羽毛布団のように、温かな安らぎを与えてくれることでしょう。そして、5.8帖のサブルームは、その名の通り、あなたの隠れ家的な存在。趣味に没頭する時間や、大切な書斎として、様々な顔を持っているのです。
フェニックス西参道タワー 1704では、24時間の管理体制が整っているため、安心して生活を楽しむことができます。オートロックやTVモニターホンが設けられ、あなたの大切なプライバシーを守ってくれる存在でもあります。日々の暮らしをサポートするフロントサービスや宅配ボックスは、まるであなたのために配置された心遣いのようです。さらに、フィットネスやラウンジ、バイク置場も用意されており、生活に豊かさを加える素材が揃っています。
周辺は、歴史と文化が息づく恵まれた環境。静かな代々木の街並みは、まるで美術館のように、ゆっくりとした時間が流れています。都庁前駅からのアクセスも良好で、都会の喧騒にも簡単に触れられる距離感。渋谷のエネルギーや原宿の活気も、必要なときに踏み込むことができるのです。
思い描いていませんか?優雅なバルコニーでコーヒーを楽しみながら、朝焼けの美しさを味わうシーンを。日々のストレスから解放され、心ゆくまでリフレッシュできる空間で、家族や友人と共に過ごす贅沢なひとときを。フェニックス西参道タワー 1704での新しい生活は、ただの居住空間ではなく、あなたの人生そのものを豊かにする舞台となるでしょう。この美しい物件で、あなたの物語を紡いでいく準備を始めてみませんか?あなたの新しい生活の扉が、ここに待っています。
バイブルスコア
バイブルスコア: 28.5
平均的なスコアです。
※バイブルスコア詳細はこちら
バイブルスコアとは独自のAI機械学習技術を利用した物件評価システムで、物件のおすすめ度を示します。最高得点は100点で、スコアが高いほど、よりおすすめの物件と評価されています。
写真
契約条件
| 賃料 | 予想金額:325,000〜345,000円程度 | 管理費 | 予想金額:28,000〜32,000円程度 |
| 礼金 | 非公開(アーカイブ) | 敷金 | 非公開(アーカイブ) |
| フリーレント | なし | 平米数 | 81.85㎡ |
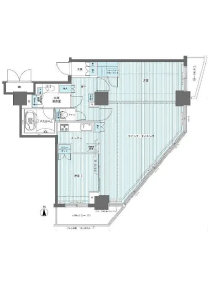
| 間取り | 2LDK | 大型収納 | WIC |
| 契約期間 |
| 方角 | 南東 |
| 更新料 | 契約形態 | 普通賃貸借契約 | |
| 取引態様 | 媒介 | 内見状況 | 入居中 |
| 入居時期 | 入居中 | SOHO・事務所 | |
| ペット | ペット可 | 間取り内訳 | LDK=20J / BR=8.6J / BR=5.8J |
| キャンペーン情報・備考 | 本情報は賃料改定交渉の資料作成、収益物件の利回り試算、周辺エリアや最寄り駅の坪単価分析、次回募集開始時期の予測などにご活用いただけます。 | ||
※「どの不動産に頼めばいいのか分からない」「信頼できる営業マンの話を聞きたい」「一番親切な会社と契約したい」とお悩みの方におすすめなのが「高級賃貸バイブル」です。
高級賃貸バイブルは業界10年以上の熟練スタッフ群がお客様ファーストで対応します。
下記ボタンから、まずは無料でご相談下さい。
※内覧をご希望の際には、どうぞ物件のエントランス前にてお待ち合わせくださいませ。ご内覧後は、同じ場所でお別れとさせていただきます。お客様のご都合に合わせたスムーズなご案内を心がけておりますので、ご質問等がございましたら何なりとお申し付けください。 物件概要
| 物件名 |
| 築年月 |
|
|---|---|---|---|
| 所在地 | |||
| 交通 | |||
| 総戸数 |
| 総階数 |
|
| 構造 |
| ||
地図
物件までの道のりは、「拡大地図を表示」をクリックしてナビ機能をご利用ください。
部屋設備


















建物設備

24時間管理

TVモニターホン

エレベーター

オートロック

バイク置場

フィットネス

フロントサービス

ラウンジ

宅配ボックス

敷地内ゴミ置場

管理人

駐車場平置き

駐車場機械式

駐輪場
フェニックス西参道タワーの現在募集中のお部屋
- No rooms found for this property.






















