
| 賃料 | 予想金額:373,000〜393,000円程度 | 管理費 | 予想金額:28,000〜32,000円程度 |
| 礼金/敷金 | 非公開(アーカイブ) | 平米数 | 81.85㎡ |
| 初期費用概算(参考) | 目安:1,561,150〜1,661,150 円 | みなし賃料(月額・参考) | 428,586〜448,586 円 |
| 備考 | 本ページは過去募集のアーカイブです。表示の金額は周辺相場・過去募集を踏まえた参考レンジであり、実際の契約金額・条件ではありません。 | ||
※上記みなし賃料(月額)は仲介手数料割引・無料&キャッシュバックを加味した高級賃貸バイブル限定の金額です。一般的なみなし賃料とは異なります。
【建物ページ】フェニックス西参道タワーの詳細・最新空室はこちら▶▶選ばれる理由
仲介手数料無料・キャンペーン情報(毎月15名様限定)
〇引っ越しお祝い金5000円プレゼント(キャッシュバック)
フェニックス西参道タワー 16階 81.85㎡の口コミ・レビュー
フェニックス西参道タワー 16階 81.85㎡は、まるで特別な舞台の幕が上がる瞬間のように、多彩な魅力を秘めています。あなたの新しい生活が、ここから始まるのです。このオアシスは、渋谷区代々木という文化が息づく街の真ん中に佇み、南向きの明るい光が差し込む空間で、まるで心地よい日差しに包まれているかのようです。
この物件、フェニックス西参道タワーは、ただの住まいではありません。高級感に満ちたその佇ま…フェニックス西参道タワー 16階 81.85㎡は、まるで特別な舞台の幕が上がる瞬間のように、多彩な魅力を秘めています。あなたの新しい生活が、ここから始まるのです。このオアシスは、渋谷区代々木という文化が息づく街の真ん中に佇み、南向きの明るい光が差し込む空間で、まるで心地よい日差しに包まれているかのようです。
この物件、フェニックス西参道タワーは、ただの住まいではありません。高級感に満ちたその佇まいは、まるで才能あふれる映画監督が手がけた作品のように、あなたの心を掴んで離しません。81.85㎡のスペースには、開放感となるLDK20帖が広がり、家族や友人と過ごす笑顔があふれる場になります。リビングの窓から差し込む光が、あなたの心に安らぎを与えてくれることでしょう。
洋室には8.6帖と5.8帖のスペースが確保されており、心地よい静寂の中、自分だけの時間を楽しむことができます。窓を開けると、青空に溶け込むような風が優しく舞い込んできて、まるで自然の中にいるかのような気分に浸れます。そして、気がつくと、香ばしいコーヒーの香りが漂い、優雅なひとときを楽しむことができるのです。
フェニックス西参道タワーは、単なる住まいではなく、あなたの生活スタイルを豊かにする舞台装置です。24時間管理の安心感、オートロックによるセキュリティ、フィットネスルームやゴルフレンジなどの設備が整い、心身ともにリフレッシュできる環境が整っています。フロントサービスやラウンジに身を委ねることで、まるでホテルのような特別な時間が流れるでしょう。
このタワーは、挑戦するあなたを見守るパートナーでもあります。愛と情熱で彩られた街、渋谷区代々木の歴史や文化が漂う周辺環境に身を置き、映画のワンシーンのような日常を実現してください。都営地下鉄大江戸線の都庁前駅からのアクセスも良好で、忙しい日常においても快適さを提供します。
このフェニックス西参道タワーでの生活は、ただの暮らしではなく、まるで一篇の詩のように、あなたの人生を彩ることになるでしょう。新しい扉を開け、贅沢な空間で、心の豊かさを感じてください。あなたの物語は、ここから始まります。
この物件、フェニックス西参道タワーは、ただの住まいではありません。高級感に満ちたその佇ま…フェニックス西参道タワー 16階 81.85㎡は、まるで特別な舞台の幕が上がる瞬間のように、多彩な魅力を秘めています。あなたの新しい生活が、ここから始まるのです。このオアシスは、渋谷区代々木という文化が息づく街の真ん中に佇み、南向きの明るい光が差し込む空間で、まるで心地よい日差しに包まれているかのようです。
この物件、フェニックス西参道タワーは、ただの住まいではありません。高級感に満ちたその佇まいは、まるで才能あふれる映画監督が手がけた作品のように、あなたの心を掴んで離しません。81.85㎡のスペースには、開放感となるLDK20帖が広がり、家族や友人と過ごす笑顔があふれる場になります。リビングの窓から差し込む光が、あなたの心に安らぎを与えてくれることでしょう。
洋室には8.6帖と5.8帖のスペースが確保されており、心地よい静寂の中、自分だけの時間を楽しむことができます。窓を開けると、青空に溶け込むような風が優しく舞い込んできて、まるで自然の中にいるかのような気分に浸れます。そして、気がつくと、香ばしいコーヒーの香りが漂い、優雅なひとときを楽しむことができるのです。
フェニックス西参道タワーは、単なる住まいではなく、あなたの生活スタイルを豊かにする舞台装置です。24時間管理の安心感、オートロックによるセキュリティ、フィットネスルームやゴルフレンジなどの設備が整い、心身ともにリフレッシュできる環境が整っています。フロントサービスやラウンジに身を委ねることで、まるでホテルのような特別な時間が流れるでしょう。
このタワーは、挑戦するあなたを見守るパートナーでもあります。愛と情熱で彩られた街、渋谷区代々木の歴史や文化が漂う周辺環境に身を置き、映画のワンシーンのような日常を実現してください。都営地下鉄大江戸線の都庁前駅からのアクセスも良好で、忙しい日常においても快適さを提供します。
このフェニックス西参道タワーでの生活は、ただの暮らしではなく、まるで一篇の詩のように、あなたの人生を彩ることになるでしょう。新しい扉を開け、贅沢な空間で、心の豊かさを感じてください。あなたの物語は、ここから始まります。
バイブルスコア
バイブルスコア: 51.8
条件のいい物件です、引っ越しが2か月以内の場合は仮申し込みを検討すべき物件です。
このお部屋は、現在ご入居中のため空室情報はございません。ただし、将来的に募集が開始される際、バイブルスコアにおいて非常に高い評価が期待されます。特にご興味をお持ちの方は、今のうちにブックマークやお気に入りに登録していただくと、募集開始のお知らせをすぐに受け取ることができます。是非ともご検討くださいませ。
※バイブルスコア詳細はこちら
バイブルスコアとは独自のAI機械学習技術を利用した物件評価システムで、物件のおすすめ度を示します。最高得点は100点で、スコアが高いほど、よりおすすめの物件と評価されています。
写真
契約条件
| 賃料 | 予想金額:373,000〜393,000円程度 | 管理費 | 予想金額:28,000〜32,000円程度 |
| 礼金 | 非公開(アーカイブ) | 敷金 | 非公開(アーカイブ) |
| フリーレント | なし | 平米数 | 81.85㎡ |
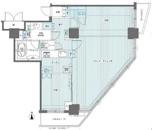
| 間取り | 2LDK+WIC | 大型収納 | WIC |
| 契約期間 | 2年 | 方角 | 南 |
| 更新料 | 1ヶ月 | 契約形態 | 普通賃貸借契約 |
| 取引態様 | 媒介 | 内見状況 | 入居中 |
| 入居時期 | 入居中 | SOHO・事務所 | 不可 |
| ペット | 可 敷金1ヶ月積み増し | 間取り内訳 | LDK20帖 洋室8.6帖 洋室5.8帖 |
| キャンペーン情報・備考 | 本情報は賃料改定交渉の資料作成、収益物件の利回り試算、周辺エリアや最寄り駅の坪単価分析、次回募集開始時期の予測などにご活用いただけます。 | ||
※「どの不動産に頼めばいいのか分からない」「信頼できる営業マンの話を聞きたい」「一番親切な会社と契約したい」とお悩みの方におすすめなのが「高級賃貸バイブル」です。
高級賃貸バイブルは業界10年以上の熟練スタッフ群がお客様ファーストで対応します。
下記ボタンから、まずは無料でご相談下さい。
※内覧をご希望の際には、どうぞ物件のエントランス前にてお待ち合わせくださいませ。ご内覧後は、同じ場所でお別れとさせていただきます。お客様のご都合に合わせたスムーズなご案内を心がけておりますので、ご質問等がございましたら何なりとお申し付けください。 物件概要
| 物件名 |
| 築年月 |
|
|---|---|---|---|
| 所在地 | |||
| 交通 | |||
| 総戸数 |
| 総階数 |
|
| 構造 |
| ||
地図
物件までの道のりは、「拡大地図を表示」をクリックしてナビ機能をご利用ください。
部屋設備












建物設備

24時間管理

TVモニターホン

エレベーター

オートロック

バイク置場

フィットネス

フロントサービス

ラウンジ

宅配ボックス

敷地内ゴミ置場

管理人

駐車場平置き

駐車場機械式

駐輪場
フェニックス西参道タワーの現在募集中のお部屋
- No rooms found for this property.






















