
| 賃料 | 予想金額:125,000〜145,000円程度 | 管理費 | 予想金額:13,000〜17,000円程度 |
| 礼金/敷金 | 非公開(アーカイブ) | 平米数 | 30.03㎡ |
| 初期費用概算(参考) | 目安:0〜11,800 円 | みなし賃料(月額・参考) | 139,204〜159,204 円 |
| 備考 | 本ページは過去募集のアーカイブです。表示の金額は周辺相場・過去募集を踏まえた参考レンジであり、実際の契約金額・条件ではありません。 | ||
※上記みなし賃料(月額)は仲介手数料割引・無料&キャッシュバックを加味した高級賃貸バイブル限定の金額です。一般的なみなし賃料とは異なります。
【建物ページ】ズーム目黒かむろ坂の詳細・最新空室はこちら▶▶選ばれる理由
仲介手数料無料・キャンペーン情報(毎月15名様限定)
〇引っ越しお祝い金164700円プレゼント(キャッシュバック)
〇フリーレント1か月キャンペーン
〇仲介手数料無料キャンペーン
ズーム目黒かむろ坂 204の口コミ・レビュー
ズーム目黒かむろ坂 204。あなたの新しい生活がこの美しい物件で始まります。まるで映画のワンシーンから抜け出してきたような、この特別な空間が、あなたの心をひときわ高揚させることでしょう。
高級賃貸物件、ズーム目黒かむろ坂 204は、東京都品川区小山台に静かに佇み、その存在感はどこか特別なオーラを放っています。北向きの窓からは、穏やかな午後の光が差し込み、まるで自然があなたを歓迎するかのように、優…ズーム目黒かむろ坂 204。あなたの新しい生活がこの美しい物件で始まります。まるで映画のワンシーンから抜け出してきたような、この特別な空間が、あなたの心をひときわ高揚させることでしょう。
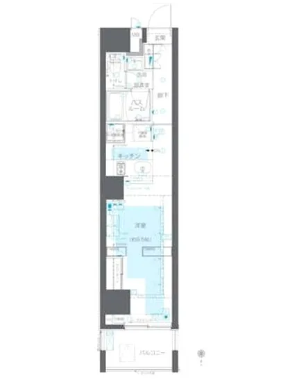
高級賃貸物件、ズーム目黒かむろ坂 204は、東京都品川区小山台に静かに佇み、その存在感はどこか特別なオーラを放っています。北向きの窓からは、穏やかな午後の光が差し込み、まるで自然があなたを歓迎するかのように、優しく包み込んでくれます。専有面積30.03㎡の広がりを持つこの空間は、まるで洗練されたアトリエのように、あなた自身の世界を自由に表現できるキャンバスなのです。
居心地の良い洋室9.5帖は、温もりを感じる素朴な木材のフローリングが、足元に心地よい感覚をもたらします。開放的な空間に身を置くことで、日常の喧騒を忘れ、深呼吸をしたくなるような気持ちにさせてくれます。さらに、TVモニターホンやオートロックといった、現代の生活に欠かせない設備が完備されているため、安全面にも万全です。
ズーム目黒かむろ坂 204に住むことは、単なる住宅を超えたライフスタイルの選択です。エレベーターでスムーズにアクセスできるこの物件の魅力は、住まう人々の生活を豊かにすること。宅配ボックスが設置されているため、あなたのお気に入りの本や雑貨がひっそりと届く瞬間を待つ楽しみもあります。まるで宝探しのように、日常の中に小さな喜びを見出すことができるのです。
そして、近くには武蔵小山駅があり、徒歩7分という好立地。歴史ある街並みが広がるこの地域は、小さなお店やカフェも多く、散策するだけで新しい発見があることでしょう。街の風の匂い、カフェから漂うコーヒーの香ばしい香り、そして人々の歓声が、日常に色彩と活気を与えてくれます。夜には、近くの公園で星空を眺めたり、静かな時間を共有することで、心の安らぎを得られます。
ズーム目黒かむろ坂 204は、ただの物件ではなく、あなたの新しい物語の舞台です。日々の生活に新たな感動をもたらし、心に余裕を与えてくれる場所。住むことで感じる豊かさ、出会うことができる人々との交流、生活の中に息づく文化。これらすべてが、あなたの人生を彩ることでしょう。
さあ、この特別な場所で、新たな生活の一歩を踏み出してみませんか?ズーム目黒かむろ坂 204で、あなたの物語が始まります。
高級賃貸物件、ズーム目黒かむろ坂 204は、東京都品川区小山台に静かに佇み、その存在感はどこか特別なオーラを放っています。北向きの窓からは、穏やかな午後の光が差し込み、まるで自然があなたを歓迎するかのように、優…ズーム目黒かむろ坂 204。あなたの新しい生活がこの美しい物件で始まります。まるで映画のワンシーンから抜け出してきたような、この特別な空間が、あなたの心をひときわ高揚させることでしょう。
高級賃貸物件、ズーム目黒かむろ坂 204は、東京都品川区小山台に静かに佇み、その存在感はどこか特別なオーラを放っています。北向きの窓からは、穏やかな午後の光が差し込み、まるで自然があなたを歓迎するかのように、優しく包み込んでくれます。専有面積30.03㎡の広がりを持つこの空間は、まるで洗練されたアトリエのように、あなた自身の世界を自由に表現できるキャンバスなのです。
居心地の良い洋室9.5帖は、温もりを感じる素朴な木材のフローリングが、足元に心地よい感覚をもたらします。開放的な空間に身を置くことで、日常の喧騒を忘れ、深呼吸をしたくなるような気持ちにさせてくれます。さらに、TVモニターホンやオートロックといった、現代の生活に欠かせない設備が完備されているため、安全面にも万全です。
ズーム目黒かむろ坂 204に住むことは、単なる住宅を超えたライフスタイルの選択です。エレベーターでスムーズにアクセスできるこの物件の魅力は、住まう人々の生活を豊かにすること。宅配ボックスが設置されているため、あなたのお気に入りの本や雑貨がひっそりと届く瞬間を待つ楽しみもあります。まるで宝探しのように、日常の中に小さな喜びを見出すことができるのです。
そして、近くには武蔵小山駅があり、徒歩7分という好立地。歴史ある街並みが広がるこの地域は、小さなお店やカフェも多く、散策するだけで新しい発見があることでしょう。街の風の匂い、カフェから漂うコーヒーの香ばしい香り、そして人々の歓声が、日常に色彩と活気を与えてくれます。夜には、近くの公園で星空を眺めたり、静かな時間を共有することで、心の安らぎを得られます。
ズーム目黒かむろ坂 204は、ただの物件ではなく、あなたの新しい物語の舞台です。日々の生活に新たな感動をもたらし、心に余裕を与えてくれる場所。住むことで感じる豊かさ、出会うことができる人々との交流、生活の中に息づく文化。これらすべてが、あなたの人生を彩ることでしょう。
さあ、この特別な場所で、新たな生活の一歩を踏み出してみませんか?ズーム目黒かむろ坂 204で、あなたの物語が始まります。
バイブルスコア
バイブルスコア: 31.4
平均的なスコアです。
※バイブルスコア詳細はこちら
バイブルスコアとは独自のAI機械学習技術を利用した物件評価システムで、物件のおすすめ度を示します。最高得点は100点で、スコアが高いほど、よりおすすめの物件と評価されています。
写真
現在写真が登録されていません契約条件
| 賃料 | 予想金額:125,000〜145,000円程度 | 管理費 | 予想金額:13,000〜17,000円程度 |
| 礼金 | 非公開(アーカイブ) | 敷金 | 非公開(アーカイブ) |
| フリーレント | 1.0ヶ月 | 平米数 | 30.03㎡ |
| 間取り | 1R | 大型収納 | |
| 契約期間 |
| 方角 | 北 |
| 更新料 | 契約形態 | 普通賃貸借契約 | |
| 取引態様 | 媒介 | 内見状況 | 入居中 |
| 入居時期 | 入居中 | SOHO・事務所 | |
| ペット | ペット可 | 間取り内訳 | 洋:9.5 |
| キャンペーン情報・備考 | 本情報は賃料改定交渉の資料作成、収益物件の利回り試算、周辺エリアや最寄り駅の坪単価分析、次回募集開始時期の予測などにご活用いただけます。 | ||
※「どの不動産に頼めばいいのか分からない」「信頼できる営業マンの話を聞きたい」「一番親切な会社と契約したい」とお悩みの方におすすめなのが「高級賃貸バイブル」です。
高級賃貸バイブルは業界10年以上の熟練スタッフ群がお客様ファーストで対応します。
下記ボタンから、まずは無料でご相談下さい。
※内覧をご希望の際には、どうぞ物件のエントランス前にてお待ち合わせくださいませ。ご内覧後は、同じ場所でお別れとさせていただきます。お客様のご都合に合わせたスムーズなご案内を心がけておりますので、ご質問等がございましたら何なりとお申し付けください。 物件概要
| 物件名 |
| 築年月 |
|
|---|---|---|---|
| 所在地 | |||
| 交通 | |||
| 総戸数 | 総階数 |
| |
| 構造 |
| ||
地図
物件までの道のりは、「拡大地図を表示」をクリックしてナビ機能をご利用ください。
部屋設備















建物設備

TVモニターホン

エレベーター

オートロック

バイク置場

宅配ボックス

敷地内ゴミ置場

管理人

駐車場平置き

駐車場機械式

駐輪場
ズーム目黒かむろ坂の現在募集中のお部屋
- No rooms found for this property.
