
| 賃料 | 予想金額:182,000〜202,000円程度 | 管理費 | 予想金額:13,000〜17,000円程度 |
| 礼金/敷金 | 非公開(アーカイブ) | 平米数 | 40.52㎡ |
| 初期費用概算(参考) | 目安:736,000〜836,000 円 | みなし賃料(月額・参考) | 209,375〜229,375 円 |
| 備考 | 本ページは過去募集のアーカイブです。表示の金額は周辺相場・過去募集を踏まえた参考レンジであり、実際の契約金額・条件ではありません。 | ||
※上記みなし賃料(月額)は仲介手数料割引・無料&キャッシュバックを加味した高級賃貸バイブル限定の金額です。一般的なみなし賃料とは異なります。
【建物ページ】ズーム東神田の詳細・最新空室はこちら▶▶選ばれる理由
仲介手数料無料・キャンペーン情報(毎月15名様限定)
〇仲介手数料割引キャンペーン
ズーム東神田 1001の口コミ・レビュー
ズーム東神田 1001は、まるで洗練されたアート作品のように、あなたの新しい生活空間を提供します。ここ、東京都千代田区東神田2-4-8にあるこの物件は、まさに都会の中心でありながら、穏やかな隠れ家のような存在感を放っています。1001という数字は、まるで新たな始まりを象徴するかのように、あなたを迎え入れる扉の番号です。
この美しい1LDKの住まいは、専有面積40.52㎡の中に、洗練されたデザイン…ズーム東神田 1001は、まるで洗練されたアート作品のように、あなたの新しい生活空間を提供します。ここ、東京都千代田区東神田2-4-8にあるこの物件は、まさに都会の中心でありながら、穏やかな隠れ家のような存在感を放っています。1001という数字は、まるで新たな始まりを象徴するかのように、あなたを迎え入れる扉の番号です。
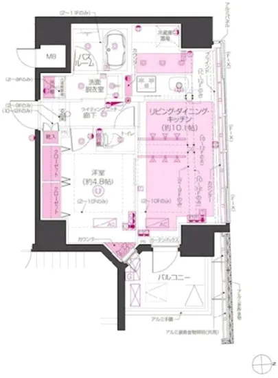
この美しい1LDKの住まいは、専有面積40.52㎡の中に、洗練されたデザインと機能性が見事に融合しています。4.8帖の洋室は、静かなひとときを過ごすための個人空間としての役割を果たし、外から差し込む柔らかな光が、まるで心地よい音楽を奏でるように響きます。その隣には、10.1帖のLDKが広がり、料理をしながら友人や家族と笑い声を交わすシーンが、まるで映画のワンシーンのように目に浮かびます。
ズーム東神田 1001では、静寂の中に響く日常の音が、まさにあなた独自のサウンドトラックとなります。TVモニターホンやオートロックシステムを搭載した賢い玄関は、あなたのプライバシーを守りながら、訪れる人々に心地よい歓迎の意を示します。また、エレベーターでの移動は、まるで空を舞う鳥のような自由さを提供し、日常の小さな冒険を演出します。
周囲には都営地下鉄新宿線の岩本町駅が徒歩5分の距離にあり、渋谷や新宿へのアクセスはまるで風のように軽やかです。ここから手に入るさまざまな文化や歴史の息遣いが、あなたの日々に色を添えるでしょう。古き良き下町の風情と、現代の洗練された生活スタイルが絶妙に融合するこのエリアで、毎日はまるで美しいキャンバスに描かれた絵のように、あなたの思い出が彩られていきます。
ズーム東神田 1001に住むことは、ただの生活空間を手に入れることではなく、人生を豊かにするための新たな章を始めることに等しいのです。宅配ボックスや駐車場、駐輪場といった便利な設備は、あなたの生活をスムーズにサポートし、心身共にゆとりを持って暮らせる環境を実現します。時には、夜空を見上げながら、隣のLDKで香ばしい料理の匂いに包まれて、家族や友人との語らいを楽しむ、そのようなシーンが、ここでは日常になるのです。
ズーム東神田 1001での生活は、ただの「住まい」ではなく、あなたの人生そのものを豊かにするための舞台です。未だ見ぬ景色、未知なる出会いがここには潜んでおり、あなたを待っています。ここでのひとときが、まるで一編の詩のように心に残りますように。どうぞ、この空間があなたの新しい物語の始まりとなりますように。
この美しい1LDKの住まいは、専有面積40.52㎡の中に、洗練されたデザイン…ズーム東神田 1001は、まるで洗練されたアート作品のように、あなたの新しい生活空間を提供します。ここ、東京都千代田区東神田2-4-8にあるこの物件は、まさに都会の中心でありながら、穏やかな隠れ家のような存在感を放っています。1001という数字は、まるで新たな始まりを象徴するかのように、あなたを迎え入れる扉の番号です。
この美しい1LDKの住まいは、専有面積40.52㎡の中に、洗練されたデザインと機能性が見事に融合しています。4.8帖の洋室は、静かなひとときを過ごすための個人空間としての役割を果たし、外から差し込む柔らかな光が、まるで心地よい音楽を奏でるように響きます。その隣には、10.1帖のLDKが広がり、料理をしながら友人や家族と笑い声を交わすシーンが、まるで映画のワンシーンのように目に浮かびます。
ズーム東神田 1001では、静寂の中に響く日常の音が、まさにあなた独自のサウンドトラックとなります。TVモニターホンやオートロックシステムを搭載した賢い玄関は、あなたのプライバシーを守りながら、訪れる人々に心地よい歓迎の意を示します。また、エレベーターでの移動は、まるで空を舞う鳥のような自由さを提供し、日常の小さな冒険を演出します。
周囲には都営地下鉄新宿線の岩本町駅が徒歩5分の距離にあり、渋谷や新宿へのアクセスはまるで風のように軽やかです。ここから手に入るさまざまな文化や歴史の息遣いが、あなたの日々に色を添えるでしょう。古き良き下町の風情と、現代の洗練された生活スタイルが絶妙に融合するこのエリアで、毎日はまるで美しいキャンバスに描かれた絵のように、あなたの思い出が彩られていきます。
ズーム東神田 1001に住むことは、ただの生活空間を手に入れることではなく、人生を豊かにするための新たな章を始めることに等しいのです。宅配ボックスや駐車場、駐輪場といった便利な設備は、あなたの生活をスムーズにサポートし、心身共にゆとりを持って暮らせる環境を実現します。時には、夜空を見上げながら、隣のLDKで香ばしい料理の匂いに包まれて、家族や友人との語らいを楽しむ、そのようなシーンが、ここでは日常になるのです。
ズーム東神田 1001での生活は、ただの「住まい」ではなく、あなたの人生そのものを豊かにするための舞台です。未だ見ぬ景色、未知なる出会いがここには潜んでおり、あなたを待っています。ここでのひとときが、まるで一編の詩のように心に残りますように。どうぞ、この空間があなたの新しい物語の始まりとなりますように。
バイブルスコア
バイブルスコア: 20.4
平均的なスコアです。
※バイブルスコア詳細はこちら
バイブルスコアとは独自のAI機械学習技術を利用した物件評価システムで、物件のおすすめ度を示します。最高得点は100点で、スコアが高いほど、よりおすすめの物件と評価されています。
写真
契約条件
| 賃料 | 予想金額:182,000〜202,000円程度 | 管理費 | 予想金額:13,000〜17,000円程度 |
| 礼金 | 非公開(アーカイブ) | 敷金 | 非公開(アーカイブ) |
| フリーレント | なし | 平米数 | 40.52㎡ |
| 間取り | 1LDK | 大型収納 | |
| 契約期間 |
| 方角 | 東 / 北 |
| 更新料 | 契約形態 | 普通賃貸借契約 | |
| 取引態様 | 媒介 | 内見状況 | 入居中 |
| 入居時期 | 入居中 | SOHO・事務所 | |
| ペット | ペット可 | 間取り内訳 | 洋:4.8 LDK:10.1 |
| キャンペーン情報・備考 | 本情報は賃料改定交渉の資料作成、収益物件の利回り試算、周辺エリアや最寄り駅の坪単価分析、次回募集開始時期の予測などにご活用いただけます。 | ||
※「どの不動産に頼めばいいのか分からない」「信頼できる営業マンの話を聞きたい」「一番親切な会社と契約したい」とお悩みの方におすすめなのが「高級賃貸バイブル」です。
高級賃貸バイブルは業界10年以上の熟練スタッフ群がお客様ファーストで対応します。
下記ボタンから、まずは無料でご相談下さい。
※内覧をご希望の際には、どうぞ物件のエントランス前にてお待ち合わせくださいませ。ご内覧後は、同じ場所でお別れとさせていただきます。お客様のご都合に合わせたスムーズなご案内を心がけておりますので、ご質問等がございましたら何なりとお申し付けください。 物件概要
| 物件名 |
| 築年月 |
|
|---|---|---|---|
| 所在地 | |||
| 交通 | |||
| 総戸数 |
| 総階数 |
|
| 構造 |
| ||
地図
物件までの道のりは、「拡大地図を表示」をクリックしてナビ機能をご利用ください。
部屋設備















建物設備

TVモニターホン

エレベーター

オートロック

宅配ボックス

敷地内ゴミ置場

管理人

駐車場平置き

駐車場機械式

駐輪場
ズーム東神田の現在募集中のお部屋
- No rooms found for this property.









