
| 賃料 | 予想金額:110,000〜130,000円程度 | 管理費 | 予想金額:0〜2,000円程度 |
| 礼金/敷金 | 非公開(アーカイブ) | 平米数 | 22.62㎡ |
| 初期費用概算(参考) | 目安:366,000〜466,000 円 | みなし賃料(月額・参考) | 116,167〜136,167 円 |
| 備考 | 本ページは過去募集のアーカイブです。表示の金額は周辺相場・過去募集を踏まえた参考レンジであり、実際の契約金額・条件ではありません。 | ||
※上記みなし賃料(月額)は仲介手数料割引・無料&キャッシュバックを加味した高級賃貸バイブル限定の金額です。一般的なみなし賃料とは異なります。
【建物ページ】パレステュディオ麹町の詳細・最新空室はこちら▶▶選ばれる理由
仲介手数料無料・キャンペーン情報(毎月15名様限定)
〇引っ越しお祝い金24000円プレゼント(キャッシュバック)
〇仲介手数料無料キャンペーン
パレステュディオ麹町 804の口コミ・レビュー
22.62㎡の空間は、…パレステュディオ麹町 804。私、この素晴らしい空間に心を傾けてほしいのです。804という数字は、まるで贅沢な夢の扉を開く合言葉のようです。東京都千代田区にあるこの特別な場所は、東を向いているため、朝日が眩しい光を吸い込むようにしっかりとあなたを迎え入れてくれます。初めてこのお部屋に足を踏み入れた瞬間、あなたはまるで映画の主人公になったかのような感覚を覚えることでしょう。
22.62㎡の空間は、ただの賃貸物件ではありません。ここは、あなたの生活の舞台となり、心の豊かさを育む庭です。洋室6.5帖は、柔らかな日差しが溢れ、どこか穏やかな風が舞い込むような優雅さを醸し出しています。ちょうど、朝のコーヒーを香り高く抽出し、ひと口飲み込むたびに、心がほっとするような安らぎが感じられるのです。
あなたが静かに目を閉じて、耳を澄ませれば、心地よい風の音が低く響くのが聞こえます。それは、街の喧騒と調和する音楽のようです。東京メトロ半蔵門線の半蔵門駅からわずか徒歩2分で到着するこの場所は、忙しい現代人のオアシス。生活の利便性に加えて、歴史ある麹町の文化が滲み出ています。近隣の趣あるカフェやアートギャラリーに足を運べば、心の栄養になるような出会いが待っています。
パレステュディオ麹町 804には、TVモニターホンやオートロック、宅配ボックスといった現代の暮らしに不可欠な設備が整っており、安心と快適さが共存しています。ですから、家に帰るたびに、日常のストレスを忘れさせてくれるのです。この家に住むことは、ただの居住空間を超え、心を豊かにするライフスタイルの選択だと感じます。
エレベーターで上がると、その瞬間からあなたは物語の一幕に浸るでしょう。管理人の温かな笑顔に迎えられ、宅配ボックスに届いた小包を手にすることで、生活の中に小さな喜びが積み重なっていくのです。敷地内のゴミ置き場や駐輪場も、暮らしの便利さを際立たせますし、これらはあなたの新しい生活を支える無名の英雄のようでもあります。
さあ、パレステュディオ麹町 804に住むことが決まったら、日々が映画のワンシーンの如く、美しい時間へと導かれることでしょう。香ばしいパンの香りが漂う朝や、心地よい夕焼けに包まれながら過ごす夕食のひととき。すべてがあなたの素敵な人生の一部となり、心に刻まれるはずです。
この高級賃貸物件は、ただの物件ではなく、あなたの人生を彩るための大切な舞台装置です。パレステュディオ麹町 804で、新しい物語を創造してみませんか。あなたの未来が、ここに込められた美しいストーリーによって、色とりどりに輝き出します。
バイブルスコア
バイブルスコア: 53.2
条件のいい物件です、引っ越しが2か月以内の場合は仮申し込みを検討すべき物件です。
このお部屋は、現在ご入居中のため空室情報はございません。ただし、将来的に募集が開始される際、バイブルスコアにおいて非常に高い評価が期待されます。特にご興味をお持ちの方は、今のうちにブックマークやお気に入りに登録していただくと、募集開始のお知らせをすぐに受け取ることができます。是非ともご検討くださいませ。
※バイブルスコア詳細はこちら
バイブルスコアとは独自のAI機械学習技術を利用した物件評価システムで、物件のおすすめ度を示します。最高得点は100点で、スコアが高いほど、よりおすすめの物件と評価されています。
写真
契約条件
| 賃料 | 予想金額:110,000〜130,000円程度 | 管理費 | 予想金額:0〜2,000円程度 |
| 礼金 | 非公開(アーカイブ) | 敷金 | 非公開(アーカイブ) |
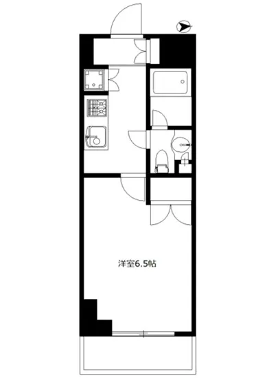
| フリーレント | なし | 平米数 | 22.62㎡ |
| 間取り | 1K | 大型収納 | なし |
| 契約期間 | 2年 | 方角 | 東 |
| 更新料 | 1ヶ月 | 契約形態 | 普通賃貸借契約 |
| 取引態様 | 媒介 | 内見状況 | 入居中 |
| 入居時期 | 入居中 | SOHO・事務所 | 不可 |
| ペット | 不可 | 間取り内訳 | 洋:6.5 |
| キャンペーン情報・備考 | 本情報は賃料改定交渉の資料作成、収益物件の利回り試算、周辺エリアや最寄り駅の坪単価分析、次回募集開始時期の予測などにご活用いただけます。 | ||
※「どの不動産に頼めばいいのか分からない」「信頼できる営業マンの話を聞きたい」「一番親切な会社と契約したい」とお悩みの方におすすめなのが「高級賃貸バイブル」です。
高級賃貸バイブルは業界10年以上の熟練スタッフ群がお客様ファーストで対応します。
下記ボタンから、まずは無料でご相談下さい。
※内覧をご希望の際には、どうぞ物件のエントランス前にてお待ち合わせくださいませ。ご内覧後は、同じ場所でお別れとさせていただきます。お客様のご都合に合わせたスムーズなご案内を心がけておりますので、ご質問等がございましたら何なりとお申し付けください。 物件概要
| 物件名 |
| 築年月 |
|
|---|---|---|---|
| 所在地 | |||
| 交通 | |||
| 総戸数 |
| 総階数 |
|
| 構造 |
| ||
地図
物件までの道のりは、「拡大地図を表示」をクリックしてナビ機能をご利用ください。
部屋設備










建物設備

TVモニターホン

エレベーター

オートロック

宅配ボックス

敷地内ゴミ置場

管理人

駐輪場
パレステュディオ麹町の現在募集中のお部屋
- No rooms found for this property.









