
| 賃料 | 予想金額:202,000〜222,000円程度 | 管理費 | 予想金額:8,000〜12,000円程度 |
| 礼金/敷金 | 非公開(アーカイブ) | 平米数 | 50.8㎡ |
| 初期費用概算(参考) | 目安:162,500〜262,500 円 | みなし賃料(月額・参考) | 216,427〜236,427 円 |
| 備考 | 本ページは過去募集のアーカイブです。表示の金額は周辺相場・過去募集を踏まえた参考レンジであり、実際の契約金額・条件ではありません。 | ||
※上記みなし賃料(月額)は仲介手数料割引・無料&キャッシュバックを加味した高級賃貸バイブル限定の金額です。一般的なみなし賃料とは異なります。
【建物ページ】グレースレジデンス東京の詳細・最新空室はこちら▶▶選ばれる理由
仲介手数料無料・キャンペーン情報(毎月15名様限定)
〇フリーレント1か月キャンペーン
グレースレジデンス東京 1002の口コミ・レビュー
グレースレジデンス東京 1002。この美しい称号は、日々の暮らしに彩りを添えるために生まれた特別な空間です。1002号室の扉を開ける瞬間、まるで静かな湖面に一滴の水しぶきが広がるような心の高まりを感じることでしょう。南西の陽光が優しく差し込み、居室に温かな温もりを届けてくれます。
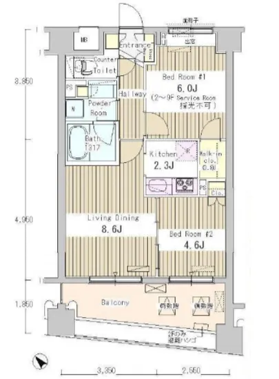
この贅沢な1LDKは、洋室4.6帖、サービスルーム6帖、そしてリビングダイニングキッチン8.6帖という絶妙な配置で、…グレースレジデンス東京 1002。この美しい称号は、日々の暮らしに彩りを添えるために生まれた特別な空間です。1002号室の扉を開ける瞬間、まるで静かな湖面に一滴の水しぶきが広がるような心の高まりを感じることでしょう。南西の陽光が優しく差し込み、居室に温かな温もりを届けてくれます。
この贅沢な1LDKは、洋室4.6帖、サービスルーム6帖、そしてリビングダイニングキッチン8.6帖という絶妙な配置で、心地よい生活を演出します。50.8㎡の広さは、必要なものと心地よい余白を両立させ、まるで自分だけの小宇宙のように穏やかで特別な存在感を放っています。扉を開けたとたん、あなたは自らの生活の舞台に立ち上がり、まるで主演俳優のような気分を味わうことができるのです。
グレースレジデンス東京 1002は、ただの住まいではありません。ここは、日々のストーリーが織り成される場所。朝の光が差し込むキッチンでは、香ばしいコーヒーの香りが広がり、パンの焼ける音が心を弾ませることでしょう。その瞬間、あなたの満ち足りた笑顔が、朝の始まりを明るく照らします。
静かな夜には、窓の外から聞こえてくる都市の賑わいが、まるで遠くから響く音楽のように心地よく、あなたを包み込むことでしょう。グレースレジデンス東京 1002のリビングでは、豊かなソファに身を沈めながら、映画の一シーンのような夜を過ごすことができます。友人や家族とともに心温まる会話を楽しむ中、ふっと頬を撫でる夜風が、あなたの感覚を一層鋭く刺激します。
この特別な場所は、近隣の歴史と文化の息吹を感じることができるロケーションに位置しています。東京都中央区新川の豊かな歴史は、まるで過去の名画を眺めるかのように、あなたの生活に深みを与えてくれることでしょう。周囲を散策すれば、センスあるカフェや個性的なショップが点在し、まるで街全体がアートギャラリーのように感じられます。
さらに、24時間管理体制やオートロック、宅配ボックスなどの充実した設備は、快適さを支える重要なシンフォニーです。あなたが外出から戻った際、管理人の温かな笑顔が迎えてくれることでしょう。まるで家族の一員のように感じられるその瞬間は、安らぎの時間を創り出すのです。
グレースレジデンス東京 1002は、ただの住まいではなく、あなたの日常を豊かに彩る舞台です。ここに住むことで、あなたが主人公の特別な物語が始まります。心をこめた生活をここで楽しみ、日々の小さな幸せを見つけていく、その一歩をこの場所で踏み出してください。あなたの新しい生活が、映画のように美しい物語となることを、心から願っています。
この贅沢な1LDKは、洋室4.6帖、サービスルーム6帖、そしてリビングダイニングキッチン8.6帖という絶妙な配置で、…グレースレジデンス東京 1002。この美しい称号は、日々の暮らしに彩りを添えるために生まれた特別な空間です。1002号室の扉を開ける瞬間、まるで静かな湖面に一滴の水しぶきが広がるような心の高まりを感じることでしょう。南西の陽光が優しく差し込み、居室に温かな温もりを届けてくれます。
この贅沢な1LDKは、洋室4.6帖、サービスルーム6帖、そしてリビングダイニングキッチン8.6帖という絶妙な配置で、心地よい生活を演出します。50.8㎡の広さは、必要なものと心地よい余白を両立させ、まるで自分だけの小宇宙のように穏やかで特別な存在感を放っています。扉を開けたとたん、あなたは自らの生活の舞台に立ち上がり、まるで主演俳優のような気分を味わうことができるのです。
グレースレジデンス東京 1002は、ただの住まいではありません。ここは、日々のストーリーが織り成される場所。朝の光が差し込むキッチンでは、香ばしいコーヒーの香りが広がり、パンの焼ける音が心を弾ませることでしょう。その瞬間、あなたの満ち足りた笑顔が、朝の始まりを明るく照らします。
静かな夜には、窓の外から聞こえてくる都市の賑わいが、まるで遠くから響く音楽のように心地よく、あなたを包み込むことでしょう。グレースレジデンス東京 1002のリビングでは、豊かなソファに身を沈めながら、映画の一シーンのような夜を過ごすことができます。友人や家族とともに心温まる会話を楽しむ中、ふっと頬を撫でる夜風が、あなたの感覚を一層鋭く刺激します。
この特別な場所は、近隣の歴史と文化の息吹を感じることができるロケーションに位置しています。東京都中央区新川の豊かな歴史は、まるで過去の名画を眺めるかのように、あなたの生活に深みを与えてくれることでしょう。周囲を散策すれば、センスあるカフェや個性的なショップが点在し、まるで街全体がアートギャラリーのように感じられます。
さらに、24時間管理体制やオートロック、宅配ボックスなどの充実した設備は、快適さを支える重要なシンフォニーです。あなたが外出から戻った際、管理人の温かな笑顔が迎えてくれることでしょう。まるで家族の一員のように感じられるその瞬間は、安らぎの時間を創り出すのです。
グレースレジデンス東京 1002は、ただの住まいではなく、あなたの日常を豊かに彩る舞台です。ここに住むことで、あなたが主人公の特別な物語が始まります。心をこめた生活をここで楽しみ、日々の小さな幸せを見つけていく、その一歩をこの場所で踏み出してください。あなたの新しい生活が、映画のように美しい物語となることを、心から願っています。
バイブルスコア
バイブルスコア: 22.4
平均的なスコアです。
※バイブルスコア詳細はこちら
バイブルスコアとは独自のAI機械学習技術を利用した物件評価システムで、物件のおすすめ度を示します。最高得点は100点で、スコアが高いほど、よりおすすめの物件と評価されています。
写真
契約条件
| 賃料 | 予想金額:202,000〜222,000円程度 | 管理費 | 予想金額:8,000〜12,000円程度 |
| 礼金 | 非公開(アーカイブ) | 敷金 | 非公開(アーカイブ) |
| フリーレント | 1.0ヶ月 | 平米数 | 50.8㎡ |
| 間取り | 1LDK | 大型収納 | WIC+S |
| 契約期間 |
| 方角 | 南西 |
| 更新料 | 契約形態 | 普通賃貸借契約 | |
| 取引態様 | 媒介 | 内見状況 | 入居中 |
| 入居時期 | 入居中 | SOHO・事務所 | |
| ペット | 間取り内訳 | 洋:4.6 S:6 LDK:8.6 | |
| キャンペーン情報・備考 | 本情報は賃料改定交渉の資料作成、収益物件の利回り試算、周辺エリアや最寄り駅の坪単価分析、次回募集開始時期の予測などにご活用いただけます。 | ||
※「どの不動産に頼めばいいのか分からない」「信頼できる営業マンの話を聞きたい」「一番親切な会社と契約したい」とお悩みの方におすすめなのが「高級賃貸バイブル」です。
高級賃貸バイブルは業界10年以上の熟練スタッフ群がお客様ファーストで対応します。
下記ボタンから、まずは無料でご相談下さい。
※内覧をご希望の際には、どうぞ物件のエントランス前にてお待ち合わせくださいませ。ご内覧後は、同じ場所でお別れとさせていただきます。お客様のご都合に合わせたスムーズなご案内を心がけておりますので、ご質問等がございましたら何なりとお申し付けください。 物件概要
| 物件名 |
| 築年月 |
|
|---|---|---|---|
| 所在地 | |||
| 交通 | |||
| 総戸数 |
| 総階数 |
|
| 構造 |
| ||
地図
物件までの道のりは、「拡大地図を表示」をクリックしてナビ機能をご利用ください。
部屋設備

















建物設備

24時間管理

TVモニターホン

エレベーター

オートロック

バイク置場

宅配ボックス

敷地内ゴミ置場

管理人

駐車場平置き

駐車場機械式

駐輪場
グレースレジデンス東京の現在募集中のお部屋
- No rooms found for this property.





























