
| 賃料 | 予想金額:201,000〜221,000円程度 | 管理費 | 予想金額:8,000〜12,000円程度 |
| 礼金/敷金 | 非公開(アーカイブ) | 平米数 | 50.8㎡ |
| 初期費用概算(参考) | 目安:191,400〜291,400 円 | みなし賃料(月額・参考) | 211,633〜231,633 円 |
| 備考 | 本ページは過去募集のアーカイブです。表示の金額は周辺相場・過去募集を踏まえた参考レンジであり、実際の契約金額・条件ではありません。 | ||
※上記みなし賃料(月額)は仲介手数料割引・無料&キャッシュバックを加味した高級賃貸バイブル限定の金額です。一般的なみなし賃料とは異なります。
【建物ページ】グレースレジデンス東京の詳細・最新空室はこちら▶▶選ばれる理由
仲介手数料無料・キャンペーン情報(毎月15名様限定)
〇引っ越しお祝い金126600円プレゼント(キャッシュバック)
〇仲介手数料無料キャンペーン
グレースレジデンス東京 1102の口コミ・レビュー
グレースレジデンス東京 1102は、まさに都市のオアシス。東京都中央区新川に佇むこの住まいは、あなたに贅沢な生活を約束します。高層ビルの合間にひっそりと佇むこのレジデンスは、南西の風を受けて、一本の清流のように静かに、しかし力強く、家が持つ魅力を語りかけてきます。
この物件に足を踏み入れると、まず目に飛び込んでくるのは、開放感あふれるスペースです。専有面積50.8㎡が実現するゆとりは、あたかもあ…グレースレジデンス東京 1102は、まさに都市のオアシス。東京都中央区新川に佇むこの住まいは、あなたに贅沢な生活を約束します。高層ビルの合間にひっそりと佇むこのレジデンスは、南西の風を受けて、一本の清流のように静かに、しかし力強く、家が持つ魅力を語りかけてきます。
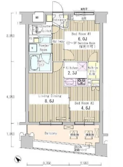
この物件に足を踏み入れると、まず目に飛び込んでくるのは、開放感あふれるスペースです。専有面積50.8㎡が実現するゆとりは、あたかもあなた自身が大海に漂う小舟のような感覚を与えてくれるでしょう。LDK8.6帖は、まるで映画のワンシーンのようにあなたを包み込み、家族や友人との心温まるひとときを演出します。朝日が差し込むたび、この居心地の良い空間で新しい一日の始まりを実感することでしょう。
グレースレジデンス東京 1102の魅力は、その立地にもあります。東京メトロ日比谷線八丁堀駅から徒歩6分というアクセスの良さは、都会の喧騒と静寂の両方を享受できる絶妙なバランス。周囲には歴史ある街並みが広がり、その人々が紡いできた文化を感じながら、散策する楽しみもあります。風情ある石畳の道を歩くと、まるで過去と現在が交差する瞬間に立ち会うような感覚に浸れます。
このグレースレジデンス東京 1102では、住まいが単なる居場所ではなく、心の拠り所となります。24時間管理体制やオートロックといった安心の設備は、あなたに安らぎをもたらし、TVモニターホンや宅配ボックスも、スマートで便利な生活をサポートします。まるであなたを優しく見守る母のように、心地よいセキュリティは、日常のストレスから解放してくれるでしょう。
さらに、エレベーターに乗るたびに、まるで上昇気流に乗ったかのように心が高揚するのを感じます。屋上からの眺望は、四季折々の風景を背景に、目の前に広がる新宿のスカイラインや、日が沈む瞬間の驚くほどの美しさを届けてくれます。
夜には、街の灯りが静かに輝き、まるで星々が地上に降りてきたかのような幻想的な景色を楽しむことができるでしょう。また、バルコニーでゆったりとしたティータイムを過ごすひとときは、あなたの心の中に静寂をもたらし、日常の喧騒を忘れさせてくれます。
グレースレジデンス東京 1102は、まるで一つのアート作品のように、生活の質を高めるために丁寧に設計されています。住むことが、ただの生活ではなく、人生の豊かさを感じる旅であることを教えてくれるでしょう。この場所での毎日は、あなたの物語の中で最高のシーンを刻むことでしょう。美しい日常を手に入れるために、今すぐこの特別な空間へ足を踏み入れてみてはいかがでしょうか。あなたの生活が、映画のように輝くことをお約束します。
この物件に足を踏み入れると、まず目に飛び込んでくるのは、開放感あふれるスペースです。専有面積50.8㎡が実現するゆとりは、あたかもあ…グレースレジデンス東京 1102は、まさに都市のオアシス。東京都中央区新川に佇むこの住まいは、あなたに贅沢な生活を約束します。高層ビルの合間にひっそりと佇むこのレジデンスは、南西の風を受けて、一本の清流のように静かに、しかし力強く、家が持つ魅力を語りかけてきます。
この物件に足を踏み入れると、まず目に飛び込んでくるのは、開放感あふれるスペースです。専有面積50.8㎡が実現するゆとりは、あたかもあなた自身が大海に漂う小舟のような感覚を与えてくれるでしょう。LDK8.6帖は、まるで映画のワンシーンのようにあなたを包み込み、家族や友人との心温まるひとときを演出します。朝日が差し込むたび、この居心地の良い空間で新しい一日の始まりを実感することでしょう。
グレースレジデンス東京 1102の魅力は、その立地にもあります。東京メトロ日比谷線八丁堀駅から徒歩6分というアクセスの良さは、都会の喧騒と静寂の両方を享受できる絶妙なバランス。周囲には歴史ある街並みが広がり、その人々が紡いできた文化を感じながら、散策する楽しみもあります。風情ある石畳の道を歩くと、まるで過去と現在が交差する瞬間に立ち会うような感覚に浸れます。
このグレースレジデンス東京 1102では、住まいが単なる居場所ではなく、心の拠り所となります。24時間管理体制やオートロックといった安心の設備は、あなたに安らぎをもたらし、TVモニターホンや宅配ボックスも、スマートで便利な生活をサポートします。まるであなたを優しく見守る母のように、心地よいセキュリティは、日常のストレスから解放してくれるでしょう。
さらに、エレベーターに乗るたびに、まるで上昇気流に乗ったかのように心が高揚するのを感じます。屋上からの眺望は、四季折々の風景を背景に、目の前に広がる新宿のスカイラインや、日が沈む瞬間の驚くほどの美しさを届けてくれます。
夜には、街の灯りが静かに輝き、まるで星々が地上に降りてきたかのような幻想的な景色を楽しむことができるでしょう。また、バルコニーでゆったりとしたティータイムを過ごすひとときは、あなたの心の中に静寂をもたらし、日常の喧騒を忘れさせてくれます。
グレースレジデンス東京 1102は、まるで一つのアート作品のように、生活の質を高めるために丁寧に設計されています。住むことが、ただの生活ではなく、人生の豊かさを感じる旅であることを教えてくれるでしょう。この場所での毎日は、あなたの物語の中で最高のシーンを刻むことでしょう。美しい日常を手に入れるために、今すぐこの特別な空間へ足を踏み入れてみてはいかがでしょうか。あなたの生活が、映画のように輝くことをお約束します。
バイブルスコア
バイブルスコア: 32.2
平均的なスコアです。
※バイブルスコア詳細はこちら
バイブルスコアとは独自のAI機械学習技術を利用した物件評価システムで、物件のおすすめ度を示します。最高得点は100点で、スコアが高いほど、よりおすすめの物件と評価されています。
写真
契約条件
| 賃料 | 予想金額:201,000〜221,000円程度 | 管理費 | 予想金額:8,000〜12,000円程度 |
| 礼金 | 非公開(アーカイブ) | 敷金 | 非公開(アーカイブ) |
| フリーレント | なし | 平米数 | 50.8㎡ |
| 間取り | 1LDK | 大型収納 | WIC+S |
| 契約期間 | 2年 | 方角 | 南西 |
| 更新料 | 1ヶ月 | 契約形態 | 普通賃貸借契約 |
| 取引態様 | 媒介 | 内見状況 | 入居中 |
| 入居時期 | 入居中 | SOHO・事務所 | 不可 |
| ペット | 不可 | 間取り内訳 | 洋:4.6 S:6 LDK:8.6 |
| キャンペーン情報・備考 | 本情報は賃料改定交渉の資料作成、収益物件の利回り試算、周辺エリアや最寄り駅の坪単価分析、次回募集開始時期の予測などにご活用いただけます。 | ||
※「どの不動産に頼めばいいのか分からない」「信頼できる営業マンの話を聞きたい」「一番親切な会社と契約したい」とお悩みの方におすすめなのが「高級賃貸バイブル」です。
高級賃貸バイブルは業界10年以上の熟練スタッフ群がお客様ファーストで対応します。
下記ボタンから、まずは無料でご相談下さい。
※内覧をご希望の際には、どうぞ物件のエントランス前にてお待ち合わせくださいませ。ご内覧後は、同じ場所でお別れとさせていただきます。お客様のご都合に合わせたスムーズなご案内を心がけておりますので、ご質問等がございましたら何なりとお申し付けください。 物件概要
| 物件名 |
| 築年月 |
|
|---|---|---|---|
| 所在地 | |||
| 交通 | |||
| 総戸数 |
| 総階数 |
|
| 構造 |
| ||
地図
物件までの道のりは、「拡大地図を表示」をクリックしてナビ機能をご利用ください。
部屋設備

















建物設備

24時間管理

TVモニターホン

エレベーター

オートロック

バイク置場

宅配ボックス

敷地内ゴミ置場

管理人

駐車場平置き

駐車場機械式

駐輪場
グレースレジデンス東京の現在募集中のお部屋
- No rooms found for this property.






























