
| 賃料 | 予想金額:198,000〜218,000円程度 | 管理費 | 予想金額:8,000〜12,000円程度 |
| 礼金/敷金 | 非公開(アーカイブ) | 平米数 | 50.8㎡ |
| 初期費用概算(参考) | 目安:105,750〜205,750 円 | みなし賃料(月額・参考) | 207,401〜227,401 円 |
| 備考 | 本ページは過去募集のアーカイブです。表示の金額は周辺相場・過去募集を踏まえた参考レンジであり、実際の契約金額・条件ではありません。 | ||
※上記みなし賃料(月額)は仲介手数料割引・無料&キャッシュバックを加味した高級賃貸バイブル限定の金額です。一般的なみなし賃料とは異なります。
【建物ページ】グレースレジデンス東京の詳細・最新空室はこちら▶▶選ばれる理由
仲介手数料無料・キャンペーン情報(毎月15名様限定)
〇引っ越しお祝い金208500円プレゼント(キャッシュバック)
〇仲介手数料無料キャンペーン
グレースレジデンス東京 302の口コミ・レビュー
グレースレジデンス東京 302、これはただの物件ではなく、まるで長年の友のようにあなたを迎え入れる居場所です。東京都中央区新川2-23-11のこの住所には、都会の喧騒から少し離れた静寂が漂い、南西の陽が心地よく差し込む特別な空間が広がっています。302という階数は、空に手を伸ばす階でもあり、地に足を着けて人生を楽しむための拠点でもあります。ここに住むことで、あなたの毎日は物語の一コマのように華やか…グレースレジデンス東京 302、これはただの物件ではなく、まるで長年の友のようにあなたを迎え入れる居場所です。東京都中央区新川2-23-11のこの住所には、都会の喧騒から少し離れた静寂が漂い、南西の陽が心地よく差し込む特別な空間が広がっています。302という階数は、空に手を伸ばす階でもあり、地に足を着けて人生を楽しむための拠点でもあります。ここに住むことで、あなたの毎日は物語の一コマのように華やかに彩られることでしょう。
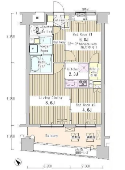
このグレースレジデンス東京 302は、50.8㎡の専有面積を有し、洋室4.6帖とS(サービスルーム)6帖、そしてLDK8.6帖が見事に調和しています。この間取りは、まるで完璧なオーケストラが奏でるメロディのように、空間の使い方に無限の可能性を秘めています。大きな窓から差し込む南西の光が、あなたの生活を優しく包み込み、四季折々の表情を見せてくれることでしょう。春には新緑の香り、夏は海の潮風、秋は紅葉の色合い、冬は雪の静けさ。五感すべてで感じることのできる、豊かな生活が待っています。
エレベーターで軽やかに302の扉を開ければ、目の前にはあなたの「幸せ」が待っています。温もりのある間取りは、まるでソフトな羽毛に包まれたような安心感を持っています。LDKは心のオアシスとして、友人を招いた楽しい時間を過ごすにも最適。朝日は新しい日の始まりを告げ、夕暮れにはその美しさを静かに堪能することができる、まさに生活の舞台です。
グレースレジデンス東京 302はまた、機能的な設備を完備しています。24時間管理の安心感は、まるで見えない守護者のように、あなたの生活をしっかりとサポート。オートロックやTVモニターホンは、あなたを守るための堅固な盾となり、宅配ボックスはいつでもあなたの大切な荷物を優しく受け止めてくれるでしょう。バイク置場や駐輪場も完備されており、アクティブな生活を送るあなたを全面的にバックアップします。
周囲には、街の歴史や文化が息づいており、ゆっくりとしたペースで散策することでその魅力を再発見できること請け合いです。伝統的な和菓子屋や洒落たカフェ、アートギャラリーに至るまで、あなたの好奇心をくすぐるスポットが点在しています。まるであなたの生活が映画のワンシーンになったかのように、毎日が新たな発見に満ちていることでしょう。
グレースレジデンス東京 302は、あなたとともに生きるために存在しています。ここで始まる新しいストーリーは、きっと素晴らしいものになるでしょう。あなたの未来を、この特別な場所で築いてみませんか。毎日が心温まる贅沢な瞬間で満たされる、そんな生活がグレースレジデンス東京 302で待っています。
このグレースレジデンス東京 302は、50.8㎡の専有面積を有し、洋室4.6帖とS(サービスルーム)6帖、そしてLDK8.6帖が見事に調和しています。この間取りは、まるで完璧なオーケストラが奏でるメロディのように、空間の使い方に無限の可能性を秘めています。大きな窓から差し込む南西の光が、あなたの生活を優しく包み込み、四季折々の表情を見せてくれることでしょう。春には新緑の香り、夏は海の潮風、秋は紅葉の色合い、冬は雪の静けさ。五感すべてで感じることのできる、豊かな生活が待っています。
エレベーターで軽やかに302の扉を開ければ、目の前にはあなたの「幸せ」が待っています。温もりのある間取りは、まるでソフトな羽毛に包まれたような安心感を持っています。LDKは心のオアシスとして、友人を招いた楽しい時間を過ごすにも最適。朝日は新しい日の始まりを告げ、夕暮れにはその美しさを静かに堪能することができる、まさに生活の舞台です。
グレースレジデンス東京 302はまた、機能的な設備を完備しています。24時間管理の安心感は、まるで見えない守護者のように、あなたの生活をしっかりとサポート。オートロックやTVモニターホンは、あなたを守るための堅固な盾となり、宅配ボックスはいつでもあなたの大切な荷物を優しく受け止めてくれるでしょう。バイク置場や駐輪場も完備されており、アクティブな生活を送るあなたを全面的にバックアップします。
周囲には、街の歴史や文化が息づいており、ゆっくりとしたペースで散策することでその魅力を再発見できること請け合いです。伝統的な和菓子屋や洒落たカフェ、アートギャラリーに至るまで、あなたの好奇心をくすぐるスポットが点在しています。まるであなたの生活が映画のワンシーンになったかのように、毎日が新たな発見に満ちていることでしょう。
グレースレジデンス東京 302は、あなたとともに生きるために存在しています。ここで始まる新しいストーリーは、きっと素晴らしいものになるでしょう。あなたの未来を、この特別な場所で築いてみませんか。毎日が心温まる贅沢な瞬間で満たされる、そんな生活がグレースレジデンス東京 302で待っています。
バイブルスコア
バイブルスコア: 24.6
平均的なスコアです。
※バイブルスコア詳細はこちら
バイブルスコアとは独自のAI機械学習技術を利用した物件評価システムで、物件のおすすめ度を示します。最高得点は100点で、スコアが高いほど、よりおすすめの物件と評価されています。
写真
契約条件
| 賃料 | 予想金額:198,000〜218,000円程度 | 管理費 | 予想金額:8,000〜12,000円程度 |
| 礼金 | 非公開(アーカイブ) | 敷金 | 非公開(アーカイブ) |
| フリーレント | なし | 平米数 | 50.8㎡ |
| 間取り | 1LDK | 大型収納 | WIC+S |
| 契約期間 |
| 方角 | 南西 |
| 更新料 | 契約形態 | 普通賃貸借契約 | |
| 取引態様 | 媒介 | 内見状況 | 入居中 |
| 入居時期 | 入居中 | SOHO・事務所 | |
| ペット | 間取り内訳 | 洋:4.6 S:6 LDK:8.6 | |
| キャンペーン情報・備考 | 本情報は賃料改定交渉の資料作成、収益物件の利回り試算、周辺エリアや最寄り駅の坪単価分析、次回募集開始時期の予測などにご活用いただけます。 | ||
※「どの不動産に頼めばいいのか分からない」「信頼できる営業マンの話を聞きたい」「一番親切な会社と契約したい」とお悩みの方におすすめなのが「高級賃貸バイブル」です。
高級賃貸バイブルは業界10年以上の熟練スタッフ群がお客様ファーストで対応します。
下記ボタンから、まずは無料でご相談下さい。
※内覧をご希望の際には、どうぞ物件のエントランス前にてお待ち合わせくださいませ。ご内覧後は、同じ場所でお別れとさせていただきます。お客様のご都合に合わせたスムーズなご案内を心がけておりますので、ご質問等がございましたら何なりとお申し付けください。 物件概要
| 物件名 |
| 築年月 |
|
|---|---|---|---|
| 所在地 | |||
| 交通 | |||
| 総戸数 |
| 総階数 |
|
| 構造 |
| ||
地図
物件までの道のりは、「拡大地図を表示」をクリックしてナビ機能をご利用ください。
部屋設備

















建物設備

24時間管理

TVモニターホン

エレベーター

オートロック

バイク置場

宅配ボックス

敷地内ゴミ置場

管理人

駐車場平置き

駐車場機械式

駐輪場
グレースレジデンス東京の現在募集中のお部屋
- No rooms found for this property.





























