
| 賃料 | 予想金額:149,000〜169,000円程度 | 管理費 | 予想金額:14,000〜18,000円程度 |
| 礼金/敷金 | 非公開(アーカイブ) | 平米数 | 41.18㎡ |
| 初期費用概算(参考) | 目安:463,000〜563,000 円 | みなし賃料(月額・参考) | 172,375〜192,375 円 |
| 備考 | 本ページは過去募集のアーカイブです。表示の金額は周辺相場・過去募集を踏まえた参考レンジであり、実際の契約金額・条件ではありません。 | ||
※上記みなし賃料(月額)は仲介手数料割引・無料&キャッシュバックを加味した高級賃貸バイブル限定の金額です。一般的なみなし賃料とは異なります。
【建物ページ】ジュイール文京白山の詳細・最新空室はこちら▶▶選ばれる理由
仲介手数料無料・キャンペーン情報(毎月15名様限定)
〇仲介手数料割引キャンペーン
ジュイール文京白山 401の口コミ・レビュー
ジュイール文京白山 401。ここは単なる住まいではなく、あなたの日常を特別なものに変えてくれる空間です。東京都文京区白山2-27-8に位置し、周囲の静寂と共に、豊かな自然と文化が織り成す景観が広がっています。通りを歩けば、知的な香りを持つ文京エリアの歴史があなたを包み込み、まるで時を遡る旅をしているかのような気分になります。
この美しい物件は、401号室という名の舞台に、あなた自身の物語を紡いで…ジュイール文京白山 401。ここは単なる住まいではなく、あなたの日常を特別なものに変えてくれる空間です。東京都文京区白山2-27-8に位置し、周囲の静寂と共に、豊かな自然と文化が織り成す景観が広がっています。通りを歩けば、知的な香りを持つ文京エリアの歴史があなたを包み込み、まるで時を遡る旅をしているかのような気分になります。
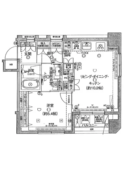
この美しい物件は、401号室という名の舞台に、あなた自身の物語を紡いでいくための完璧な環境を提供します。41.18㎡の広大な専有面積は、まるで心の広がりを象徴しているかのようで、ゆったりと儚い夢へと誘ってくれます。5.4帖の洋室があなたのくつろぎの隠れ家となり、10.2帖のLDKは笑顔や歓声で満ちる社交の場へと変わることでしょう。
朱色の夕日に照らされた瞬間、リビングの窓からは四季折々の美しい風景が広がります。あなたがキッチンで心を込めて作った料理から、香ばしい匂いが漂い、恍惚なひとときが訪れます。この空間では、友人や家族とともに過ごす時間が、特別なものへと昇華されるのです。陽だまりの中で、ひと口のワインを楽しむその瞬間、あなたの五感は一層敏感になり、温もりを感じることができるでしょう。
ジュイール文京白山 401は、24時間の管理体制を整え、安心安全な暮らしを約束します。エレベーターやオートロック、TVモニターホンなどの最新設備が整い、まるであなたのためだけに設計されたかのような快適さを実現しています。さらに、宅配ボックスの存在は、まるで友人がサプライズで訪れてくれるかのような期待感をもたらし、毎日が新たな発見で満ち溢れています。
周辺には、アートや文化が息づく場所も多く、散歩がてら立ち寄りたい美術館やギャラリーが点在しています。特に、文京区が誇る歴史的な建物や、静かな公園は、あなたに癒しのひとときを提供し、心の栄養となるでしょう。この地域の文化を感じ、交流を深めることができるのは、ジュイール文京白山 401に住む特権とも言えます。
この特別な空間で、あなたの新しい生活が幕を開けます。ジュイール文京白山 401で、日常がまるで映画のワンシーンのように輝き、心に残る記憶を作り出してください。あなただけの物語が、ここから始まります。
この美しい物件は、401号室という名の舞台に、あなた自身の物語を紡いで…ジュイール文京白山 401。ここは単なる住まいではなく、あなたの日常を特別なものに変えてくれる空間です。東京都文京区白山2-27-8に位置し、周囲の静寂と共に、豊かな自然と文化が織り成す景観が広がっています。通りを歩けば、知的な香りを持つ文京エリアの歴史があなたを包み込み、まるで時を遡る旅をしているかのような気分になります。
この美しい物件は、401号室という名の舞台に、あなた自身の物語を紡いでいくための完璧な環境を提供します。41.18㎡の広大な専有面積は、まるで心の広がりを象徴しているかのようで、ゆったりと儚い夢へと誘ってくれます。5.4帖の洋室があなたのくつろぎの隠れ家となり、10.2帖のLDKは笑顔や歓声で満ちる社交の場へと変わることでしょう。
朱色の夕日に照らされた瞬間、リビングの窓からは四季折々の美しい風景が広がります。あなたがキッチンで心を込めて作った料理から、香ばしい匂いが漂い、恍惚なひとときが訪れます。この空間では、友人や家族とともに過ごす時間が、特別なものへと昇華されるのです。陽だまりの中で、ひと口のワインを楽しむその瞬間、あなたの五感は一層敏感になり、温もりを感じることができるでしょう。
ジュイール文京白山 401は、24時間の管理体制を整え、安心安全な暮らしを約束します。エレベーターやオートロック、TVモニターホンなどの最新設備が整い、まるであなたのためだけに設計されたかのような快適さを実現しています。さらに、宅配ボックスの存在は、まるで友人がサプライズで訪れてくれるかのような期待感をもたらし、毎日が新たな発見で満ち溢れています。
周辺には、アートや文化が息づく場所も多く、散歩がてら立ち寄りたい美術館やギャラリーが点在しています。特に、文京区が誇る歴史的な建物や、静かな公園は、あなたに癒しのひとときを提供し、心の栄養となるでしょう。この地域の文化を感じ、交流を深めることができるのは、ジュイール文京白山 401に住む特権とも言えます。
この特別な空間で、あなたの新しい生活が幕を開けます。ジュイール文京白山 401で、日常がまるで映画のワンシーンのように輝き、心に残る記憶を作り出してください。あなただけの物語が、ここから始まります。
バイブルスコア
バイブルスコア: 21.4
平均的なスコアです。
※バイブルスコア詳細はこちら
バイブルスコアとは独自のAI機械学習技術を利用した物件評価システムで、物件のおすすめ度を示します。最高得点は100点で、スコアが高いほど、よりおすすめの物件と評価されています。
写真
契約条件
| 賃料 | 予想金額:149,000〜169,000円程度 | 管理費 | 予想金額:14,000〜18,000円程度 |
| 礼金 | 非公開(アーカイブ) | 敷金 | 非公開(アーカイブ) |
| フリーレント | なし | 平米数 | 41.18㎡ |
| 間取り | 1LDK | 大型収納 | |
| 契約期間 |
| 方角 | |
| 更新料 | 契約形態 | 普通賃貸借契約 | |
| 取引態様 | 媒介 | 内見状況 | 入居中 |
| 入居時期 | 入居中 | SOHO・事務所 | |
| ペット | 間取り内訳 | 洋:5.4 LDK:10.2 | |
| キャンペーン情報・備考 | 本情報は賃料改定交渉の資料作成、収益物件の利回り試算、周辺エリアや最寄り駅の坪単価分析、次回募集開始時期の予測などにご活用いただけます。 | ||
※「どの不動産に頼めばいいのか分からない」「信頼できる営業マンの話を聞きたい」「一番親切な会社と契約したい」とお悩みの方におすすめなのが「高級賃貸バイブル」です。
高級賃貸バイブルは業界10年以上の熟練スタッフ群がお客様ファーストで対応します。
下記ボタンから、まずは無料でご相談下さい。
※内覧をご希望の際には、どうぞ物件のエントランス前にてお待ち合わせくださいませ。ご内覧後は、同じ場所でお別れとさせていただきます。お客様のご都合に合わせたスムーズなご案内を心がけておりますので、ご質問等がございましたら何なりとお申し付けください。 物件概要
| 物件名 |
| 築年月 |
|
|---|---|---|---|
| 所在地 | |||
| 交通 | |||
| 総戸数 |
| 総階数 |
|
| 構造 |
| ||
地図
物件までの道のりは、「拡大地図を表示」をクリックしてナビ機能をご利用ください。
部屋設備












建物設備

24時間管理

TVモニターホン

エレベーター

オートロック

宅配ボックス

敷地内ゴミ置場

管理人

駐輪場
ジュイール文京白山の現在募集中のお部屋
- No rooms found for this property.









