
| 賃料 | 予想金額:163,000〜183,000円程度 | 管理費 | 予想金額:13,000〜17,000円程度 |
| 礼金/敷金 | 非公開(アーカイブ) | 平米数 | 41.0㎡ |
| 初期費用概算(参考) | 目安:323,500〜423,500 円 | みなし賃料(月額・参考) | 182,177〜202,177 円 |
| 備考 | 本ページは過去募集のアーカイブです。表示の金額は周辺相場・過去募集を踏まえた参考レンジであり、実際の契約金額・条件ではありません。 | ||
※上記みなし賃料(月額)は仲介手数料割引・無料&キャッシュバックを加味した高級賃貸バイブル限定の金額です。一般的なみなし賃料とは異なります。
【建物ページ】オルタナ北品川の詳細・最新空室はこちら▶▶選ばれる理由
仲介手数料無料・キャンペーン情報(毎月15名様限定)
〇仲介手数料割引キャンペーン
オルタナ北品川 501の口コミ・レビュー
オルタナ北品川 501。これはただの住まいではなく、あなたの人生を彩るキャンバスです。501号室の扉を開けた瞬間、まるで特別な映画のワンシーンに引き込まれるような感覚に包まれることでしょう。南東に面したこの空間は、朝の陽射しが優しく差し込み、静謐な街の息遣いを感じながら、あなたの日常を特別にしてくれる場所です。
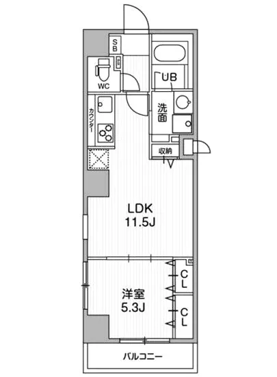
オルタナ北品川 501には、広々としたリビングダイニングキッチン(LDK 11.5帖…オルタナ北品川 501。これはただの住まいではなく、あなたの人生を彩るキャンバスです。501号室の扉を開けた瞬間、まるで特別な映画のワンシーンに引き込まれるような感覚に包まれることでしょう。南東に面したこの空間は、朝の陽射しが優しく差し込み、静謐な街の息遣いを感じながら、あなたの日常を特別にしてくれる場所です。
オルタナ北品川 501には、広々としたリビングダイニングキッチン(LDK 11.5帖)が広がり、そこはまるで優雅な舞踏会のように、日々の生活を華やかに演出します。心地よい空間の中に、暮らしのリズムが溶け込んでいく。バルコニーから見る景色は、まるで絵画のように美しく、毎朝の目覚めを楽しみにさせてくれるのです。料理をする際の香り、友人を招いての笑い声、そして穏やかな時間が流れ、自然と笑顔がこぼれます。そんな瞬間が、あなたの心に深く刻まれることでしょう。
奥へ歩を進めると、洋室(5.3帖)が控えています。ここは思索を巡らせる場所、または安らぎを求める隠れ家。窓から注ぎ込む柔らかな光は、あなたの心を一層穏やかにしてくれます。夜には、静かな夜風が心地よく、眠りに誘う香りが漂い、心地よい夢へと導いてくれるでしょう。
オルタナ北品川 501の魅力は、ただの居住空間を超えて、生活そのものを豊かにする力を秘めています。エレガントなデザイナーズ仕様の中、各種設備も整っており、快適な生活をサポートします。宅配ボックスや敷地内ゴミ置場、駐輪場など、きめ細やかな配慮が感じられ、現代の暮らしにフィットした理想的な環境が整っています。オートロックや管理人がいることで安心も生まれ、あなたの日々を見守ってくれます。
品川区北品川は歴史と文化が息づく街。近くには古き良き日本の風情を感じさせる温故知新の場が広がっており、散策することで新たな発見があることでしょう。京急本線 新馬場駅からは徒歩6分というアクセスの良さも、日常をより便利にしてくれます。日々の忙しさの中にも、心の栄養を与えてくれるスポットが豊富に点在しているのです。
オルタナ北品川 501は、ただの住まいではありません。それは、あなたの生活と心に深く根付く、特別な場所。生活が映画の一コマのように魅力溢れる瞬間で満たされ、あなた自身がストーリーの主人公となることを妨げるものは何もありません。さあ、あなたの新しい物語を、オルタナ北品川 501から始めてみませんか。あなたの暮らしが、ひときわ輝くステージへと変わります。
オルタナ北品川 501には、広々としたリビングダイニングキッチン(LDK 11.5帖…オルタナ北品川 501。これはただの住まいではなく、あなたの人生を彩るキャンバスです。501号室の扉を開けた瞬間、まるで特別な映画のワンシーンに引き込まれるような感覚に包まれることでしょう。南東に面したこの空間は、朝の陽射しが優しく差し込み、静謐な街の息遣いを感じながら、あなたの日常を特別にしてくれる場所です。
オルタナ北品川 501には、広々としたリビングダイニングキッチン(LDK 11.5帖)が広がり、そこはまるで優雅な舞踏会のように、日々の生活を華やかに演出します。心地よい空間の中に、暮らしのリズムが溶け込んでいく。バルコニーから見る景色は、まるで絵画のように美しく、毎朝の目覚めを楽しみにさせてくれるのです。料理をする際の香り、友人を招いての笑い声、そして穏やかな時間が流れ、自然と笑顔がこぼれます。そんな瞬間が、あなたの心に深く刻まれることでしょう。
奥へ歩を進めると、洋室(5.3帖)が控えています。ここは思索を巡らせる場所、または安らぎを求める隠れ家。窓から注ぎ込む柔らかな光は、あなたの心を一層穏やかにしてくれます。夜には、静かな夜風が心地よく、眠りに誘う香りが漂い、心地よい夢へと導いてくれるでしょう。
オルタナ北品川 501の魅力は、ただの居住空間を超えて、生活そのものを豊かにする力を秘めています。エレガントなデザイナーズ仕様の中、各種設備も整っており、快適な生活をサポートします。宅配ボックスや敷地内ゴミ置場、駐輪場など、きめ細やかな配慮が感じられ、現代の暮らしにフィットした理想的な環境が整っています。オートロックや管理人がいることで安心も生まれ、あなたの日々を見守ってくれます。
品川区北品川は歴史と文化が息づく街。近くには古き良き日本の風情を感じさせる温故知新の場が広がっており、散策することで新たな発見があることでしょう。京急本線 新馬場駅からは徒歩6分というアクセスの良さも、日常をより便利にしてくれます。日々の忙しさの中にも、心の栄養を与えてくれるスポットが豊富に点在しているのです。
オルタナ北品川 501は、ただの住まいではありません。それは、あなたの生活と心に深く根付く、特別な場所。生活が映画の一コマのように魅力溢れる瞬間で満たされ、あなた自身がストーリーの主人公となることを妨げるものは何もありません。さあ、あなたの新しい物語を、オルタナ北品川 501から始めてみませんか。あなたの暮らしが、ひときわ輝くステージへと変わります。
バイブルスコア
バイブルスコア: 26.1
平均的なスコアです。
※バイブルスコア詳細はこちら
バイブルスコアとは独自のAI機械学習技術を利用した物件評価システムで、物件のおすすめ度を示します。最高得点は100点で、スコアが高いほど、よりおすすめの物件と評価されています。
写真
現在写真が登録されていません契約条件
| 賃料 | 予想金額:163,000〜183,000円程度 | 管理費 | 予想金額:13,000〜17,000円程度 |
| 礼金 | 非公開(アーカイブ) | 敷金 | 非公開(アーカイブ) |
| フリーレント | なし | 平米数 | 41.0㎡ |
| 間取り | 1LDK | 大型収納 | |
| 契約期間 |
| 方角 | 南東 |
| 更新料 | 契約形態 | 普通賃貸借契約 | |
| 取引態様 | 媒介 | 内見状況 | 入居中 |
| 入居時期 | 入居中 | SOHO・事務所 | |
| ペット | 間取り内訳 | 洋:5.3 LDK:11.5 | |
| キャンペーン情報・備考 | 本情報は賃料改定交渉の資料作成、収益物件の利回り試算、周辺エリアや最寄り駅の坪単価分析、次回募集開始時期の予測などにご活用いただけます。 | ||
※「どの不動産に頼めばいいのか分からない」「信頼できる営業マンの話を聞きたい」「一番親切な会社と契約したい」とお悩みの方におすすめなのが「高級賃貸バイブル」です。
高級賃貸バイブルは業界10年以上の熟練スタッフ群がお客様ファーストで対応します。
下記ボタンから、まずは無料でご相談下さい。
※内覧をご希望の際には、どうぞ物件のエントランス前にてお待ち合わせくださいませ。ご内覧後は、同じ場所でお別れとさせていただきます。お客様のご都合に合わせたスムーズなご案内を心がけておりますので、ご質問等がございましたら何なりとお申し付けください。 物件概要
| 物件名 |
| 築年月 |
|
|---|---|---|---|
| 所在地 | |||
| 交通 | |||
| 総戸数 |
| 総階数 |
|
| 構造 |
| ||
地図
物件までの道のりは、「拡大地図を表示」をクリックしてナビ機能をご利用ください。
部屋設備














建物設備

TVモニターホン

エレベーター

オートロック

バイク置場

宅配ボックス

敷地内ゴミ置場

管理人

駐輪場
オルタナ北品川の現在募集中のお部屋
- No rooms found for this property.
