
| 賃料 | 予想金額:690,000〜710,000円程度 | 管理費 | 予想金額:0〜2,000円程度 |
| 礼金/敷金 | 非公開(アーカイブ) | 平米数 | 90.12㎡ |
| 初期費用概算(参考) | 目安:2,491,500〜2,591,500 円 | みなし賃料(月額・参考) | 728,365〜748,365 円 |
| 備考 | 本ページは過去募集のアーカイブです。表示の金額は周辺相場・過去募集を踏まえた参考レンジであり、実際の契約金額・条件ではありません。 | ||
※上記みなし賃料(月額)は仲介手数料割引・無料&キャッシュバックを加味した高級賃貸バイブル限定の金額です。一般的なみなし賃料とは異なります。
【建物ページ】六本木ヒルズレジデンスB棟の詳細・最新空室はこちら▶▶選ばれる理由
仲介手数料無料・キャンペーン情報(毎月15名様限定)
〇仲介手数料割引キャンペーン
六本木ヒルズレジデンスB棟 3308の口コミ・レビュー
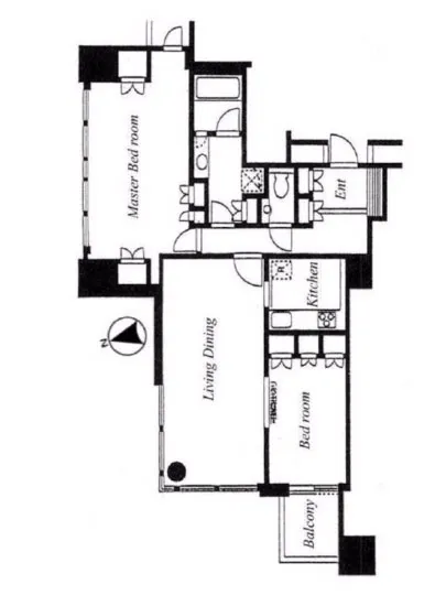
六本木ヒルズレジデンスB棠 3308。あなたの新しい生活はここから始まります。この魅力溢れる空間は、まるで洗練されたアートのように心を躍らせ、日々の暮らしに豊かさを与えてくれることでしょう。専有面積90.12㎡の広さを誇り、2LDKの設計は、まさに都市生活のエッセンスを凝縮した贅沢な空間を創り出しています。
この物件に足を踏み入れた瞬間、あなたは特別な存在になったかのように感じることでしょう。エ…六本木ヒルズレジデンスB棠 3308。あなたの新しい生活はここから始まります。この魅力溢れる空間は、まるで洗練されたアートのように心を躍らせ、日々の暮らしに豊かさを与えてくれることでしょう。専有面積90.12㎡の広さを誇り、2LDKの設計は、まさに都市生活のエッセンスを凝縮した贅沢な空間を創り出しています。
この物件に足を踏み入れた瞬間、あなたは特別な存在になったかのように感じることでしょう。エレベーターで30階へと上がり、そっと扉を開けると、目の前に広がるのは、洗練されたデザインのLDが広がるリビング。14.9帖の広さは、朝の光が優しく舞い込みます。窓から差し込む西日が暖かく、リビングの隅々を黄金色に染める様子はまるで、夕暮れの街並みに吸い込まれそうです。
美味しいコーヒーの香りが漂うキッチンでは、心豊かな食卓が待っています。料理の楽しみが広がる広々とした空間は、12.7帖のベッドルームと6.6帖のセカンドベッドルームに隣接しており、家族や友人と共に楽しい時間を過ごすための完璧な舞台です。柔らかな布団に横たわる感触や、ふわふわのクッションに身を委ねる心地良さが、あなたを優しく包み込みます。
周辺には、六本木の特別な文化が漂っています。アートギャラリーや洗練されたレストラン、賑やかなカフェが点在しており、どんなシーンでも生活の彩りを添えてくれます。夜になると、近隣のビルがきらめき、まるで星空が地上に降りてきたかのような幻想的な景色が広がります。あなたはその一部となり、人生の映画の主人公として、様々なストーリーを紡いでいけることでしょう。
また、24時間管理されているこのレジデンスは、あなたの生活を安全に守るための心強いパートナーでもあります。オートロックやTVモニターホン、フロントサービスが常にあなたを見守っており、日常の忙しさの中でも安心感を提供します。ラウンジで静かなひと時を過ごしたり、ゲストルームを利用して特別な人をもてなすことも容易です。
六本木ヒルズレジデンスB棠 3308は、ただの住まいではなく、あなたの人生をより豊かにする舞台です。感覚が刺激される瞬間や、人生の新たな章の幕開けを感じることのできるこの場所で、素晴らしい毎日を過ごしてください。あなたの物語は、ここで始まるのです。どんな瞬間もかけがえのない大切な時間とし、日常を特別にする魅力を秘めたこの高級賃貸物件で、夢のようなライフスタイルを手に入れてください。
この物件に足を踏み入れた瞬間、あなたは特別な存在になったかのように感じることでしょう。エ…六本木ヒルズレジデンスB棠 3308。あなたの新しい生活はここから始まります。この魅力溢れる空間は、まるで洗練されたアートのように心を躍らせ、日々の暮らしに豊かさを与えてくれることでしょう。専有面積90.12㎡の広さを誇り、2LDKの設計は、まさに都市生活のエッセンスを凝縮した贅沢な空間を創り出しています。
この物件に足を踏み入れた瞬間、あなたは特別な存在になったかのように感じることでしょう。エレベーターで30階へと上がり、そっと扉を開けると、目の前に広がるのは、洗練されたデザインのLDが広がるリビング。14.9帖の広さは、朝の光が優しく舞い込みます。窓から差し込む西日が暖かく、リビングの隅々を黄金色に染める様子はまるで、夕暮れの街並みに吸い込まれそうです。
美味しいコーヒーの香りが漂うキッチンでは、心豊かな食卓が待っています。料理の楽しみが広がる広々とした空間は、12.7帖のベッドルームと6.6帖のセカンドベッドルームに隣接しており、家族や友人と共に楽しい時間を過ごすための完璧な舞台です。柔らかな布団に横たわる感触や、ふわふわのクッションに身を委ねる心地良さが、あなたを優しく包み込みます。
周辺には、六本木の特別な文化が漂っています。アートギャラリーや洗練されたレストラン、賑やかなカフェが点在しており、どんなシーンでも生活の彩りを添えてくれます。夜になると、近隣のビルがきらめき、まるで星空が地上に降りてきたかのような幻想的な景色が広がります。あなたはその一部となり、人生の映画の主人公として、様々なストーリーを紡いでいけることでしょう。
また、24時間管理されているこのレジデンスは、あなたの生活を安全に守るための心強いパートナーでもあります。オートロックやTVモニターホン、フロントサービスが常にあなたを見守っており、日常の忙しさの中でも安心感を提供します。ラウンジで静かなひと時を過ごしたり、ゲストルームを利用して特別な人をもてなすことも容易です。
六本木ヒルズレジデンスB棠 3308は、ただの住まいではなく、あなたの人生をより豊かにする舞台です。感覚が刺激される瞬間や、人生の新たな章の幕開けを感じることのできるこの場所で、素晴らしい毎日を過ごしてください。あなたの物語は、ここで始まるのです。どんな瞬間もかけがえのない大切な時間とし、日常を特別にする魅力を秘めたこの高級賃貸物件で、夢のようなライフスタイルを手に入れてください。
バイブルスコア
バイブルスコア: 22.1
平均的なスコアです。
※バイブルスコア詳細はこちら
バイブルスコアとは独自のAI機械学習技術を利用した物件評価システムで、物件のおすすめ度を示します。最高得点は100点で、スコアが高いほど、よりおすすめの物件と評価されています。
写真
契約条件
| 賃料 | 予想金額:690,000〜710,000円程度 | 管理費 | 予想金額:0〜2,000円程度 |
| 礼金 | 非公開(アーカイブ) | 敷金 | 非公開(アーカイブ) |
| フリーレント | なし | 平米数 | 90.12㎡ |
| 間取り | 2LDK | 大型収納 | |
| 契約期間 |
| 方角 | 西 |
| 更新料 | 契約形態 | 普通賃貸借契約 | |
| 取引態様 | 媒介 | 内見状況 | 入居中 |
| 入居時期 | 入居中 | SOHO・事務所 | |
| ペット | 間取り内訳 | LD=14.9J / K / BR=12.7J / BR=6.6J | |
| キャンペーン情報・備考 | 本情報は賃料改定交渉の資料作成、収益物件の利回り試算、周辺エリアや最寄り駅の坪単価分析、次回募集開始時期の予測などにご活用いただけます。 | ||
※「どの不動産に頼めばいいのか分からない」「信頼できる営業マンの話を聞きたい」「一番親切な会社と契約したい」とお悩みの方におすすめなのが「高級賃貸バイブル」です。
高級賃貸バイブルは業界10年以上の熟練スタッフ群がお客様ファーストで対応します。
下記ボタンから、まずは無料でご相談下さい。
※内覧をご希望の際には、どうぞ物件のエントランス前にてお待ち合わせくださいませ。ご内覧後は、同じ場所でお別れとさせていただきます。お客様のご都合に合わせたスムーズなご案内を心がけておりますので、ご質問等がございましたら何なりとお申し付けください。 物件概要
| 物件名 |
| 築年月 |
|
|---|---|---|---|
| 所在地 | |||
| 交通 | |||
| 総戸数 |
| 総階数 |
|
| 構造 |
| ||
地図
物件までの道のりは、「拡大地図を表示」をクリックしてナビ機能をご利用ください。
部屋設備
















建物設備

24時間管理

TVモニターホン

エレベーター

オートロック

ゲストルーム

バイク置場

フロントサービス

ラウンジ

宅配ボックス

敷地内ゴミ置場

駐車場平置き

駐車場機械式

駐輪場
六本木ヒルズレジデンスB棟の現在募集中のお部屋
- 六本木ヒルズレジデンス B棟 22階 65.29㎡ - 間取り: 1LDK - 賃料: 59万円
- 六本木ヒルズレジデンス B棟 24階 64.56㎡ - 間取り: 1LDK - 賃料: 48万円
- 六本木ヒルズレジデンス B棟 23階 64.56㎡ - 間取り: 1LDK - 賃料: 68.5万円






























