
| 賃料 | 予想金額:580,000〜600,000円程度 | 管理費 | 予想金額:0〜2,000円程度 |
| 礼金/敷金 | 非公開(アーカイブ) | 平米数 | 58.27㎡ |
| 初期費用概算(参考) | 目安:2,932,500〜3,032,500 円 | みなし賃料(月額・参考) | 629,844〜649,844 円 |
| 備考 | 本ページは過去募集のアーカイブです。表示の金額は周辺相場・過去募集を踏まえた参考レンジであり、実際の契約金額・条件ではありません。 | ||
※上記みなし賃料(月額)は仲介手数料割引・無料&キャッシュバックを加味した高級賃貸バイブル限定の金額です。一般的なみなし賃料とは異なります。
【建物ページ】六本木ヒルズレジデンスB棟の詳細・最新空室はこちら▶▶選ばれる理由
仲介手数料無料・キャンペーン情報(毎月15名様限定)
〇引っ越しお祝い金354000円プレゼント(キャッシュバック)
六本木ヒルズレジデンスB棟 1402の口コミ・レビュー
六本木ヒルズレジデンスB棟 1402は、ただの住まいではなく、まるであなたを待ち侘びている一つの芸術作品のようです。東京の心臓部、六本木に位置し、南東の窓から降り注ぐ朝日が、まるで舞台に立つ主役を照らすスポットライトのようにあなたを包み込みます。58.27㎡のこの空間は、まさに生活の舞台。1402号室の扉を開けると、12帖のリビングダイニングが広がり、心地よい風とともに、日々のストレスを忘れさせて…六本木ヒルズレジデンスB棟 1402は、ただの住まいではなく、まるであなたを待ち侘びている一つの芸術作品のようです。東京の心臓部、六本木に位置し、南東の窓から降り注ぐ朝日が、まるで舞台に立つ主役を照らすスポットライトのようにあなたを包み込みます。58.27㎡のこの空間は、まさに生活の舞台。1402号室の扉を開けると、12帖のリビングダイニングが広がり、心地よい風とともに、日々のストレスを忘れさせてくれます。
このレジデンスは、現代のアートと歴史が交錯する場所、六本木にその身を寄せることで、様々な文化が醸し出すエネルギーに触れられます。周囲には美術館やギャラリー、洗練されたレストランやバーが立ち並び、あなたの五感を刺激します。日々の生活が、まるで映画のワンシーンのように感じられることでしょう。夜には、美しい夜景が広がり、あなたの心を優しく包むように灯る街の光が、さまざまな物語を紡いでいます。
ここ、六本木ヒルズレジデンスB棟 1402では、特別な設備が整っています。24時間管理により、まるで守護者のようにあなたの生活を見守り、オートロックのセキュリティで安心感を提供します。ラウンジやゲストルームは、友人たちとの特別な時間を演出し、宅配ボックスは、忙しい日々の中でもスムーズな生活を約束します。まるで大切な人を迎えるための特別な贈り物のように、この場所はあなたの生活を豊かにしてくれることでしょう。
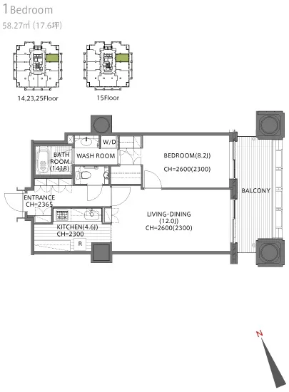
さて、キッチンに目を向けてみましょう。4.6帖のこの空間で、あなたの料理の腕が試される瞬間が訪れます。高級食材を手に取り、溢れんばかりの香りが広がる中、家族や友人との楽しいひとときを思い描いてください。心地よい余韻が残るディナーの後、8.2帖の寝室で贅沢な休息を取り、まるで雲の上にいるような感覚を味わってください。柔らかなシーツに包まれ、微かな外の音があなたを夢の世界へと誘います。
六本木ヒルズレジデンスB棟 1402は、ただの住まい以上のものです。ここには、あなたが思い描く理想の生活が詰まっています。新しい日々のヒントを与えてくれるように、あなたを支え、共に成長していく存在として、待ち望んでいるのです。この美しい空間で、あなたの人生に新たな物語を刻んでみませんか。さあ、一歩踏み出し、新しい生活を始めましょう。あなたを待つこの場所で、新たな感動が待っています。
このレジデンスは、現代のアートと歴史が交錯する場所、六本木にその身を寄せることで、様々な文化が醸し出すエネルギーに触れられます。周囲には美術館やギャラリー、洗練されたレストランやバーが立ち並び、あなたの五感を刺激します。日々の生活が、まるで映画のワンシーンのように感じられることでしょう。夜には、美しい夜景が広がり、あなたの心を優しく包むように灯る街の光が、さまざまな物語を紡いでいます。
ここ、六本木ヒルズレジデンスB棟 1402では、特別な設備が整っています。24時間管理により、まるで守護者のようにあなたの生活を見守り、オートロックのセキュリティで安心感を提供します。ラウンジやゲストルームは、友人たちとの特別な時間を演出し、宅配ボックスは、忙しい日々の中でもスムーズな生活を約束します。まるで大切な人を迎えるための特別な贈り物のように、この場所はあなたの生活を豊かにしてくれることでしょう。
さて、キッチンに目を向けてみましょう。4.6帖のこの空間で、あなたの料理の腕が試される瞬間が訪れます。高級食材を手に取り、溢れんばかりの香りが広がる中、家族や友人との楽しいひとときを思い描いてください。心地よい余韻が残るディナーの後、8.2帖の寝室で贅沢な休息を取り、まるで雲の上にいるような感覚を味わってください。柔らかなシーツに包まれ、微かな外の音があなたを夢の世界へと誘います。
六本木ヒルズレジデンスB棟 1402は、ただの住まい以上のものです。ここには、あなたが思い描く理想の生活が詰まっています。新しい日々のヒントを与えてくれるように、あなたを支え、共に成長していく存在として、待ち望んでいるのです。この美しい空間で、あなたの人生に新たな物語を刻んでみませんか。さあ、一歩踏み出し、新しい生活を始めましょう。あなたを待つこの場所で、新たな感動が待っています。
バイブルスコア
バイブルスコア: 28.1
平均的なスコアです。
※バイブルスコア詳細はこちら
バイブルスコアとは独自のAI機械学習技術を利用した物件評価システムで、物件のおすすめ度を示します。最高得点は100点で、スコアが高いほど、よりおすすめの物件と評価されています。
写真
契約条件
| 賃料 | 予想金額:580,000〜600,000円程度 | 管理費 | 予想金額:0〜2,000円程度 |
| 礼金 | 非公開(アーカイブ) | 敷金 | 非公開(アーカイブ) |
| フリーレント | なし | 平米数 | 58.27㎡ |
| 間取り | 1LDK | 大型収納 | |
| 契約期間 | 方角 | 南東 | |
| 更新料 | 契約形態 | 定期借家契約 | |
| 取引態様 | 媒介 | 内見状況 | 入居中 |
| 入居時期 | 入居中 | SOHO・事務所 | |
| ペット | ペット可 | 間取り内訳 | LD=12J / K=4.6J / BR=8.2J |
| キャンペーン情報・備考 | 本情報は賃料改定交渉の資料作成、収益物件の利回り試算、周辺エリアや最寄り駅の坪単価分析、次回募集開始時期の予測などにご活用いただけます。 | ||
※「どの不動産に頼めばいいのか分からない」「信頼できる営業マンの話を聞きたい」「一番親切な会社と契約したい」とお悩みの方におすすめなのが「高級賃貸バイブル」です。
高級賃貸バイブルは業界10年以上の熟練スタッフ群がお客様ファーストで対応します。
下記ボタンから、まずは無料でご相談下さい。
※内覧をご希望の際には、どうぞ物件のエントランス前にてお待ち合わせくださいませ。ご内覧後は、同じ場所でお別れとさせていただきます。お客様のご都合に合わせたスムーズなご案内を心がけておりますので、ご質問等がございましたら何なりとお申し付けください。 物件概要
| 物件名 |
| 築年月 |
|
|---|---|---|---|
| 所在地 | |||
| 交通 | |||
| 総戸数 |
| 総階数 |
|
| 構造 |
| ||
地図
物件までの道のりは、「拡大地図を表示」をクリックしてナビ機能をご利用ください。
部屋設備

















建物設備

24時間管理

TVモニターホン

エレベーター

オートロック

ゲストルーム

バイク置場

フロントサービス

ラウンジ

宅配ボックス

敷地内ゴミ置場

駐車場平置き

駐車場機械式

駐輪場
六本木ヒルズレジデンスB棟の現在募集中のお部屋
- 六本木ヒルズレジデンス B棟 22階 65.29㎡ - 間取り: 1LDK - 賃料: 59万円
- 六本木ヒルズレジデンス B棟 24階 64.56㎡ - 間取り: 1LDK - 賃料: 48万円
- 六本木ヒルズレジデンス B棟 23階 64.56㎡ - 間取り: 1LDK - 賃料: 68.5万円






























