
| 賃料 | 予想金額:190,000〜210,000円程度 | 管理費 | 予想金額:5,000〜9,000円程度 |
| 礼金/敷金 | 非公開(アーカイブ) | 平米数 | 36.59㎡ |
| 初期費用概算(参考) | 目安:552,000〜652,000 円 | みなし賃料(月額・参考) | 205,375〜225,375 円 |
| 備考 | 本ページは過去募集のアーカイブです。表示の金額は周辺相場・過去募集を踏まえた参考レンジであり、実際の契約金額・条件ではありません。 | ||
※上記みなし賃料(月額)は仲介手数料割引・無料&キャッシュバックを加味した高級賃貸バイブル限定の金額です。一般的なみなし賃料とは異なります。
【建物ページ】モデリアブリュット北参道の詳細・最新空室はこちら▶▶選ばれる理由
仲介手数料無料・キャンペーン情報(毎月15名様限定)
〇仲介手数料割引キャンペーン
モデリアブリュット北参道 401の口コミ・レビュー
モデリアブリュット北参道 401。あなたの新たな生活の舞台がここに用意されています。この美しい空間は、まるで詩を紡ぐように、あなたの心に優しく寄り添います。東京都渋谷区千駄ヶ谷3-30-9に位置し、北を向いたこの物件は、都会の喧騒から解放されつつも、生活の利便性を高く保つ絶妙なバランスを持っています。
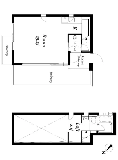
専有面積36.59㎡の中には、日常の喧騒を忘れさせる静謐さが宿ります。広々とした15.2帖の洋…モデリアブリュット北参道 401。あなたの新たな生活の舞台がここに用意されています。この美しい空間は、まるで詩を紡ぐように、あなたの心に優しく寄り添います。東京都渋谷区千駄ヶ谷3-30-9に位置し、北を向いたこの物件は、都会の喧騒から解放されつつも、生活の利便性を高く保つ絶妙なバランスを持っています。
専有面積36.59㎡の中には、日常の喧騒を忘れさせる静謐さが宿ります。広々とした15.2帖の洋室は、まるで開放的なキャンバスのように、あなたの思い描くスタイルで彩ることができます。二階の窓から差し込む柔らかな光が、壁や床をやさしく撫で、心地よい空間へと誘います。LOFT部分の2.1帖は、一瞬のひらめきを生むクリエイティブな角として、あなたのインスピレーションを刺激することでしょう。
モデリアブリュット北参道 401の魅力は、ここに留まりません。オートロックやTVモニターホンといった先進的なセキュリティシステムが、あなたのプライバシーを守り、安心して過ごせる日々を提供します。また、低層のこの建物は、風情ある街並みに溶け込むように佇み、周囲の景色と調和を保ちながら、まるであなたに語りかけるかのようです。
宅配ボックスや駐輪場、そして管理人の温かいサポートが、日常の小さなストレスを軽減し、心豊かな生活の質を高める一助となります。敷地内のゴミ置き場は、環境への配慮を忘れずに、清潔さを保つための工夫が施されています。
北参道駅からわずか徒歩3分という立地は、都会の喧騒にさりげなくアクセスしつつ、心の安らぎを求めるあなたに最適です。周辺には、歴史ある神社や文化的な施設が点在し、ピアノの旋律や絵画の色彩が溢れる街を探索する喜びが待っています。近くの公園では、季節ごとの花々があなたを迎え、穏やかな時間を提供してくれることでしょう。
モデリアブリュット北参道 401は、あなたにとってのシンフォニーの舞台です。朝の光に包まれた瞬間、夕暮れのティータイム、そして静かな夜の読書タイム。すべてが映画のワンシーンのように、感覚を研ぎ澄ませ、心に残る体験をあなたにもたらすでしょう。
この空間はただの居住空間ではなく、あなたのストーリーを描くキャンバスです。モデリアブリュット北参道 401で、新たな人生の一ページをめくる準備はできていますか?あなたの訪問を、心よりお待ち申し上げております。
専有面積36.59㎡の中には、日常の喧騒を忘れさせる静謐さが宿ります。広々とした15.2帖の洋…モデリアブリュット北参道 401。あなたの新たな生活の舞台がここに用意されています。この美しい空間は、まるで詩を紡ぐように、あなたの心に優しく寄り添います。東京都渋谷区千駄ヶ谷3-30-9に位置し、北を向いたこの物件は、都会の喧騒から解放されつつも、生活の利便性を高く保つ絶妙なバランスを持っています。
専有面積36.59㎡の中には、日常の喧騒を忘れさせる静謐さが宿ります。広々とした15.2帖の洋室は、まるで開放的なキャンバスのように、あなたの思い描くスタイルで彩ることができます。二階の窓から差し込む柔らかな光が、壁や床をやさしく撫で、心地よい空間へと誘います。LOFT部分の2.1帖は、一瞬のひらめきを生むクリエイティブな角として、あなたのインスピレーションを刺激することでしょう。
モデリアブリュット北参道 401の魅力は、ここに留まりません。オートロックやTVモニターホンといった先進的なセキュリティシステムが、あなたのプライバシーを守り、安心して過ごせる日々を提供します。また、低層のこの建物は、風情ある街並みに溶け込むように佇み、周囲の景色と調和を保ちながら、まるであなたに語りかけるかのようです。
宅配ボックスや駐輪場、そして管理人の温かいサポートが、日常の小さなストレスを軽減し、心豊かな生活の質を高める一助となります。敷地内のゴミ置き場は、環境への配慮を忘れずに、清潔さを保つための工夫が施されています。
北参道駅からわずか徒歩3分という立地は、都会の喧騒にさりげなくアクセスしつつ、心の安らぎを求めるあなたに最適です。周辺には、歴史ある神社や文化的な施設が点在し、ピアノの旋律や絵画の色彩が溢れる街を探索する喜びが待っています。近くの公園では、季節ごとの花々があなたを迎え、穏やかな時間を提供してくれることでしょう。
モデリアブリュット北参道 401は、あなたにとってのシンフォニーの舞台です。朝の光に包まれた瞬間、夕暮れのティータイム、そして静かな夜の読書タイム。すべてが映画のワンシーンのように、感覚を研ぎ澄ませ、心に残る体験をあなたにもたらすでしょう。
この空間はただの居住空間ではなく、あなたのストーリーを描くキャンバスです。モデリアブリュット北参道 401で、新たな人生の一ページをめくる準備はできていますか?あなたの訪問を、心よりお待ち申し上げております。
バイブルスコア
バイブルスコア: 28.9
平均的なスコアです。
※バイブルスコア詳細はこちら
バイブルスコアとは独自のAI機械学習技術を利用した物件評価システムで、物件のおすすめ度を示します。最高得点は100点で、スコアが高いほど、よりおすすめの物件と評価されています。
写真
契約条件
| 賃料 | 予想金額:190,000〜210,000円程度 | 管理費 | 予想金額:5,000〜9,000円程度 |
| 礼金 | 非公開(アーカイブ) | 敷金 | 非公開(アーカイブ) |
| フリーレント | なし | 平米数 | 36.59㎡ |
| 間取り | 1R | 大型収納 | LOFT |
| 契約期間 |
| 方角 | 北 |
| 更新料 | 契約形態 | 普通賃貸借契約 | |
| 取引態様 | 媒介 | 内見状況 | 入居中 |
| 入居時期 | 入居中 | SOHO・事務所 | 事務所(SOHO)可 |
| ペット | 間取り内訳 | 洋:15.2 LOFT:2.1 | |
| キャンペーン情報・備考 | 本情報は賃料改定交渉の資料作成、収益物件の利回り試算、周辺エリアや最寄り駅の坪単価分析、次回募集開始時期の予測などにご活用いただけます。 | ||
※「どの不動産に頼めばいいのか分からない」「信頼できる営業マンの話を聞きたい」「一番親切な会社と契約したい」とお悩みの方におすすめなのが「高級賃貸バイブル」です。
高級賃貸バイブルは業界10年以上の熟練スタッフ群がお客様ファーストで対応します。
下記ボタンから、まずは無料でご相談下さい。
※内覧をご希望の際には、どうぞ物件のエントランス前にてお待ち合わせくださいませ。ご内覧後は、同じ場所でお別れとさせていただきます。お客様のご都合に合わせたスムーズなご案内を心がけておりますので、ご質問等がございましたら何なりとお申し付けください。 物件概要
| 物件名 |
| 築年月 |
|
|---|---|---|---|
| 所在地 | |||
| 交通 | |||
| 総戸数 |
| 総階数 |
|
| 構造 |
| ||
地図
物件までの道のりは、「拡大地図を表示」をクリックしてナビ機能をご利用ください。
部屋設備













建物設備

TVモニターホン

オートロック

宅配ボックス

敷地内ゴミ置場

管理人

駐輪場
モデリアブリュット北参道の現在募集中のお部屋
- No rooms found for this property.









