
| 賃料 | 予想金額:91,000〜111,000円程度 | 管理費 | 予想金額:13,000〜17,000円程度 |
| 礼金/敷金 | 非公開(アーカイブ) | 平米数 | 22.58㎡ |
| 初期費用概算(参考) | 目安:215,500〜315,500 円 | みなし賃料(月額・参考) | 109,427〜129,427 円 |
| 備考 | 本ページは過去募集のアーカイブです。表示の金額は周辺相場・過去募集を踏まえた参考レンジであり、実際の契約金額・条件ではありません。 | ||
※上記みなし賃料(月額)は仲介手数料割引・無料&キャッシュバックを加味した高級賃貸バイブル限定の金額です。一般的なみなし賃料とは異なります。
【建物ページ】ラフィスタ品川戸越の詳細・最新空室はこちら▶▶選ばれる理由
仲介手数料無料・キャンペーン情報(毎月15名様限定)
〇仲介手数料割引キャンペーン
ラフィスタ品川戸越 103の口コミ・レビュー
ラフィスタ品川戸越 103。この名前は、あなたに心の扉を開く鍵となる存在です。東京都品川区東中延に佇む、まるで静謐な湖のように穏やかな空間が広がるこの高級賃貸物件は、北向きの窓から注ぎ込む光が、朝の始まりを優しく迎えてくれることでしょう。物件の面積は22.58㎡、その中には人生の物語が息づいています。あなたの居場所がここにあることを、心から感じる瞬間が訪れるのです。
このラフィスタ品川戸越 10…ラフィスタ品川戸越 103。この名前は、あなたに心の扉を開く鍵となる存在です。東京都品川区東中延に佇む、まるで静謐な湖のように穏やかな空間が広がるこの高級賃貸物件は、北向きの窓から注ぎ込む光が、朝の始まりを優しく迎えてくれることでしょう。物件の面積は22.58㎡、その中には人生の物語が息づいています。あなたの居場所がここにあることを、心から感じる瞬間が訪れるのです。
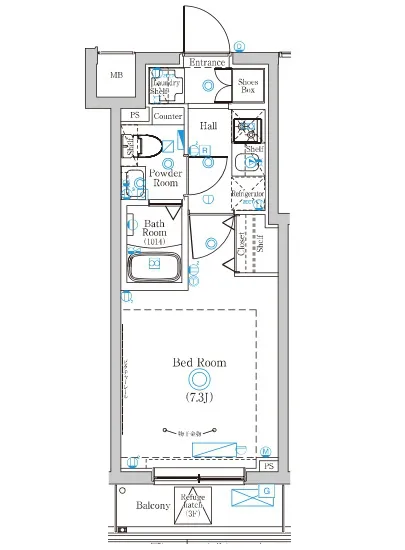
このラフィスタ品川戸越 103は、一人暮らしにぴったりな1Kの間取り、洋室は7.3帖。まるで心を和らげるクッションのように、柔らかい色合いと照明が、帰るたびにあなたを迎え入れてくれます。エレベーターでの穏やかな上昇は、日々の喧騒を忘れさせてくれ、解放感あふれる空間へとあなたを誘います。
想像してみてください。朝の目覚め、窓から差し込む柔らかな光が部屋を包み込み、優しい風がカーテンを舞い上げる。新鮮なコーヒーの香りが台所から漂い、朝食を準備する音が心地よく響く。ラフィスタ品川戸越 103は、そんな日常の一コマを彩る場所なのです。宅配ボックスや管理人の存在も、さらなる安心感をもたらし、日常生活の煩わしさを軽減してくれるでしょう。
また、ラフィスタ品川戸越 103は、その立地から周囲の歴史や文化に溢れています。東京急行電鉄東急池上線荏原中延駅まで徒歩4分というアクセスは、あなたを新たな出会いや経験へと導いてくれるでしょう。歴史を感じさせる街並みや、地元の芸術家たちが生み出した作品が、あなたの感性を刺激します。まるで映画のワンシーンのように、日々の生活が美しいストーリーになっていくのです。
この物件の魅力は、ただの設備や立地にとどまりません。オートロックや駐輪場、敷地内のゴミ置場など、生活を快適に過ごすための配慮が施されています。それは、まるで親友があなたを支えてくれるかのように、心地よい存在感を放っています。
ラフィスタ品川戸越 103での暮らしは、ただの住まいではなく、あなたの人生の舞台となるのです。五感を研ぎ澄ませて、この場所での新しい冒険をお楽しみください。あなたの物語は、ここから始まります。どんな時も、ラフィスタ品川戸越 103は、あなたの心の拠り所であり続けることでしょう。
このラフィスタ品川戸越 10…ラフィスタ品川戸越 103。この名前は、あなたに心の扉を開く鍵となる存在です。東京都品川区東中延に佇む、まるで静謐な湖のように穏やかな空間が広がるこの高級賃貸物件は、北向きの窓から注ぎ込む光が、朝の始まりを優しく迎えてくれることでしょう。物件の面積は22.58㎡、その中には人生の物語が息づいています。あなたの居場所がここにあることを、心から感じる瞬間が訪れるのです。
このラフィスタ品川戸越 103は、一人暮らしにぴったりな1Kの間取り、洋室は7.3帖。まるで心を和らげるクッションのように、柔らかい色合いと照明が、帰るたびにあなたを迎え入れてくれます。エレベーターでの穏やかな上昇は、日々の喧騒を忘れさせてくれ、解放感あふれる空間へとあなたを誘います。
想像してみてください。朝の目覚め、窓から差し込む柔らかな光が部屋を包み込み、優しい風がカーテンを舞い上げる。新鮮なコーヒーの香りが台所から漂い、朝食を準備する音が心地よく響く。ラフィスタ品川戸越 103は、そんな日常の一コマを彩る場所なのです。宅配ボックスや管理人の存在も、さらなる安心感をもたらし、日常生活の煩わしさを軽減してくれるでしょう。
また、ラフィスタ品川戸越 103は、その立地から周囲の歴史や文化に溢れています。東京急行電鉄東急池上線荏原中延駅まで徒歩4分というアクセスは、あなたを新たな出会いや経験へと導いてくれるでしょう。歴史を感じさせる街並みや、地元の芸術家たちが生み出した作品が、あなたの感性を刺激します。まるで映画のワンシーンのように、日々の生活が美しいストーリーになっていくのです。
この物件の魅力は、ただの設備や立地にとどまりません。オートロックや駐輪場、敷地内のゴミ置場など、生活を快適に過ごすための配慮が施されています。それは、まるで親友があなたを支えてくれるかのように、心地よい存在感を放っています。
ラフィスタ品川戸越 103での暮らしは、ただの住まいではなく、あなたの人生の舞台となるのです。五感を研ぎ澄ませて、この場所での新しい冒険をお楽しみください。あなたの物語は、ここから始まります。どんな時も、ラフィスタ品川戸越 103は、あなたの心の拠り所であり続けることでしょう。
バイブルスコア
バイブルスコア: 32.7
平均的なスコアです。
※バイブルスコア詳細はこちら
バイブルスコアとは独自のAI機械学習技術を利用した物件評価システムで、物件のおすすめ度を示します。最高得点は100点で、スコアが高いほど、よりおすすめの物件と評価されています。
写真
現在写真が登録されていません契約条件
| 賃料 | 予想金額:91,000〜111,000円程度 | 管理費 | 予想金額:13,000〜17,000円程度 |
| 礼金 | 非公開(アーカイブ) | 敷金 | 非公開(アーカイブ) |
| フリーレント | なし | 平米数 | 22.58㎡ |
| 間取り | 1K | 大型収納 | |
| 契約期間 |
| 方角 | 北 |
| 更新料 | 契約形態 | 普通賃貸借契約 | |
| 取引態様 | 媒介 | 内見状況 | 入居中 |
| 入居時期 | 入居中 | SOHO・事務所 | |
| ペット | ペット可 | 間取り内訳 | 洋:7.3 |
| キャンペーン情報・備考 | 本情報は賃料改定交渉の資料作成、収益物件の利回り試算、周辺エリアや最寄り駅の坪単価分析、次回募集開始時期の予測などにご活用いただけます。 | ||
※「どの不動産に頼めばいいのか分からない」「信頼できる営業マンの話を聞きたい」「一番親切な会社と契約したい」とお悩みの方におすすめなのが「高級賃貸バイブル」です。
高級賃貸バイブルは業界10年以上の熟練スタッフ群がお客様ファーストで対応します。
下記ボタンから、まずは無料でご相談下さい。
※内覧をご希望の際には、どうぞ物件のエントランス前にてお待ち合わせくださいませ。ご内覧後は、同じ場所でお別れとさせていただきます。お客様のご都合に合わせたスムーズなご案内を心がけておりますので、ご質問等がございましたら何なりとお申し付けください。 物件概要
| 物件名 |
| 築年月 |
|
|---|---|---|---|
| 所在地 | |||
| 交通 | |||
| 総戸数 |
| 総階数 |
|
| 構造 |
| ||
地図
物件までの道のりは、「拡大地図を表示」をクリックしてナビ機能をご利用ください。
部屋設備













建物設備

TVモニターホン

エレベーター

オートロック

宅配ボックス

敷地内ゴミ置場

管理人

駐輪場
ラフィスタ品川戸越の現在募集中のお部屋
- No rooms found for this property.
