
| 賃料 | 予想金額:121,000〜141,000円程度 | 管理費 | 予想金額:13,000〜17,000円程度 |
| 礼金/敷金 | 非公開(アーカイブ) | 平米数 | 25.59㎡ |
| 初期費用概算(参考) | 目安:534,550〜634,550 円 | みなし賃料(月額・参考) | 145,449〜165,449 円 |
| 備考 | 本ページは過去募集のアーカイブです。表示の金額は周辺相場・過去募集を踏まえた参考レンジであり、実際の契約金額・条件ではありません。 | ||
※上記みなし賃料(月額)は仲介手数料割引・無料&キャッシュバックを加味した高級賃貸バイブル限定の金額です。一般的なみなし賃料とは異なります。
【建物ページ】ラフィスタ品川戸越の詳細・最新空室はこちら▶▶選ばれる理由
仲介手数料無料・キャンペーン情報(毎月15名様限定)
〇引っ越しお祝い金5000円プレゼント(キャッシュバック)
ラフィスタ品川戸越 206の口コミ・レビュー
ラフィスタ品川戸越 206。これはただの住まいではなく、あなたの新しい日常が待つ場所。北東の風が優しく吹き抜け、穏やかな朝日が差し込むこの206号室は、まるで小さな宝石のように輝いています。わずか25.59㎡という奥深い空間には、あなたの生活を豊かにするための全てが凝縮されています。
この部屋は、まるで親しい友人のように快適さを提供し、毎日を特別なものに変えてくれます。DK4.7帖のダイニングキ…ラフィスタ品川戸越 206。これはただの住まいではなく、あなたの新しい日常が待つ場所。北東の風が優しく吹き抜け、穏やかな朝日が差し込むこの206号室は、まるで小さな宝石のように輝いています。わずか25.59㎡という奥深い空間には、あなたの生活を豊かにするための全てが凝縮されています。
この部屋は、まるで親しい友人のように快適さを提供し、毎日を特別なものに変えてくれます。DK4.7帖のダイニングキッチンは、調理の音や香りを通じて、あなたの家族や友人と共に過ごす温かなひと時を演出します。ここでの料理は、ただの食事ではなく、アートのような体験。新鮮な食材を切り分ける刃の音、水が沸騰する音、そしてふわりと香ばしい匂いが漂う中で、心からの笑顔が生まれるのです。
続いて洋室4.4帖。その空間は、柔らかな光が包み込み、まるで絵画のように色彩豊かに満ちています。この部屋で過ごす夜、あなたは薄明かりの中で、読むことに没頭することができるでしょう。ページをめくる音が静かに響き、その合間に耳を澄ませば、外から聞こえる微かな風のささやきや、夜空に舞い上がる星たちの囁きが心を和ませます。
ラフィスタ品川戸越 206は、ただ美しいだけではありません。セキュリティが施されたオートロックや、宅配ボックス、駐輪場、エレベーターなどの充実した設備が整い、安心感を提供します。まるで、あなたを大切に守る専属の番人のように、生活を支えてくれる存在です。
この邸宅は、周囲に広がる歴史と文化に触れ合うための理想的な立地に位置しています。東京急行電鉄東急池上線の荏原中延駅から徒歩4分の距離で、日常の喧騒を忘れさせてくれる静寂さが魅力です。周辺には、名高い藝術館や美しい公園が点在し、散策するたびに新たな発見が待っていることでしょう。あなたの心の栄養となる、アートや文化のエッセンスが生活に溶け込んでいます。
ラフィスタ品川戸越 206での生活は、まるで映画のワンシーンのように、毎日が新しい物語を紡ぎ出します。あなたの感性が刺激され、ひとつひとつの瞬間が特別なものに変わってゆくのです。静かでありながら、力強い生命力を秘めたこの場所が、あなたを待っています。さあ、あなたの新しい物語をここから始めてみませんか。
この部屋は、まるで親しい友人のように快適さを提供し、毎日を特別なものに変えてくれます。DK4.7帖のダイニングキ…ラフィスタ品川戸越 206。これはただの住まいではなく、あなたの新しい日常が待つ場所。北東の風が優しく吹き抜け、穏やかな朝日が差し込むこの206号室は、まるで小さな宝石のように輝いています。わずか25.59㎡という奥深い空間には、あなたの生活を豊かにするための全てが凝縮されています。
この部屋は、まるで親しい友人のように快適さを提供し、毎日を特別なものに変えてくれます。DK4.7帖のダイニングキッチンは、調理の音や香りを通じて、あなたの家族や友人と共に過ごす温かなひと時を演出します。ここでの料理は、ただの食事ではなく、アートのような体験。新鮮な食材を切り分ける刃の音、水が沸騰する音、そしてふわりと香ばしい匂いが漂う中で、心からの笑顔が生まれるのです。
続いて洋室4.4帖。その空間は、柔らかな光が包み込み、まるで絵画のように色彩豊かに満ちています。この部屋で過ごす夜、あなたは薄明かりの中で、読むことに没頭することができるでしょう。ページをめくる音が静かに響き、その合間に耳を澄ませば、外から聞こえる微かな風のささやきや、夜空に舞い上がる星たちの囁きが心を和ませます。
ラフィスタ品川戸越 206は、ただ美しいだけではありません。セキュリティが施されたオートロックや、宅配ボックス、駐輪場、エレベーターなどの充実した設備が整い、安心感を提供します。まるで、あなたを大切に守る専属の番人のように、生活を支えてくれる存在です。
この邸宅は、周囲に広がる歴史と文化に触れ合うための理想的な立地に位置しています。東京急行電鉄東急池上線の荏原中延駅から徒歩4分の距離で、日常の喧騒を忘れさせてくれる静寂さが魅力です。周辺には、名高い藝術館や美しい公園が点在し、散策するたびに新たな発見が待っていることでしょう。あなたの心の栄養となる、アートや文化のエッセンスが生活に溶け込んでいます。
ラフィスタ品川戸越 206での生活は、まるで映画のワンシーンのように、毎日が新しい物語を紡ぎ出します。あなたの感性が刺激され、ひとつひとつの瞬間が特別なものに変わってゆくのです。静かでありながら、力強い生命力を秘めたこの場所が、あなたを待っています。さあ、あなたの新しい物語をここから始めてみませんか。
バイブルスコア
バイブルスコア: 55.7
条件のいい物件です、引っ越しが2か月以内の場合は仮申し込みを検討すべき物件です。
このお部屋は、現在ご入居中のため空室情報はございません。ただし、将来的に募集が開始される際、バイブルスコアにおいて非常に高い評価が期待されます。特にご興味をお持ちの方は、今のうちにブックマークやお気に入りに登録していただくと、募集開始のお知らせをすぐに受け取ることができます。是非ともご検討くださいませ。
※バイブルスコア詳細はこちら
バイブルスコアとは独自のAI機械学習技術を利用した物件評価システムで、物件のおすすめ度を示します。最高得点は100点で、スコアが高いほど、よりおすすめの物件と評価されています。
写真
現在写真が登録されていません契約条件
| 賃料 | 予想金額:121,000〜141,000円程度 | 管理費 | 予想金額:13,000〜17,000円程度 |
| 礼金 | 非公開(アーカイブ) | 敷金 | 非公開(アーカイブ) |
| フリーレント | なし | 平米数 | 25.59㎡ |
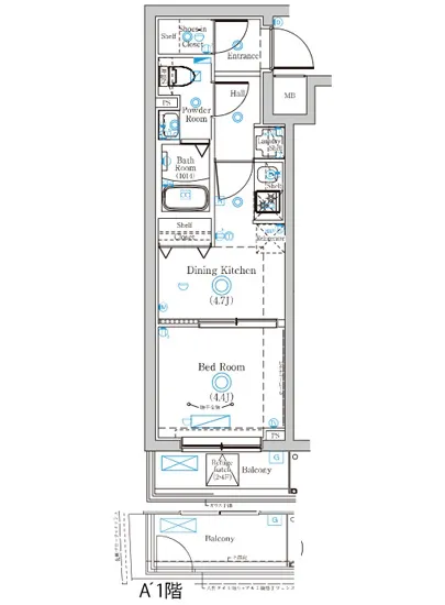
| 間取り | 1DK+SIC | 大型収納 | SIC |
| 契約期間 | 2年 | 方角 | 北東 |
| 更新料 | 1ヶ月 | 契約形態 | 普通賃貸借契約 |
| 取引態様 | 媒介 | 内見状況 | 入居中 |
| 入居時期 | 入居中 | SOHO・事務所 | 不可 |
| ペット | 可 | 間取り内訳 | DK4.7帖 洋室4.4帖 |
| キャンペーン情報・備考 | 本情報は賃料改定交渉の資料作成、収益物件の利回り試算、周辺エリアや最寄り駅の坪単価分析、次回募集開始時期の予測などにご活用いただけます。 | ||
※「どの不動産に頼めばいいのか分からない」「信頼できる営業マンの話を聞きたい」「一番親切な会社と契約したい」とお悩みの方におすすめなのが「高級賃貸バイブル」です。
高級賃貸バイブルは業界10年以上の熟練スタッフ群がお客様ファーストで対応します。
下記ボタンから、まずは無料でご相談下さい。
※内覧をご希望の際には、どうぞ物件のエントランス前にてお待ち合わせくださいませ。ご内覧後は、同じ場所でお別れとさせていただきます。お客様のご都合に合わせたスムーズなご案内を心がけておりますので、ご質問等がございましたら何なりとお申し付けください。 物件概要
| 物件名 |
| 築年月 |
|
|---|---|---|---|
| 所在地 | |||
| 交通 | |||
| 総戸数 |
| 総階数 |
|
| 構造 |
| ||
地図
物件までの道のりは、「拡大地図を表示」をクリックしてナビ機能をご利用ください。
部屋設備









建物設備

TVモニターホン

エレベーター

オートロック

宅配ボックス

敷地内ゴミ置場

管理人

駐輪場
ラフィスタ品川戸越の現在募集中のお部屋
- No rooms found for this property.
