
| 賃料 | 予想金額:109,000〜129,000円程度 | 管理費 | 予想金額:13,000〜17,000円程度 |
| 礼金/敷金 | 非公開(アーカイブ) | 平米数 | 25.01㎡ |
| 初期費用概算(参考) | 目安:242,500〜342,500 円 | みなし賃料(月額・参考) | 127,615〜147,615 円 |
| 備考 | 本ページは過去募集のアーカイブです。表示の金額は周辺相場・過去募集を踏まえた参考レンジであり、実際の契約金額・条件ではありません。 | ||
※上記みなし賃料(月額)は仲介手数料割引・無料&キャッシュバックを加味した高級賃貸バイブル限定の金額です。一般的なみなし賃料とは異なります。
【建物ページ】ラフィスタ品川戸越の詳細・最新空室はこちら▶▶選ばれる理由
仲介手数料無料・キャンペーン情報(毎月15名様限定)
〇仲介手数料割引キャンペーン
ラフィスタ品川戸越 502の口コミ・レビュー
ラフィスタ品川戸越 502。この名を耳にした瞬間、まるで心の奥底で優雅なメロディが奏でられるかのようです。東京都品川区東中延に位置するこの物件は、北の空へと開かれた窓から、静謐な風が心地よく舞い込む特別な居所です。502号室の美しい佇まいは、まるで深い森の中で見つけた一軒の木の家、自然の息吹が宿る場所のように、あなたを包み込んでくれることでしょう。
この高級賃貸物件は、25.01㎡の広々とした空…ラフィスタ品川戸越 502。この名を耳にした瞬間、まるで心の奥底で優雅なメロディが奏でられるかのようです。東京都品川区東中延に位置するこの物件は、北の空へと開かれた窓から、静謐な風が心地よく舞い込む特別な居所です。502号室の美しい佇まいは、まるで深い森の中で見つけた一軒の木の家、自然の息吹が宿る場所のように、あなたを包み込んでくれることでしょう。
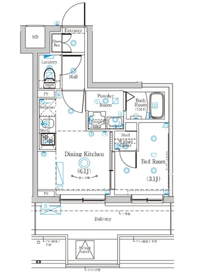
この高級賃貸物件は、25.01㎡の広々とした空間を誇り、1DKの贅沢な間取りが生活を彩ります。洋室は3.1帖、DKは6.1帖というバランスの取れた配置は、日常の喧騒を忘れさせ、心が安らぐ隠れ家のような雰囲気を醸し出しています。日差しが差し込むたびに、柔らかな光がまるであなたの頬を撫でるように、心地よい温もりを与えてくれることでしょう。
ラフィスタ品川戸越 502へ一歩足を踏み入れると、まず感じるのはその空気感。手触りの良いフローリングの上を歩くたび、まるで心が弾むように、あなたを支えてくれる存在に思えます。エレベーターを降りたその瞬間、オートロックの扉が開くと、出迎えるのは、懐かしい友人のような温かい雰囲気。宅配ボックスが完備されているため、生活の一部として当たり前の存在に思えてくるでしょう。管理人の丁寧な心配りも、この空間をより特別なものにしてくれます。
この物件は、東京急行電鉄東急池上線 荏原中延駅から徒歩4分という絶妙な立地にあり、周辺は静かでありながらも便利な生活環境が整っています。品川区の歴史ある街並みや文化が共存するこの地で、あなたはまるで映画の一場面にいるかのような感覚に浸れることでしょう。朝の目覚めには、コーヒーの香りが漂うキッチンで、こだわりの一杯を淹れながら、窓の外に広がる美しい風景を眺めることができます。夜には、柔らかな照明に包まれたダイニングで、大切な人と共に過ごす時間が、人生の大切な瞬間となることは間違いありません。
ラフィスタ品川戸越 502は、ただの住まいではなく、あなた自身の物語を紡ぐための舞台。ここでの生活は、まるで高級なシャンデリアが煌く劇場の一幕のように、色彩豊かな日々を演出してくれます。この空間があなたに与えるのは、心の豊かさ。日々の忙しさから解放され、心の平穏を見つけるための、特別な場所なのです。
是非、ラフィスタ品川戸越 502で新しい生活の扉を開いてみませんか。この場所が、あなたにとっての新たな物語の始まりとなることを、心から願っています。
この高級賃貸物件は、25.01㎡の広々とした空…ラフィスタ品川戸越 502。この名を耳にした瞬間、まるで心の奥底で優雅なメロディが奏でられるかのようです。東京都品川区東中延に位置するこの物件は、北の空へと開かれた窓から、静謐な風が心地よく舞い込む特別な居所です。502号室の美しい佇まいは、まるで深い森の中で見つけた一軒の木の家、自然の息吹が宿る場所のように、あなたを包み込んでくれることでしょう。
この高級賃貸物件は、25.01㎡の広々とした空間を誇り、1DKの贅沢な間取りが生活を彩ります。洋室は3.1帖、DKは6.1帖というバランスの取れた配置は、日常の喧騒を忘れさせ、心が安らぐ隠れ家のような雰囲気を醸し出しています。日差しが差し込むたびに、柔らかな光がまるであなたの頬を撫でるように、心地よい温もりを与えてくれることでしょう。
ラフィスタ品川戸越 502へ一歩足を踏み入れると、まず感じるのはその空気感。手触りの良いフローリングの上を歩くたび、まるで心が弾むように、あなたを支えてくれる存在に思えます。エレベーターを降りたその瞬間、オートロックの扉が開くと、出迎えるのは、懐かしい友人のような温かい雰囲気。宅配ボックスが完備されているため、生活の一部として当たり前の存在に思えてくるでしょう。管理人の丁寧な心配りも、この空間をより特別なものにしてくれます。
この物件は、東京急行電鉄東急池上線 荏原中延駅から徒歩4分という絶妙な立地にあり、周辺は静かでありながらも便利な生活環境が整っています。品川区の歴史ある街並みや文化が共存するこの地で、あなたはまるで映画の一場面にいるかのような感覚に浸れることでしょう。朝の目覚めには、コーヒーの香りが漂うキッチンで、こだわりの一杯を淹れながら、窓の外に広がる美しい風景を眺めることができます。夜には、柔らかな照明に包まれたダイニングで、大切な人と共に過ごす時間が、人生の大切な瞬間となることは間違いありません。
ラフィスタ品川戸越 502は、ただの住まいではなく、あなた自身の物語を紡ぐための舞台。ここでの生活は、まるで高級なシャンデリアが煌く劇場の一幕のように、色彩豊かな日々を演出してくれます。この空間があなたに与えるのは、心の豊かさ。日々の忙しさから解放され、心の平穏を見つけるための、特別な場所なのです。
是非、ラフィスタ品川戸越 502で新しい生活の扉を開いてみませんか。この場所が、あなたにとっての新たな物語の始まりとなることを、心から願っています。
バイブルスコア
バイブルスコア: 23.9
平均的なスコアです。
※バイブルスコア詳細はこちら
バイブルスコアとは独自のAI機械学習技術を利用した物件評価システムで、物件のおすすめ度を示します。最高得点は100点で、スコアが高いほど、よりおすすめの物件と評価されています。
写真
現在写真が登録されていません契約条件
| 賃料 | 予想金額:109,000〜129,000円程度 | 管理費 | 予想金額:13,000〜17,000円程度 |
| 礼金 | 非公開(アーカイブ) | 敷金 | 非公開(アーカイブ) |
| フリーレント | なし | 平米数 | 25.01㎡ |
| 間取り | 1DK | 大型収納 | WIC |
| 契約期間 |
| 方角 | 北 |
| 更新料 | 契約形態 | 普通賃貸借契約 | |
| 取引態様 | 媒介 | 内見状況 | 入居中 |
| 入居時期 | 入居中 | SOHO・事務所 | |
| ペット | ペット可 | 間取り内訳 | 洋:3.1 DK:6.1 |
| キャンペーン情報・備考 | 本情報は賃料改定交渉の資料作成、収益物件の利回り試算、周辺エリアや最寄り駅の坪単価分析、次回募集開始時期の予測などにご活用いただけます。 | ||
※「どの不動産に頼めばいいのか分からない」「信頼できる営業マンの話を聞きたい」「一番親切な会社と契約したい」とお悩みの方におすすめなのが「高級賃貸バイブル」です。
高級賃貸バイブルは業界10年以上の熟練スタッフ群がお客様ファーストで対応します。
下記ボタンから、まずは無料でご相談下さい。
※内覧をご希望の際には、どうぞ物件のエントランス前にてお待ち合わせくださいませ。ご内覧後は、同じ場所でお別れとさせていただきます。お客様のご都合に合わせたスムーズなご案内を心がけておりますので、ご質問等がございましたら何なりとお申し付けください。 物件概要
| 物件名 |
| 築年月 |
|
|---|---|---|---|
| 所在地 | |||
| 交通 | |||
| 総戸数 |
| 総階数 |
|
| 構造 |
| ||
地図
物件までの道のりは、「拡大地図を表示」をクリックしてナビ機能をご利用ください。
部屋設備














建物設備

TVモニターホン

エレベーター

オートロック

宅配ボックス

敷地内ゴミ置場

管理人

駐輪場
ラフィスタ品川戸越の現在募集中のお部屋
- No rooms found for this property.
