
| 賃料 | 予想金額:248,000〜268,000円程度 | 管理費 | 予想金額:13,000〜17,000円程度 |
| 礼金/敷金 | 非公開(アーカイブ) | 平米数 | 44.48㎡ |
| 初期費用概算(参考) | 目安:598,000〜698,000 円 | みなし賃料(月額・参考) | 271,125〜291,125 円 |
| 備考 | 本ページは過去募集のアーカイブです。表示の金額は周辺相場・過去募集を踏まえた参考レンジであり、実際の契約金額・条件ではありません。 | ||
※上記みなし賃料(月額)は仲介手数料割引・無料&キャッシュバックを加味した高級賃貸バイブル限定の金額です。一般的なみなし賃料とは異なります。
【建物ページ】白金台アパートメントの詳細・最新空室はこちら▶▶選ばれる理由
仲介手数料無料・キャンペーン情報(毎月15名様限定)
〇引っ越しお祝い金56000円プレゼント(キャッシュバック)
〇仲介手数料無料キャンペーン
白金台アパートメント 402の口コミ・レビュー
白金台アパートメント 402。この言葉を耳にした瞬間、あなたの心に何か特別な感覚が芽生えることでしょう。まるで新しい物語の扉が開かれ、日常が映画のワンシーンへと変わる瞬間です。東京都港区白金台、静謐さと洗練を兼ね備えたこの地に立つ白金台アパートメント 402は、あなたの生活をより豊かに彩る舞台です。
北東を向いた窓からは、朝日の優しい光が淡い色合いで室内を包み込みます。洋室15.3帖のこの空間は…白金台アパートメント 402。この言葉を耳にした瞬間、あなたの心に何か特別な感覚が芽生えることでしょう。まるで新しい物語の扉が開かれ、日常が映画のワンシーンへと変わる瞬間です。東京都港区白金台、静謐さと洗練を兼ね備えたこの地に立つ白金台アパートメント 402は、あなたの生活をより豊かに彩る舞台です。
北東を向いた窓からは、朝日の優しい光が淡い色合いで室内を包み込みます。洋室15.3帖のこの空間は、まるで柔らかな絹のような感触をあなたに与え、清々しい一日の始まりを告げます。静寂の中に耳を澄ませば、外から聞こえる鳥のさえずりが心地よいメロディーを奏で、あなたの心を整えてくれることでしょう。新鮮な朝の空気は、まるで朝食の香ばしいパンが焼ける匂いを運んできて、五感が刺激されるのです。
白金台アパートメント 402での生活は、ただの居住空間に留まらず、芸術的な生活をもたらします。デザイナーズの洗練された内装は、一つ一つの家具や装飾がまるで美術館の展示品のように配置され、あなたの創造力を掻き立てます。毎日の暮らしが、まるで映画のセットのように、あなた自身が主人公になるのです。
自宅の中には、TVモニターホンやオートロックといった安心の設備が整っており、訪れる人々にもそのエレガンスを感じさせます。宅配ボックスは、日常の利便性を高め、忙しいあなたの生活を一層快適にサポートしてくれるでしょう。駐車場は機械式で、都市生活者に求められるスマートな生活を実現します。
周囲は、ゆったりとした緑に包まれた街並みが広がり、散歩をすれば歴史深い文化や、アートが息づく地であることを実感できます。東京メトロ南北線白金台駅まで徒歩5分という立地は、都市の中心にアクセスしながらも、静けさを保障してくれます。日常の喧騒から離れ、あなたのための静かなオアシスとなるのです。
白金台アパートメント 402での生活は、あなたに優雅で豊かな時間をもたらします。夜になれば、窓から見える星々がまるであなたを祝福するかのように輝き、心を解きほぐしてくれるでしょう。自宅での一杯のワインや、友人との語らいが、心に残る特別な思い出を築く瞬間に変わります。
この空間での生活は、ただの居住ではなく、誰もが羨む素晴らしい物語をあなたの手の中に運び入れるものです。白金台アパートメント 402は、あなたを待っています。新しい一歩を踏み出し、心豊かな生活を始める準備をしてみてはいかがでしょうか。あなたの新しい物語の舞台を、ここで紡いでいきましょう。
北東を向いた窓からは、朝日の優しい光が淡い色合いで室内を包み込みます。洋室15.3帖のこの空間は…白金台アパートメント 402。この言葉を耳にした瞬間、あなたの心に何か特別な感覚が芽生えることでしょう。まるで新しい物語の扉が開かれ、日常が映画のワンシーンへと変わる瞬間です。東京都港区白金台、静謐さと洗練を兼ね備えたこの地に立つ白金台アパートメント 402は、あなたの生活をより豊かに彩る舞台です。
北東を向いた窓からは、朝日の優しい光が淡い色合いで室内を包み込みます。洋室15.3帖のこの空間は、まるで柔らかな絹のような感触をあなたに与え、清々しい一日の始まりを告げます。静寂の中に耳を澄ませば、外から聞こえる鳥のさえずりが心地よいメロディーを奏で、あなたの心を整えてくれることでしょう。新鮮な朝の空気は、まるで朝食の香ばしいパンが焼ける匂いを運んできて、五感が刺激されるのです。
白金台アパートメント 402での生活は、ただの居住空間に留まらず、芸術的な生活をもたらします。デザイナーズの洗練された内装は、一つ一つの家具や装飾がまるで美術館の展示品のように配置され、あなたの創造力を掻き立てます。毎日の暮らしが、まるで映画のセットのように、あなた自身が主人公になるのです。
自宅の中には、TVモニターホンやオートロックといった安心の設備が整っており、訪れる人々にもそのエレガンスを感じさせます。宅配ボックスは、日常の利便性を高め、忙しいあなたの生活を一層快適にサポートしてくれるでしょう。駐車場は機械式で、都市生活者に求められるスマートな生活を実現します。
周囲は、ゆったりとした緑に包まれた街並みが広がり、散歩をすれば歴史深い文化や、アートが息づく地であることを実感できます。東京メトロ南北線白金台駅まで徒歩5分という立地は、都市の中心にアクセスしながらも、静けさを保障してくれます。日常の喧騒から離れ、あなたのための静かなオアシスとなるのです。
白金台アパートメント 402での生活は、あなたに優雅で豊かな時間をもたらします。夜になれば、窓から見える星々がまるであなたを祝福するかのように輝き、心を解きほぐしてくれるでしょう。自宅での一杯のワインや、友人との語らいが、心に残る特別な思い出を築く瞬間に変わります。
この空間での生活は、ただの居住ではなく、誰もが羨む素晴らしい物語をあなたの手の中に運び入れるものです。白金台アパートメント 402は、あなたを待っています。新しい一歩を踏み出し、心豊かな生活を始める準備をしてみてはいかがでしょうか。あなたの新しい物語の舞台を、ここで紡いでいきましょう。
バイブルスコア
バイブルスコア: 66.8
かなり条件の良い物件です、即仮押さえをおすすめする物件です!
このお部屋は、現在ご入居中のため空室情報はございません。ただし、将来的に募集が開始される際、バイブルスコアにおいて非常に高い評価が期待されます。特にご興味をお持ちの方は、今のうちにブックマークやお気に入りに登録していただくと、募集開始のお知らせをすぐに受け取ることができます。是非ともご検討くださいませ。
※バイブルスコア詳細はこちら
バイブルスコアとは独自のAI機械学習技術を利用した物件評価システムで、物件のおすすめ度を示します。最高得点は100点で、スコアが高いほど、よりおすすめの物件と評価されています。
写真
契約条件
| 賃料 | 予想金額:248,000〜268,000円程度 | 管理費 | 予想金額:13,000〜17,000円程度 |
| 礼金 | 非公開(アーカイブ) | 敷金 | 非公開(アーカイブ) |
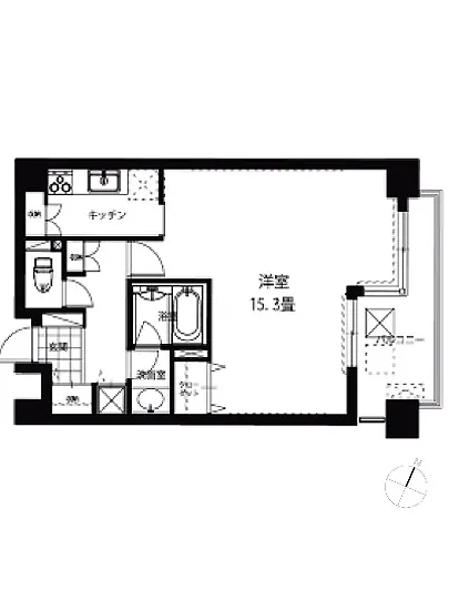
| フリーレント | なし | 平米数 | 44.48㎡ |
| 間取り | 1LDK | 大型収納 | なし |
| 契約期間 | 2年 | 方角 | 北東 |
| 更新料 | 1ヶ月 | 契約形態 | 普通賃貸借契約 |
| 取引態様 | 媒介 | 内見状況 | 入居中 |
| 入居時期 | 入居中 | SOHO・事務所 | 不可 |
| ペット | 不可 | 間取り内訳 | LDK11.9帖 洋室5.2帖 |
| キャンペーン情報・備考 | 本情報は賃料改定交渉の資料作成、収益物件の利回り試算、周辺エリアや最寄り駅の坪単価分析、次回募集開始時期の予測などにご活用いただけます。 | ||
※「どの不動産に頼めばいいのか分からない」「信頼できる営業マンの話を聞きたい」「一番親切な会社と契約したい」とお悩みの方におすすめなのが「高級賃貸バイブル」です。
高級賃貸バイブルは業界10年以上の熟練スタッフ群がお客様ファーストで対応します。
下記ボタンから、まずは無料でご相談下さい。
※内覧をご希望の際には、どうぞ物件のエントランス前にてお待ち合わせくださいませ。ご内覧後は、同じ場所でお別れとさせていただきます。お客様のご都合に合わせたスムーズなご案内を心がけておりますので、ご質問等がございましたら何なりとお申し付けください。 物件概要
| 物件名 |
| 築年月 |
|
|---|---|---|---|
| 所在地 | |||
| 交通 | |||
| 総戸数 |
| 総階数 |
|
| 構造 |
| ||
地図
物件までの道のりは、「拡大地図を表示」をクリックしてナビ機能をご利用ください。
部屋設備









建物設備

TVモニターホン

エレベーター

オートロック

宅配ボックス

敷地内ゴミ置場

駐車場機械式

駐輪場
白金台アパートメントの現在募集中のお部屋
- No rooms found for this property.


















