
| 賃料 | 予想金額:105,000〜125,000円程度 | 管理費 | 予想金額:8,000〜12,000円程度 |
| 礼金/敷金 | 非公開(アーカイブ) | 平米数 | 25.19㎡ |
| 初期費用概算(参考) | 目安:344,000〜444,000 円 | みなし賃料(月額・参考) | 120,813〜140,813 円 |
| 備考 | 本ページは過去募集のアーカイブです。表示の金額は周辺相場・過去募集を踏まえた参考レンジであり、実際の契約金額・条件ではありません。 | ||
※上記みなし賃料(月額)は仲介手数料割引・無料&キャッシュバックを加味した高級賃貸バイブル限定の金額です。一般的なみなし賃料とは異なります。
【建物ページ】ジェノヴィア上野2スカイガーデンの詳細・最新空室はこちら▶▶選ばれる理由
仲介手数料無料・キャンペーン情報(毎月15名様限定)
〇仲介手数料割引キャンペーン
ジェノヴィア上野2スカイガーデン 1001の口コミ・レビュー
ジェノヴィア上野2スカイガーデン 1001。この名が響くとき、そこには洗練された生活の舞台が広がります。東京都台東区上野1-5-5にそびえ立つこの高級賃貸物件は、ただの住まいを超え、心躍る物語の始まりを告げる存在なのです。北西に面した窓からは、静かに流れる時間の中で、都会の喧騒をやわらげながらも、心地よい日差しが差し込みます。25.19㎡の広さは、まるでキャンバスのように、あなたの暮らしを彩る余地…ジェノヴィア上野2スカイガーデン 1001。この名が響くとき、そこには洗練された生活の舞台が広がります。東京都台東区上野1-5-5にそびえ立つこの高級賃貸物件は、ただの住まいを超え、心躍る物語の始まりを告げる存在なのです。北西に面した窓からは、静かに流れる時間の中で、都会の喧騒をやわらげながらも、心地よい日差しが差し込みます。25.19㎡の広さは、まるでキャンバスのように、あなたの暮らしを彩る余地を与えてくれます。
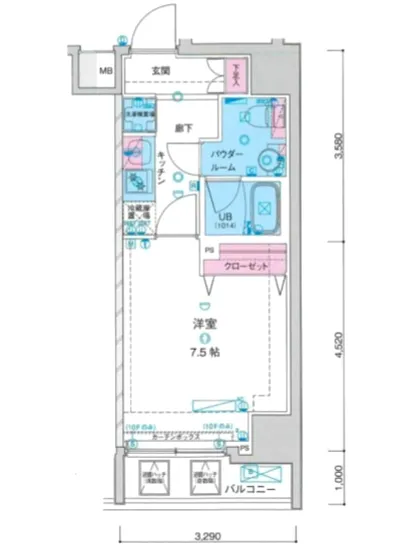
想像してください、朝の光が優しく差し込み、7.5帖の洋室が温かな色合いに包まれる瞬間を。窓を開ければ、上野の街の香り、花や木々が甘く香る、そして人々の喜ぶ声がまるで楽器のように響き渡ってきます。あなたはここで、コーヒーの香りが漂うキッチンで朝食を楽しみ、陽の光に照らされたテーブルで読む本のページが、静かに風に揺れているのを感じることでしょう。まるで映画のワンシーンのように、日常の中の特別な瞬間が生まれる場所、それがジェノヴィア上野2スカイガーデン 1001です。
この物件には、TVモニターホンやエレベーター、オートロックといった便利な設備が整っています。これらはまるであなたの生活の守護者のように、安らぎをもたらしてくれます。さらに、バイク置場や宅配ボックス、近隣の散歩道から隠れるように配置された駐輪場は、あなたの移動をより自由に、楽しくしてくれることでしょう。管理人が常駐し、安心感を添えてくれます。
上野は文化の香りが漂う街。美術館や博物館、歴史的な建物が点在するこの場所で、あなたの生活はただのルーティンではなく、アートのように美しい日々を送ることができるのです。深い緑に囲まれた公園で過ごす午後や、近くのカフェで優雅に過ごす時間は、まるで異国情緒溢れる旅行のように感じられるでしょう。
ジェノヴィア上野2スカイガーデン 1001での生活は、心に刻まれる物語を紡ぐ手助けをしてくれます。ここに住む一歩一歩が、あなたの日常を映画のようなドラマに変えてくれるのです。おしゃれなインテリアや、さりげない装飾が施された空間で、あなたは人生の主役として歩み続けることができるでしょう。新しい生活が始まる、その瞬間を待ちわびています。あなたの物語は、ジェノヴィア上野2スカイガーデン 1001で始まるのです。
想像してください、朝の光が優しく差し込み、7.5帖の洋室が温かな色合いに包まれる瞬間を。窓を開ければ、上野の街の香り、花や木々が甘く香る、そして人々の喜ぶ声がまるで楽器のように響き渡ってきます。あなたはここで、コーヒーの香りが漂うキッチンで朝食を楽しみ、陽の光に照らされたテーブルで読む本のページが、静かに風に揺れているのを感じることでしょう。まるで映画のワンシーンのように、日常の中の特別な瞬間が生まれる場所、それがジェノヴィア上野2スカイガーデン 1001です。
この物件には、TVモニターホンやエレベーター、オートロックといった便利な設備が整っています。これらはまるであなたの生活の守護者のように、安らぎをもたらしてくれます。さらに、バイク置場や宅配ボックス、近隣の散歩道から隠れるように配置された駐輪場は、あなたの移動をより自由に、楽しくしてくれることでしょう。管理人が常駐し、安心感を添えてくれます。
上野は文化の香りが漂う街。美術館や博物館、歴史的な建物が点在するこの場所で、あなたの生活はただのルーティンではなく、アートのように美しい日々を送ることができるのです。深い緑に囲まれた公園で過ごす午後や、近くのカフェで優雅に過ごす時間は、まるで異国情緒溢れる旅行のように感じられるでしょう。
ジェノヴィア上野2スカイガーデン 1001での生活は、心に刻まれる物語を紡ぐ手助けをしてくれます。ここに住む一歩一歩が、あなたの日常を映画のようなドラマに変えてくれるのです。おしゃれなインテリアや、さりげない装飾が施された空間で、あなたは人生の主役として歩み続けることができるでしょう。新しい生活が始まる、その瞬間を待ちわびています。あなたの物語は、ジェノヴィア上野2スカイガーデン 1001で始まるのです。
バイブルスコア
バイブルスコア: 34.1
平均的なスコアです。
※バイブルスコア詳細はこちら
バイブルスコアとは独自のAI機械学習技術を利用した物件評価システムで、物件のおすすめ度を示します。最高得点は100点で、スコアが高いほど、よりおすすめの物件と評価されています。
写真
契約条件
| 賃料 | 予想金額:105,000〜125,000円程度 | 管理費 | 予想金額:8,000〜12,000円程度 |
| 礼金 | 非公開(アーカイブ) | 敷金 | 非公開(アーカイブ) |
| フリーレント | なし | 平米数 | 25.19㎡ |
| 間取り | 1K | 大型収納 | |
| 契約期間 |
| 方角 | 北西 |
| 更新料 | 契約形態 | 普通賃貸借契約 | |
| 取引態様 | 媒介 | 内見状況 | 入居中 |
| 入居時期 | 入居中 | SOHO・事務所 | |
| ペット | ペット可 | 間取り内訳 | 洋:7.5 |
| キャンペーン情報・備考 | 本情報は賃料改定交渉の資料作成、収益物件の利回り試算、周辺エリアや最寄り駅の坪単価分析、次回募集開始時期の予測などにご活用いただけます。 | ||
※「どの不動産に頼めばいいのか分からない」「信頼できる営業マンの話を聞きたい」「一番親切な会社と契約したい」とお悩みの方におすすめなのが「高級賃貸バイブル」です。
高級賃貸バイブルは業界10年以上の熟練スタッフ群がお客様ファーストで対応します。
下記ボタンから、まずは無料でご相談下さい。
※内覧をご希望の際には、どうぞ物件のエントランス前にてお待ち合わせくださいませ。ご内覧後は、同じ場所でお別れとさせていただきます。お客様のご都合に合わせたスムーズなご案内を心がけておりますので、ご質問等がございましたら何なりとお申し付けください。 物件概要
| 物件名 |
| 築年月 |
|
|---|---|---|---|
| 所在地 | |||
| 交通 | |||
| 総戸数 |
| 総階数 |
|
| 構造 |
| ||
地図
物件までの道のりは、「拡大地図を表示」をクリックしてナビ機能をご利用ください。
部屋設備













建物設備

TVモニターホン

エレベーター

オートロック

バイク置場

宅配ボックス

敷地内ゴミ置場

管理人

駐車場平置き

駐車場機械式

駐輪場
ジェノヴィア上野2スカイガーデンの現在募集中のお部屋
- No rooms found for this property.















