
| 賃料 | 予想金額:109,000〜129,000円程度 | 管理費 | 予想金額:8,000〜12,000円程度 |
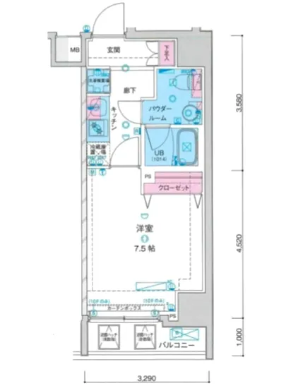
| 礼金/敷金 | 非公開(アーカイブ) | 平米数 | 25.19㎡ |
| 初期費用概算(参考) | 目安:235,750〜335,750 円 | みなし賃料(月額・参考) | 122,964〜142,964 円 |
| 備考 | 本ページは過去募集のアーカイブです。表示の金額は周辺相場・過去募集を踏まえた参考レンジであり、実際の契約金額・条件ではありません。 | ||
※上記みなし賃料(月額)は仲介手数料割引・無料&キャッシュバックを加味した高級賃貸バイブル限定の金額です。一般的なみなし賃料とは異なります。
【建物ページ】ジェノヴィア上野2スカイガーデンの詳細・最新空室はこちら▶▶選ばれる理由
仲介手数料無料・キャンペーン情報(毎月15名様限定)
〇仲介手数料割引キャンペーン
ジェノヴィア上野2スカイガーデン 901の口コミ・レビュー
ジェノヴィア上野2スカイガーデン 901は、東京都台東区上野1-5-5という魅力的な地に佇む高級賃貸物件です。物件の名は、まるで美しい楽曲のように響き渡り、あなたを特別な世界へと誘います。北西向きのこの住居は、日々の暮らしに彩りを添えるための舞台として、洗練された空間を提供します。専有面積25.19㎡の中には、7.5帖の洋室があなたのための心地よい安息をもたらし、心温まるひとときを約束します。
…ジェノヴィア上野2スカイガーデン 901は、東京都台東区上野1-5-5という魅力的な地に佇む高級賃貸物件です。物件の名は、まるで美しい楽曲のように響き渡り、あなたを特別な世界へと誘います。北西向きのこの住居は、日々の暮らしに彩りを添えるための舞台として、洗練された空間を提供します。専有面積25.19㎡の中には、7.5帖の洋室があなたのための心地よい安息をもたらし、心温まるひとときを約束します。
この物件の空間は、ただの居住スペースではなく、まるで心の奥深くに触れる詩のようです。お部屋の窓から差し込む柔らかな光は、金色の糸を編み込んだかのように、あなたの毎日を照らします。また、朝の清々しい空気は、まるで新しい一日を迎えるための清らかな香りのように、あなたの心を躍動させます。あなたが目覚めた瞬間、そこには新たな世界が広がっているのです。
ジェノヴィア上野2スカイガーデン 901には、現代の生活に欠かせない設備が整っています。TVモニターホンやオートロックシステムは、まるで忠実な番人のように、安心を守ってくれるでしょう。エレベーターでの上昇は、まさに空中を舞うかのような高揚感。宅配ボックスは、あなたの大切な荷物を守る守護天使となり、いつでも安心して受け取ることができます。また、駐車場や駐輪場が完備されているため、さまざまなライフスタイルに柔軟に対応することが可能です。
周辺の歴史や文化に目を向ければ、上野はアートや伝統が息づく街。上野恩賜公園や国立西洋美術館など、歩いていける距離には多くのスポットが広がり、あなたの感性を豊かに育んでくれるでしょう。歴史の息吹が感じられるこの土地で、毎日のように美術館や博物館を訪れることは、あなたの心に深い感動をもたらします。まるで映画のワンシーンのような日常が、ここから始まるのです。
ジェノヴィア上野2スカイガーデン 901は、ただの住まいではありません。ここでの生活は、五感を刺激する特別な体験そのものです。薄明かりの中で、あなたは自分だけの物語を紡ぎ出し、静かな夜には心地よい風に包まれながら、星々に語りかけることでしょう。味覚を楽しむための食材を選び、料理をする際には、料理の香りが漂い、心を豊かにするひとときを演出します。この場所で過ごす時間は、まさに至福のひととき。
あなたの新しい生活の舞台、ジェノヴィア上野2スカイガーデン 901は、他にはない特別な場所です。新たな出会いや感動が待つこの空間で、日々の生活を輝かせる旅の始まりを感じてください。あなたを迎える準備は整っています。さあ、心を開いて、この美しい住まいの物語を歩み出しましょう。
…ジェノヴィア上野2スカイガーデン 901は、東京都台東区上野1-5-5という魅力的な地に佇む高級賃貸物件です。物件の名は、まるで美しい楽曲のように響き渡り、あなたを特別な世界へと誘います。北西向きのこの住居は、日々の暮らしに彩りを添えるための舞台として、洗練された空間を提供します。専有面積25.19㎡の中には、7.5帖の洋室があなたのための心地よい安息をもたらし、心温まるひとときを約束します。
この物件の空間は、ただの居住スペースではなく、まるで心の奥深くに触れる詩のようです。お部屋の窓から差し込む柔らかな光は、金色の糸を編み込んだかのように、あなたの毎日を照らします。また、朝の清々しい空気は、まるで新しい一日を迎えるための清らかな香りのように、あなたの心を躍動させます。あなたが目覚めた瞬間、そこには新たな世界が広がっているのです。
ジェノヴィア上野2スカイガーデン 901には、現代の生活に欠かせない設備が整っています。TVモニターホンやオートロックシステムは、まるで忠実な番人のように、安心を守ってくれるでしょう。エレベーターでの上昇は、まさに空中を舞うかのような高揚感。宅配ボックスは、あなたの大切な荷物を守る守護天使となり、いつでも安心して受け取ることができます。また、駐車場や駐輪場が完備されているため、さまざまなライフスタイルに柔軟に対応することが可能です。
周辺の歴史や文化に目を向ければ、上野はアートや伝統が息づく街。上野恩賜公園や国立西洋美術館など、歩いていける距離には多くのスポットが広がり、あなたの感性を豊かに育んでくれるでしょう。歴史の息吹が感じられるこの土地で、毎日のように美術館や博物館を訪れることは、あなたの心に深い感動をもたらします。まるで映画のワンシーンのような日常が、ここから始まるのです。
ジェノヴィア上野2スカイガーデン 901は、ただの住まいではありません。ここでの生活は、五感を刺激する特別な体験そのものです。薄明かりの中で、あなたは自分だけの物語を紡ぎ出し、静かな夜には心地よい風に包まれながら、星々に語りかけることでしょう。味覚を楽しむための食材を選び、料理をする際には、料理の香りが漂い、心を豊かにするひとときを演出します。この場所で過ごす時間は、まさに至福のひととき。
あなたの新しい生活の舞台、ジェノヴィア上野2スカイガーデン 901は、他にはない特別な場所です。新たな出会いや感動が待つこの空間で、日々の生活を輝かせる旅の始まりを感じてください。あなたを迎える準備は整っています。さあ、心を開いて、この美しい住まいの物語を歩み出しましょう。
バイブルスコア
バイブルスコア: 28.1
平均的なスコアです。
※バイブルスコア詳細はこちら
バイブルスコアとは独自のAI機械学習技術を利用した物件評価システムで、物件のおすすめ度を示します。最高得点は100点で、スコアが高いほど、よりおすすめの物件と評価されています。
写真
契約条件
| 賃料 | 予想金額:109,000〜129,000円程度 | 管理費 | 予想金額:8,000〜12,000円程度 |
| 礼金 | 非公開(アーカイブ) | 敷金 | 非公開(アーカイブ) |
| フリーレント | なし | 平米数 | 25.19㎡ |
| 間取り | 1K | 大型収納 | |
| 契約期間 |
| 方角 | 北西 |
| 更新料 | 契約形態 | 普通賃貸借契約 | |
| 取引態様 | 媒介 | 内見状況 | 入居中 |
| 入居時期 | 入居中 | SOHO・事務所 | |
| ペット | ペット可 | 間取り内訳 | 洋:7.5 |
| キャンペーン情報・備考 | 本情報は賃料改定交渉の資料作成、収益物件の利回り試算、周辺エリアや最寄り駅の坪単価分析、次回募集開始時期の予測などにご活用いただけます。 | ||
※「どの不動産に頼めばいいのか分からない」「信頼できる営業マンの話を聞きたい」「一番親切な会社と契約したい」とお悩みの方におすすめなのが「高級賃貸バイブル」です。
高級賃貸バイブルは業界10年以上の熟練スタッフ群がお客様ファーストで対応します。
下記ボタンから、まずは無料でご相談下さい。
※内覧をご希望の際には、どうぞ物件のエントランス前にてお待ち合わせくださいませ。ご内覧後は、同じ場所でお別れとさせていただきます。お客様のご都合に合わせたスムーズなご案内を心がけておりますので、ご質問等がございましたら何なりとお申し付けください。 物件概要
| 物件名 |
| 築年月 |
|
|---|---|---|---|
| 所在地 | |||
| 交通 | |||
| 総戸数 |
| 総階数 |
|
| 構造 |
| ||
地図
物件までの道のりは、「拡大地図を表示」をクリックしてナビ機能をご利用ください。
部屋設備













建物設備

TVモニターホン

エレベーター

オートロック

バイク置場

宅配ボックス

敷地内ゴミ置場

管理人

駐車場平置き

駐車場機械式

駐輪場
ジェノヴィア上野2スカイガーデンの現在募集中のお部屋
- No rooms found for this property.















