
| 賃料 | 予想金額:165,000〜185,000円程度 | 管理費 | 予想金額:13,000〜17,000円程度 |
| 礼金/敷金 | 非公開(アーカイブ) | 平米数 | 40.13㎡ |
| 初期費用概算(参考) | 目安:391,500〜491,500 円 | みなし賃料(月額・参考) | 185,552〜205,552 円 |
| 備考 | 本ページは過去募集のアーカイブです。表示の金額は周辺相場・過去募集を踏まえた参考レンジであり、実際の契約金額・条件ではありません。 | ||
※上記みなし賃料(月額)は仲介手数料割引・無料&キャッシュバックを加味した高級賃貸バイブル限定の金額です。一般的なみなし賃料とは異なります。
【建物ページ】ジェノヴィア上野2スカイガーデンの詳細・最新空室はこちら▶▶選ばれる理由
仲介手数料無料・キャンペーン情報(毎月15名様限定)
〇引っ越しお祝い金38500円プレゼント(キャッシュバック)
〇仲介手数料無料キャンペーン
ジェノヴィア上野2スカイガーデン 1102の口コミ・レビュー
ジェノヴィア上野2スカイガーデン 1102という名の物件は、まるで初夏の爽やかな風が吹き抜ける瞬間を、その扉を開けた先にあなたに提供します。東京都台東区上野1-5-5に位置し、北東の空を見上げると、心を打つような瞬間が待っていることでしょう。この物件には、新たな生活の物語が詰まっており、あなたの夢と欲望を刺激する香りが漂っています。
まず、この美しい1LDKの空間は、全体で40.13㎡という広さ…ジェノヴィア上野2スカイガーデン 1102という名の物件は、まるで初夏の爽やかな風が吹き抜ける瞬間を、その扉を開けた先にあなたに提供します。東京都台東区上野1-5-5に位置し、北東の空を見上げると、心を打つような瞬間が待っていることでしょう。この物件には、新たな生活の物語が詰まっており、あなたの夢と欲望を刺激する香りが漂っています。
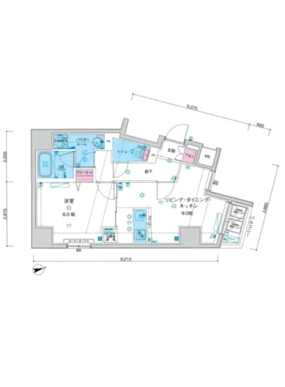
まず、この美しい1LDKの空間は、全体で40.13㎡という広さを誇り、居住空間はまさに贅沢。穏やかな日差しが注ぎ込むLDKは、9帖のゆったりとした広さを持ち、心が安らぐ場所として最適です。ここでは、朝の光を浴びながら、温かいコーヒーの香りが漂うキッチンで新たな一日を迎えることができます。日の出と共に、窓から差し込む光がキラキラと反射し、心地よい音楽が流れるような瞬間があなたを包み込みます。生活の中で、季節の移り変わりを感じることができる、そんな貴重な体験がここにあります。
そして、6帖の洋室は、あなたのためのプライベートな隠れ家です。柔らかな光が差し込み、心地よい風がそよぐこの空間は、贅沢な読書タイムやリラックスできる瞬間を提供します。ここにいると、まるで自分だけの映画のワンシーンにいるかのような、特別な体験が待っているのです。
ジェノヴィア上野2スカイガーデン 1102には、上品な設備がそろっています。TVモニターホンやオートロックは、あなたと大切な家族を守るための強力な味方です。宅配ボックスや敷地内ゴミ置場など、日常の生活を助ける便利な設備も完備されており、まるでこの住まいがあなたに寄り添っているかのようです。エレベーターで上るたびに、まるで特別なレセプションに招かれているかのように感じることでしょう。
周囲には、上野公園や博物館、アートギャラリーが広がり、文化に包まれた生活を楽しむことができます。街の歴史が息づく上野で、新たな発見があなたを待っています。美術館で心を打たれる作品に出会い、散策する道すがらに感じる風の中にさまざまな感情が紛れ込んでいるのです。この街に住むことは、ただの生活ではなく、心豊かな人生の一部となることでしょう。
ジェノヴィア上野2スカイガーデン 1102は、あなたの新たな生活の舞台です。ここでの生活は、一つ一つの瞬間が映画のように心に刻まれ、忘れられない思い出となることでしょう。あなたの物語が始まる場所、それがジェノヴィア上野2スカイガーデン 1102です。もう一歩踏み出して、心と体が望む新しい世界へ飛び込んでみませんか。あなたの新たな住まいで、素敵な物語を始めましょう。
まず、この美しい1LDKの空間は、全体で40.13㎡という広さ…ジェノヴィア上野2スカイガーデン 1102という名の物件は、まるで初夏の爽やかな風が吹き抜ける瞬間を、その扉を開けた先にあなたに提供します。東京都台東区上野1-5-5に位置し、北東の空を見上げると、心を打つような瞬間が待っていることでしょう。この物件には、新たな生活の物語が詰まっており、あなたの夢と欲望を刺激する香りが漂っています。
まず、この美しい1LDKの空間は、全体で40.13㎡という広さを誇り、居住空間はまさに贅沢。穏やかな日差しが注ぎ込むLDKは、9帖のゆったりとした広さを持ち、心が安らぐ場所として最適です。ここでは、朝の光を浴びながら、温かいコーヒーの香りが漂うキッチンで新たな一日を迎えることができます。日の出と共に、窓から差し込む光がキラキラと反射し、心地よい音楽が流れるような瞬間があなたを包み込みます。生活の中で、季節の移り変わりを感じることができる、そんな貴重な体験がここにあります。
そして、6帖の洋室は、あなたのためのプライベートな隠れ家です。柔らかな光が差し込み、心地よい風がそよぐこの空間は、贅沢な読書タイムやリラックスできる瞬間を提供します。ここにいると、まるで自分だけの映画のワンシーンにいるかのような、特別な体験が待っているのです。
ジェノヴィア上野2スカイガーデン 1102には、上品な設備がそろっています。TVモニターホンやオートロックは、あなたと大切な家族を守るための強力な味方です。宅配ボックスや敷地内ゴミ置場など、日常の生活を助ける便利な設備も完備されており、まるでこの住まいがあなたに寄り添っているかのようです。エレベーターで上るたびに、まるで特別なレセプションに招かれているかのように感じることでしょう。
周囲には、上野公園や博物館、アートギャラリーが広がり、文化に包まれた生活を楽しむことができます。街の歴史が息づく上野で、新たな発見があなたを待っています。美術館で心を打たれる作品に出会い、散策する道すがらに感じる風の中にさまざまな感情が紛れ込んでいるのです。この街に住むことは、ただの生活ではなく、心豊かな人生の一部となることでしょう。
ジェノヴィア上野2スカイガーデン 1102は、あなたの新たな生活の舞台です。ここでの生活は、一つ一つの瞬間が映画のように心に刻まれ、忘れられない思い出となることでしょう。あなたの物語が始まる場所、それがジェノヴィア上野2スカイガーデン 1102です。もう一歩踏み出して、心と体が望む新しい世界へ飛び込んでみませんか。あなたの新たな住まいで、素敵な物語を始めましょう。
バイブルスコア
バイブルスコア: 40.3
条件のいい物件です、引っ越しが2か月以内の場合は仮申し込みを検討すべき物件です。
※バイブルスコア詳細はこちら
バイブルスコアとは独自のAI機械学習技術を利用した物件評価システムで、物件のおすすめ度を示します。最高得点は100点で、スコアが高いほど、よりおすすめの物件と評価されています。
写真
契約条件
| 賃料 | 予想金額:165,000〜185,000円程度 | 管理費 | 予想金額:13,000〜17,000円程度 |
| 礼金 | 非公開(アーカイブ) | 敷金 | 非公開(アーカイブ) |
| フリーレント | なし | 平米数 | 40.13㎡ |
| 間取り | 1LDK | 大型収納 | なし |
| 契約期間 | 2年 | 方角 | 北東 |
| 更新料 | 1ヶ月 | 契約形態 | 普通賃貸借契約 |
| 取引態様 | 媒介 | 内見状況 | 入居中 |
| 入居時期 | 入居中 | SOHO・事務所 | 不可 |
| ペット | ペット可 | 間取り内訳 | 洋:6 LDK:9 |
| キャンペーン情報・備考 | 本情報は賃料改定交渉の資料作成、収益物件の利回り試算、周辺エリアや最寄り駅の坪単価分析、次回募集開始時期の予測などにご活用いただけます。 | ||
※「どの不動産に頼めばいいのか分からない」「信頼できる営業マンの話を聞きたい」「一番親切な会社と契約したい」とお悩みの方におすすめなのが「高級賃貸バイブル」です。
高級賃貸バイブルは業界10年以上の熟練スタッフ群がお客様ファーストで対応します。
下記ボタンから、まずは無料でご相談下さい。
※内覧をご希望の際には、どうぞ物件のエントランス前にてお待ち合わせくださいませ。ご内覧後は、同じ場所でお別れとさせていただきます。お客様のご都合に合わせたスムーズなご案内を心がけておりますので、ご質問等がございましたら何なりとお申し付けください。 物件概要
| 物件名 |
| 築年月 |
|
|---|---|---|---|
| 所在地 | |||
| 交通 | |||
| 総戸数 |
| 総階数 |
|
| 構造 |
| ||
地図
物件までの道のりは、「拡大地図を表示」をクリックしてナビ機能をご利用ください。
部屋設備















建物設備

TVモニターホン

エレベーター

オートロック

バイク置場

宅配ボックス

敷地内ゴミ置場

管理人

駐車場平置き

駐車場機械式

駐輪場
ジェノヴィア上野2スカイガーデンの現在募集中のお部屋
- No rooms found for this property.















