
| 賃料 | 予想金額:154,000〜174,000円程度 | 管理費 | 予想金額:13,000〜17,000円程度 |
| 礼金/敷金 | 非公開(アーカイブ) | 平米数 | 40.13㎡ |
| 初期費用概算(参考) | 目安:310,000〜410,000 円 | みなし賃料(月額・参考) | 173,083〜193,083 円 |
| 備考 | 本ページは過去募集のアーカイブです。表示の金額は周辺相場・過去募集を踏まえた参考レンジであり、実際の契約金額・条件ではありません。 | ||
※上記みなし賃料(月額)は仲介手数料割引・無料&キャッシュバックを加味した高級賃貸バイブル限定の金額です。一般的なみなし賃料とは異なります。
【建物ページ】ジェノヴィア上野2スカイガーデンの詳細・最新空室はこちら▶▶選ばれる理由
仲介手数料無料・キャンペーン情報(毎月15名様限定)
〇仲介手数料割引キャンペーン
ジェノヴィア上野2スカイガーデン 403の口コミ・レビュー
ジェノヴィア上野2スカイガーデン 403。あなたにこの特別な空間が語りかけます。天空のユートピア、403号室は、日常の喧騒から離れた静謐な隠れ家です。北東向きの窓から差し込む柔らかな光は、朝の始まりを優雅に祝福し、ゆったりとした時間の流れを創り出します。専有面積40.13㎡の空間には、あなたの人生のストーリーに華やかな色合いを添えるためのキャンバスが広がっています。
この部屋の中で輝くのは、LD…ジェノヴィア上野2スカイガーデン 403。あなたにこの特別な空間が語りかけます。天空のユートピア、403号室は、日常の喧騒から離れた静謐な隠れ家です。北東向きの窓から差し込む柔らかな光は、朝の始まりを優雅に祝福し、ゆったりとした時間の流れを創り出します。専有面積40.13㎡の空間には、あなたの人生のストーリーに華やかな色合いを添えるためのキャンバスが広がっています。
この部屋の中で輝くのは、LDK9帖が奏でる洗練された調和。広々としたリビングで音楽を流し、コーヒーの香りに包まれながら、友人や家族と穏やかなひとときを過ごす光景が目に浮かびます。料理の魔法をあなたの手で展開し、美味しい料理が家族を笑顔にする様子は、まるで映画のワンシーンのようです。隣接する洋室6帖では、一日の疲れを癒すためのプライベートな時間を大切に、心地よい寝具の感触に包まれながら、心穏やかに眠りにつくことでしょう。
ジェノヴィア上野2スカイガーデン 403は、まるで親しい友人があなたを迎え入れるように、心地よい居住空間を提供します。オートロックや管理人の存在は、安心感を与えてくれ、どこか心強い存在なのです。エレベーターで軽快に地上へ移動する彼女の姿は、まるで都会の中心で繰り広げられるドラマの主役のようです。バイク置場や駐車場も完備しており、自由な移動があなたの日常をより豊かに彩ります。
周辺に広がる上野の文化は、まるでこの物件の一部のように感じられます。上野恩賜公園の緑に囲まれながら、歴史的な美術館や動物園が存在し、あなたの感性を刺激します。春には桜が咲き誇り、風に乗って甘い香りが漂う様子は、心に刻まれる思い出を作るでしょう。東京メトロ銀座線の上野駅まで徒歩5分という立地は、都心の便利さと落ち着きの両立を実現しています。
ジェノヴィア上野2スカイガーデン 403での暮らしは、日々の生活を特別なものに変える魔法のような瞬間が詰まっています。彼女の空間で、あなたの人生のストーリーを描いてみませんか?都心の利便性と、心地よい住環境のバランスを見事に兼ね備えたこの場所で、あなたの毎日はまるでアートのように美しい色合いで彩られることでしょう。
この部屋の中で輝くのは、LD…ジェノヴィア上野2スカイガーデン 403。あなたにこの特別な空間が語りかけます。天空のユートピア、403号室は、日常の喧騒から離れた静謐な隠れ家です。北東向きの窓から差し込む柔らかな光は、朝の始まりを優雅に祝福し、ゆったりとした時間の流れを創り出します。専有面積40.13㎡の空間には、あなたの人生のストーリーに華やかな色合いを添えるためのキャンバスが広がっています。
この部屋の中で輝くのは、LDK9帖が奏でる洗練された調和。広々としたリビングで音楽を流し、コーヒーの香りに包まれながら、友人や家族と穏やかなひとときを過ごす光景が目に浮かびます。料理の魔法をあなたの手で展開し、美味しい料理が家族を笑顔にする様子は、まるで映画のワンシーンのようです。隣接する洋室6帖では、一日の疲れを癒すためのプライベートな時間を大切に、心地よい寝具の感触に包まれながら、心穏やかに眠りにつくことでしょう。
ジェノヴィア上野2スカイガーデン 403は、まるで親しい友人があなたを迎え入れるように、心地よい居住空間を提供します。オートロックや管理人の存在は、安心感を与えてくれ、どこか心強い存在なのです。エレベーターで軽快に地上へ移動する彼女の姿は、まるで都会の中心で繰り広げられるドラマの主役のようです。バイク置場や駐車場も完備しており、自由な移動があなたの日常をより豊かに彩ります。
周辺に広がる上野の文化は、まるでこの物件の一部のように感じられます。上野恩賜公園の緑に囲まれながら、歴史的な美術館や動物園が存在し、あなたの感性を刺激します。春には桜が咲き誇り、風に乗って甘い香りが漂う様子は、心に刻まれる思い出を作るでしょう。東京メトロ銀座線の上野駅まで徒歩5分という立地は、都心の便利さと落ち着きの両立を実現しています。
ジェノヴィア上野2スカイガーデン 403での暮らしは、日々の生活を特別なものに変える魔法のような瞬間が詰まっています。彼女の空間で、あなたの人生のストーリーを描いてみませんか?都心の利便性と、心地よい住環境のバランスを見事に兼ね備えたこの場所で、あなたの毎日はまるでアートのように美しい色合いで彩られることでしょう。
バイブルスコア
バイブルスコア: 48
条件のいい物件です、引っ越しが2か月以内の場合は仮申し込みを検討すべき物件です。
※バイブルスコア詳細はこちら
バイブルスコアとは独自のAI機械学習技術を利用した物件評価システムで、物件のおすすめ度を示します。最高得点は100点で、スコアが高いほど、よりおすすめの物件と評価されています。
写真
契約条件
| 賃料 | 予想金額:154,000〜174,000円程度 | 管理費 | 予想金額:13,000〜17,000円程度 |
| 礼金 | 非公開(アーカイブ) | 敷金 | 非公開(アーカイブ) |
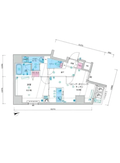
| フリーレント | なし | 平米数 | 40.13㎡ |
| 間取り | 1LDK | 大型収納 | |
| 契約期間 |
| 方角 | 北東 |
| 更新料 | 契約形態 | 普通賃貸借契約 | |
| 取引態様 | 媒介 | 内見状況 | 入居中 |
| 入居時期 | 入居中 | SOHO・事務所 | |
| ペット | ペット可 | 間取り内訳 | 洋:6 LDK:9 |
| キャンペーン情報・備考 | 本情報は賃料改定交渉の資料作成、収益物件の利回り試算、周辺エリアや最寄り駅の坪単価分析、次回募集開始時期の予測などにご活用いただけます。 | ||
※「どの不動産に頼めばいいのか分からない」「信頼できる営業マンの話を聞きたい」「一番親切な会社と契約したい」とお悩みの方におすすめなのが「高級賃貸バイブル」です。
高級賃貸バイブルは業界10年以上の熟練スタッフ群がお客様ファーストで対応します。
下記ボタンから、まずは無料でご相談下さい。
※内覧をご希望の際には、どうぞ物件のエントランス前にてお待ち合わせくださいませ。ご内覧後は、同じ場所でお別れとさせていただきます。お客様のご都合に合わせたスムーズなご案内を心がけておりますので、ご質問等がございましたら何なりとお申し付けください。 物件概要
| 物件名 |
| 築年月 |
|
|---|---|---|---|
| 所在地 | |||
| 交通 | |||
| 総戸数 |
| 総階数 |
|
| 構造 |
| ||
地図
物件までの道のりは、「拡大地図を表示」をクリックしてナビ機能をご利用ください。
部屋設備















建物設備

TVモニターホン

エレベーター

オートロック

バイク置場

宅配ボックス

敷地内ゴミ置場

管理人

駐車場平置き

駐車場機械式

駐輪場
ジェノヴィア上野2スカイガーデンの現在募集中のお部屋
- No rooms found for this property.















