
| 賃料 | 予想金額:109,000〜129,000円程度 | 管理費 | 予想金額:8,000〜12,000円程度 |
| 礼金/敷金 | 非公開(アーカイブ) | 平米数 | 25.65㎡ |
| 初期費用概算(参考) | 目安:354,000〜454,000 円 | みなし賃料(月額・参考) | 124,938〜144,938 円 |
| 備考 | 本ページは過去募集のアーカイブです。表示の金額は周辺相場・過去募集を踏まえた参考レンジであり、実際の契約金額・条件ではありません。 | ||
※上記みなし賃料(月額)は仲介手数料割引・無料&キャッシュバックを加味した高級賃貸バイブル限定の金額です。一般的なみなし賃料とは異なります。
【建物ページ】エスレジデンス東神田の詳細・最新空室はこちら▶▶選ばれる理由
仲介手数料無料・キャンペーン情報(毎月15名様限定)
〇仲介手数料割引キャンペーン
エスレジデンス東神田 1103の口コミ・レビュー
エスレジデンス東神田 1103。この物件は、まるで貴族の館が新たな住人に扉を開くかのように、皆様をお迎えいたします。25.65㎡という優美な空間に広がる、穏やかな南の光が降り注ぐお部屋は、まるで自然のエネルギーが優しく包み込むかのようです。
あなたがこのエスレジデンス東神田 1103に一歩足を踏み入れる瞬間、心地良い風が通り抜け、洗練されたデザインとともに、五感が目覚めることでしょう。まず、視覚…エスレジデンス東神田 1103。この物件は、まるで貴族の館が新たな住人に扉を開くかのように、皆様をお迎えいたします。25.65㎡という優美な空間に広がる、穏やかな南の光が降り注ぐお部屋は、まるで自然のエネルギーが優しく包み込むかのようです。
あなたがこのエスレジデンス東神田 1103に一歩足を踏み入れる瞬間、心地良い風が通り抜け、洗練されたデザインとともに、五感が目覚めることでしょう。まず、視覚に訴えるのは、まるで画家の筆が生み出したかのような洗練された内装。落ち着いたトーンの壁と、艶やかなフローリングは、エレガンスと温もりを兼ね備えています。
あなたが生活する中で、この空間はまるであなたの人生を豊かにするパートナーとして、寄り添ってくれることでしょう。キッチンから漂う香ばしい料理の香りは、毎日の食卓を彩り、まるでシェフがあなたのために特別な一皿を用意してくれるかのようです。料理をしていると、ふと外の音が耳に届くでしょう。鳥のさえずりや、都会の喧騒が交じり合う中、心安らぐ瞬間が訪れます。
エスレジデンス東神田 1103には、生活を支える数々の設備も充実しています。TVモニターホンがあなたの安全を守り、オートロックシステムが賢く秘密の鍵として機能します。宅配ボックスは、忙しい日常の中での小さな便利さを提供し、管理人が安心感をもたらしてくれます。あなたがこの空間に帰るとき、温もりを感じられる空間が、いつでもあなたを迎えてくれるのです。
周辺には、東京都千代田区東神田の歴史深い文化が息づいています。古き良き街並みと新しい息吹が調和するこのエリアは、あなたの生活に豊かな色彩を与えます。街を歩けば、アートを感じる瞬間が至る所に潜んでいます。小さなギャラリーやカフェは、あなたにとっての発見の場となり、隠れた宝物に出会えるチャンスを与えてくれるでしょう。
エスレジデンス東神田 1103での生活は、まるで映画の一シーンのように、あなたの日常を特別なものに変えてくれます。朝日が差し込み、コーヒーの香りが漂う中で、あなたの新しい物語が始まるのです。ここでの暮らしは、ただの生活ではなく、あなた自身の美しい物語の一部となるのです。是非、この特別な空間で、新しい章を始めてみてはいかがでしょうか。
あなたがこのエスレジデンス東神田 1103に一歩足を踏み入れる瞬間、心地良い風が通り抜け、洗練されたデザインとともに、五感が目覚めることでしょう。まず、視覚…エスレジデンス東神田 1103。この物件は、まるで貴族の館が新たな住人に扉を開くかのように、皆様をお迎えいたします。25.65㎡という優美な空間に広がる、穏やかな南の光が降り注ぐお部屋は、まるで自然のエネルギーが優しく包み込むかのようです。
あなたがこのエスレジデンス東神田 1103に一歩足を踏み入れる瞬間、心地良い風が通り抜け、洗練されたデザインとともに、五感が目覚めることでしょう。まず、視覚に訴えるのは、まるで画家の筆が生み出したかのような洗練された内装。落ち着いたトーンの壁と、艶やかなフローリングは、エレガンスと温もりを兼ね備えています。
あなたが生活する中で、この空間はまるであなたの人生を豊かにするパートナーとして、寄り添ってくれることでしょう。キッチンから漂う香ばしい料理の香りは、毎日の食卓を彩り、まるでシェフがあなたのために特別な一皿を用意してくれるかのようです。料理をしていると、ふと外の音が耳に届くでしょう。鳥のさえずりや、都会の喧騒が交じり合う中、心安らぐ瞬間が訪れます。
エスレジデンス東神田 1103には、生活を支える数々の設備も充実しています。TVモニターホンがあなたの安全を守り、オートロックシステムが賢く秘密の鍵として機能します。宅配ボックスは、忙しい日常の中での小さな便利さを提供し、管理人が安心感をもたらしてくれます。あなたがこの空間に帰るとき、温もりを感じられる空間が、いつでもあなたを迎えてくれるのです。
周辺には、東京都千代田区東神田の歴史深い文化が息づいています。古き良き街並みと新しい息吹が調和するこのエリアは、あなたの生活に豊かな色彩を与えます。街を歩けば、アートを感じる瞬間が至る所に潜んでいます。小さなギャラリーやカフェは、あなたにとっての発見の場となり、隠れた宝物に出会えるチャンスを与えてくれるでしょう。
エスレジデンス東神田 1103での生活は、まるで映画の一シーンのように、あなたの日常を特別なものに変えてくれます。朝日が差し込み、コーヒーの香りが漂う中で、あなたの新しい物語が始まるのです。ここでの暮らしは、ただの生活ではなく、あなた自身の美しい物語の一部となるのです。是非、この特別な空間で、新しい章を始めてみてはいかがでしょうか。
バイブルスコア
バイブルスコア: 22.1
平均的なスコアです。
※バイブルスコア詳細はこちら
バイブルスコアとは独自のAI機械学習技術を利用した物件評価システムで、物件のおすすめ度を示します。最高得点は100点で、スコアが高いほど、よりおすすめの物件と評価されています。
写真
現在写真が登録されていません契約条件
| 賃料 | 予想金額:109,000〜129,000円程度 | 管理費 | 予想金額:8,000〜12,000円程度 |
| 礼金 | 非公開(アーカイブ) | 敷金 | 非公開(アーカイブ) |
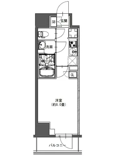
| フリーレント | なし | 平米数 | 25.65㎡ |
| 間取り | 1K | 大型収納 | |
| 契約期間 |
| 方角 | 南 |
| 更新料 | 契約形態 | 普通賃貸借契約 | |
| 取引態様 | 媒介 | 内見状況 | 入居中 |
| 入居時期 | 入居中 | SOHO・事務所 | |
| ペット | 間取り内訳 | 洋:8 | |
| キャンペーン情報・備考 | 本情報は賃料改定交渉の資料作成、収益物件の利回り試算、周辺エリアや最寄り駅の坪単価分析、次回募集開始時期の予測などにご活用いただけます。 | ||
※「どの不動産に頼めばいいのか分からない」「信頼できる営業マンの話を聞きたい」「一番親切な会社と契約したい」とお悩みの方におすすめなのが「高級賃貸バイブル」です。
高級賃貸バイブルは業界10年以上の熟練スタッフ群がお客様ファーストで対応します。
下記ボタンから、まずは無料でご相談下さい。
※内覧をご希望の際には、どうぞ物件のエントランス前にてお待ち合わせくださいませ。ご内覧後は、同じ場所でお別れとさせていただきます。お客様のご都合に合わせたスムーズなご案内を心がけておりますので、ご質問等がございましたら何なりとお申し付けください。 物件概要
| 物件名 |
| 築年月 |
|
|---|---|---|---|
| 所在地 | |||
| 交通 | |||
| 総戸数 |
| 総階数 |
|
| 構造 |
| ||
地図
物件までの道のりは、「拡大地図を表示」をクリックしてナビ機能をご利用ください。
部屋設備













建物設備

TVモニターホン

エレベーター

オートロック

宅配ボックス

敷地内ゴミ置場

管理人

駐輪場
エスレジデンス東神田の現在募集中のお部屋
- No rooms found for this property.
