
| 賃料 | 予想金額:110,000〜130,000円程度 | 管理費 | 予想金額:8,000〜12,000円程度 |
| 礼金/敷金 | 非公開(アーカイブ) | 平米数 | 25.37㎡ |
| 初期費用概算(参考) | 目安:236,500〜336,500 円 | みなし賃料(月額・参考) | 125,969〜145,969 円 |
| 備考 | 本ページは過去募集のアーカイブです。表示の金額は周辺相場・過去募集を踏まえた参考レンジであり、実際の契約金額・条件ではありません。 | ||
※上記みなし賃料(月額)は仲介手数料割引・無料&キャッシュバックを加味した高級賃貸バイブル限定の金額です。一般的なみなし賃料とは異なります。
【建物ページ】ザ・パールレジデンス芝公園の詳細・最新空室はこちら▶▶選ばれる理由
仲介手数料無料・キャンペーン情報(毎月15名様限定)
〇フリーレント1か月キャンペーン
ザ・パールレジデンス芝公園 801の口コミ・レビュー
ザ・パールレジデンス芝公園 801。この名を耳にした瞬間、心の中に美しい旋律が流れ込みます。まるで、この場所があなたを待ちわびていたかのように、特別な空間が広がっているのです。都営地下鉄三田線の芝公園駅から優雅に徒歩2分、その道のりはまるで主人公が新たな冒険に出かけるかのように感じられることでしょう。
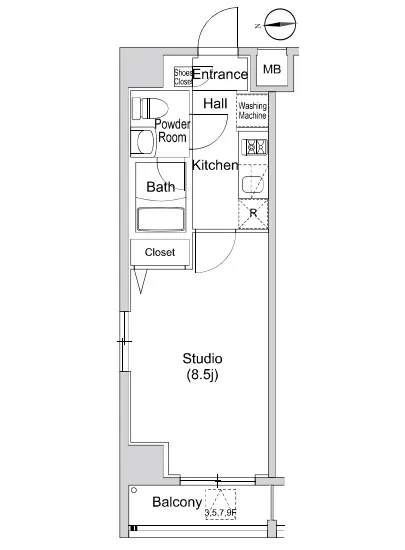
この801号室は、25.37㎡の広さを持つ洋室8.5帖の空間です。ドアを開けた瞬間、柔らかな光…ザ・パールレジデンス芝公園 801。この名を耳にした瞬間、心の中に美しい旋律が流れ込みます。まるで、この場所があなたを待ちわびていたかのように、特別な空間が広がっているのです。都営地下鉄三田線の芝公園駅から優雅に徒歩2分、その道のりはまるで主人公が新たな冒険に出かけるかのように感じられることでしょう。
この801号室は、25.37㎡の広さを持つ洋室8.5帖の空間です。ドアを開けた瞬間、柔らかな光が部屋に舞い込み、その温もりが心地よく包み込むでしょう。西向きの窓からは、静謐な夕暮れの光が情緒豊かなシルエットを描き出し、まるで一幅の絵画のように、毎日異なる表情を見せてくれます。香ばしいコーヒーの香りが漂う朝には、まるで大切な友人と過ごすカフェのような穏やかな時間が流れ、この空間があなたに寄り添うのです。
ザ・パールレジデンス芝公園 801の中では、視覚だけでなく聴覚にも心地よい変化があります。窓を開ければ、遠くから聞こえる子供たちの笑い声や、柔らかい風が通り抜ける様子は、まるで日常のシンフォニーの一部であるかのようです。周辺には歴史的な公園や文化施設が点在し、生活の中に豊かな芸術が息づいています。芝公園の美しい景色を背に、自分だけの贅沢な時間を楽しむことができます。
エレベーターで上がる度、ザ・パールレジデンス芝公園 801はまるで心を躍らせる旅の始まりを告げるかのようです。オートロックの扉を通り抜けるその瞬間、あなたはこの特別な空間の住人としての一員になったことを実感するでしょう。宅配ボックスや駐輪場など、現代の暮らしに必要な設備が整っており、あなたの生活をさらに快適に彩ります。
この空間での生活はまるで映画の一場面のようです。料理をする音、部屋に漂うおいしい香り、友人が集う食卓、そしてその周りに広がる笑顔の数々。ザ・パールレジデンス芝公園 801は、そんな瞬間を切り取った美しい思い出の場所として、いつまでも心に残ることでしょう。
生活の舞台がここにあるからこそ、あなたの人生もまた、色とりどりのストーリーへと変わっていくのです。この特別な場所で、生活の一つ一つがまるでアートのように形作られていきます。日常の中にある非日常を、ザ・パールレジデンス芝公園 801でぜひご体験ください。あなたの新しいライフスタイルがここで始まります。
この801号室は、25.37㎡の広さを持つ洋室8.5帖の空間です。ドアを開けた瞬間、柔らかな光…ザ・パールレジデンス芝公園 801。この名を耳にした瞬間、心の中に美しい旋律が流れ込みます。まるで、この場所があなたを待ちわびていたかのように、特別な空間が広がっているのです。都営地下鉄三田線の芝公園駅から優雅に徒歩2分、その道のりはまるで主人公が新たな冒険に出かけるかのように感じられることでしょう。
この801号室は、25.37㎡の広さを持つ洋室8.5帖の空間です。ドアを開けた瞬間、柔らかな光が部屋に舞い込み、その温もりが心地よく包み込むでしょう。西向きの窓からは、静謐な夕暮れの光が情緒豊かなシルエットを描き出し、まるで一幅の絵画のように、毎日異なる表情を見せてくれます。香ばしいコーヒーの香りが漂う朝には、まるで大切な友人と過ごすカフェのような穏やかな時間が流れ、この空間があなたに寄り添うのです。
ザ・パールレジデンス芝公園 801の中では、視覚だけでなく聴覚にも心地よい変化があります。窓を開ければ、遠くから聞こえる子供たちの笑い声や、柔らかい風が通り抜ける様子は、まるで日常のシンフォニーの一部であるかのようです。周辺には歴史的な公園や文化施設が点在し、生活の中に豊かな芸術が息づいています。芝公園の美しい景色を背に、自分だけの贅沢な時間を楽しむことができます。
エレベーターで上がる度、ザ・パールレジデンス芝公園 801はまるで心を躍らせる旅の始まりを告げるかのようです。オートロックの扉を通り抜けるその瞬間、あなたはこの特別な空間の住人としての一員になったことを実感するでしょう。宅配ボックスや駐輪場など、現代の暮らしに必要な設備が整っており、あなたの生活をさらに快適に彩ります。
この空間での生活はまるで映画の一場面のようです。料理をする音、部屋に漂うおいしい香り、友人が集う食卓、そしてその周りに広がる笑顔の数々。ザ・パールレジデンス芝公園 801は、そんな瞬間を切り取った美しい思い出の場所として、いつまでも心に残ることでしょう。
生活の舞台がここにあるからこそ、あなたの人生もまた、色とりどりのストーリーへと変わっていくのです。この特別な場所で、生活の一つ一つがまるでアートのように形作られていきます。日常の中にある非日常を、ザ・パールレジデンス芝公園 801でぜひご体験ください。あなたの新しいライフスタイルがここで始まります。
バイブルスコア
バイブルスコア: 24.6
平均的なスコアです。
※バイブルスコア詳細はこちら
バイブルスコアとは独自のAI機械学習技術を利用した物件評価システムで、物件のおすすめ度を示します。最高得点は100点で、スコアが高いほど、よりおすすめの物件と評価されています。
写真
契約条件
| 賃料 | 予想金額:110,000〜130,000円程度 | 管理費 | 予想金額:8,000〜12,000円程度 |
| 礼金 | 非公開(アーカイブ) | 敷金 | 非公開(アーカイブ) |
| フリーレント | 1ヶ月 | 平米数 | 25.37㎡ |
| 間取り | 1K | 大型収納 | |
| 契約期間 |
| 方角 | 西 |
| 更新料 | 契約形態 | 普通賃貸借契約 | |
| 取引態様 | 媒介 | 内見状況 | 入居中 |
| 入居時期 | 入居中 | SOHO・事務所 | |
| ペット | ペット可 | 間取り内訳 | 洋室8.5 |
| キャンペーン情報・備考 | 本情報は賃料改定交渉の資料作成、収益物件の利回り試算、周辺エリアや最寄り駅の坪単価分析、次回募集開始時期の予測などにご活用いただけます。 | ||
※「どの不動産に頼めばいいのか分からない」「信頼できる営業マンの話を聞きたい」「一番親切な会社と契約したい」とお悩みの方におすすめなのが「高級賃貸バイブル」です。
高級賃貸バイブルは業界10年以上の熟練スタッフ群がお客様ファーストで対応します。
下記ボタンから、まずは無料でご相談下さい。
※内覧をご希望の際には、どうぞ物件のエントランス前にてお待ち合わせくださいませ。ご内覧後は、同じ場所でお別れとさせていただきます。お客様のご都合に合わせたスムーズなご案内を心がけておりますので、ご質問等がございましたら何なりとお申し付けください。 物件概要
| 物件名 |
| 築年月 |
|
|---|---|---|---|
| 所在地 | |||
| 交通 | |||
| 総戸数 |
| 総階数 |
|
| 構造 |
| ||
地図
物件までの道のりは、「拡大地図を表示」をクリックしてナビ機能をご利用ください。
部屋設備













建物設備

TVモニターホン

エレベーター

オートロック

バイク置場

宅配ボックス

敷地内ゴミ置場

駐輪場
ザ・パールレジデンス芝公園の現在募集中のお部屋
- No rooms found for this property.















