
| 賃料 | 予想金額:113,000〜133,000円程度 | 管理費 | 予想金額:8,000〜12,000円程度 |
| 礼金/敷金 | 非公開(アーカイブ) | 平米数 | 26.13㎡ |
| 初期費用概算(参考) | 目安:364,000〜464,000 円 | みなし賃料(月額・参考) | 129,063〜149,063 円 |
| 備考 | 本ページは過去募集のアーカイブです。表示の金額は周辺相場・過去募集を踏まえた参考レンジであり、実際の契約金額・条件ではありません。 | ||
※上記みなし賃料(月額)は仲介手数料割引・無料&キャッシュバックを加味した高級賃貸バイブル限定の金額です。一般的なみなし賃料とは異なります。
【建物ページ】ザ・パールレジデンス芝公園の詳細・最新空室はこちら▶▶選ばれる理由
仲介手数料無料・キャンペーン情報(毎月15名様限定)
〇仲介手数料割引キャンペーン
ザ・パールレジデンス芝公園 506の口コミ・レビュー
ザ・パールレジデンス芝公園 506。あなたを優雅な日常へと誘う扉が、ここに存在します。南向きの窓から差し込む柔らかな光が、まるで朝のエネルギーを感じさせるかのように、空間を暖かく包み込みます。洗練されたデザインと機能が融合したこのお部屋は、東京の喧騒を忘れさせる隠れ家として、日々の疲れを癒す場所となることでしょう。
この1Kの間取りは、広々とした洋室8.6帖を備え、あなたの暮らしにゆとりをもたら…ザ・パールレジデンス芝公園 506。あなたを優雅な日常へと誘う扉が、ここに存在します。南向きの窓から差し込む柔らかな光が、まるで朝のエネルギーを感じさせるかのように、空間を暖かく包み込みます。洗練されたデザインと機能が融合したこのお部屋は、東京の喧騒を忘れさせる隠れ家として、日々の疲れを癒す場所となることでしょう。
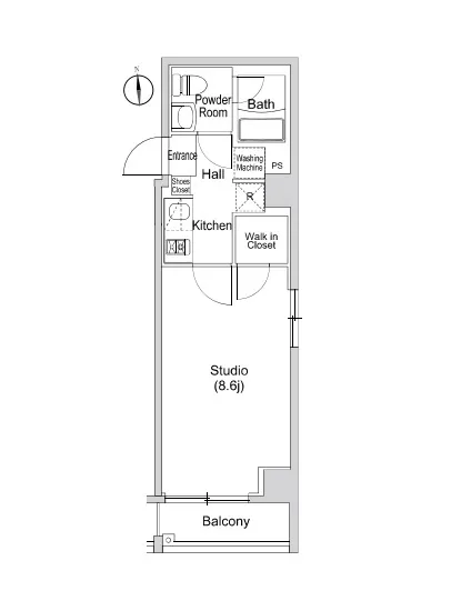
この1Kの間取りは、広々とした洋室8.6帖を備え、あなたの暮らしにゆとりをもたらします。26.13㎡という空間は、まるでリトルシアターの舞台のよう。どの角度から見ても美しく演出されており、壁に飾られたアートや、センスある家具が、あなたの個性を引き立てます。窓を開ければ、心地よい風に乗って公園の緑の香りが漂い、まるで自然に包まれたオアシスにいるかのような感覚を味わえます。
ザ・パールレジデンス芝公園 506には、生活を豊かにするための設備が整っています。TVモニターホンで訪問者を確認し、オートロックで安心感を与えられるこの住まいは、まるであなたの個人的なシェルターのよう。宅配ボックスもあるため、外出中に届いた大切な荷物も、気兼ねなく受け取ることができます。バイク置場や駐輪場が完備されているのも、自由な移動を楽しむあなたにピッタリです。
この場所はまた、文化と歴史に包まれています。周囲には芝公園やその先には増上寺が広がり、歴史の重みを感じさせる風景が織りなす日常の中で、あなたの心もまた豊かに育まれることでしょう。芝公園駅まで徒歩2分というアクセスの良さは、忙しいビジネスパーソンや、自由なライフスタイルを求める方々にも理想的です。
ザ・パールレジデンス芝公園 506は、ただの住まいではありません。ここには、あなたの生活を映画のワンシーンのように演出する力があります。朝、目覚めたあなたが窓を開けた瞬間に、外の世界と一体になる感覚。都会の喧騒が後ろに遠ざかり、静寂の中に自分の思考が浸る。香ばしいコーヒーの香りが漂うキッチンで、朝食の準備をする楽しみが広がり、午後にはお気に入りの本を手に、陽だまりの中で静かな時間を過ごすことができるのです。
日が暮れるころには、優しい間接照明の中で、友人を招いてのディナーが待っています。食卓には季節の食材が並び、笑い声が響く中で交わされる会話。その瞬間こそが、ザ・パールレジデンス芝公園 506での生活の真髄です。この場所は、ただの空間でなく、あなたのストーリーが紡がれる舞台なのです。ここから始まる新しい物語を、ぜひとも手に入れてください。
この1Kの間取りは、広々とした洋室8.6帖を備え、あなたの暮らしにゆとりをもたら…ザ・パールレジデンス芝公園 506。あなたを優雅な日常へと誘う扉が、ここに存在します。南向きの窓から差し込む柔らかな光が、まるで朝のエネルギーを感じさせるかのように、空間を暖かく包み込みます。洗練されたデザインと機能が融合したこのお部屋は、東京の喧騒を忘れさせる隠れ家として、日々の疲れを癒す場所となることでしょう。
この1Kの間取りは、広々とした洋室8.6帖を備え、あなたの暮らしにゆとりをもたらします。26.13㎡という空間は、まるでリトルシアターの舞台のよう。どの角度から見ても美しく演出されており、壁に飾られたアートや、センスある家具が、あなたの個性を引き立てます。窓を開ければ、心地よい風に乗って公園の緑の香りが漂い、まるで自然に包まれたオアシスにいるかのような感覚を味わえます。
ザ・パールレジデンス芝公園 506には、生活を豊かにするための設備が整っています。TVモニターホンで訪問者を確認し、オートロックで安心感を与えられるこの住まいは、まるであなたの個人的なシェルターのよう。宅配ボックスもあるため、外出中に届いた大切な荷物も、気兼ねなく受け取ることができます。バイク置場や駐輪場が完備されているのも、自由な移動を楽しむあなたにピッタリです。
この場所はまた、文化と歴史に包まれています。周囲には芝公園やその先には増上寺が広がり、歴史の重みを感じさせる風景が織りなす日常の中で、あなたの心もまた豊かに育まれることでしょう。芝公園駅まで徒歩2分というアクセスの良さは、忙しいビジネスパーソンや、自由なライフスタイルを求める方々にも理想的です。
ザ・パールレジデンス芝公園 506は、ただの住まいではありません。ここには、あなたの生活を映画のワンシーンのように演出する力があります。朝、目覚めたあなたが窓を開けた瞬間に、外の世界と一体になる感覚。都会の喧騒が後ろに遠ざかり、静寂の中に自分の思考が浸る。香ばしいコーヒーの香りが漂うキッチンで、朝食の準備をする楽しみが広がり、午後にはお気に入りの本を手に、陽だまりの中で静かな時間を過ごすことができるのです。
日が暮れるころには、優しい間接照明の中で、友人を招いてのディナーが待っています。食卓には季節の食材が並び、笑い声が響く中で交わされる会話。その瞬間こそが、ザ・パールレジデンス芝公園 506での生活の真髄です。この場所は、ただの空間でなく、あなたのストーリーが紡がれる舞台なのです。ここから始まる新しい物語を、ぜひとも手に入れてください。
バイブルスコア
バイブルスコア: 24.6
平均的なスコアです。
※バイブルスコア詳細はこちら
バイブルスコアとは独自のAI機械学習技術を利用した物件評価システムで、物件のおすすめ度を示します。最高得点は100点で、スコアが高いほど、よりおすすめの物件と評価されています。
写真
契約条件
| 賃料 | 予想金額:113,000〜133,000円程度 | 管理費 | 予想金額:8,000〜12,000円程度 |
| 礼金 | 非公開(アーカイブ) | 敷金 | 非公開(アーカイブ) |
| フリーレント | なし | 平米数 | 26.13㎡ |
| 間取り | 1K | 大型収納 | |
| 契約期間 |
| 方角 | 南 |
| 更新料 | 契約形態 | 普通賃貸借契約 | |
| 取引態様 | 媒介 | 内見状況 | 入居中 |
| 入居時期 | 入居中 | SOHO・事務所 | |
| ペット | ペット可 | 間取り内訳 | 洋室8.6 |
| キャンペーン情報・備考 | 本情報は賃料改定交渉の資料作成、収益物件の利回り試算、周辺エリアや最寄り駅の坪単価分析、次回募集開始時期の予測などにご活用いただけます。 | ||
※「どの不動産に頼めばいいのか分からない」「信頼できる営業マンの話を聞きたい」「一番親切な会社と契約したい」とお悩みの方におすすめなのが「高級賃貸バイブル」です。
高級賃貸バイブルは業界10年以上の熟練スタッフ群がお客様ファーストで対応します。
下記ボタンから、まずは無料でご相談下さい。
※内覧をご希望の際には、どうぞ物件のエントランス前にてお待ち合わせくださいませ。ご内覧後は、同じ場所でお別れとさせていただきます。お客様のご都合に合わせたスムーズなご案内を心がけておりますので、ご質問等がございましたら何なりとお申し付けください。 物件概要
| 物件名 |
| 築年月 |
|
|---|---|---|---|
| 所在地 | |||
| 交通 | |||
| 総戸数 |
| 総階数 |
|
| 構造 |
| ||
地図
物件までの道のりは、「拡大地図を表示」をクリックしてナビ機能をご利用ください。
部屋設備















建物設備

TVモニターホン

エレベーター

オートロック

バイク置場

宅配ボックス

敷地内ゴミ置場

駐輪場
ザ・パールレジデンス芝公園の現在募集中のお部屋
- No rooms found for this property.















