
| 賃料 | 予想金額:113,000〜133,000円程度 | 管理費 | 予想金額:8,000〜12,000円程度 |
| 礼金/敷金 | 非公開(アーカイブ) | 平米数 | 25.37㎡ |
| 初期費用概算(参考) | 目安:503,500〜603,500 円 | みなし賃料(月額・参考) | 131,969〜151,969 円 |
| 備考 | 本ページは過去募集のアーカイブです。表示の金額は周辺相場・過去募集を踏まえた参考レンジであり、実際の契約金額・条件ではありません。 | ||
※上記みなし賃料(月額)は仲介手数料割引・無料&キャッシュバックを加味した高級賃貸バイブル限定の金額です。一般的なみなし賃料とは異なります。
【建物ページ】ザ・パールレジデンス芝公園の詳細・最新空室はこちら▶▶選ばれる理由
仲介手数料無料・キャンペーン情報(毎月15名様限定)
〇仲介手数料割引キャンペーン
ザ・パールレジデンス芝公園 301の口コミ・レビュー
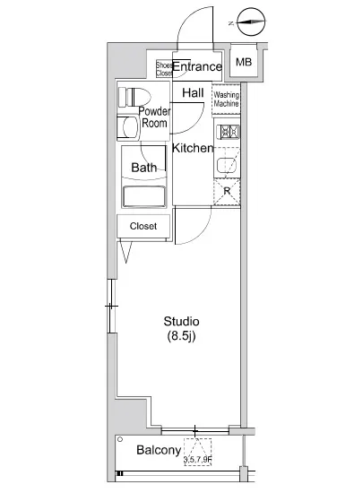
ザ・パールレジデンス芝公園 301。あなたを魅了する一室は、まるで都会の喧騒に隠れた静寂のオアシスです。東京都港区芝に所在し、西の風が心地よく通り抜けるこの場所は、単なる住まいではなく、人生の舞台としての魅力を兼ね備えています。エレベーターで301階に上がれば、日常の喧騒から解き放たれた空間が広がります。25.37㎡の専有面積は、まるであなたの人生を豊かに彩るキャンバスのようです。
お部屋の扉を…ザ・パールレジデンス芝公園 301。あなたを魅了する一室は、まるで都会の喧騒に隠れた静寂のオアシスです。東京都港区芝に所在し、西の風が心地よく通り抜けるこの場所は、単なる住まいではなく、人生の舞台としての魅力を兼ね備えています。エレベーターで301階に上がれば、日常の喧騒から解き放たれた空間が広がります。25.37㎡の専有面積は、まるであなたの人生を豊かに彩るキャンバスのようです。
お部屋の扉を開けると、そこには8.5帖の洋室が待っています。温かみのある木の床と、淡いカラーリングの壁は、まるで心を包み込む柔らかな絵の具で描かれたような印象を与えます。そこに広がる空間は、あなたのクリエイティブなアイデアが花開く場所。お気に入りの本を片手に、窓から差し込む柔らかな西日を浴びながら、心地よい午後のひとときを楽しむ様子が目に浮かびます。その瞬間、外の世界と自分の内面がまるで一つに溶け合うようです。
このお部屋は、あなたの感性を刺激する、まさに芸術作品のような存在です。廊下を歩む足音が、静寂を奏でるメロディーのように響き渡り、窓の外には、都営地下鉄三田線の芝公園駅までのたった2分の距離が、まるで運命の糸で結ばれたかのように感じられます。周囲には歴史的な文化財や緑豊かな公園も点在し、四季折々の景色とともに、あなたの生活に華やかな彩りを添えてくれます。
ザ・パールレジデンス芝公園 301は、ただの物理的な空間ではなく、心を豊かにするための舞台装置であり、生活に息吹を吹き込むためのパートナーです。オートロックやTVモニターホン、宅配ボックスなどのスマートな設備は、現代の生活における快適さを約束します。また、敷地内のゴミ置場や駐輪場も、まるで洗練されたサービスとしてあなたの日常を支えています。こうした便利な設備が、あなたの心に余裕をもたらし、さらなるクリエイティビティを引き出してくれることでしょう。
この特別な場所で暮らすことで、毎日が映画のワンシーンのように、色彩豊かに演出されていきます。そして、時が経つにつれて、ザ・パールレジデンス芝公園 301はあなたの心に深く根を下ろし、生活の中での小さな喜びや感動を磨き続けるでしょう。さあ、この素晴らしい空間で、あなた自身の物語を紡いでいく準備を整えましょう。あなたの新しい生活が、ここから始まります。
お部屋の扉を…ザ・パールレジデンス芝公園 301。あなたを魅了する一室は、まるで都会の喧騒に隠れた静寂のオアシスです。東京都港区芝に所在し、西の風が心地よく通り抜けるこの場所は、単なる住まいではなく、人生の舞台としての魅力を兼ね備えています。エレベーターで301階に上がれば、日常の喧騒から解き放たれた空間が広がります。25.37㎡の専有面積は、まるであなたの人生を豊かに彩るキャンバスのようです。
お部屋の扉を開けると、そこには8.5帖の洋室が待っています。温かみのある木の床と、淡いカラーリングの壁は、まるで心を包み込む柔らかな絵の具で描かれたような印象を与えます。そこに広がる空間は、あなたのクリエイティブなアイデアが花開く場所。お気に入りの本を片手に、窓から差し込む柔らかな西日を浴びながら、心地よい午後のひとときを楽しむ様子が目に浮かびます。その瞬間、外の世界と自分の内面がまるで一つに溶け合うようです。
このお部屋は、あなたの感性を刺激する、まさに芸術作品のような存在です。廊下を歩む足音が、静寂を奏でるメロディーのように響き渡り、窓の外には、都営地下鉄三田線の芝公園駅までのたった2分の距離が、まるで運命の糸で結ばれたかのように感じられます。周囲には歴史的な文化財や緑豊かな公園も点在し、四季折々の景色とともに、あなたの生活に華やかな彩りを添えてくれます。
ザ・パールレジデンス芝公園 301は、ただの物理的な空間ではなく、心を豊かにするための舞台装置であり、生活に息吹を吹き込むためのパートナーです。オートロックやTVモニターホン、宅配ボックスなどのスマートな設備は、現代の生活における快適さを約束します。また、敷地内のゴミ置場や駐輪場も、まるで洗練されたサービスとしてあなたの日常を支えています。こうした便利な設備が、あなたの心に余裕をもたらし、さらなるクリエイティビティを引き出してくれることでしょう。
この特別な場所で暮らすことで、毎日が映画のワンシーンのように、色彩豊かに演出されていきます。そして、時が経つにつれて、ザ・パールレジデンス芝公園 301はあなたの心に深く根を下ろし、生活の中での小さな喜びや感動を磨き続けるでしょう。さあ、この素晴らしい空間で、あなた自身の物語を紡いでいく準備を整えましょう。あなたの新しい生活が、ここから始まります。
バイブルスコア
バイブルスコア: 57
条件のいい物件です、引っ越しが2か月以内の場合は仮申し込みを検討すべき物件です。
このお部屋は、現在ご入居中のため空室情報はございません。ただし、将来的に募集が開始される際、バイブルスコアにおいて非常に高い評価が期待されます。特にご興味をお持ちの方は、今のうちにブックマークやお気に入りに登録していただくと、募集開始のお知らせをすぐに受け取ることができます。是非ともご検討くださいませ。
※バイブルスコア詳細はこちら
バイブルスコアとは独自のAI機械学習技術を利用した物件評価システムで、物件のおすすめ度を示します。最高得点は100点で、スコアが高いほど、よりおすすめの物件と評価されています。
写真
契約条件
| 賃料 | 予想金額:113,000〜133,000円程度 | 管理費 | 予想金額:8,000〜12,000円程度 |
| 礼金 | 非公開(アーカイブ) | 敷金 | 非公開(アーカイブ) |
| フリーレント | なし | 平米数 | 25.37㎡ |
| 間取り | 1K | 大型収納 | なし |
| 契約期間 | 2年 | 方角 | 西 |
| 更新料 | 1ヶ月 | 契約形態 | 普通賃貸借契約 |
| 取引態様 | 媒介 | 内見状況 | 入居中 |
| 入居時期 | 入居中 | SOHO・事務所 | 不可 |
| ペット | ペット可 | 間取り内訳 | 洋室8.5 |
| キャンペーン情報・備考 | 本情報は賃料改定交渉の資料作成、収益物件の利回り試算、周辺エリアや最寄り駅の坪単価分析、次回募集開始時期の予測などにご活用いただけます。 | ||
※「どの不動産に頼めばいいのか分からない」「信頼できる営業マンの話を聞きたい」「一番親切な会社と契約したい」とお悩みの方におすすめなのが「高級賃貸バイブル」です。
高級賃貸バイブルは業界10年以上の熟練スタッフ群がお客様ファーストで対応します。
下記ボタンから、まずは無料でご相談下さい。
※内覧をご希望の際には、どうぞ物件のエントランス前にてお待ち合わせくださいませ。ご内覧後は、同じ場所でお別れとさせていただきます。お客様のご都合に合わせたスムーズなご案内を心がけておりますので、ご質問等がございましたら何なりとお申し付けください。 物件概要
| 物件名 |
| 築年月 |
|
|---|---|---|---|
| 所在地 | |||
| 交通 | |||
| 総戸数 |
| 総階数 |
|
| 構造 |
| ||
地図
物件までの道のりは、「拡大地図を表示」をクリックしてナビ機能をご利用ください。
部屋設備













建物設備

TVモニターホン

エレベーター

オートロック

バイク置場

宅配ボックス

敷地内ゴミ置場

駐輪場
ザ・パールレジデンス芝公園の現在募集中のお部屋
- No rooms found for this property.















