
| 賃料 | 予想金額:156,000〜176,000円程度 | 管理費 | 予想金額:10,000〜14,000円程度 |
| 礼金/敷金 | 非公開(アーカイブ) | 平米数 | 40.32㎡ |
| 初期費用概算(参考) | 目安:640,500〜740,500 円 | みなし賃料(月額・参考) | 178,927〜198,927 円 |
| 備考 | 本ページは過去募集のアーカイブです。表示の金額は周辺相場・過去募集を踏まえた参考レンジであり、実際の契約金額・条件ではありません。 | ||
※上記みなし賃料(月額)は仲介手数料割引・無料&キャッシュバックを加味した高級賃貸バイブル限定の金額です。一般的なみなし賃料とは異なります。
【建物ページ】プラウドフラット浅草橋の詳細・最新空室はこちら▶▶選ばれる理由
仲介手数料無料・キャンペーン情報(毎月15名様限定)
〇仲介手数料割引キャンペーン
プラウドフラット浅草橋 1001の口コミ・レビュー
プラウドフラット浅草橋 1001。それはまるで、時を超えた街の宝石のように、あなたを待ちわびる場所です。東京都台東区浅草橋3-7-4に位置するこの住まいは、あなたの心に安らぎと喜びをもたらすために、南と西の優しい光を浴びています。1001号室は、まさに空間の中に詩情を秘めた一室であり、40.32㎡というスペースには、数々の感動が詰まっています。
エレベーターに乗ると、移動の瞬間さえも特別な旅の始…プラウドフラット浅草橋 1001。それはまるで、時を超えた街の宝石のように、あなたを待ちわびる場所です。東京都台東区浅草橋3-7-4に位置するこの住まいは、あなたの心に安らぎと喜びをもたらすために、南と西の優しい光を浴びています。1001号室は、まさに空間の中に詩情を秘めた一室であり、40.32㎡というスペースには、数々の感動が詰まっています。
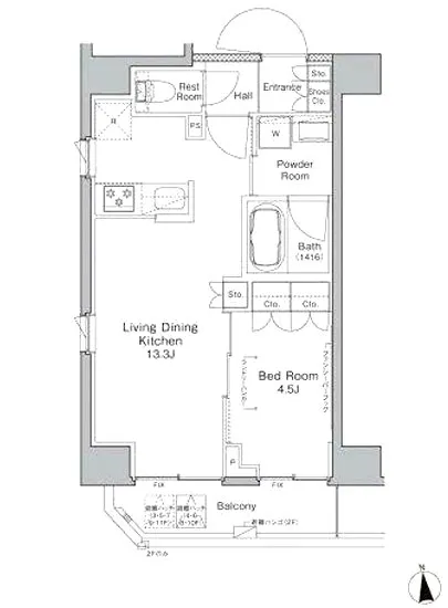
エレベーターに乗ると、移動の瞬間さえも特別な旅の始まり。ドアが開くと、目の前に広がるのは、16.6帖の広大なLDK。そこには、あなたの生活が彩られるサロンが待っているのです。ふんわりと漂う香りは、日々の暮らしの中で焼かれるパンの香ばしさや、季節の花々が出す甘い香りを思い出させるでしょう。リビングの窓から差し込む光は、まるで神々の指先が触れるように柔らかく、心地よい温もりを与えてくれます。
プラウドフラット浅草橋 1001の洋室は4.5帖。ここは静けさと安らぎが交差し、心を解きほぐしてくれる空間です。窓の外には浅草橋の古き良き街並みが広がり、昔から続く商店街の活気を耳にすることができます。訪れる人々の笑い声や、商人の掛け声が、まるで音楽のように響き渡り、あなたの生活にリズムを与えてくれるのです。
また、宅配ボックスやオートロックなど、便利な設備も整っており、生活の安定をもたらします。管理人の心温まるサポートは、まるで古い友人が側にいるかのような安心感を与えてくれるでしょう。駐輪場も完備されているため、近くの隅田川を自転車で散策することも容易です。風を感じながら、街を巡り、歴史を刻む場所を発見することができるのです。
プラウドフラット浅草橋 1001は、ただの住まい以上の価値を提供します。それは、生活の一瞬一瞬が映画のワンシーンのように美しく、感動的であることを約束する場所です。都営地下鉄浅草線の浅草橋駅まで徒歩5分という絶妙な距離感は、あなたの日常をより豊かに彩ります。街が持つ独特の歴史的背景と文化にフォーカスしながら、あなた自身の物語を紡いでください。
さあ、あなたの新しい生活の舞台、プラウドフラット浅草橋 1001で、愛と夢を育てる旅に出かけましょう。ここには、あなたがまだ知らない新たな発見が待っているのです。どんなことも可能な場所で、心を込めてお迎えいたします。あなたの物語がここから始まることを、心より楽しみにしております。
エレベーターに乗ると、移動の瞬間さえも特別な旅の始…プラウドフラット浅草橋 1001。それはまるで、時を超えた街の宝石のように、あなたを待ちわびる場所です。東京都台東区浅草橋3-7-4に位置するこの住まいは、あなたの心に安らぎと喜びをもたらすために、南と西の優しい光を浴びています。1001号室は、まさに空間の中に詩情を秘めた一室であり、40.32㎡というスペースには、数々の感動が詰まっています。
エレベーターに乗ると、移動の瞬間さえも特別な旅の始まり。ドアが開くと、目の前に広がるのは、16.6帖の広大なLDK。そこには、あなたの生活が彩られるサロンが待っているのです。ふんわりと漂う香りは、日々の暮らしの中で焼かれるパンの香ばしさや、季節の花々が出す甘い香りを思い出させるでしょう。リビングの窓から差し込む光は、まるで神々の指先が触れるように柔らかく、心地よい温もりを与えてくれます。
プラウドフラット浅草橋 1001の洋室は4.5帖。ここは静けさと安らぎが交差し、心を解きほぐしてくれる空間です。窓の外には浅草橋の古き良き街並みが広がり、昔から続く商店街の活気を耳にすることができます。訪れる人々の笑い声や、商人の掛け声が、まるで音楽のように響き渡り、あなたの生活にリズムを与えてくれるのです。
また、宅配ボックスやオートロックなど、便利な設備も整っており、生活の安定をもたらします。管理人の心温まるサポートは、まるで古い友人が側にいるかのような安心感を与えてくれるでしょう。駐輪場も完備されているため、近くの隅田川を自転車で散策することも容易です。風を感じながら、街を巡り、歴史を刻む場所を発見することができるのです。
プラウドフラット浅草橋 1001は、ただの住まい以上の価値を提供します。それは、生活の一瞬一瞬が映画のワンシーンのように美しく、感動的であることを約束する場所です。都営地下鉄浅草線の浅草橋駅まで徒歩5分という絶妙な距離感は、あなたの日常をより豊かに彩ります。街が持つ独特の歴史的背景と文化にフォーカスしながら、あなた自身の物語を紡いでください。
さあ、あなたの新しい生活の舞台、プラウドフラット浅草橋 1001で、愛と夢を育てる旅に出かけましょう。ここには、あなたがまだ知らない新たな発見が待っているのです。どんなことも可能な場所で、心を込めてお迎えいたします。あなたの物語がここから始まることを、心より楽しみにしております。
バイブルスコア
バイブルスコア: 29.3
平均的なスコアです。
※バイブルスコア詳細はこちら
バイブルスコアとは独自のAI機械学習技術を利用した物件評価システムで、物件のおすすめ度を示します。最高得点は100点で、スコアが高いほど、よりおすすめの物件と評価されています。
写真
契約条件
| 賃料 | 予想金額:156,000〜176,000円程度 | 管理費 | 予想金額:10,000〜14,000円程度 |
| 礼金 | 非公開(アーカイブ) | 敷金 | 非公開(アーカイブ) |
| フリーレント | なし | 平米数 | 40.32㎡ |
| 間取り | 1LDK | 大型収納 | |
| 契約期間 |
| 方角 | 南 / 西 |
| 更新料 | 契約形態 | 普通賃貸借契約 | |
| 取引態様 | 媒介 | 内見状況 | 入居中 |
| 入居時期 | 入居中 | SOHO・事務所 | |
| ペット | ペット可 | 間取り内訳 | 洋:4.5 LDK:13.3 |
| キャンペーン情報・備考 | 本情報は賃料改定交渉の資料作成、収益物件の利回り試算、周辺エリアや最寄り駅の坪単価分析、次回募集開始時期の予測などにご活用いただけます。 | ||
※「どの不動産に頼めばいいのか分からない」「信頼できる営業マンの話を聞きたい」「一番親切な会社と契約したい」とお悩みの方におすすめなのが「高級賃貸バイブル」です。
高級賃貸バイブルは業界10年以上の熟練スタッフ群がお客様ファーストで対応します。
下記ボタンから、まずは無料でご相談下さい。
※内覧をご希望の際には、どうぞ物件のエントランス前にてお待ち合わせくださいませ。ご内覧後は、同じ場所でお別れとさせていただきます。お客様のご都合に合わせたスムーズなご案内を心がけておりますので、ご質問等がございましたら何なりとお申し付けください。 物件概要
| 物件名 |
| 築年月 |
|
|---|---|---|---|
| 所在地 | |||
| 交通 | |||
| 総戸数 |
| 総階数 |
|
| 構造 |
| ||
地図
物件までの道のりは、「拡大地図を表示」をクリックしてナビ機能をご利用ください。
部屋設備

















建物設備

TVモニターホン

エレベーター

オートロック

宅配ボックス

敷地内ゴミ置場

管理人

駐輪場
プラウドフラット浅草橋の現在募集中のお部屋
- No rooms found for this property.




























