
| 賃料 | 予想金額:360,000〜380,000円程度 | 管理費 | 予想金額:13,000〜17,000円程度 |
| 礼金/敷金 | 非公開(アーカイブ) | 平米数 | 70.11㎡ |
| 初期費用概算(参考) | 目安:1,359,000〜1,459,000 円 | みなし賃料(月額・参考) | 396,646〜416,646 円 |
| 備考 | 本ページは過去募集のアーカイブです。表示の金額は周辺相場・過去募集を踏まえた参考レンジであり、実際の契約金額・条件ではありません。 | ||
※上記みなし賃料(月額)は仲介手数料割引・無料&キャッシュバックを加味した高級賃貸バイブル限定の金額です。一般的なみなし賃料とは異なります。
【建物ページ】ライトテラス新宿御苑の詳細・最新空室はこちら▶▶選ばれる理由
仲介手数料無料・キャンペーン情報(毎月15名様限定)
〇仲介手数料割引キャンペーン
ライトテラス新宿御苑 703の口コミ・レビュー
ライトテラス新宿御苑 703。ここはただの住まいではありません。まるで息をするように、あなたの日常にぴったりと寄り添い、特別な意味を持つ空間として、あなたを待ち望んでいます。この703号室は、70.11㎡という広がりの中に、洗練された美を秘めており、心地よい生活の舞台を提供します。
当物件は晴れ渡る朝の光が優しく差し込む東向き。窓を開けると、静けさの中に新宿御苑の優雅な風が舞い込んできます。訪れ…ライトテラス新宿御苑 703。ここはただの住まいではありません。まるで息をするように、あなたの日常にぴったりと寄り添い、特別な意味を持つ空間として、あなたを待ち望んでいます。この703号室は、70.11㎡という広がりの中に、洗練された美を秘めており、心地よい生活の舞台を提供します。
当物件は晴れ渡る朝の光が優しく差し込む東向き。窓を開けると、静けさの中に新宿御苑の優雅な風が舞い込んできます。訪れるたびにあなたの五感を刺激し、香ばしいコーヒーの香りとともに、毎日の始まりを贅沢なものにしてくれることでしょう。柔らかな陽射しがリビング・ダイニング・キッチン(LDK)14帖を満たし、まるで自宅が映画のセットのように感じられます。窓から見える緑の美しさは、心を穏やかにし、その瞬間を永遠に留めておきたくなるほど。
ライトテラス新宿御苑 703では、心地よい静寂の中で、一人の時間を過ごすのも良し、大切な人と語らいながら笑顔を交わすのも良し。6.5帖の書斎スペースは、あなたのクリエイティビティを引き出すための理想的な場所。五感に触れる新たな発想が、ここから生まれてくることでしょう。さらに、5.1帖と5帖の洋室は、夢の中のような安らぎを与えてくれるベッドルームとして、完璧なバランスを保っています。
この物件は単なる居住空間ではなく、まるであなたの人生の舞台裏を支える共演者のようです。最新の設備を搭載したキッチンは、料理を楽しむための道具が豊富に揃っており、毎日の食事がまるでフレンチレストランのコース料理のように感じられることでしょう。食材から漂う香りとともに、目の前の美しい料理を囲む幸せな時間が待っています。
また、ライトテラス新宿御苑 703は、文化の香り漂う新宿という土地に立地しており、周辺の歴史やアートとのつながりも魅力的です。徒歩5分で地下鉄丸ノ内線新宿御苑前駅にアクセスできる利便性は、あなたのライフスタイルをより豊かに演出します。賑やかな都市の喧騒を少し離れた場所に位置するこの物件は、日常の中に非日常を見つけるための扉を開いています。
この701号室は、まさにあなたの生活の一部として、心温まるストーリーを紡いでいく場所です。ライトテラス新宿御苑 703での生活は、新しい冒険の始まり。贅沢で居心地の良い空間が、あなたを包み込むことでしょう。そして、あなた自身が人生という名のアートを描いていくことを、ここで実現していただければと願っています。どうぞ、この特別な場所で、あなたの未来を形作る旅を始めてください。
当物件は晴れ渡る朝の光が優しく差し込む東向き。窓を開けると、静けさの中に新宿御苑の優雅な風が舞い込んできます。訪れ…ライトテラス新宿御苑 703。ここはただの住まいではありません。まるで息をするように、あなたの日常にぴったりと寄り添い、特別な意味を持つ空間として、あなたを待ち望んでいます。この703号室は、70.11㎡という広がりの中に、洗練された美を秘めており、心地よい生活の舞台を提供します。
当物件は晴れ渡る朝の光が優しく差し込む東向き。窓を開けると、静けさの中に新宿御苑の優雅な風が舞い込んできます。訪れるたびにあなたの五感を刺激し、香ばしいコーヒーの香りとともに、毎日の始まりを贅沢なものにしてくれることでしょう。柔らかな陽射しがリビング・ダイニング・キッチン(LDK)14帖を満たし、まるで自宅が映画のセットのように感じられます。窓から見える緑の美しさは、心を穏やかにし、その瞬間を永遠に留めておきたくなるほど。
ライトテラス新宿御苑 703では、心地よい静寂の中で、一人の時間を過ごすのも良し、大切な人と語らいながら笑顔を交わすのも良し。6.5帖の書斎スペースは、あなたのクリエイティビティを引き出すための理想的な場所。五感に触れる新たな発想が、ここから生まれてくることでしょう。さらに、5.1帖と5帖の洋室は、夢の中のような安らぎを与えてくれるベッドルームとして、完璧なバランスを保っています。
この物件は単なる居住空間ではなく、まるであなたの人生の舞台裏を支える共演者のようです。最新の設備を搭載したキッチンは、料理を楽しむための道具が豊富に揃っており、毎日の食事がまるでフレンチレストランのコース料理のように感じられることでしょう。食材から漂う香りとともに、目の前の美しい料理を囲む幸せな時間が待っています。
また、ライトテラス新宿御苑 703は、文化の香り漂う新宿という土地に立地しており、周辺の歴史やアートとのつながりも魅力的です。徒歩5分で地下鉄丸ノ内線新宿御苑前駅にアクセスできる利便性は、あなたのライフスタイルをより豊かに演出します。賑やかな都市の喧騒を少し離れた場所に位置するこの物件は、日常の中に非日常を見つけるための扉を開いています。
この701号室は、まさにあなたの生活の一部として、心温まるストーリーを紡いでいく場所です。ライトテラス新宿御苑 703での生活は、新しい冒険の始まり。贅沢で居心地の良い空間が、あなたを包み込むことでしょう。そして、あなた自身が人生という名のアートを描いていくことを、ここで実現していただければと願っています。どうぞ、この特別な場所で、あなたの未来を形作る旅を始めてください。
バイブルスコア
バイブルスコア: 15.7
高級な物件でない場合は割高な物件です。。
※バイブルスコア詳細はこちら
バイブルスコアとは独自のAI機械学習技術を利用した物件評価システムで、物件のおすすめ度を示します。最高得点は100点で、スコアが高いほど、よりおすすめの物件と評価されています。
写真
現在写真が登録されていません契約条件
| 賃料 | 予想金額:360,000〜380,000円程度 | 管理費 | 予想金額:13,000〜17,000円程度 |
| 礼金 | 非公開(アーカイブ) | 敷金 | 非公開(アーカイブ) |
| フリーレント | なし | 平米数 | 70.11㎡ |
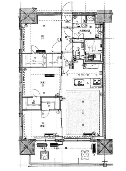
| 間取り | 2LDK | 大型収納 | 3WIC+SIC+S |
| 契約期間 |
| 方角 | 東 |
| 更新料 | 契約形態 | 普通賃貸借契約 | |
| 取引態様 | 媒介 | 内見状況 | 入居中 |
| 入居時期 | 入居中 | SOHO・事務所 | |
| ペット | ペット可 | 間取り内訳 | S:6.5 洋:5.1 洋:5 LDK:14 |
| キャンペーン情報・備考 | 本情報は賃料改定交渉の資料作成、収益物件の利回り試算、周辺エリアや最寄り駅の坪単価分析、次回募集開始時期の予測などにご活用いただけます。 | ||
※「どの不動産に頼めばいいのか分からない」「信頼できる営業マンの話を聞きたい」「一番親切な会社と契約したい」とお悩みの方におすすめなのが「高級賃貸バイブル」です。
高級賃貸バイブルは業界10年以上の熟練スタッフ群がお客様ファーストで対応します。
下記ボタンから、まずは無料でご相談下さい。
※内覧をご希望の際には、どうぞ物件のエントランス前にてお待ち合わせくださいませ。ご内覧後は、同じ場所でお別れとさせていただきます。お客様のご都合に合わせたスムーズなご案内を心がけておりますので、ご質問等がございましたら何なりとお申し付けください。 物件概要
| 物件名 |
| 築年月 |
|
|---|---|---|---|
| 所在地 | |||
| 交通 | |||
| 総戸数 |
| 総階数 |
|
| 構造 |
| ||
地図
物件までの道のりは、「拡大地図を表示」をクリックしてナビ機能をご利用ください。
部屋設備



















建物設備

TVモニターホン

エレベーター

オートロック

バイク置場

宅配ボックス

敷地内ゴミ置場

管理人

駐車場平置き

駐車場機械式

駐輪場
ライトテラス新宿御苑の現在募集中のお部屋
- ライトテラス新宿御苑 601 - 間取り: 3LDK+WIC - 賃料: 42.4万円
- ライトテラス新宿御苑 1801 - 間取り: 3LDK+WIC - 賃料: 46万円
- ライトテラス新宿御苑 1806 - 間取り: 2LDK+WIC+SIC - 賃料: 38.6万円
- ライトテラス新宿御苑 1805 - 間取り: 2SLDK+WIC - 賃料: 47.5万円
- ライトテラス新宿御苑 305 - 間取り: 2SLDK+WIC - 賃料: 44万円
- ライトテラス新宿御苑 1506 - 間取り: 1SLDK+WIC - 賃料: 38万円
- ライトテラス新宿御苑 805 - 間取り: 2SLDK+WIC - 賃料: 45万円
