
| 賃料 | 予想金額:330,000〜350,000円程度 | 管理費 | 予想金額:13,000〜17,000円程度 |
| 礼金/敷金 | 非公開(アーカイブ) | 平米数 | 70.11㎡ |
| 初期費用概算(参考) | 目安:1,254,000〜1,354,000 円 | みなし賃料(月額・参考) | 365,083〜385,083 円 |
| 備考 | 本ページは過去募集のアーカイブです。表示の金額は周辺相場・過去募集を踏まえた参考レンジであり、実際の契約金額・条件ではありません。 | ||
※上記みなし賃料(月額)は仲介手数料割引・無料&キャッシュバックを加味した高級賃貸バイブル限定の金額です。一般的なみなし賃料とは異なります。
【建物ページ】ライトテラス新宿御苑の詳細・最新空室はこちら▶▶選ばれる理由
仲介手数料無料・キャンペーン情報(毎月15名様限定)
〇仲介手数料割引キャンペーン
ライトテラス新宿御苑 1803の口コミ・レビュー
「ライトテラス新宿御苑 1803」、それはただの住まいではありません。まるであなたの心の中にある夢を形にしてくれる存在なのです。東京都新宿区新宿1-28-17、東の光に包まれたこの場所で、あなたの日常は確実に特別なものになるでしょう。
1803号室の扉を開けると、6.5帖のスマートなスペースがあなたを出迎えます。ここは、思索を巡らせるための書斎としても、親しい友人を招いての小さな集まりにも最適な…「ライトテラス新宿御苑 1803」、それはただの住まいではありません。まるであなたの心の中にある夢を形にしてくれる存在なのです。東京都新宿区新宿1-28-17、東の光に包まれたこの場所で、あなたの日常は確実に特別なものになるでしょう。
1803号室の扉を開けると、6.5帖のスマートなスペースがあなたを出迎えます。ここは、思索を巡らせるための書斎としても、親しい友人を招いての小さな集まりにも最適な空間です。その向こうには、5.1帖の洋室があり、穏やかな朝日が優しく差し込み、あなたを優しく起こしてくれます。隣の5帖の洋室も、静寂に包まれたプライベートゾーンとして、心休まる寝室やクリエイティブな作業部屋として、あなたをインスパイアすることでしょう。
そして、14帖のLDKは、光が踊る空間。キッチンからは、日常の料理が美味しい香りを運び、ダイニングテーブルには友人たちの笑い声が響き渡ります。ここで過ごす時間は、まるで映画のワンシーンのように、鮮やかに心に刻まれていきます。窓からは新宿御苑の緑が見え、四季折々の変化があなたの生活に彩りを添えてくれることでしょう。
「ライトテラス新宿御苑 1803」には、上質な設備が整っています。オートロックで守られた安心感、エレベーターでのスムーズなアクセス、宅配ボックスはあなたの忙しい生活を助けてくれます。駐車場や駐輪場も完備されており、バイクで颯爽と出かけるのも良いでしょう。まるであなたのライフスタイルに寄り添ってくれるように、ここには魅力が溢れています。
周辺には、新宿御苑のゆったりとした空間が広がり、歴史ある文化や芸術が息づいています。散歩がてら、美術館やギャラリーを訪れ、感受性を磨く時間もまた、あなたの生活を豊かにしてくれることでしょう。静かな朝の空気、午後の穏やかな風、そして夜の街の賑わい。それぞれが「ライトテラス新宿御苑 1803」の物語の一部として、あなたの心に響きます。
この場所で、あなたは新しいストーリーを紡いでいくことができるのです。70.11㎡の空間に広がる夢、あなたの思い描く生活がここに待っています。上質な空間での新しい生活が、心の底からの幸福感をもたらしてくれることでしょう。「ライトテラス新宿御苑 1803」、あなたの未来の舞台が、ここに広がっています。さあ、一歩踏み出してみませんか。
1803号室の扉を開けると、6.5帖のスマートなスペースがあなたを出迎えます。ここは、思索を巡らせるための書斎としても、親しい友人を招いての小さな集まりにも最適な…「ライトテラス新宿御苑 1803」、それはただの住まいではありません。まるであなたの心の中にある夢を形にしてくれる存在なのです。東京都新宿区新宿1-28-17、東の光に包まれたこの場所で、あなたの日常は確実に特別なものになるでしょう。
1803号室の扉を開けると、6.5帖のスマートなスペースがあなたを出迎えます。ここは、思索を巡らせるための書斎としても、親しい友人を招いての小さな集まりにも最適な空間です。その向こうには、5.1帖の洋室があり、穏やかな朝日が優しく差し込み、あなたを優しく起こしてくれます。隣の5帖の洋室も、静寂に包まれたプライベートゾーンとして、心休まる寝室やクリエイティブな作業部屋として、あなたをインスパイアすることでしょう。
そして、14帖のLDKは、光が踊る空間。キッチンからは、日常の料理が美味しい香りを運び、ダイニングテーブルには友人たちの笑い声が響き渡ります。ここで過ごす時間は、まるで映画のワンシーンのように、鮮やかに心に刻まれていきます。窓からは新宿御苑の緑が見え、四季折々の変化があなたの生活に彩りを添えてくれることでしょう。
「ライトテラス新宿御苑 1803」には、上質な設備が整っています。オートロックで守られた安心感、エレベーターでのスムーズなアクセス、宅配ボックスはあなたの忙しい生活を助けてくれます。駐車場や駐輪場も完備されており、バイクで颯爽と出かけるのも良いでしょう。まるであなたのライフスタイルに寄り添ってくれるように、ここには魅力が溢れています。
周辺には、新宿御苑のゆったりとした空間が広がり、歴史ある文化や芸術が息づいています。散歩がてら、美術館やギャラリーを訪れ、感受性を磨く時間もまた、あなたの生活を豊かにしてくれることでしょう。静かな朝の空気、午後の穏やかな風、そして夜の街の賑わい。それぞれが「ライトテラス新宿御苑 1803」の物語の一部として、あなたの心に響きます。
この場所で、あなたは新しいストーリーを紡いでいくことができるのです。70.11㎡の空間に広がる夢、あなたの思い描く生活がここに待っています。上質な空間での新しい生活が、心の底からの幸福感をもたらしてくれることでしょう。「ライトテラス新宿御苑 1803」、あなたの未来の舞台が、ここに広がっています。さあ、一歩踏み出してみませんか。
バイブルスコア
バイブルスコア: 25.0
平均的なスコアです。
※バイブルスコア詳細はこちら
バイブルスコアとは独自のAI機械学習技術を利用した物件評価システムで、物件のおすすめ度を示します。最高得点は100点で、スコアが高いほど、よりおすすめの物件と評価されています。
写真
現在写真が登録されていません契約条件
| 賃料 | 予想金額:330,000〜350,000円程度 | 管理費 | 予想金額:13,000〜17,000円程度 |
| 礼金 | 非公開(アーカイブ) | 敷金 | 非公開(アーカイブ) |
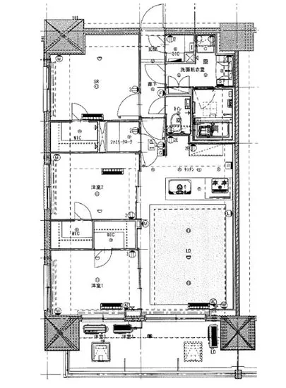
| フリーレント | なし | 平米数 | 70.11㎡ |
| 間取り | 2LDK | 大型収納 | 3WIC+SIC+S |
| 契約期間 |
| 方角 | 東 |
| 更新料 | 契約形態 | 普通賃貸借契約 | |
| 取引態様 | 媒介 | 内見状況 | 入居中 |
| 入居時期 | 入居中 | SOHO・事務所 | |
| ペット | ペット可 | 間取り内訳 | S:6.5 洋:5.1 洋:5 LDK:14 |
| キャンペーン情報・備考 | 本情報は賃料改定交渉の資料作成、収益物件の利回り試算、周辺エリアや最寄り駅の坪単価分析、次回募集開始時期の予測などにご活用いただけます。 | ||
※「どの不動産に頼めばいいのか分からない」「信頼できる営業マンの話を聞きたい」「一番親切な会社と契約したい」とお悩みの方におすすめなのが「高級賃貸バイブル」です。
高級賃貸バイブルは業界10年以上の熟練スタッフ群がお客様ファーストで対応します。
下記ボタンから、まずは無料でご相談下さい。
※内覧をご希望の際には、どうぞ物件のエントランス前にてお待ち合わせくださいませ。ご内覧後は、同じ場所でお別れとさせていただきます。お客様のご都合に合わせたスムーズなご案内を心がけておりますので、ご質問等がございましたら何なりとお申し付けください。 物件概要
| 物件名 |
| 築年月 |
|
|---|---|---|---|
| 所在地 | |||
| 交通 | |||
| 総戸数 |
| 総階数 |
|
| 構造 |
| ||
地図
物件までの道のりは、「拡大地図を表示」をクリックしてナビ機能をご利用ください。
部屋設備



















建物設備

TVモニターホン

エレベーター

オートロック

バイク置場

宅配ボックス

敷地内ゴミ置場

管理人

駐車場平置き

駐車場機械式

駐輪場
ライトテラス新宿御苑の現在募集中のお部屋
- ライトテラス新宿御苑 601 - 間取り: 3LDK+WIC - 賃料: 42.4万円
- ライトテラス新宿御苑 1801 - 間取り: 3LDK+WIC - 賃料: 46万円
- ライトテラス新宿御苑 1806 - 間取り: 2LDK+WIC+SIC - 賃料: 38.6万円
- ライトテラス新宿御苑 1805 - 間取り: 2SLDK+WIC - 賃料: 47.5万円
- ライトテラス新宿御苑 305 - 間取り: 2SLDK+WIC - 賃料: 44万円
- ライトテラス新宿御苑 1506 - 間取り: 1SLDK+WIC - 賃料: 38万円
- ライトテラス新宿御苑 805 - 間取り: 2SLDK+WIC - 賃料: 45万円
