業界のプロが親切丁寧に対応・最安値級の初期費用 都心の高級賃貸はお任せください!

ライトテラス新宿御苑 904【常緑コンテンツ】 (更新日: 2025年8月22日)

  • 2024年11月2日
  • 2025年8月22日
  • 回閲覧されています
  • by
ライトテラス新宿御苑 904

賃料 予想金額:330,000〜350,000円程度 管理費 予想金額:13,000〜17,000円程度
礼金/敷金 非公開(アーカイブ) 平米数 57.17㎡
初期費用概算(参考) 目安:1,114,500〜1,214,500 円 みなし賃料(月額・参考) 362,177〜382,177 円
備考 本ページは過去募集のアーカイブです。表示の金額は周辺相場・過去募集を踏まえた参考レンジであり、実際の契約金額・条件ではありません。

※上記みなし賃料(月額)は仲介手数料割引・無料&キャッシュバックを加味した高級賃貸バイブル限定の金額です。一般的なみなし賃料とは異なります。

【建物ページ】ライトテラス新宿御苑の詳細・最新空室はこちら▶▶

選ばれる理由

スーモホームズや他社様のHPに掲載している物件も最安値級で契約可能です

Property Image

高級賃貸バイブルは店長が必ず対応します、新人に頼むより圧倒的お得です

仲介手数料無料・キャンペーン情報(毎月15名様限定)

〇引っ越しお祝い金68000円プレゼント(キャッシュバック)

〇仲介手数料無料キャンペーン

高級賃貸バイブルのLINE問合せ

Contact Image

ライトテラス新宿御苑 904の口コミ・レビュー

大坪正博のアイコン
大坪正博(スタッフ/Googleローカルガイド レベル7)
ライトテラス新宿御苑 904。あなたの新たな生活が、ここから始まるのです。この美しい空間は、まるで宝石のように輝く新宿区の一角に位置しています。904号室は、まさに優雅さと安心感の象徴。東向きの窓から注ぎ込む朝日の光が、心地よい温もりをもたらし、日々の生活を優雅なものに変えてくれることでしょう。

この家に足を踏み入れると、LDK12.3帖の広々とした空間が、まるで心を開くバラの花のようにあなたを…

バイブルスコア

バイブルスコア: 43.9
条件のいい物件です、引っ越しが2か月以内の場合は仮申し込みを検討すべき物件です。

条件のいい物件です、引っ越しが2か月以内の場合は仮申し込みを検討すべき物件です。


バイブルスコア詳細はこちら
バイブルスコアとは独自のAI機械学習技術を利用した物件評価システムで、物件のおすすめ度を示します。最高得点は100点で、スコアが高いほど、よりおすすめの物件と評価されています。

写真

現在写真が登録されていません

契約条件

賃料予想金額:330,000〜350,000円程度管理費予想金額:13,000〜17,000円程度
礼金非公開(アーカイブ)敷金非公開(アーカイブ)
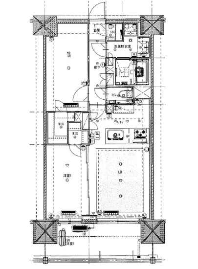
フリーレント なし平米数57.17㎡
間取り1SLDK+WIC大型収納WIC
契約期間2年方角
更新料1ヶ月契約形態普通賃貸借契約
取引態様媒介内見状況入居中
入居時期入居中SOHO・事務所不可
ペット可 敷金1ヶ月積み増し間取り内訳LDK12.3帖 洋室5.5帖 サービスルーム6.5帖
キャンペーン情報・備考本情報は賃料改定交渉の資料作成、収益物件の利回り試算、周辺エリアや最寄り駅の坪単価分析、次回募集開始時期の予測などにご活用いただけます。

※「どの不動産に頼めばいいのか分からない」「信頼できる営業マンの話を聞きたい」「一番親切な会社と契約したい」とお悩みの方におすすめなのが「高級賃貸バイブル」です。

高級賃貸バイブルは業界10年以上の熟練スタッフ群がお客様ファーストで対応します。
下記ボタンから、まずは無料でご相談下さい。

高級賃貸バイブルのLINE問合せ

Contact Image

※内覧をご希望の際には、どうぞ物件のエントランス前にてお待ち合わせくださいませ。ご内覧後は、同じ場所でお別れとさせていただきます。お客様のご都合に合わせたスムーズなご案内を心がけておりますので、ご質問等がございましたら何なりとお申し付けください。

物件概要

物件名
  • ライトテラス新宿御苑
築年月
  • 2021年2月
所在地
交通
総戸数
  • 100戸
総階数
  • 地上18階
構造
  • 鉄筋コンクリート造(RC)
  • 耐震

地図

物件までの道のりは、「拡大地図を表示」をクリックしてナビ機能をご利用ください。

部屋設備

ウォークインクローゼットエアコンカウンターキッチンシステムキッチンシューズボックスフローリングペット可リフォーム床暖房浴室乾燥機温水洗浄便座独立洗面台追い炊き

建物設備

TVモニターホン

TVモニターホン

エレベーター

エレベーター

オートロック

オートロック

バイク置場

バイク置場

宅配ボックス

宅配ボックス

敷地内ゴミ置場

敷地内ゴミ置場

管理人

管理人

駐車場平置き

駐車場平置き

駐車場機械式

駐車場機械式

駐輪場

駐輪場

高級賃貸バイブルのLINE問合せ

Contact Image

ライトテラス新宿御苑の現在募集中のお部屋

ライトテラス新宿御苑 904の所属カテゴリー

  • ,
  • , , , , , , , , , , , , , ,
  • 高級賃貸バイブルオフィス

    都心のお部屋探しは高級賃貸バイブルへお任せ下さい!

    【業界のプロが担当します】おすすめ物件のご提案・内見のご予約・初期費用のお見積りお気軽にご相談ください。