
| 賃料 | 予想金額:320,000〜340,000円程度 | 管理費 | 予想金額:13,000〜17,000円程度 |
| 礼金/敷金 | 非公開(アーカイブ) | 平米数 | 57.17㎡ |
| 初期費用概算(参考) | 目安:1,219,000〜1,319,000 円 | みなし賃料(月額・参考) | 354,563〜374,563 円 |
| 備考 | 本ページは過去募集のアーカイブです。表示の金額は周辺相場・過去募集を踏まえた参考レンジであり、実際の契約金額・条件ではありません。 | ||
※上記みなし賃料(月額)は仲介手数料割引・無料&キャッシュバックを加味した高級賃貸バイブル限定の金額です。一般的なみなし賃料とは異なります。
【建物ページ】ライトテラス新宿御苑の詳細・最新空室はこちら▶▶選ばれる理由
仲介手数料無料・キャンペーン情報(毎月15名様限定)
〇仲介手数料割引キャンペーン
ライトテラス新宿御苑 1504の口コミ・レビュー
ライトテラス新宿御苑 1504。これは、ただの物件ではありません。まるで美しい作品が静かに佇む、美術館の一角のような存在です。この高級賃貸物件は、まさにあなたの生活に新たな風を吹き込み、贅沢なひとときを提供してくれるでしょう。
1504という数字は、あなたの探し求めていた生活の舞台。そこには、ゆったりとしたL字型のLDKが広がり、12.3帖の空間は、静かな朝の光が差し込み、偶然手にした本をページ…ライトテラス新宿御苑 1504。これは、ただの物件ではありません。まるで美しい作品が静かに佇む、美術館の一角のような存在です。この高級賃貸物件は、まさにあなたの生活に新たな風を吹き込み、贅沢なひとときを提供してくれるでしょう。
1504という数字は、あなたの探し求めていた生活の舞台。そこには、ゆったりとしたL字型のLDKが広がり、12.3帖の空間は、静かな朝の光が差し込み、偶然手にした本をページをめくる音が心地よいハーモニーを奏でます。朝食には焼きたてのパンの香ばしい香りが漂い、その香りに誘われるように、5.5帖の洋室で目覚めるあなた。清々しい風が窓から侵入し、心も体もリフレッシュされる瞬間が、あなたの毎日の始まりを特別なものにしてくれるのです。
ライトテラス新宿御苑 1504は、ただ空間を提供するだけでなく、その存在自体があなたに語りかけてきます。「ここでの生活は、あなたの物語の一部だよ」と。特に、6.5帖のサブルームは、創造力をかき立てるためのアトリエとなり、芸術活動や趣味の時間を過ごすのにぴったりです。大切な作品づくりのための場所として、あるいは心安らぐ読書の隠れ家として。あなたの感性が、この空間で息づくのです。
日々の喧騒を忘れさせてくれるのは、やはりこの物件の立地です。新宿御苑前駅から徒歩5分の距離、都会の中心に立ちながらも、静謐な自然の息吹が感じられる場所に位置しています。四季折々の花々が咲き乱れる新宿御苑での散歩は、心を洗うひと時。春には桜が舞い、初夏には緑が生い茂り、秋には色づく葉が大地を彩ります。そして冬になると、冷たい空気の中にふわりと漂う温かいスープの香り。まるで映画のワンシーンのように、感動的な瞬間が待っています。
この高級賃貸物件は、あなたにとっての安全地帯でもあります。オートロックや管理人の存在が、安心感をもたらし、プライバシーを守ります。宅配ボックスも完備されているため、忙しい日々を送るあなたにとって、贈り物やル・クルーゼの鍋が待っているのを気軽に受け取ることができます。バイク置き場や駐車場も整っているため、アクティブなライフスタイルを支える準備も万全です。
ライトテラス新宿御苑 1504は、ただの住居ではなく、あなたの生活そのものを豊かにするための舞台です。この地での日々が、どのようにあなたの物語を彩っていくのか、ぜひ楽しみにしていてください。あなたの新しい生活の始まりが、ここから始まるのです。
1504という数字は、あなたの探し求めていた生活の舞台。そこには、ゆったりとしたL字型のLDKが広がり、12.3帖の空間は、静かな朝の光が差し込み、偶然手にした本をページ…ライトテラス新宿御苑 1504。これは、ただの物件ではありません。まるで美しい作品が静かに佇む、美術館の一角のような存在です。この高級賃貸物件は、まさにあなたの生活に新たな風を吹き込み、贅沢なひとときを提供してくれるでしょう。
1504という数字は、あなたの探し求めていた生活の舞台。そこには、ゆったりとしたL字型のLDKが広がり、12.3帖の空間は、静かな朝の光が差し込み、偶然手にした本をページをめくる音が心地よいハーモニーを奏でます。朝食には焼きたてのパンの香ばしい香りが漂い、その香りに誘われるように、5.5帖の洋室で目覚めるあなた。清々しい風が窓から侵入し、心も体もリフレッシュされる瞬間が、あなたの毎日の始まりを特別なものにしてくれるのです。
ライトテラス新宿御苑 1504は、ただ空間を提供するだけでなく、その存在自体があなたに語りかけてきます。「ここでの生活は、あなたの物語の一部だよ」と。特に、6.5帖のサブルームは、創造力をかき立てるためのアトリエとなり、芸術活動や趣味の時間を過ごすのにぴったりです。大切な作品づくりのための場所として、あるいは心安らぐ読書の隠れ家として。あなたの感性が、この空間で息づくのです。
日々の喧騒を忘れさせてくれるのは、やはりこの物件の立地です。新宿御苑前駅から徒歩5分の距離、都会の中心に立ちながらも、静謐な自然の息吹が感じられる場所に位置しています。四季折々の花々が咲き乱れる新宿御苑での散歩は、心を洗うひと時。春には桜が舞い、初夏には緑が生い茂り、秋には色づく葉が大地を彩ります。そして冬になると、冷たい空気の中にふわりと漂う温かいスープの香り。まるで映画のワンシーンのように、感動的な瞬間が待っています。
この高級賃貸物件は、あなたにとっての安全地帯でもあります。オートロックや管理人の存在が、安心感をもたらし、プライバシーを守ります。宅配ボックスも完備されているため、忙しい日々を送るあなたにとって、贈り物やル・クルーゼの鍋が待っているのを気軽に受け取ることができます。バイク置き場や駐車場も整っているため、アクティブなライフスタイルを支える準備も万全です。
ライトテラス新宿御苑 1504は、ただの住居ではなく、あなたの生活そのものを豊かにするための舞台です。この地での日々が、どのようにあなたの物語を彩っていくのか、ぜひ楽しみにしていてください。あなたの新しい生活の始まりが、ここから始まるのです。
バイブルスコア
バイブルスコア: 9.8
高級な物件でない場合は割高な物件です。。
※バイブルスコア詳細はこちら
バイブルスコアとは独自のAI機械学習技術を利用した物件評価システムで、物件のおすすめ度を示します。最高得点は100点で、スコアが高いほど、よりおすすめの物件と評価されています。
写真
現在写真が登録されていません契約条件
| 賃料 | 予想金額:320,000〜340,000円程度 | 管理費 | 予想金額:13,000〜17,000円程度 |
| 礼金 | 非公開(アーカイブ) | 敷金 | 非公開(アーカイブ) |
| フリーレント | なし | 平米数 | 57.17㎡ |
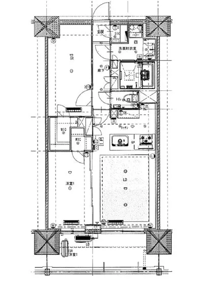
| 間取り | 1LDK | 大型収納 | 2WIC+SIC+S |
| 契約期間 |
| 方角 | 東 |
| 更新料 | 契約形態 | 普通賃貸借契約 | |
| 取引態様 | 媒介 | 内見状況 | 入居中 |
| 入居時期 | 入居中 | SOHO・事務所 | |
| ペット | ペット可 | 間取り内訳 | S:6.5 洋:5.5 LDK:12.3 |
| キャンペーン情報・備考 | 本情報は賃料改定交渉の資料作成、収益物件の利回り試算、周辺エリアや最寄り駅の坪単価分析、次回募集開始時期の予測などにご活用いただけます。 | ||
※「どの不動産に頼めばいいのか分からない」「信頼できる営業マンの話を聞きたい」「一番親切な会社と契約したい」とお悩みの方におすすめなのが「高級賃貸バイブル」です。
高級賃貸バイブルは業界10年以上の熟練スタッフ群がお客様ファーストで対応します。
下記ボタンから、まずは無料でご相談下さい。
※内覧をご希望の際には、どうぞ物件のエントランス前にてお待ち合わせくださいませ。ご内覧後は、同じ場所でお別れとさせていただきます。お客様のご都合に合わせたスムーズなご案内を心がけておりますので、ご質問等がございましたら何なりとお申し付けください。 物件概要
| 物件名 |
| 築年月 |
|
|---|---|---|---|
| 所在地 | |||
| 交通 | |||
| 総戸数 |
| 総階数 |
|
| 構造 |
| ||
地図
物件までの道のりは、「拡大地図を表示」をクリックしてナビ機能をご利用ください。
部屋設備


















建物設備

TVモニターホン

エレベーター

オートロック

バイク置場

宅配ボックス

敷地内ゴミ置場

管理人

駐車場平置き

駐車場機械式

駐輪場
ライトテラス新宿御苑の現在募集中のお部屋
- ライトテラス新宿御苑 601 - 間取り: 3LDK+WIC - 賃料: 42.4万円
- ライトテラス新宿御苑 1801 - 間取り: 3LDK+WIC - 賃料: 46万円
- ライトテラス新宿御苑 1806 - 間取り: 2LDK+WIC+SIC - 賃料: 38.6万円
- ライトテラス新宿御苑 1805 - 間取り: 2SLDK+WIC - 賃料: 47.5万円
- ライトテラス新宿御苑 305 - 間取り: 2SLDK+WIC - 賃料: 44万円
- ライトテラス新宿御苑 1506 - 間取り: 1SLDK+WIC - 賃料: 38万円
- ライトテラス新宿御苑 805 - 間取り: 2SLDK+WIC - 賃料: 45万円
