業界のプロが親切丁寧に対応・最安値級の初期費用 都心の高級賃貸はお任せください!

ライトテラス新宿御苑 1204【常緑コンテンツ】 (更新日: 2025年8月22日)

  • 2023年11月10日
  • 2025年8月22日
  • 回閲覧されています
  • by
ライトテラス新宿御苑 1204

賃料 予想金額:273,000〜293,000円程度 管理費 予想金額:13,000〜17,000円程度
礼金/敷金 非公開(アーカイブ) 平米数 57.17㎡
初期費用概算(参考) 目安:1,054,500〜1,154,500 円 みなし賃料(月額・参考) 305,115〜325,115 円
備考 本ページは過去募集のアーカイブです。表示の金額は周辺相場・過去募集を踏まえた参考レンジであり、実際の契約金額・条件ではありません。

※上記みなし賃料(月額)は仲介手数料割引・無料&キャッシュバックを加味した高級賃貸バイブル限定の金額です。一般的なみなし賃料とは異なります。

【建物ページ】ライトテラス新宿御苑の詳細・最新空室はこちら▶▶

選ばれる理由

スーモホームズや他社様のHPに掲載している物件も最安値級で契約可能です

高級賃貸バイブルは店長が必ず対応します、新人に頼むより圧倒的お得です

仲介手数料無料・キャンペーン情報(毎月15名様限定)

〇仲介手数料割引キャンペーン

高級賃貸バイブルのLINE問合せ

Contact Image

ライトテラス新宿御苑 1204の口コミ・レビュー

大坪正博のアイコン
大坪正博(スタッフ/Googleローカルガイド レベル7)
ライトテラス新宿御苑 1204。この名は、都心の喧騒を背に、静寂と洗練さを手に入れる場所を象徴しています。見下ろすと、東京の景色が一望でき、目の前に広がる新宿御苑の緑は、心を穏やかに保つオアシスとして、あなたを優しく包み込みます。ここに住まうことは、まるで一篇の美しい詩のような生活を手に入れることを意味します。

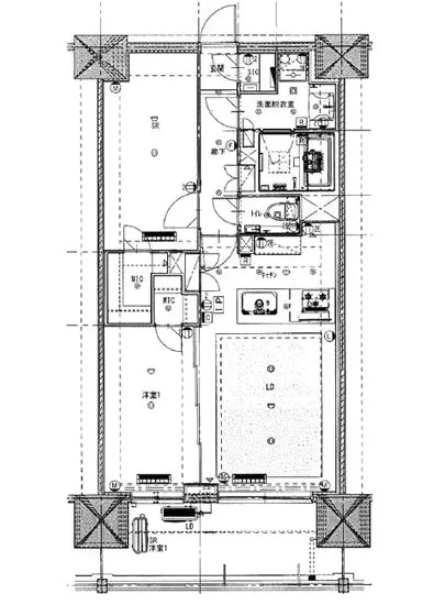
1204号室は、12.3帖のLDKを中心に、6.5帖の書斎と5.5帖の寝室が広がる贅…

バイブルスコア

バイブルスコア: 22.4
平均的なスコアです。

平均的なスコアです。


バイブルスコア詳細はこちら
バイブルスコアとは独自のAI機械学習技術を利用した物件評価システムで、物件のおすすめ度を示します。最高得点は100点で、スコアが高いほど、よりおすすめの物件と評価されています。

写真

現在写真が登録されていません

契約条件

賃料予想金額:273,000〜293,000円程度管理費予想金額:13,000〜17,000円程度
礼金非公開(アーカイブ)敷金非公開(アーカイブ)
フリーレント なし平米数57.17㎡
間取り1LDK大型収納2WIC+SIC+S
契約期間
  • 2年
方角
更新料契約形態普通賃貸借契約
取引態様媒介内見状況入居中
入居時期入居中SOHO・事務所
ペットペット可間取り内訳S:6.5 洋:5.5 LDK:12.3
キャンペーン情報・備考本情報は賃料改定交渉の資料作成、収益物件の利回り試算、周辺エリアや最寄り駅の坪単価分析、次回募集開始時期の予測などにご活用いただけます。

※「どの不動産に頼めばいいのか分からない」「信頼できる営業マンの話を聞きたい」「一番親切な会社と契約したい」とお悩みの方におすすめなのが「高級賃貸バイブル」です。

高級賃貸バイブルは業界10年以上の熟練スタッフ群がお客様ファーストで対応します。
下記ボタンから、まずは無料でご相談下さい。

高級賃貸バイブルのLINE問合せ

Contact Image

※内覧をご希望の際には、どうぞ物件のエントランス前にてお待ち合わせくださいませ。ご内覧後は、同じ場所でお別れとさせていただきます。お客様のご都合に合わせたスムーズなご案内を心がけておりますので、ご質問等がございましたら何なりとお申し付けください。

物件概要

物件名
  • ライトテラス新宿御苑
築年月
  • 2021年2月
所在地
交通
総戸数
  • 100戸
総階数
  • 地上18階
構造
  • 鉄筋コンクリート造(RC)
  • 耐震

地図

物件までの道のりは、「拡大地図を表示」をクリックしてナビ機能をご利用ください。

部屋設備

BSBT別CSウォークインクローゼットエアコンカウンターキッチンクローゼットシステムキッチンシューズインクローゼットシューズボックスバルコニーフローリングペット可室内洗濯機置き場床暖房浴室乾燥機温水洗浄便座独立洗面台追い炊き

建物設備

TVモニターホン

TVモニターホン

エレベーター

エレベーター

オートロック

オートロック

バイク置場

バイク置場

宅配ボックス

宅配ボックス

敷地内ゴミ置場

敷地内ゴミ置場

管理人

管理人

駐車場平置き

駐車場平置き

駐車場機械式

駐車場機械式

駐輪場

駐輪場

高級賃貸バイブルのLINE問合せ

Contact Image

ライトテラス新宿御苑の現在募集中のお部屋

ライトテラス新宿御苑 1204の所属カテゴリー

  • , ,
  • , , , , , , , , , , , , , , , , , ,
  • 高級賃貸バイブルオフィス

    都心のお部屋探しは高級賃貸バイブルへお任せ下さい!

    【業界のプロが担当します】おすすめ物件のご提案・内見のご予約・初期費用のお見積りお気軽にご相談ください。