
| 賃料 | 予想金額:432,000〜452,000円程度 | 管理費 | 予想金額:13,000〜17,000円程度 |
| 礼金/敷金 | 非公開(アーカイブ) | 平米数 | 68.52㎡ |
| 初期費用概算(参考) | 目安:1,287,500〜1,387,500 円 | みなし賃料(月額・参考) | 465,656〜485,656 円 |
| 備考 | 本ページは過去募集のアーカイブです。表示の金額は周辺相場・過去募集を踏まえた参考レンジであり、実際の契約金額・条件ではありません。 | ||
※上記みなし賃料(月額)は仲介手数料割引・無料&キャッシュバックを加味した高級賃貸バイブル限定の金額です。一般的なみなし賃料とは異なります。
【建物ページ】ライトテラス新宿御苑の詳細・最新空室はこちら▶▶選ばれる理由
仲介手数料無料・キャンペーン情報(毎月15名様限定)
〇引っ越しお祝い金252000円プレゼント(キャッシュバック)
〇仲介手数料無料キャンペーン
ライトテラス新宿御苑 905の口コミ・レビュー
<!-- wp:paragraph -->
<p>「ライトテラス新宿御苑」は、東京都新宿区に位置する高級賃貸マンションで、都心部にいながらも自然との調和を楽しむことができる理想的な住環境を提供します。東京メトロ丸ノ内線「新宿御苑前駅」まで徒歩5分という駅チカの立地でありながら、近隣には新宿御苑があり、都会の喧騒を忘れてリラックスすることができます。<br><br>このマンションは地上18階、地下1…<!-- wp:paragraph -->
<p>「ライトテラス新宿御苑」は、東京都新宿区に位置する高級賃貸マンションで、都心部にいながらも自然との調和を楽しむことができる理想的な住環境を提供します。東京メトロ丸ノ内線「新宿御苑前駅」まで徒歩5分という駅チカの立地でありながら、近隣には新宿御苑があり、都会の喧騒を忘れてリラックスすることができます。<br><br>このマンションは地上18階、地下1階建ての建物で、総戸数は99戸。2021年2月に竣工された新しい建物で、最新の設備と快適な居住空間が魅力です。住戸は1LDKから3LDKまで幅広く展開されており、どの住戸も全居室フローリング、エアコン完備で、ウォークインクローゼットや大型クローゼットも備え付けられています。これにより、荷物の多い方でも十分な収納スペースを確保できます。<br><br>セキュリティ面では、24時間ゴミ出し可能、モニタ付きオートロックインターホン、宅配BOXなどが完備されており、安心して生活できる環境が整っています。また、トリプルセキュリティシステムを採用し、最新の防犯システムにより、日々の安全が確保されています。<br><br>室内設備も充実しており、ミストサウナや床暖房、ロータンクトイレなど、最新かつハイグレードな設備が搭載されています。このような設備は、日々の生活をより快適で便利なものにしてくれます。<br><br>周辺環境も大変充実しており、スーパーやコンビニ、ドラッグストアが徒歩圏内にあります。また、新宿駅も徒歩16分と近く、多数の百貨店や飲食店が生活圏内に点在しており、ショッピングや食事を日常的に楽しむことができます。新宿御苑をはじめとする公園も近くにあり、自然を感じることができる贅沢な住環境です。<br><br>「ライトテラス新宿御苑」は、利便性と自然の豊かさを兼ね備えた、まさに都心での理想的な生活を実現できるマンションです。日々の忙しさの中で、心の落ち着きを求める方にとって最適な場所でしょう。新しい生活をこのマンションで始めてみませんか?</p>
<!-- /wp:paragraph -->
<p>「ライトテラス新宿御苑」は、東京都新宿区に位置する高級賃貸マンションで、都心部にいながらも自然との調和を楽しむことができる理想的な住環境を提供します。東京メトロ丸ノ内線「新宿御苑前駅」まで徒歩5分という駅チカの立地でありながら、近隣には新宿御苑があり、都会の喧騒を忘れてリラックスすることができます。<br><br>このマンションは地上18階、地下1…<!-- wp:paragraph -->
<p>「ライトテラス新宿御苑」は、東京都新宿区に位置する高級賃貸マンションで、都心部にいながらも自然との調和を楽しむことができる理想的な住環境を提供します。東京メトロ丸ノ内線「新宿御苑前駅」まで徒歩5分という駅チカの立地でありながら、近隣には新宿御苑があり、都会の喧騒を忘れてリラックスすることができます。<br><br>このマンションは地上18階、地下1階建ての建物で、総戸数は99戸。2021年2月に竣工された新しい建物で、最新の設備と快適な居住空間が魅力です。住戸は1LDKから3LDKまで幅広く展開されており、どの住戸も全居室フローリング、エアコン完備で、ウォークインクローゼットや大型クローゼットも備え付けられています。これにより、荷物の多い方でも十分な収納スペースを確保できます。<br><br>セキュリティ面では、24時間ゴミ出し可能、モニタ付きオートロックインターホン、宅配BOXなどが完備されており、安心して生活できる環境が整っています。また、トリプルセキュリティシステムを採用し、最新の防犯システムにより、日々の安全が確保されています。<br><br>室内設備も充実しており、ミストサウナや床暖房、ロータンクトイレなど、最新かつハイグレードな設備が搭載されています。このような設備は、日々の生活をより快適で便利なものにしてくれます。<br><br>周辺環境も大変充実しており、スーパーやコンビニ、ドラッグストアが徒歩圏内にあります。また、新宿駅も徒歩16分と近く、多数の百貨店や飲食店が生活圏内に点在しており、ショッピングや食事を日常的に楽しむことができます。新宿御苑をはじめとする公園も近くにあり、自然を感じることができる贅沢な住環境です。<br><br>「ライトテラス新宿御苑」は、利便性と自然の豊かさを兼ね備えた、まさに都心での理想的な生活を実現できるマンションです。日々の忙しさの中で、心の落ち着きを求める方にとって最適な場所でしょう。新しい生活をこのマンションで始めてみませんか?</p>
<!-- /wp:paragraph -->
バイブルスコア
バイブルスコア: 33.6
平均的なスコアです。
※バイブルスコア詳細はこちら
バイブルスコアとは独自のAI機械学習技術を利用した物件評価システムで、物件のおすすめ度を示します。最高得点は100点で、スコアが高いほど、よりおすすめの物件と評価されています。
写真
現在写真が登録されていません契約条件
| 賃料 | 予想金額:432,000〜452,000円程度 | 管理費 | 予想金額:13,000〜17,000円程度 |
| 礼金 | 非公開(アーカイブ) | 敷金 | 非公開(アーカイブ) |
| フリーレント | なし | 平米数 | 68.52㎡ |
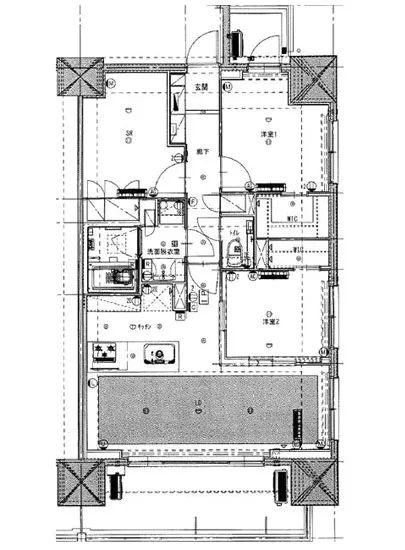
| 間取り | 2SLDK+WIC | 大型収納 | WIC |
| 契約期間 | 2年 | 方角 | 東 |
| 更新料 | 1ヶ月 | 契約形態 | 普通賃貸借契約 |
| 取引態様 | 媒介 | 内見状況 | 入居中 |
| 入居時期 | 入居中 | SOHO・事務所 | 不可 |
| ペット | 相談 | 間取り内訳 | LDK15帖 洋室6帖 洋室4.5帖 サービスルーム5.5帖 |
| キャンペーン情報・備考 | 本情報は賃料改定交渉の資料作成、収益物件の利回り試算、周辺エリアや最寄り駅の坪単価分析、次回募集開始時期の予測などにご活用いただけます。 | ||
※「どの不動産に頼めばいいのか分からない」「信頼できる営業マンの話を聞きたい」「一番親切な会社と契約したい」とお悩みの方におすすめなのが「高級賃貸バイブル」です。
高級賃貸バイブルは業界10年以上の熟練スタッフ群がお客様ファーストで対応します。
下記ボタンから、まずは無料でご相談下さい。
※内覧をご希望の際には、どうぞ物件のエントランス前にてお待ち合わせくださいませ。ご内覧後は、同じ場所でお別れとさせていただきます。お客様のご都合に合わせたスムーズなご案内を心がけておりますので、ご質問等がございましたら何なりとお申し付けください。 物件概要
| 物件名 |
| 築年月 |
|
|---|---|---|---|
| 所在地 | |||
| 交通 | |||
| 総戸数 |
| 総階数 |
|
| 構造 |
| ||
地図
物件までの道のりは、「拡大地図を表示」をクリックしてナビ機能をご利用ください。
部屋設備













建物設備

TVモニターホン

エレベーター

オートロック

バイク置場

宅配ボックス

敷地内ゴミ置場

管理人

駐車場平置き

駐車場機械式

駐輪場
ライトテラス新宿御苑の現在募集中のお部屋
- ライトテラス新宿御苑 601 - 間取り: 3LDK+WIC - 賃料: 42.4万円
- ライトテラス新宿御苑 1801 - 間取り: 3LDK+WIC - 賃料: 46万円
- ライトテラス新宿御苑 1806 - 間取り: 2LDK+WIC+SIC - 賃料: 38.6万円
- ライトテラス新宿御苑 1805 - 間取り: 2SLDK+WIC - 賃料: 47.5万円
- ライトテラス新宿御苑 305 - 間取り: 2SLDK+WIC - 賃料: 44万円
- ライトテラス新宿御苑 1506 - 間取り: 1SLDK+WIC - 賃料: 38万円
- ライトテラス新宿御苑 805 - 間取り: 2SLDK+WIC - 賃料: 45万円
