
| 賃料 | 予想金額:326,000〜346,000円程度 | 管理費 | 予想金額:13,000〜17,000円程度 |
| 礼金/敷金 | 非公開(アーカイブ) | 平米数 | 68.52㎡ |
| 初期費用概算(参考) | 目安:1,240,000〜1,340,000 円 | みなし賃料(月額・参考) | 360,875〜380,875 円 |
| 備考 | 本ページは過去募集のアーカイブです。表示の金額は周辺相場・過去募集を踏まえた参考レンジであり、実際の契約金額・条件ではありません。 | ||
※上記みなし賃料(月額)は仲介手数料割引・無料&キャッシュバックを加味した高級賃貸バイブル限定の金額です。一般的なみなし賃料とは異なります。
【建物ページ】ライトテラス新宿御苑の詳細・最新空室はこちら▶▶選ばれる理由
仲介手数料無料・キャンペーン情報(毎月15名様限定)
〇仲介手数料割引キャンペーン
ライトテラス新宿御苑 1705の口コミ・レビュー
ライトテラス新宿御苑 1705は、まるで洗練されたアートのように、都会の喧騒を背にした静けさを魅せる隠れ家です。この特別な空間は、東京都新宿区新宿1-28-17の美しい街並みの中にひっそりと佇み、あなたを迎え入れる準備が整っています。1705号室は、東向きの窓から穏やかな朝日が差し込み、さわやかな風が心地よく吹き抜けます。
この物件は、68.52㎡という広さを持ち、住まう人にゆったりとした生活の…ライトテラス新宿御苑 1705は、まるで洗練されたアートのように、都会の喧騒を背にした静けさを魅せる隠れ家です。この特別な空間は、東京都新宿区新宿1-28-17の美しい街並みの中にひっそりと佇み、あなたを迎え入れる準備が整っています。1705号室は、東向きの窓から穏やかな朝日が差し込み、さわやかな風が心地よく吹き抜けます。
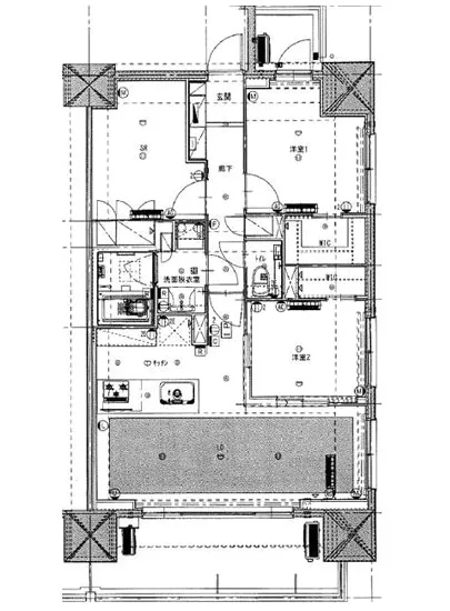
この物件は、68.52㎡という広さを持ち、住まう人にゆったりとした生活のリズムを提供します。リビングダイニングキッチン(LDK)は15帖の広々とした空間で、友人を招いての食事会や、愛する人との静かな晩酌にぴったりです。ここでの時間は、まるで映画のワンシーンのように、心温まるひとときを演出します。洋室はそれぞれ6帖、4.5帖と多様な使い方ができ、趣味の部屋や書斎としても理想的です。特にS:5.5帖のスペースは、あなたの創造力を刺激する場となり、インスピレーションが湧いてくることでしょう。
ライトテラス新宿御苑 1705の魅力は、設備にも光ります。心強いオートロックは、あなたのプライバシーを守り、エレベーターは日々の移動をスムーズにします。お仕事帰りに受け取った小包を宅配ボックスから取り出す瞬間、その便利さにふと微笑みがこぼれます。また、敷地内のグリーンが安らぎを与え、一歩外に出れば新宿御苑の豊かな自然が待っています。春には美しい桜が咲き誇り、散歩の途中でふわりと香る花々の香りに心が癒やされます。
この物件に住まうことで、あなたの生活は一変します。周囲の歴史や文化が息づく新宿の街に、アートと洗練が融合する瞬間を体感できるのです。地元のカフェで淹れたてのコーヒーを味わいながら、ゆっくりと過ごす時間は、まるで絵画の中の一場面のよう。新宿御苑前駅から徒歩5分ほどのアクセスは、あなたの通勤やお出かけにも便利で、都会の喧騒から少し離れたここだからこそ、心の平穏を持続できるのです。
ライトテラス新宿御苑 1705は、ただの住まいではなく、あなたの人生を豊かにする舞台背景です。ここでの日々は、喜び、安らぎ、そして心からの満足感を与えてくれることでしょう。この住まいで、あなた自身の物語を紡いでいく、そんな予感がするのです。新しい生活が、まるで一篇の詩のように美しく展開していくことでしょう。
この物件は、68.52㎡という広さを持ち、住まう人にゆったりとした生活の…ライトテラス新宿御苑 1705は、まるで洗練されたアートのように、都会の喧騒を背にした静けさを魅せる隠れ家です。この特別な空間は、東京都新宿区新宿1-28-17の美しい街並みの中にひっそりと佇み、あなたを迎え入れる準備が整っています。1705号室は、東向きの窓から穏やかな朝日が差し込み、さわやかな風が心地よく吹き抜けます。
この物件は、68.52㎡という広さを持ち、住まう人にゆったりとした生活のリズムを提供します。リビングダイニングキッチン(LDK)は15帖の広々とした空間で、友人を招いての食事会や、愛する人との静かな晩酌にぴったりです。ここでの時間は、まるで映画のワンシーンのように、心温まるひとときを演出します。洋室はそれぞれ6帖、4.5帖と多様な使い方ができ、趣味の部屋や書斎としても理想的です。特にS:5.5帖のスペースは、あなたの創造力を刺激する場となり、インスピレーションが湧いてくることでしょう。
ライトテラス新宿御苑 1705の魅力は、設備にも光ります。心強いオートロックは、あなたのプライバシーを守り、エレベーターは日々の移動をスムーズにします。お仕事帰りに受け取った小包を宅配ボックスから取り出す瞬間、その便利さにふと微笑みがこぼれます。また、敷地内のグリーンが安らぎを与え、一歩外に出れば新宿御苑の豊かな自然が待っています。春には美しい桜が咲き誇り、散歩の途中でふわりと香る花々の香りに心が癒やされます。
この物件に住まうことで、あなたの生活は一変します。周囲の歴史や文化が息づく新宿の街に、アートと洗練が融合する瞬間を体感できるのです。地元のカフェで淹れたてのコーヒーを味わいながら、ゆっくりと過ごす時間は、まるで絵画の中の一場面のよう。新宿御苑前駅から徒歩5分ほどのアクセスは、あなたの通勤やお出かけにも便利で、都会の喧騒から少し離れたここだからこそ、心の平穏を持続できるのです。
ライトテラス新宿御苑 1705は、ただの住まいではなく、あなたの人生を豊かにする舞台背景です。ここでの日々は、喜び、安らぎ、そして心からの満足感を与えてくれることでしょう。この住まいで、あなた自身の物語を紡いでいく、そんな予感がするのです。新しい生活が、まるで一篇の詩のように美しく展開していくことでしょう。
バイブルスコア
バイブルスコア: 23.9
平均的なスコアです。
※バイブルスコア詳細はこちら
バイブルスコアとは独自のAI機械学習技術を利用した物件評価システムで、物件のおすすめ度を示します。最高得点は100点で、スコアが高いほど、よりおすすめの物件と評価されています。
写真
現在写真が登録されていません契約条件
| 賃料 | 予想金額:326,000〜346,000円程度 | 管理費 | 予想金額:13,000〜17,000円程度 |
| 礼金 | 非公開(アーカイブ) | 敷金 | 非公開(アーカイブ) |
| フリーレント | なし | 平米数 | 68.52㎡ |
| 間取り | 2LDK | 大型収納 | 2WIC |
| 契約期間 |
| 方角 | 東 |
| 更新料 | 契約形態 | 普通賃貸借契約 | |
| 取引態様 | 媒介 | 内見状況 | 入居中 |
| 入居時期 | 入居中 | SOHO・事務所 | |
| ペット | ペット可 | 間取り内訳 | 洋:6 S:5.5 洋:4.5 LDK:15 |
| キャンペーン情報・備考 | 本情報は賃料改定交渉の資料作成、収益物件の利回り試算、周辺エリアや最寄り駅の坪単価分析、次回募集開始時期の予測などにご活用いただけます。 | ||
※「どの不動産に頼めばいいのか分からない」「信頼できる営業マンの話を聞きたい」「一番親切な会社と契約したい」とお悩みの方におすすめなのが「高級賃貸バイブル」です。
高級賃貸バイブルは業界10年以上の熟練スタッフ群がお客様ファーストで対応します。
下記ボタンから、まずは無料でご相談下さい。
※内覧をご希望の際には、どうぞ物件のエントランス前にてお待ち合わせくださいませ。ご内覧後は、同じ場所でお別れとさせていただきます。お客様のご都合に合わせたスムーズなご案内を心がけておりますので、ご質問等がございましたら何なりとお申し付けください。 物件概要
| 物件名 |
| 築年月 |
|
|---|---|---|---|
| 所在地 | |||
| 交通 | |||
| 総戸数 |
| 総階数 |
|
| 構造 |
| ||
地図
物件までの道のりは、「拡大地図を表示」をクリックしてナビ機能をご利用ください。
部屋設備


















建物設備

TVモニターホン

エレベーター

オートロック

バイク置場

宅配ボックス

敷地内ゴミ置場

管理人

駐車場平置き

駐車場機械式

駐輪場
ライトテラス新宿御苑の現在募集中のお部屋
- ライトテラス新宿御苑 601 - 間取り: 3LDK+WIC - 賃料: 42.4万円
- ライトテラス新宿御苑 1801 - 間取り: 3LDK+WIC - 賃料: 46万円
- ライトテラス新宿御苑 1806 - 間取り: 2LDK+WIC+SIC - 賃料: 38.6万円
- ライトテラス新宿御苑 1805 - 間取り: 2SLDK+WIC - 賃料: 47.5万円
- ライトテラス新宿御苑 305 - 間取り: 2SLDK+WIC - 賃料: 44万円
- ライトテラス新宿御苑 1506 - 間取り: 1SLDK+WIC - 賃料: 38万円
- ライトテラス新宿御苑 805 - 間取り: 2SLDK+WIC - 賃料: 45万円
