
| 賃料 | 予想金額:102,000〜122,000円程度 | 管理費 | 予想金額:13,000〜17,000円程度 |
| 礼金/敷金 | 非公開(アーカイブ) | 平米数 | 25.98㎡ |
| 初期費用概算(参考) | 目安:120,000〜220,000 円 | みなし賃料(月額・参考) | 120,542〜140,542 円 |
| 備考 | 本ページは過去募集のアーカイブです。表示の金額は周辺相場・過去募集を踏まえた参考レンジであり、実際の契約金額・条件ではありません。 | ||
※上記みなし賃料(月額)は仲介手数料割引・無料&キャッシュバックを加味した高級賃貸バイブル限定の金額です。一般的なみなし賃料とは異なります。
【建物ページ】クオリタス浅草橋の詳細・最新空室はこちら▶▶選ばれる理由
仲介手数料無料・キャンペーン情報(毎月15名様限定)
〇フリーレント2か月キャンペーン
クオリタス浅草橋 701の口コミ・レビュー
クオリタス浅草橋 701。ここは、華やかな街並みと文化が交錯する東京の心、台東区浅草橋の一角に佇む、まるでアートピースのような高級賃貸物件です。あなたを迎えるのは、洗練されたデザイナーズ空間と、微細に配慮された設備の数々。この701号室は、地上7階に位置し、広さわずか25.98㎡の空間に生活の余韻を封じ込める魔法が宿っています。
足を踏み入れると、まず感じるのは、木の温もりが漂う空間。当たり前の…クオリタス浅草橋 701。ここは、華やかな街並みと文化が交錯する東京の心、台東区浅草橋の一角に佇む、まるでアートピースのような高級賃貸物件です。あなたを迎えるのは、洗練されたデザイナーズ空間と、微細に配慮された設備の数々。この701号室は、地上7階に位置し、広さわずか25.98㎡の空間に生活の余韻を封じ込める魔法が宿っています。
足を踏み入れると、まず感じるのは、木の温もりが漂う空間。当たり前の日常が、特別な体験へと変化する瞬間を与えてくれます。目の前には、陽の光が優しく差し込み、北向きの窓からは、まるで穏やかな風がそっと囁くように、日々の忙しさを洗い流してくれるのです。静けさの中に潜む活気を感じながら、リラックスしたひとときを過ごすことができるでしょう。
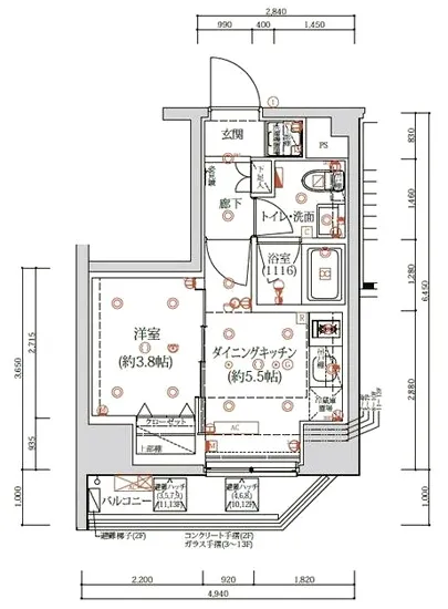
クオリタス浅草橋 701の間取りは、洋室が3.8帖、DKが5.5帖。これらの空間は、まるで流れる音楽のように、生活のリズムを奏でます。朝の柔らかい光を浴びて目覚める瞬間、コーヒーの香りが漂うダイニングキッチンで、一日の計画を思い描く。午後のひとときには、洋室で読書にふけり、心の旅を楽しむ。日々の生活が、映画のワンシーンのように美しく描かれることでしょう。
周囲には、歴史と文化が息づく街並みが広がっており、浅草という名前に宿る昔懐かしい情景が目の前に広がっています。伝統的な祭りや、地元の人々に愛される小さな商店が点在し、時折耳にする和楽器の音色が心を豊かにしてくれます。美味しい食事を楽しめる飲食店も多数あり、ここでの生活はまさしく五感を刺激する冒険となることでしょう。
さらに、クオリタス浅草橋 701は、管理人が常駐し、安心できる住環境が整っています。オートロックシステムにより、プライベートな空間がしっかりと守られています。エレベーターや宅配ボックス、駐車場平置き、駐輪場などの充実した設備が、生活の利便性を高め、ストレスのない暮らしを実現させます。
そして、この場所での生活は、単なる居住空間を超え、あなた自身の物語を紡ぎ出す舞台となるのです。日々の暮らしが、特別な瞬間で満ちあふれた物語となり、心温まるひとときを提供してくれることでしょう。クオリタス浅草橋 701で、あなたの新しい生活が始まる準備が整っています。この魅力的な空間で、心に残る居場所を見つけてください。あなたの人生の新たな章が、ここから始まるのです。
足を踏み入れると、まず感じるのは、木の温もりが漂う空間。当たり前の…クオリタス浅草橋 701。ここは、華やかな街並みと文化が交錯する東京の心、台東区浅草橋の一角に佇む、まるでアートピースのような高級賃貸物件です。あなたを迎えるのは、洗練されたデザイナーズ空間と、微細に配慮された設備の数々。この701号室は、地上7階に位置し、広さわずか25.98㎡の空間に生活の余韻を封じ込める魔法が宿っています。
足を踏み入れると、まず感じるのは、木の温もりが漂う空間。当たり前の日常が、特別な体験へと変化する瞬間を与えてくれます。目の前には、陽の光が優しく差し込み、北向きの窓からは、まるで穏やかな風がそっと囁くように、日々の忙しさを洗い流してくれるのです。静けさの中に潜む活気を感じながら、リラックスしたひとときを過ごすことができるでしょう。
クオリタス浅草橋 701の間取りは、洋室が3.8帖、DKが5.5帖。これらの空間は、まるで流れる音楽のように、生活のリズムを奏でます。朝の柔らかい光を浴びて目覚める瞬間、コーヒーの香りが漂うダイニングキッチンで、一日の計画を思い描く。午後のひとときには、洋室で読書にふけり、心の旅を楽しむ。日々の生活が、映画のワンシーンのように美しく描かれることでしょう。
周囲には、歴史と文化が息づく街並みが広がっており、浅草という名前に宿る昔懐かしい情景が目の前に広がっています。伝統的な祭りや、地元の人々に愛される小さな商店が点在し、時折耳にする和楽器の音色が心を豊かにしてくれます。美味しい食事を楽しめる飲食店も多数あり、ここでの生活はまさしく五感を刺激する冒険となることでしょう。
さらに、クオリタス浅草橋 701は、管理人が常駐し、安心できる住環境が整っています。オートロックシステムにより、プライベートな空間がしっかりと守られています。エレベーターや宅配ボックス、駐車場平置き、駐輪場などの充実した設備が、生活の利便性を高め、ストレスのない暮らしを実現させます。
そして、この場所での生活は、単なる居住空間を超え、あなた自身の物語を紡ぎ出す舞台となるのです。日々の暮らしが、特別な瞬間で満ちあふれた物語となり、心温まるひとときを提供してくれることでしょう。クオリタス浅草橋 701で、あなたの新しい生活が始まる準備が整っています。この魅力的な空間で、心に残る居場所を見つけてください。あなたの人生の新たな章が、ここから始まるのです。
バイブルスコア
バイブルスコア: 41.1
条件のいい物件です、引っ越しが2か月以内の場合は仮申し込みを検討すべき物件です。
※バイブルスコア詳細はこちら
バイブルスコアとは独自のAI機械学習技術を利用した物件評価システムで、物件のおすすめ度を示します。最高得点は100点で、スコアが高いほど、よりおすすめの物件と評価されています。
写真
契約条件
| 賃料 | 予想金額:102,000〜122,000円程度 | 管理費 | 予想金額:13,000〜17,000円程度 |
| 礼金 | 非公開(アーカイブ) | 敷金 | 非公開(アーカイブ) |
| フリーレント | 2.0ヶ月 | 平米数 | 25.98㎡ |
| 間取り | 1DK | 大型収納 | |
| 契約期間 |
| 方角 | 北 |
| 更新料 | 契約形態 | 普通賃貸借契約 | |
| 取引態様 | 媒介 | 内見状況 | 入居中 |
| 入居時期 | 入居中 | SOHO・事務所 | |
| ペット | ペット可 | 間取り内訳 | 洋:3.8 DK:5.5 |
| キャンペーン情報・備考 | 本情報は賃料改定交渉の資料作成、収益物件の利回り試算、周辺エリアや最寄り駅の坪単価分析、次回募集開始時期の予測などにご活用いただけます。 | ||
※「どの不動産に頼めばいいのか分からない」「信頼できる営業マンの話を聞きたい」「一番親切な会社と契約したい」とお悩みの方におすすめなのが「高級賃貸バイブル」です。
高級賃貸バイブルは業界10年以上の熟練スタッフ群がお客様ファーストで対応します。
下記ボタンから、まずは無料でご相談下さい。
※内覧をご希望の際には、どうぞ物件のエントランス前にてお待ち合わせくださいませ。ご内覧後は、同じ場所でお別れとさせていただきます。お客様のご都合に合わせたスムーズなご案内を心がけておりますので、ご質問等がございましたら何なりとお申し付けください。 物件概要
| 物件名 |
| 築年月 |
|
|---|---|---|---|
| 所在地 | |||
| 交通 | |||
| 総戸数 |
| 総階数 |
|
| 構造 |
| ||
地図
物件までの道のりは、「拡大地図を表示」をクリックしてナビ機能をご利用ください。
部屋設備














建物設備

TVモニターホン

エレベーター

オートロック

バイク置場

宅配ボックス

敷地内ゴミ置場

管理人

駐車場平置き

駐輪場
クオリタス浅草橋の現在募集中のお部屋
- クオリタス浅草橋 405 - 間取り: 1LDK - 賃料: 18.5万円





























