
| 賃料 | 予想金額:115,000〜135,000円程度 | 管理費 | 予想金額:13,000〜17,000円程度 |
| 礼金/敷金 | 非公開(アーカイブ) | 平米数 | 25.98㎡ |
| 初期費用概算(参考) | 目安:0〜96,500 円 | みなし賃料(月額・参考) | 128,365〜148,365 円 |
| 備考 | 本ページは過去募集のアーカイブです。表示の金額は周辺相場・過去募集を踏まえた参考レンジであり、実際の契約金額・条件ではありません。 | ||
※上記みなし賃料(月額)は仲介手数料割引・無料&キャッシュバックを加味した高級賃貸バイブル限定の金額です。一般的なみなし賃料とは異なります。
【建物ページ】クオリタス浅草橋の詳細・最新空室はこちら▶▶選ばれる理由
仲介手数料無料・キャンペーン情報(毎月15名様限定)
〇引っ越しお祝い金200000円プレゼント(キャッシュバック)
〇仲介手数料無料キャンペーン
クオリタス浅草橋 1101の口コミ・レビュー
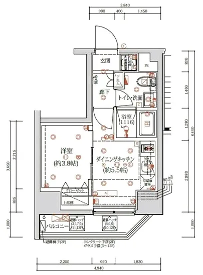
クオリタス浅草橋 1101の間取りは、洋室3.8帖とダイニングキッチン5.5帖という、心地よい広さが魅力です。このコンパ…クオリタス浅草橋 1101は、あなたの新たな物語が始まる場所です。ここに住まうことは、まるで時空を超えて別世界への扉を開くような体験。その扉を開けると、東京の喧噪を忘れさせる静寂と安らぎが広がります。あなたの新しい家は、北の方向を望み、日々の喧騒から解放される特別な空間です。
クオリタス浅草橋 1101の間取りは、洋室3.8帖とダイニングキッチン5.5帖という、心地よい広さが魅力です。このコンパクトな空間は、あなたの創造力を刺激し、心地良い生活を約束します。ここでの朝は、太陽の光が優しく部屋を包み込み、コーヒーの香りがすがすがしい空気と混ざり合い、ゆったりとした時間が流れます。お気に入りのカフェスタイルのコーヒーを淹れ、温まったマグカップを手に取り、窓の外に広がる東京の街並みを眺めれば、まるで映画のワンシーンにいるかのような特別な気持ちになるでしょう。
そして、クオリタス浅草橋 1101は、ただの住まいではありません。この物件は、デザイナーズの洗練された美しさが息づいています。オートロックや宅配ボックスなど、現代の便利さも兼ね備え、心の奥に秘めた上質な生活を提供します。エレベーターで優雅に自分の空間へと移動する際、その瞬間もまた自分だけの特別な時間に変わります。
周囲には浅草橋の歴史ある文化が根付いており、散策すれば昔ながらの商店街やアートギャラリーに出会えるでしょう。ここでの生活は、ただの暮らしではなく、地域に根付いた豊かな歴史とアートに触れる旅そのものです。あなたが道を歩くたびに、目を引く美術品や職人の手仕事の数々が、まるで語りかけてくるかのような存在感を放ちます。
クオリタス浅草橋 1101には、マンション自体が住む人に寄り添うように設計されています。敷地内のゴミ置場や駐輪場、バイク置場など、利便性を考慮された設備が整っているため、あなたのライフスタイルに柔軟に対応します。管理人の存在が、安心感を与えてくれるのも嬉しいポイントです。
あなたの新しい生活、クオリタス浅草橋 1101で始めてみませんか。そこには、あなたの想い描くライフスタイルが、広がる未来に待っています。都会の隠れ家で、心豊かなひとときを創造する旅が始まります。どんな毎日も、映画の一場面のように色鮮やかに彩られ、クオリタス浅草橋 1101での生活があなたに新たな感動を与えてくれることでしょう。さあ、この特別な空間に足を踏み入れてみてください。あなたの新しい章が、いま始まろうとしています。
バイブルスコア
バイブルスコア: 53.5
条件のいい物件です、引っ越しが2か月以内の場合は仮申し込みを検討すべき物件です。
このお部屋は、現在ご入居中のため空室情報はございません。ただし、将来的に募集が開始される際、バイブルスコアにおいて非常に高い評価が期待されます。特にご興味をお持ちの方は、今のうちにブックマークやお気に入りに登録していただくと、募集開始のお知らせをすぐに受け取ることができます。是非ともご検討くださいませ。
※バイブルスコア詳細はこちら
バイブルスコアとは独自のAI機械学習技術を利用した物件評価システムで、物件のおすすめ度を示します。最高得点は100点で、スコアが高いほど、よりおすすめの物件と評価されています。
写真
契約条件
| 賃料 | 予想金額:115,000〜135,000円程度 | 管理費 | 予想金額:13,000〜17,000円程度 |
| 礼金 | 非公開(アーカイブ) | 敷金 | 非公開(アーカイブ) |
| フリーレント | なし | 平米数 | 25.98㎡ |
| 間取り | 1DK | 大型収納 | |
| 契約期間 |
| 方角 | 北 |
| 更新料 | 契約形態 | 普通賃貸借契約 | |
| 取引態様 | 媒介 | 内見状況 | 入居中 |
| 入居時期 | 入居中 | SOHO・事務所 | |
| ペット | ペット可 | 間取り内訳 | 洋:3.8 DK:5.5 |
| キャンペーン情報・備考 | 本情報は賃料改定交渉の資料作成、収益物件の利回り試算、周辺エリアや最寄り駅の坪単価分析、次回募集開始時期の予測などにご活用いただけます。 | ||
※「どの不動産に頼めばいいのか分からない」「信頼できる営業マンの話を聞きたい」「一番親切な会社と契約したい」とお悩みの方におすすめなのが「高級賃貸バイブル」です。
高級賃貸バイブルは業界10年以上の熟練スタッフ群がお客様ファーストで対応します。
下記ボタンから、まずは無料でご相談下さい。
※内覧をご希望の際には、どうぞ物件のエントランス前にてお待ち合わせくださいませ。ご内覧後は、同じ場所でお別れとさせていただきます。お客様のご都合に合わせたスムーズなご案内を心がけておりますので、ご質問等がございましたら何なりとお申し付けください。 物件概要
| 物件名 |
| 築年月 |
|
|---|---|---|---|
| 所在地 | |||
| 交通 | |||
| 総戸数 |
| 総階数 |
|
| 構造 |
| ||
地図
物件までの道のりは、「拡大地図を表示」をクリックしてナビ機能をご利用ください。
部屋設備














建物設備

TVモニターホン

エレベーター

オートロック

バイク置場

宅配ボックス

敷地内ゴミ置場

管理人

駐車場平置き

駐輪場
クオリタス浅草橋の現在募集中のお部屋
- クオリタス浅草橋 405 - 間取り: 1LDK - 賃料: 18.5万円





























