
| 賃料 | 予想金額:112,000〜132,000円程度 | 管理費 | 予想金額:13,000〜17,000円程度 |
| 礼金/敷金 | 非公開(アーカイブ) | 平米数 | 25.2㎡ |
| 初期費用概算(参考) | 目安:45,600〜145,600 円 | みなし賃料(月額・参考) | 126,450〜146,450 円 |
| 備考 | 本ページは過去募集のアーカイブです。表示の金額は周辺相場・過去募集を踏まえた参考レンジであり、実際の契約金額・条件ではありません。 | ||
※上記みなし賃料(月額)は仲介手数料割引・無料&キャッシュバックを加味した高級賃貸バイブル限定の金額です。一般的なみなし賃料とは異なります。
【建物ページ】クオリタス浅草橋の詳細・最新空室はこちら▶▶選ばれる理由
仲介手数料無料・キャンペーン情報(毎月15名様限定)
〇引っ越しお祝い金146400円プレゼント(キャッシュバック)
〇仲介手数料無料キャンペーン
クオリタス浅草橋 404の口コミ・レビュー
クオリタス浅草橋 404。この素晴らしい空間は、まるで優雅な音楽の調べが漂うような暮らしにあなたを誘います。東京都台東区浅草橋の南に位置し、静かな中にも活気に満ちたエリアで、都会の喧騒を忘れることのできる隠れ家のような物件です。404号室は、まるであなたのために用意された特別な舞台のように、生活のストーリーを彩る場となることでしょう。
この美しい1DKには、心を落ち着かせるための空気が満ち、その…クオリタス浅草橋 404。この素晴らしい空間は、まるで優雅な音楽の調べが漂うような暮らしにあなたを誘います。東京都台東区浅草橋の南に位置し、静かな中にも活気に満ちたエリアで、都会の喧騒を忘れることのできる隠れ家のような物件です。404号室は、まるであなたのために用意された特別な舞台のように、生活のストーリーを彩る場となることでしょう。
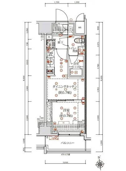
この美しい1DKには、心を落ち着かせるための空気が満ち、その専有面積25.2㎡は、まるで小さな宝石のように輝いて見えます。洋室は3.7帖、ダイニングキッチンは5.7帖と、限られた空間の中に洗練された機能と美しさが凝縮されています。さらに、デザイナーズとしての個性は、あなたの趣味やライフスタイルを表現するキャンバスともなることでしょう。
クオリタス浅草橋 404に住むことは、ただの居住空間を超え、あなたの日常を特別なものに変える魔法のような体験です。朝、目を覚ますと、カーテンの隙間から差し込む柔らかな日差しが、あなたの頬を優しく撫でます。コーヒーの香りが漂うキッチンで、ゆったりとした朝食を楽しむひとときは、まるで映画の一コマのよう。洗練されたデザインのTVモニターホンやオートロックも、安心感をもたらし、贅沢な暮らしをサポートしてくれます。
また、エレガントなエレベーターで軽やかに地上へと出かければ、そこには浅草橋の風情が待っています。徒歩6分でアクセスできる都営地下鉄浅草線の駅は、あなたの心の旅をさらに広げてくれる存在です。周辺には歴史深い浅草の名所や文化的なアートも豊富で、繁忙な日々の合間に心に潤いを与える瞬間がたくさんあります。バイク置場や駐輪場も完備されており、アクティブなライフスタイルを支えるための嬉しい設備が整っています。
暮らしのアクセントとなる管理人の存在や、敷地内ゴミ置場、宅配ボックスなど、現代のニーズに応えたサービスも充実しています。クオリタス浅草橋 404は、単なる物件ではなく、あなたの新しい物語の出発点です。日常生活の中に潜む新たな発見や、心躍る瞬間を見つけるための場所として、この空間はあなたを待っています。さあ、あなたの新しい生活が始まる準備を整えましょう。クオリタス浅草橋 404で、特別な毎日をあなたの手で紡いでください。
この美しい1DKには、心を落ち着かせるための空気が満ち、その…クオリタス浅草橋 404。この素晴らしい空間は、まるで優雅な音楽の調べが漂うような暮らしにあなたを誘います。東京都台東区浅草橋の南に位置し、静かな中にも活気に満ちたエリアで、都会の喧騒を忘れることのできる隠れ家のような物件です。404号室は、まるであなたのために用意された特別な舞台のように、生活のストーリーを彩る場となることでしょう。
この美しい1DKには、心を落ち着かせるための空気が満ち、その専有面積25.2㎡は、まるで小さな宝石のように輝いて見えます。洋室は3.7帖、ダイニングキッチンは5.7帖と、限られた空間の中に洗練された機能と美しさが凝縮されています。さらに、デザイナーズとしての個性は、あなたの趣味やライフスタイルを表現するキャンバスともなることでしょう。
クオリタス浅草橋 404に住むことは、ただの居住空間を超え、あなたの日常を特別なものに変える魔法のような体験です。朝、目を覚ますと、カーテンの隙間から差し込む柔らかな日差しが、あなたの頬を優しく撫でます。コーヒーの香りが漂うキッチンで、ゆったりとした朝食を楽しむひとときは、まるで映画の一コマのよう。洗練されたデザインのTVモニターホンやオートロックも、安心感をもたらし、贅沢な暮らしをサポートしてくれます。
また、エレガントなエレベーターで軽やかに地上へと出かければ、そこには浅草橋の風情が待っています。徒歩6分でアクセスできる都営地下鉄浅草線の駅は、あなたの心の旅をさらに広げてくれる存在です。周辺には歴史深い浅草の名所や文化的なアートも豊富で、繁忙な日々の合間に心に潤いを与える瞬間がたくさんあります。バイク置場や駐輪場も完備されており、アクティブなライフスタイルを支えるための嬉しい設備が整っています。
暮らしのアクセントとなる管理人の存在や、敷地内ゴミ置場、宅配ボックスなど、現代のニーズに応えたサービスも充実しています。クオリタス浅草橋 404は、単なる物件ではなく、あなたの新しい物語の出発点です。日常生活の中に潜む新たな発見や、心躍る瞬間を見つけるための場所として、この空間はあなたを待っています。さあ、あなたの新しい生活が始まる準備を整えましょう。クオリタス浅草橋 404で、特別な毎日をあなたの手で紡いでください。
バイブルスコア
バイブルスコア: 94.0
レア物件です、すぐ仮押さえしましょう!
このお部屋は、現在ご入居中のため空室情報はございません。ただし、将来的に募集が開始される際、バイブルスコアにおいて非常に高い評価が期待されます。特にご興味をお持ちの方は、今のうちにブックマークやお気に入りに登録していただくと、募集開始のお知らせをすぐに受け取ることができます。是非ともご検討くださいませ。
※バイブルスコア詳細はこちら
バイブルスコアとは独自のAI機械学習技術を利用した物件評価システムで、物件のおすすめ度を示します。最高得点は100点で、スコアが高いほど、よりおすすめの物件と評価されています。
写真
契約条件
| 賃料 | 予想金額:112,000〜132,000円程度 | 管理費 | 予想金額:13,000〜17,000円程度 |
| 礼金 | 非公開(アーカイブ) | 敷金 | 非公開(アーカイブ) |
| フリーレント | なし | 平米数 | 25.2㎡ |
| 間取り | 1DK | 大型収納 | |
| 契約期間 | 2年 | 方角 | 南 |
| 更新料 | 1ヶ月 | 契約形態 | 普通賃貸借契約 |
| 取引態様 | 媒介 | 内見状況 | 入居中 |
| 入居時期 | 入居中 | SOHO・事務所 | |
| ペット | ペット可 | 間取り内訳 | 洋:3.7 DK:5.7 |
| キャンペーン情報・備考 | 本情報は賃料改定交渉の資料作成、収益物件の利回り試算、周辺エリアや最寄り駅の坪単価分析、次回募集開始時期の予測などにご活用いただけます。 | ||
※「どの不動産に頼めばいいのか分からない」「信頼できる営業マンの話を聞きたい」「一番親切な会社と契約したい」とお悩みの方におすすめなのが「高級賃貸バイブル」です。
高級賃貸バイブルは業界10年以上の熟練スタッフ群がお客様ファーストで対応します。
下記ボタンから、まずは無料でご相談下さい。
※内覧をご希望の際には、どうぞ物件のエントランス前にてお待ち合わせくださいませ。ご内覧後は、同じ場所でお別れとさせていただきます。お客様のご都合に合わせたスムーズなご案内を心がけておりますので、ご質問等がございましたら何なりとお申し付けください。 物件概要
| 物件名 |
| 築年月 |
|
|---|---|---|---|
| 所在地 | |||
| 交通 | |||
| 総戸数 |
| 総階数 |
|
| 構造 |
| ||
地図
物件までの道のりは、「拡大地図を表示」をクリックしてナビ機能をご利用ください。
部屋設備














建物設備

TVモニターホン

エレベーター

オートロック

バイク置場

宅配ボックス

敷地内ゴミ置場

管理人

駐車場平置き

駐輪場
クオリタス浅草橋の現在募集中のお部屋
- クオリタス浅草橋 405 - 間取り: 1LDK - 賃料: 18.5万円





























