
| 賃料 | 予想金額:164,000〜184,000円程度 | 管理費 | 予想金額:23,000〜27,000円程度 |
| 礼金/敷金 | 非公開(アーカイブ) | 平米数 | 51.52㎡ |
| 初期費用概算(参考) | 目安:407,700〜507,700 円 | みなし賃料(月額・参考) | 194,910〜214,910 円 |
| 備考 | 本ページは過去募集のアーカイブです。表示の金額は周辺相場・過去募集を踏まえた参考レンジであり、実際の契約金額・条件ではありません。 | ||
※上記みなし賃料(月額)は仲介手数料割引・無料&キャッシュバックを加味した高級賃貸バイブル限定の金額です。一般的なみなし賃料とは異なります。
【建物ページ】アルテシモリーノの詳細・最新空室はこちら▶▶選ばれる理由
仲介手数料無料・キャンペーン情報(毎月15名様限定)
〇引っ越しお祝い金34800円プレゼント(キャッシュバック)
〇仲介手数料無料キャンペーン
アルテシモリーノ 205の口コミ・レビュー
アルテシモリーノ…アルテシモリーノ 205へようこそ。ここは、ただの住まいではなく、心の安らぎと生活の豊かさを与えてくれる空間です。専有面積51.52㎡、1LDKのこのお部屋は、あなたの人生の舞台となることでしょう。南向きの窓からは、やわらかな陽光が優しく降り注ぎ、朝の光があなたを迎え入れます。目を閉じれば、甘い香りの朝食がキッチンから漂い、耳を澄ませば、鳥たちのさえずりが心地よく響き渡ります。
アルテシモリーノ 205のリビングは、7.5帖の広さで、心地よい空気が流れています。ここで友人を招いてくつろぐ様子や、大切な人と一緒に過ごす特別な時間を想像してみてください。やわらかなソファに身を委ねながら、窓の外に広がるリズミカルな街並みを眺めると、まるで映画のワンシーンにいるかのようです。立ち上がり、キッチンへと向かうと、2.6帖の空間で愛情込めた料理を準備するあなたの姿が目に浮かびます。自分の手で作り上げた料理が、食卓を囲む仲間たちの笑顔を引き出し、心温まるひとときが始まります。
このマンションは、まるでそっと寄り添う友人のように、あなたの生活を見守っています。オートロックや宅配ボックスといった設備は、あなたのプライバシーを大切にし、安心感を与えてくれるでしょう。また、管理人の存在があることで、日々の小さな悩みや不安も軽減され、心穏やかに過ごすことができます。
アルテシモリーノ 205の周辺には、歴史深い街並みが広がっています。都営地下鉄大江戸線の両国駅から徒歩7分という利便性を持ちながら、隣接する公園や文化施設は、あなたの感性を豊かに育んでくれるでしょう。散策するたびに見つける新しい風景や、街の人々の温かい声が、心の中に静かな共鳴をもたらします。
この特別な空間で、あなたは何を感じ、何を見つけるのでしょうか。アートに触れる毎日や、豊かな食文化を楽しむことができる環境が、あなたの生活を魅力的に彩ります。アルテシモリーノ 205は、あなたの新しい物語の始まりなのです。ここでの生活が、あなたの心に響く美しいメロディとなり、毎日の暮らしに深い色彩を与えることでしょう。オープンな心でこの場所に足を踏み入れ、きっと新たな発見に出会うことができるはずです。あなたの生活をこの特別な空間で描き上げてください。
バイブルスコア
バイブルスコア: 50.3
条件のいい物件です、引っ越しが2か月以内の場合は仮申し込みを検討すべき物件です。
このお部屋は、現在ご入居中のため空室情報はございません。ただし、将来的に募集が開始される際、バイブルスコアにおいて非常に高い評価が期待されます。特にご興味をお持ちの方は、今のうちにブックマークやお気に入りに登録していただくと、募集開始のお知らせをすぐに受け取ることができます。是非ともご検討くださいませ。
※バイブルスコア詳細はこちら
バイブルスコアとは独自のAI機械学習技術を利用した物件評価システムで、物件のおすすめ度を示します。最高得点は100点で、スコアが高いほど、よりおすすめの物件と評価されています。
写真
契約条件
| 賃料 | 予想金額:164,000〜184,000円程度 | 管理費 | 予想金額:23,000〜27,000円程度 |
| 礼金 | 非公開(アーカイブ) | 敷金 | 非公開(アーカイブ) |
| フリーレント | なし | 平米数 | 51.52㎡ |
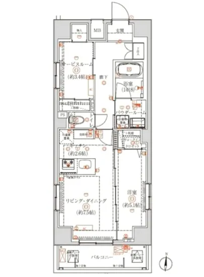
| 間取り | 1LDK | 大型収納 | WIC+S |
| 契約期間 | 2年 | 方角 | 南 |
| 更新料 | 1ヶ月 | 契約形態 | 普通賃貸借契約 |
| 取引態様 | 媒介 | 内見状況 | 入居中 |
| 入居時期 | 入居中 | SOHO・事務所 | 不可 |
| ペット | ペット可 | 間取り内訳 | 洋:5.1 S:3.4 LD:7.5 K:2.6 |
| キャンペーン情報・備考 | 本情報は賃料改定交渉の資料作成、収益物件の利回り試算、周辺エリアや最寄り駅の坪単価分析、次回募集開始時期の予測などにご活用いただけます。 | ||
※「どの不動産に頼めばいいのか分からない」「信頼できる営業マンの話を聞きたい」「一番親切な会社と契約したい」とお悩みの方におすすめなのが「高級賃貸バイブル」です。
高級賃貸バイブルは業界10年以上の熟練スタッフ群がお客様ファーストで対応します。
下記ボタンから、まずは無料でご相談下さい。
※内覧をご希望の際には、どうぞ物件のエントランス前にてお待ち合わせくださいませ。ご内覧後は、同じ場所でお別れとさせていただきます。お客様のご都合に合わせたスムーズなご案内を心がけておりますので、ご質問等がございましたら何なりとお申し付けください。 物件概要
| 物件名 |
| 築年月 |
|
|---|---|---|---|
| 所在地 | |||
| 交通 | |||
| 総戸数 |
| 総階数 |
|
| 構造 |
| ||
地図
物件までの道のりは、「拡大地図を表示」をクリックしてナビ機能をご利用ください。
部屋設備

















建物設備

TVモニターホン

エレベーター

オートロック

宅配ボックス

敷地内ゴミ置場

管理人

駐輪場
アルテシモリーノの現在募集中のお部屋
- アルテシモリーノ 704 - 間取り: 1LDK+WIC - 賃料: 17万円















