
| 賃料 | 予想金額:202,000〜222,000円程度 | 管理費 | 予想金額:23,000〜27,000円程度 |
| 礼金/敷金 | 非公開(アーカイブ) | 平米数 | 56.61㎡ |
| 初期費用概算(参考) | 目安:609,000〜709,000 円 | みなし賃料(月額・参考) | 236,313〜256,313 円 |
| 備考 | 本ページは過去募集のアーカイブです。表示の金額は周辺相場・過去募集を踏まえた参考レンジであり、実際の契約金額・条件ではありません。 | ||
※上記みなし賃料(月額)は仲介手数料割引・無料&キャッシュバックを加味した高級賃貸バイブル限定の金額です。一般的なみなし賃料とは異なります。
【建物ページ】ザ・パークハビオ滝野川の詳細・最新空室はこちら▶▶選ばれる理由
仲介手数料無料・キャンペーン情報(毎月15名様限定)
〇仲介手数料割引キャンペーン
ザ・パークハビオ滝野川 509の口コミ・レビュー
ザ・パークハビオ滝野川 509。それは、洗練された都市生活の中で、静けさと利便性を見事に調和させた、特別な隠れ家です。東京都北区滝野川、悠久の歴史を感じるこの地に根ざし、あなたの生活に寄り添う存在となることでしょう。
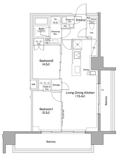
509号室は、高層の想像力豊かな空間に、58.61㎡の贅沢な広がりを秘めています。出迎えてくれるのは、優雅に流れる15.4帖のLDK。この部屋は、まるで陽光が優しく舞い込む舞台のよ…ザ・パークハビオ滝野川 509。それは、洗練された都市生活の中で、静けさと利便性を見事に調和させた、特別な隠れ家です。東京都北区滝野川、悠久の歴史を感じるこの地に根ざし、あなたの生活に寄り添う存在となることでしょう。
509号室は、高層の想像力豊かな空間に、58.61㎡の贅沢な広がりを秘めています。出迎えてくれるのは、優雅に流れる15.4帖のLDK。この部屋は、まるで陽光が優しく舞い込む舞台のように、あなたの新しい人生のストーリーを演出してくれるでしょう。朝の光が窓から射し込み、コーヒーの香りが漂う中、ふと窓の外を眺めれば、都会の喧騒とは裏腹に、穏やかな時間が流れているのを感じます。
キッチンでは、新鮮な食材を手に入れ、自らの手で美味しい料理を創り出します。LDKとつながる5.5帖の洋室は、友人と笑い声を交わしながら過ごすための場所。反対側にある4.5帖の洋室は、静かな読書の時間を楽しむ隠れ家として、あなたを包み込みます。やがて、夜が訪れると、心地よいぬくもりがこの場所を満たし、まるで映画のクライマックスのようなひとときが待っています。
ザ・パークハビオ滝野川は、ただの住まいではなく、あなたのライフスタイルそのものを映し出す鏡です。オートロックシステムが安心感を提供し、バイク置場や駐輪場がその自由なアクティビティを後押しします。宅配ボックスからは、何か特別な贈り物が届くたびに、胸が高鳴り、日常に彩りを加えてくれることでしょう。
静まり返った朝の空気を感じながら、近くの西巣鴨駅から出発すれば、東京の心臓部へのアクセスも容易。古くからの文化と最新のトレンドが交錯する場所で、あなたの想い描く生活が実現します。周囲には、歴史的な寺社や美しい公園が点在し、散歩するたびに新たな発見やインスピレーションを得ることができるのです。
ザ・パークハビオ滝野川 509がもたらすのは、ただの生活空間ではなく、日々の営みを特別なものに変える魔法のような存在です。ここに住むことで、あなたの人生はまるで美しい映画のワンシーンのように彩られ、五感を刺激する体験が待ち受けています。あなた自身のストーリーを、この特別な場所で、ぜひ紡いでみてはいかがでしょうか。
509号室は、高層の想像力豊かな空間に、58.61㎡の贅沢な広がりを秘めています。出迎えてくれるのは、優雅に流れる15.4帖のLDK。この部屋は、まるで陽光が優しく舞い込む舞台のよ…ザ・パークハビオ滝野川 509。それは、洗練された都市生活の中で、静けさと利便性を見事に調和させた、特別な隠れ家です。東京都北区滝野川、悠久の歴史を感じるこの地に根ざし、あなたの生活に寄り添う存在となることでしょう。
509号室は、高層の想像力豊かな空間に、58.61㎡の贅沢な広がりを秘めています。出迎えてくれるのは、優雅に流れる15.4帖のLDK。この部屋は、まるで陽光が優しく舞い込む舞台のように、あなたの新しい人生のストーリーを演出してくれるでしょう。朝の光が窓から射し込み、コーヒーの香りが漂う中、ふと窓の外を眺めれば、都会の喧騒とは裏腹に、穏やかな時間が流れているのを感じます。
キッチンでは、新鮮な食材を手に入れ、自らの手で美味しい料理を創り出します。LDKとつながる5.5帖の洋室は、友人と笑い声を交わしながら過ごすための場所。反対側にある4.5帖の洋室は、静かな読書の時間を楽しむ隠れ家として、あなたを包み込みます。やがて、夜が訪れると、心地よいぬくもりがこの場所を満たし、まるで映画のクライマックスのようなひとときが待っています。
ザ・パークハビオ滝野川は、ただの住まいではなく、あなたのライフスタイルそのものを映し出す鏡です。オートロックシステムが安心感を提供し、バイク置場や駐輪場がその自由なアクティビティを後押しします。宅配ボックスからは、何か特別な贈り物が届くたびに、胸が高鳴り、日常に彩りを加えてくれることでしょう。
静まり返った朝の空気を感じながら、近くの西巣鴨駅から出発すれば、東京の心臓部へのアクセスも容易。古くからの文化と最新のトレンドが交錯する場所で、あなたの想い描く生活が実現します。周囲には、歴史的な寺社や美しい公園が点在し、散歩するたびに新たな発見やインスピレーションを得ることができるのです。
ザ・パークハビオ滝野川 509がもたらすのは、ただの生活空間ではなく、日々の営みを特別なものに変える魔法のような存在です。ここに住むことで、あなたの人生はまるで美しい映画のワンシーンのように彩られ、五感を刺激する体験が待ち受けています。あなた自身のストーリーを、この特別な場所で、ぜひ紡いでみてはいかがでしょうか。
バイブルスコア
バイブルスコア: 45.0
条件のいい物件です、引っ越しが2か月以内の場合は仮申し込みを検討すべき物件です。
※バイブルスコア詳細はこちら
バイブルスコアとは独自のAI機械学習技術を利用した物件評価システムで、物件のおすすめ度を示します。最高得点は100点で、スコアが高いほど、よりおすすめの物件と評価されています。
写真
現在写真が登録されていません契約条件
| 賃料 | 予想金額:202,000〜222,000円程度 | 管理費 | 予想金額:23,000〜27,000円程度 |
| 礼金 | 非公開(アーカイブ) | 敷金 | 非公開(アーカイブ) |
| フリーレント | なし | 平米数 | 56.61㎡ |
| 間取り | 2LDK | 大型収納 | WIC+SIC |
| 契約期間 |
| 方角 | 北西 / 南西 |
| 更新料 | 契約形態 | 普通賃貸借契約 | |
| 取引態様 | 媒介 | 内見状況 | 入居中 |
| 入居時期 | 入居中 | SOHO・事務所 | 事務所(SOHO)可 |
| ペット | ペット可 | 間取り内訳 | 洋:5.5 洋:4.5 LDK:15.4 |
| キャンペーン情報・備考 | 本情報は賃料改定交渉の資料作成、収益物件の利回り試算、周辺エリアや最寄り駅の坪単価分析、次回募集開始時期の予測などにご活用いただけます。 | ||
※「どの不動産に頼めばいいのか分からない」「信頼できる営業マンの話を聞きたい」「一番親切な会社と契約したい」とお悩みの方におすすめなのが「高級賃貸バイブル」です。
高級賃貸バイブルは業界10年以上の熟練スタッフ群がお客様ファーストで対応します。
下記ボタンから、まずは無料でご相談下さい。
※内覧をご希望の際には、どうぞ物件のエントランス前にてお待ち合わせくださいませ。ご内覧後は、同じ場所でお別れとさせていただきます。お客様のご都合に合わせたスムーズなご案内を心がけておりますので、ご質問等がございましたら何なりとお申し付けください。 物件概要
| 物件名 |
| 築年月 |
|
|---|---|---|---|
| 所在地 | |||
| 交通 | |||
| 総戸数 |
| 総階数 |
|
| 構造 |
| ||
地図
物件までの道のりは、「拡大地図を表示」をクリックしてナビ機能をご利用ください。
部屋設備




















建物設備

TVモニターホン

エレベーター

オートロック

バイク置場

宅配ボックス

敷地内ゴミ置場

管理人

駐車場平置き

駐車場機械式

駐輪場
ザ・パークハビオ滝野川の現在募集中のお部屋
- ザ・パークハビオ滝野川 811 - 間取り: 2LDK+WIC+SIC - 賃料: 24万円
- ザ・パークハビオ滝野川 911 - 間取り: 2LDK+WIC+SIC - 賃料: 24.3万円
- ザ・パークハビオ滝野川 504 - 間取り: 1LDK - 賃料: 15.4万円
- ザ・パークハビオ滝野川 801 - 間取り: 2LDK+WIC - 賃料: 23.7万円
